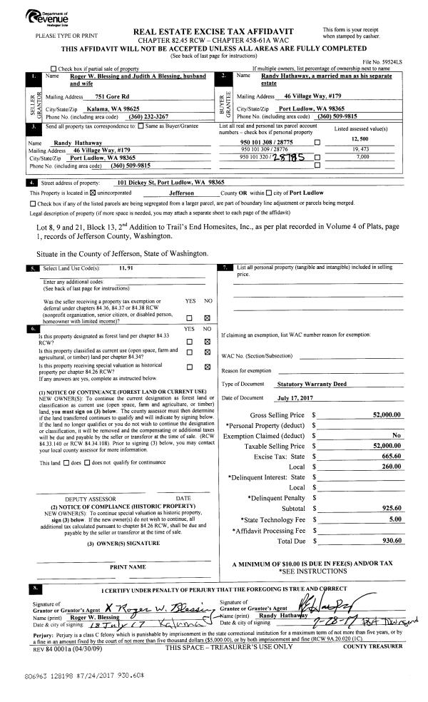
Property
Account |
| Property ID: | 25855 | Abbreviated Legal Description: | CAPE GEORGE VILLAGE DIV 2 LOT 12 |
| Parcel # / Geo ID: | 940200012 | Agent Code: | |
| Type: | Real | | |
| Tax Area: | 0111 - 1-50F1E1H2L1 | Land Use Code | 11 |
| Open Space: | N | DFL | N |
| Historic Property: | N | Remodel Property: | N |
| Multi-Family Redevelopment: | N | | |
| Township: | 30N | Section: | 13 |
| Range: | 2W |
Location |
| Address: | 210 DENNIS BLVD PORT TOWNSEND, WA 98368 | Mapsco: | 014/036 |
| Neighborhood: | CAPE GEORGE VILLAGE DIV 1, 2, 3, 4 | Map ID: | |
| Neighborhood CD: | 5525 |
Owner |
| Name: | VENKATA & LAKSHMI PALURI | Owner ID: | 104563 |
| Mailing Address: | 210 DENNIS BLVD PORT TOWNSEND, WA 98368-9411 | % Ownership: | 100.0000000000% |
| | | Exemptions: | |
Pay Tax Due
There is currently No Amount Due on this property.
Taxes and Assessment Details
Property Tax Information as of
10/24/2025
Click on "Statement Details" to expand or collapse a tax statement.
* Please enter a valid date ** Please enter a valid date *
Statement Details |
| | TOTAL: | $0.00 | $0.00 | $0.00 | $0.00 | $0.00 | $0.00 |
|
| | $0.00 | $0.00 | $0.00 | $0.00 | $0.00 | $0.00 |
Values
| (+) Improvement Homesite Value: | + | $0 | |
| (+) Improvement Non-Homesite Value: | + | $154,505 | |
| (+) Land Homesite Value: | + | $0 | |
| (+) Land Non-Homesite Value: | + | $132,000 | |
| (+) Curr Use (HS): | + | $0 | $0 |
| (+) Curr Use (NHS): | + | $0 | $0 |
| | | -------------------------- | |
| (=) Market Value: | = | $286,505 | |
| (–) Productivity Loss: | – | $0 | |
| | | -------------------------- | |
| (=) Subtotal: | = | $286,505 | |
| (+) Senior Appraised Value: | + | $0 | |
| (+) Non-Senior Appraised Value: | + | $286,505 | |
| | | -------------------------- | |
| (=) Total Appraised Value: | = | $286,505 | |
| (–) Senior Exemption Loss: | – | $0 | |
| (–) Exemption Loss: | – | $0 | |
| | | -------------------------- | |
| (=) Taxable Value: | = | $286,505 | |
Taxing Jurisdiction
| Owner: | VENKATA & LAKSHMI PALURI | | |
| % Ownership: | 100.0000000000% | | |
| Total Value: | N/A | | |
| Tax Area: | 0111 - 1-50F1E1H2L1 |
| CE | COUNTY CURRENT EXPENSE | N/A | N/A | N/A | N/A | | |
| CNTYDD | DEVELOPMENTAL DISABILITIES | N/A | N/A | N/A | N/A | | |
| CNTYVET | VETERANS RELIEF | N/A | N/A | N/A | N/A | | |
| MENTAL | MENTAL HEALTH | N/A | N/A | N/A | N/A | | |
| ROADS | COUNTY ROADS | N/A | N/A | N/A | N/A | | |
| ROADSCU | COUNTY ROADS TO CUR EXP | N/A | N/A | N/A | N/A | | |
| HOSP2CASH | HOSP DIST #2 GENERAL | N/A | N/A | N/A | N/A | | |
| SCH50BOND | SCHOOL DIST #50 BOND 2016 | N/A | N/A | N/A | N/A | | |
| SCH50CP | SCHOOL DIST #50 CAP PROJ | N/A | N/A | N/A | N/A | | |
| SCH50MO | SCHOOL DIST #50 EP & O | N/A | N/A | N/A | N/A | | |
| CONSERVE | CONSERVATION FUTURES | N/A | N/A | N/A | N/A | | |
| EMS1 | FIRE DIST #1 EMS | N/A | N/A | N/A | N/A | | |
| FD1 | FIRE DIST #1 GENERAL | N/A | N/A | N/A | N/A | | |
| LIB1 | LIBRARY DIST #1 GENERAL | N/A | N/A | N/A | N/A | | |
| PORTPT | PORT OF PT GENERAL | N/A | N/A | N/A | N/A | | |
| PORTPTIDD | PORT OF PT IDD 2019 | N/A | N/A | N/A | N/A | | |
| PUD1 | PUD #1 GENERAL | N/A | N/A | N/A | N/A | | |
| STATE | STATE SCHOOL PART 1 | N/A | N/A | N/A | N/A | | |
| STATE2 | STATE SCHOOL PART 2 | N/A | N/A | N/A | N/A | | |
| | Total Tax Rate: | N/A | | | | | |
| | | | | Taxes w/Current Exemptions: | N/A | | |
| | | | | Taxes w/o Exemptions: | N/A | | |
Improvement / Building
| Improvement #1: | Manufactured Home | State Code: | 11 | 1408.0 sqft | Value: | $154,505 |
| Bathrooms (#): | 2 (FULL) | Bedrooms (#): | 2 | | Exterior Wall: | SI/ST | Fireplace: | WD ST-GOOD | | Foundation: | CONPR | Heating/Cooling: | F/A | | Roof Cover: | COMP |   |   |
|
| | Type | Description | Class CD | Sub Class CD | Year Built | Area |
| | MA | Main Area | 3- | 1S | 1978 | 1408.0 |
| | SHED | Shed (Table Not Dep) | 4 | * | 1978 | 96.0 |
| | SHED | Shed (Table Not Dep) | 1 | * | 1978 | 64.0 |
| | BSMTU | House basement unfinished | 2 | * | 1978 | 576.0 |
Sketch
Property Image
Land
| 1 | 5525-1165L | Village Area of Fair Wtr/Mtn View Lots | 0.0000 | 0.00 | 0.00 | 0.00 | 1.00 | $132,000 | $0 |
Roll Value History
| 2025 | N/A | N/A | N/A | N/A | N/A |
| 2024 | $154,505 | $132,000 | $0 | $286,505 | $286,505 |
| 2023 | $156,042 | $120,750 | $0 | $276,792 | $276,792 |
| 2022 | $148,949 | $115,000 | $0 | $263,949 | $263,949 |
| 2021 | $138,250 | $99,000 | $0 | $237,250 | $237,250 |
Deed and Sales History
| 1 | 04/02/2021 | SWD | Statutory Warranty Deed | KURT MAEGERLE | VENKATA & LAKSHMI PALURI | | | $210,000.00 | 136525 | |
| 2 | 11/27/2019 | QCD | Quit Claim Deed | ELIZABETH MAEGERLE | KURT MAEGERLE | | | | 133582 | |
| 3 | 01/16/2004 | SWD | Statutory Warranty Deed | HABNER, REX R/KAREN L | MAEGERLE, ELIZABETH M | 0 | 0 | $160,000.00 | 99382 | 0 |
|   | |
| 4 | 03/31/1993 | SWD | Statutory Warranty Deed | PERRY REVOCABLE TRUST | HABNER, REX R/KAREN L | 0 | 0 | $85,000.00 | 70755 | 0 |
Payout Agreement
| No payout information available.. |