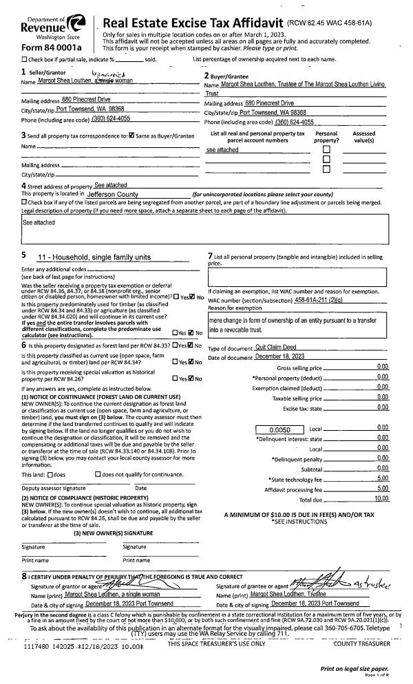
Property
Account |
| Property ID: | 25881 | Abbreviated Legal Description: | CAPE GEORGE VILLAGE DIV 3 LT22 BND TGTH W/CGV#4 LT 12-BLA |
| Parcel # / Geo ID: | 940500021 | Agent Code: | |
| Type: | Real | | |
| Tax Area: | 0111 - 1-50F1E1H2L1 | Land Use Code | 11 |
| Open Space: | N | DFL | N |
| Historic Property: | N | Remodel Property: | N |
| Multi-Family Redevelopment: | N | | |
| Township: | 30N | Section: | 13 |
| Range: | 2W |
Location |
| Address: | 192 MAPLE DR PORT TOWNSEND, WA 98368 | Mapsco: | 015/021 |
| Neighborhood: | CAPE GEORGE VILLAGE DIV 1, 2, 3, 4 | Map ID: | |
| Neighborhood CD: | 5525 |
Owner |
| Name: | PETERSON FAMILY REVOCABLE TRUST | Owner ID: | 110014 |
| Mailing Address: | ROBERT E & PHYLLIS L PETERSON TRUSTEES 192 MAPLE DR PORT TOWNSEND, WA 98368-9422 | % Ownership: | 100.0000000000% |
| | | Exemptions: | |
Pay Tax Due
There is currently No Amount Due on this property.
Taxes and Assessment Details
Property Tax Information as of
10/24/2025
Click on "Statement Details" to expand or collapse a tax statement.
* Please enter a valid date ** Please enter a valid date *
Statement Details |
| | TOTAL: | $0.00 | $0.00 | $0.00 | $0.00 | $0.00 | $0.00 |
|
| | $0.00 | $0.00 | $0.00 | $0.00 | $0.00 | $0.00 |
Values
| (+) Improvement Homesite Value: | + | $0 | |
| (+) Improvement Non-Homesite Value: | + | $499,013 | |
| (+) Land Homesite Value: | + | $0 | |
| (+) Land Non-Homesite Value: | + | $247,500 | |
| (+) Curr Use (HS): | + | $0 | $0 |
| (+) Curr Use (NHS): | + | $0 | $0 |
| | | -------------------------- | |
| (=) Market Value: | = | $746,513 | |
| (–) Productivity Loss: | – | $0 | |
| | | -------------------------- | |
| (=) Subtotal: | = | $746,513 | |
| (+) Senior Appraised Value: | + | $0 | |
| (+) Non-Senior Appraised Value: | + | $746,513 | |
| | | -------------------------- | |
| (=) Total Appraised Value: | = | $746,513 | |
| (–) Senior Exemption Loss: | – | $0 | |
| (–) Exemption Loss: | – | $0 | |
| | | -------------------------- | |
| (=) Taxable Value: | = | $746,513 | |
Taxing Jurisdiction
| Owner: | PETERSON FAMILY REVOCABLE TRUST | | |
| % Ownership: | 100.0000000000% | | |
| Total Value: | N/A | | |
| Tax Area: | 0111 - 1-50F1E1H2L1 |
| CE | COUNTY CURRENT EXPENSE | N/A | N/A | N/A | N/A | | |
| CNTYDD | DEVELOPMENTAL DISABILITIES | N/A | N/A | N/A | N/A | | |
| CNTYVET | VETERANS RELIEF | N/A | N/A | N/A | N/A | | |
| MENTAL | MENTAL HEALTH | N/A | N/A | N/A | N/A | | |
| ROADS | COUNTY ROADS | N/A | N/A | N/A | N/A | | |
| ROADSCU | COUNTY ROADS TO CUR EXP | N/A | N/A | N/A | N/A | | |
| HOSP2CASH | HOSP DIST #2 GENERAL | N/A | N/A | N/A | N/A | | |
| SCH50BOND | SCHOOL DIST #50 BOND 2016 | N/A | N/A | N/A | N/A | | |
| SCH50CP | SCHOOL DIST #50 CAP PROJ | N/A | N/A | N/A | N/A | | |
| SCH50MO | SCHOOL DIST #50 EP & O | N/A | N/A | N/A | N/A | | |
| CONSERVE | CONSERVATION FUTURES | N/A | N/A | N/A | N/A | | |
| EMS1 | FIRE DIST #1 EMS | N/A | N/A | N/A | N/A | | |
| FD1 | FIRE DIST #1 GENERAL | N/A | N/A | N/A | N/A | | |
| LIB1 | LIBRARY DIST #1 GENERAL | N/A | N/A | N/A | N/A | | |
| PORTPT | PORT OF PT GENERAL | N/A | N/A | N/A | N/A | | |
| PORTPTIDD | PORT OF PT IDD 2019 | N/A | N/A | N/A | N/A | | |
| PUD1 | PUD #1 GENERAL | N/A | N/A | N/A | N/A | | |
| STATE | STATE SCHOOL PART 1 | N/A | N/A | N/A | N/A | | |
| STATE2 | STATE SCHOOL PART 2 | N/A | N/A | N/A | N/A | | |
| | Total Tax Rate: | N/A | | | | | |
| | | | | Taxes w/Current Exemptions: | N/A | | |
| | | | | Taxes w/o Exemptions: | N/A | | |
Improvement / Building
| Improvement #1: | Manufactured Home | State Code: | 11 | 960.0 sqft | Value: | $99,947 |
| Bathrooms (#): | 1 (FULL) | Bathrooms (#): | 1 (HALF) | | Bedrooms (#): | 2 | Exterior Wall: | PL/T1 | | Foundation: | PO&BL | Heating/Cooling: | F/A | | Roof Cover: | COMP |   |   |
|
| | Type | Description | Class CD | Sub Class CD | Year Built | Area |
| | MA | Main Area | 3+ | MDBL | 1974 | 960.0 |
| | MPATIO | MH Patio | 3 | * | 1974 | 250.0 |
| | MDECK | MH Deck | 3 | * | 1974 | 408.0 |
| | MATT | MH Attached Garage | 4 | MDBL | 1974 | 680.0 |
| | SHED | Shed (Table Not Dep) | 4 | * | 1974 | 100.0 |
| | MRPO | MH Roof Porch | 3 | * | 1974 | 210.0 |
| | MSKIRT_MTL | MH Skirting - Metal/Vinyl | 3 | * | 1974 | 136.0 |
| Improvement #2: | Residential Bldg | State Code: | 11 | 1808.0 sqft | Value: | $399,066 |
| Bathrooms (#): | 3 (FULL) | Bedrooms (#): | 2 | | Exterior Wall: | SI/ST | Floor Construction: | FRAME | | Foundation: | CONPR | Heating/Cooling: | F/A | | Roof Cover: | METAL |   |   |
|
| | Type | Description | Class CD | Sub Class CD | Year Built | Area |
| | MA | Main Area | 4 | 1S | 2017 | 1808.0 |
| | GATT | House Attached Garage | 4 | 1S | 2017 | 657.0 |
Sketch
Property Image
Land
| 1 | 5525-1155L | Village Area of Avg Wtr/Mtn View Lots | 0.0000 | 0.00 | 0.00 | 0.00 | 1.00 | $247,500 | $0 |
Roll Value History
| 2025 | N/A | N/A | N/A | N/A | N/A |
| 2024 | $499,013 | $247,500 | $0 | $746,513 | $746,513 |
| 2023 | $502,941 | $231,000 | $0 | $733,941 | $733,941 |
| 2022 | $480,080 | $162,500 | $0 | $642,580 | $642,580 |
| 2021 | $355,786 | $140,250 | $0 | $496,036 | $496,036 |
Deed and Sales History
| 1 | 11/07/2023 | QCD | Quit Claim Deed | ROBERT E PETERSON | PETERSON FAMILY REVOCABLE TRUST | | | | 141886 | |
| 2 | 07/09/1997 | SWD | Statutory Warranty Deed | RODER, RAYMOND A/JANET L | PETERSON, ROBERT E/PHYLLIS L | 0 | 0 | $124,500.00 | 82332 | 0 |
Payout Agreement
| No payout information available.. |