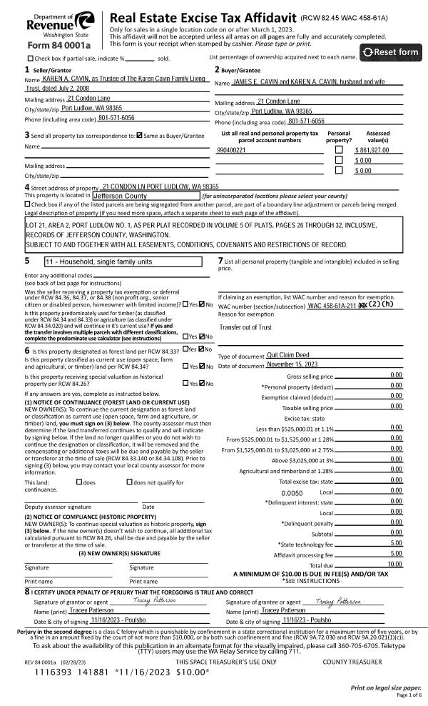
Property
Account |
| Property ID: | 25902 | Abbreviated Legal Description: | CAPE GEORGE VILLAGE DIV 3 LOT 43 |
| Parcel # / Geo ID: | 940500042 | Agent Code: | |
| Type: | Real | | |
| Tax Area: | 0111 - 1-50F1E1H2L1 | Land Use Code | 11 |
| Open Space: | N | DFL | N |
| Historic Property: | N | Remodel Property: | N |
| Multi-Family Redevelopment: | N | | |
| Township: | 30N | Section: | 13 |
| Range: | 2W |
Location |
| Address: | 171 HEMLOCK DR PORT TOWNSEND, WA 98368 | Mapsco: | 015/042 |
| Neighborhood: | CAPE GEORGE VILLAGE DIV 1, 2, 3, 4 | Map ID: | |
| Neighborhood CD: | 5525 |
Owner |
| Name: | JERRY B LILE | Owner ID: | 110189 |
| Mailing Address: | 171 HEMLOCK DR PORT TOWNSEND, WA 98368-9439 | % Ownership: | 100.0000000000% |
| | | Exemptions: | |
Pay Tax Due
There is currently No Amount Due on this property.
Taxes and Assessment Details
Property Tax Information as of
10/24/2025
Click on "Statement Details" to expand or collapse a tax statement.
* Please enter a valid date ** Please enter a valid date *
Statement Details |
| | TOTAL: | $0.00 | $0.00 | $0.00 | $0.00 | $0.00 | $0.00 |
|
| | $0.00 | $0.00 | $0.00 | $0.00 | $0.00 | $0.00 |
Values
| (+) Improvement Homesite Value: | + | $0 | |
| (+) Improvement Non-Homesite Value: | + | $510,897 | |
| (+) Land Homesite Value: | + | $0 | |
| (+) Land Non-Homesite Value: | + | $176,000 | |
| (+) Curr Use (HS): | + | $0 | $0 |
| (+) Curr Use (NHS): | + | $0 | $0 |
| | | -------------------------- | |
| (=) Market Value: | = | $686,897 | |
| (–) Productivity Loss: | – | $0 | |
| | | -------------------------- | |
| (=) Subtotal: | = | $686,897 | |
| (+) Senior Appraised Value: | + | $0 | |
| (+) Non-Senior Appraised Value: | + | $686,897 | |
| | | -------------------------- | |
| (=) Total Appraised Value: | = | $686,897 | |
| (–) Senior Exemption Loss: | – | $0 | |
| (–) Exemption Loss: | – | $0 | |
| | | -------------------------- | |
| (=) Taxable Value: | = | $686,897 | |
Taxing Jurisdiction
| Owner: | JERRY B LILE | | |
| % Ownership: | 100.0000000000% | | |
| Total Value: | N/A | | |
| Tax Area: | 0111 - 1-50F1E1H2L1 |
| CE | COUNTY CURRENT EXPENSE | N/A | N/A | N/A | N/A | | |
| CNTYDD | DEVELOPMENTAL DISABILITIES | N/A | N/A | N/A | N/A | | |
| CNTYVET | VETERANS RELIEF | N/A | N/A | N/A | N/A | | |
| MENTAL | MENTAL HEALTH | N/A | N/A | N/A | N/A | | |
| ROADS | COUNTY ROADS | N/A | N/A | N/A | N/A | | |
| ROADSCU | COUNTY ROADS TO CUR EXP | N/A | N/A | N/A | N/A | | |
| HOSP2CASH | HOSP DIST #2 GENERAL | N/A | N/A | N/A | N/A | | |
| SCH50BOND | SCHOOL DIST #50 BOND 2016 | N/A | N/A | N/A | N/A | | |
| SCH50CP | SCHOOL DIST #50 CAP PROJ | N/A | N/A | N/A | N/A | | |
| SCH50MO | SCHOOL DIST #50 EP & O | N/A | N/A | N/A | N/A | | |
| CONSERVE | CONSERVATION FUTURES | N/A | N/A | N/A | N/A | | |
| EMS1 | FIRE DIST #1 EMS | N/A | N/A | N/A | N/A | | |
| FD1 | FIRE DIST #1 GENERAL | N/A | N/A | N/A | N/A | | |
| LIB1 | LIBRARY DIST #1 GENERAL | N/A | N/A | N/A | N/A | | |
| PORTPT | PORT OF PT GENERAL | N/A | N/A | N/A | N/A | | |
| PORTPTIDD | PORT OF PT IDD 2019 | N/A | N/A | N/A | N/A | | |
| PUD1 | PUD #1 GENERAL | N/A | N/A | N/A | N/A | | |
| STATE | STATE SCHOOL PART 1 | N/A | N/A | N/A | N/A | | |
| STATE2 | STATE SCHOOL PART 2 | N/A | N/A | N/A | N/A | | |
| | Total Tax Rate: | N/A | | | | | |
| | | | | Taxes w/Current Exemptions: | N/A | | |
| | | | | Taxes w/o Exemptions: | N/A | | |
Improvement / Building
| Improvement #1: | Residential Bldg | State Code: | 11 | 1444.0 sqft | Value: | $510,897 |
| Bathrooms (#): | 2 (FULL) | Bathrooms (#): | 1 (HALF) | | Bedrooms (#): | 1 | Exterior Wall: | SI/ST | | Fireplace: | WD ST-GOOD | Floor Construction: | FRAME | | Foundation: | CONPR | Heating/Cooling: | HPUMP | | Inside Verify: | YES | Roof Cover: | COMP |
|
| | Type | Description | Class CD | Sub Class CD | Year Built | Area |
| | MA | Main Area | 4 | 1S | 2014 | 1444.0 |
| | BSMTF | House basement finished | 4 | 1S | 2014 | 992.0 |
| | HDECK | House Deck | 4 | 1S | 2014 | 311.0 |
| | HWPOR | House Wood Porch | 4 | * | 2014 | 50.0 |
| | CARPTF | Carport W/Floor | 4 | * | 2014 | 484.0 |
| | SHED | Shed (Table Not Dep) | 4 | * | 2014 | 176.0 |
| | HWPOR | House Wood Porch | 4 | * | 2014 | 176.0 |
| | HDECK | House Deck | 4 | * | 2014 | 59.5 |
Sketch
Property Image
Land
| 1 | 5525-1155L | Village Area of Avg Wtr/Mtn View Lots | 0.0000 | 0.00 | 0.00 | 0.00 | 1.00 | $176,000 | $0 |
Roll Value History
| 2025 | N/A | N/A | N/A | N/A | N/A |
| 2024 | $510,897 | $176,000 | $0 | $686,897 | $686,897 |
| 2023 | $479,045 | $162,750 | $0 | $641,795 | $641,795 |
| 2022 | $480,456 | $95,000 | $0 | $575,456 | $575,456 |
| 2021 | $349,423 | $82,500 | $0 | $431,923 | $431,923 |
Deed and Sales History
| 1 | 12/18/2023 | SWD | Statutory Warranty Deed | STANLEY E KROPF | JERRY B LILE | | | $725,000.00 | 142057 | |
| 2 | 03/08/2004 | SWD | Statutory Warranty Deed | CHOHRACH, ADAM | KROPF, STANLEY/MARLENE | 0 | 0 | $39,000.00 | 99663 | 0 |
| 3 | 07/10/2003 | SWD | Statutory Warranty Deed | VISCHER, BALDUIN A/DANA A | CHOHRACH, ADAM | 0 | 0 | $22,000.00 | 97760 | 0 |
| 4 | 07/10/2003 | SWD | Statutory Warranty Deed | VISCHER, BALDUIN A/DANA | CHOHRACH, ADAM | 0 | 0 | $0.00 | 99662 | 0 |
Payout Agreement
| No payout information available.. |