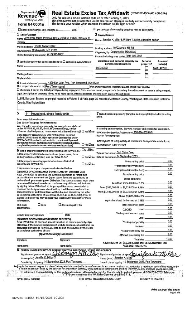
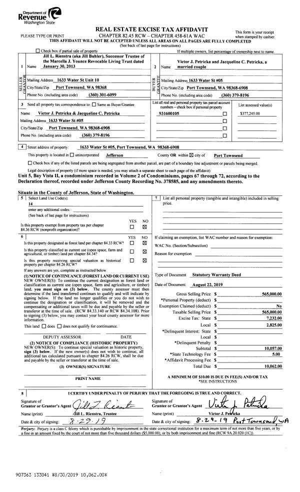
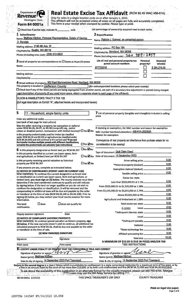
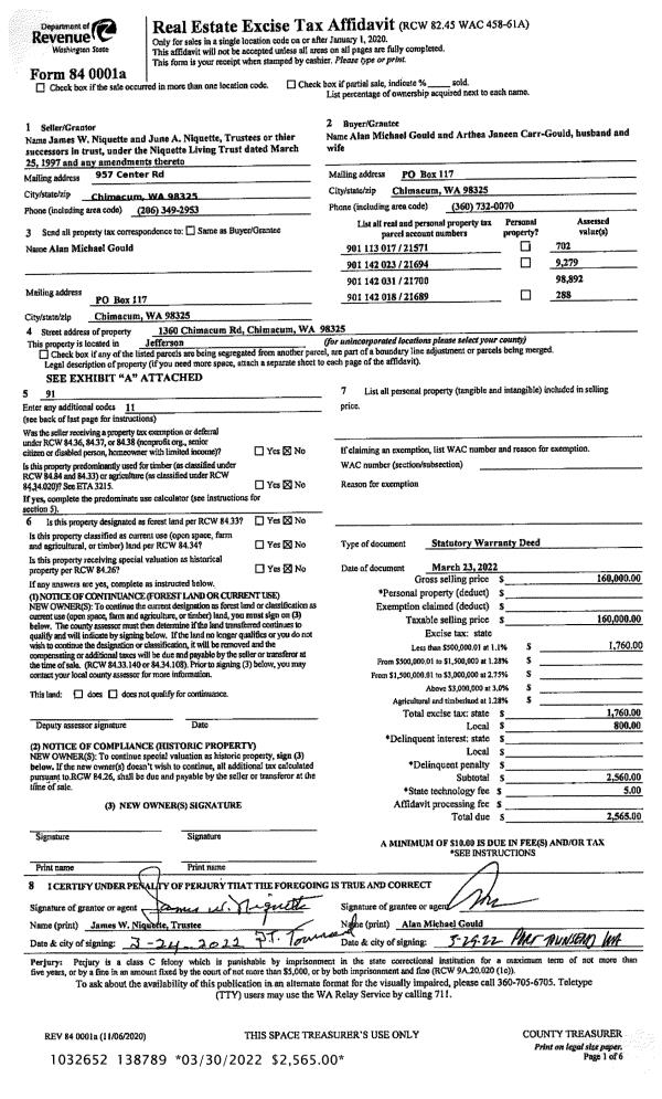
Property
Account |
| Property ID: | 25913 | Abbreviated Legal Description: | CAPE GEORGE VILLAGE DIV 3 LOT 54 |
| Parcel # / Geo ID: | 940500053 | Agent Code: | |
| Type: | Real | | |
| Tax Area: | 0111 - 1-50F1E1H2L1 | Land Use Code | 11 |
| Open Space: | N | DFL | N |
| Historic Property: | N | Remodel Property: | N |
| Multi-Family Redevelopment: | N | | |
| Township: | 30N | Section: | 13 |
| Range: | 2W |
Location |
| Address: | 560 DENNIS BLVD PORT TOWNSEND, WA 98368 | Mapsco: | 016/005 |
| Neighborhood: | CAPE GEORGE VILLAGE DIV 1, 2, 3, 4 | Map ID: | |
| Neighborhood CD: | 5525 |
Owner |
| Name: | ELAINE M BARON | Owner ID: | 34016 |
| Mailing Address: | 560 DENNIS BLVD PORT TOWNSEND, WA 98368-9482 | % Ownership: | 100.0000000000% |
| | | Exemptions: | SNR/DSBL |
Pay Tax Due
There is currently No Amount Due on this property.
Taxes and Assessment Details
Property Tax Information as of
10/24/2025
Click on "Statement Details" to expand or collapse a tax statement.
* Please enter a valid date ** Please enter a valid date *
Statement Details |
| | TOTAL: | $0.00 | $0.00 | $0.00 | $0.00 | $0.00 | $0.00 |
|
| | $0.00 | $0.00 | $0.00 | $0.00 | $0.00 | $0.00 |
Values
| (+) Improvement Homesite Value: | + | $108,906 | |
| (+) Improvement Non-Homesite Value: | + | $0 | |
| (+) Land Homesite Value: | + | $176,000 | |
| (+) Land Non-Homesite Value: | + | $0 | |
| (+) Curr Use (HS): | + | $0 | $0 |
| (+) Curr Use (NHS): | + | $0 | $0 |
| | | -------------------------- | |
| (=) Market Value: | = | $284,906 | |
| (–) Productivity Loss: | – | $0 | |
| | | -------------------------- | |
| (=) Subtotal: | = | $284,906 | |
| (+) Senior Appraised Value: | + | $183,874 | |
| (+) Non-Senior Appraised Value: | + | $0 | |
| | | -------------------------- | |
| (=) Total Appraised Value: | = | $183,874 | |
| (–) Senior Exemption Loss: | – | $110,324 | |
| (–) Exemption Loss: | – | $0 | |
| | | -------------------------- | |
| (=) Taxable Value: | = | $73,550 | |
Taxing Jurisdiction
| Owner: | ELAINE M BARON | | |
| % Ownership: | 100.0000000000% | | |
| Total Value: | N/A | | |
| Tax Area: | 0111 - 1-50F1E1H2L1 |
| CE | COUNTY CURRENT EXPENSE | N/A | N/A | N/A | N/A | | |
| CNTYDD | DEVELOPMENTAL DISABILITIES | N/A | N/A | N/A | N/A | | |
| CNTYVET | VETERANS RELIEF | N/A | N/A | N/A | N/A | | |
| MENTAL | MENTAL HEALTH | N/A | N/A | N/A | N/A | | |
| ROADS | COUNTY ROADS | N/A | N/A | N/A | N/A | | |
| ROADSCU | COUNTY ROADS TO CUR EXP | N/A | N/A | N/A | N/A | | |
| HOSP2CASH | HOSP DIST #2 GENERAL | N/A | N/A | N/A | N/A | | |
| SCH50BOND | SCHOOL DIST #50 BOND 2016 | N/A | N/A | N/A | N/A | | |
| SCH50CP | SCHOOL DIST #50 CAP PROJ | N/A | N/A | N/A | N/A | | |
| SCH50MO | SCHOOL DIST #50 EP & O | N/A | N/A | N/A | N/A | | |
| CONSERVE | CONSERVATION FUTURES | N/A | N/A | N/A | N/A | | |
| EMS1 | FIRE DIST #1 EMS | N/A | N/A | N/A | N/A | | |
| FD1 | FIRE DIST #1 GENERAL | N/A | N/A | N/A | N/A | | |
| LIB1 | LIBRARY DIST #1 GENERAL | N/A | N/A | N/A | N/A | | |
| PORTPT | PORT OF PT GENERAL | N/A | N/A | N/A | N/A | | |
| PORTPTIDD | PORT OF PT IDD 2019 | N/A | N/A | N/A | N/A | | |
| PUD1 | PUD #1 GENERAL | N/A | N/A | N/A | N/A | | |
| STATE | STATE SCHOOL PART 1 | N/A | N/A | N/A | N/A | | |
| STATE2 | STATE SCHOOL PART 2 | N/A | N/A | N/A | N/A | | |
| | Total Tax Rate: | N/A | | | | | |
| | | | | Taxes w/Current Exemptions: | N/A | | |
| | | | | Taxes w/o Exemptions: | N/A | | |
Improvement / Building
| Improvement #1: | Residential Bldg | State Code: | 11 | 484.0 sqft | Value: | $70,459 |
| Bathrooms (#): | 1 (FULL) | Bedrooms (#): | 1 | | Exterior Wall: | PL/T1 | Floor Construction: | CONCR | | Foundation: | CONPR | Heating/Cooling: | ELBB | | Interior Finish: | FIN | Roof Cover: | COMP |
|
| | Type | Description | Class CD | Sub Class CD | Year Built | Area |
| | MA | Main Area | 3- | ADU | 1970 | 484.0 |
| | ADDN-D | Addition (Table Depreciated) | 3 | ADU | 1970 | 192.0 |
| Improvement #2: | Manufactured Home | State Code: | 11M | 1122.0 sqft | Value: | $38,447 |
| Bathrooms (#): | 1 (FULL) | Bathrooms (#): | 1 (HALF) | | Bedrooms (#): | 2 | Exterior Wall: | METAL | | Fireplace: | WD ST-GOOD | Floor Construction: | FRAME | | Foundation: | CONBL | Heating/Cooling: | F/A | | Interior Finish: | FIN | Roof Cover: | BLTUP |
|
| | Type | Description | Class CD | Sub Class CD | Year Built | Area |
| | MA | Main Area | 3- | MFH | 1970 | 1122.0 |
| | MDECK | MH Deck | 3 | MFH | 1970 | 400.0 |
| | MSKIRT_MTL | MH Skirting - Metal/Vinyl | 3 | MFH | 1970 | 152.0 |
Sketch
Property Image
Land
| 1 | 5525-1155L | Village Area of Avg Wtr/Mtn View Lots | 0.0000 | 0.00 | 0.00 | 0.00 | 1.00 | $176,000 | $0 |
Roll Value History
| 2025 | N/A | N/A | N/A | N/A | N/A |
| 2024 | $96,901 | $176,000 | $0 | $272,901 | $73,550 |
| 2023 | $93,383 | $162,750 | $0 | $256,133 | $135,452 |
| 2022 | $92,578 | $115,000 | $0 | $207,578 | $63,828 |
| 2021 | $75,297 | $99,000 | $0 | $174,297 | $62,391 |
Deed and Sales History
| 1 | 02/28/2020 | QCD | Quit Claim Deed | LITTLE SUNNY & STAR LLC | ELAINE M BARON | | | | 134157 | |
| 2 | 07/07/2008 | QCD | Quit Claim Deed | BARON, ELAINE/ROBERT GALL | LITTLE SUNNY & STAR LLC | | | $0.00 | 111525 | 0 |
| 3 | 05/16/2007 | QCD | Quit Claim Deed | BARON, ELAINE M | BARON, ELAINE/GALLOWAY, ROBERT | | | $0.00 | 109242 | 0 |
| 4 | 04/11/2002 | SWD | Statutory Warranty Deed | COUTO, ANTHONY M | BARON, ELAINE M | 0 | 0 | $99,500.00 | 94440 | 0 |
| 5 | 10/21/1999 | SWD | Statutory Warranty Deed | JONES, JEAN/JAMES TRUSTEE | COUTO, ANTHONY | 0 | 0 | $69,900.00 | 88212 | 0 |
| 6 | 09/16/1997 | QCD | Quit Claim Deed | JONES, JAMES E/JEAN K | JONES, JEAN K/TRUST | 0 | 0 | $0.00 | 82772 | 0 |
| 7 | 08/17/1994 | SWD | Statutory Warranty Deed | BARNES, THOMAS A/CLAIRE A | JONES, JAMES E/JEAN K | 0 | 0 | $57,500.00 | 74974 | 0 |
Payout Agreement
| No payout information available.. |