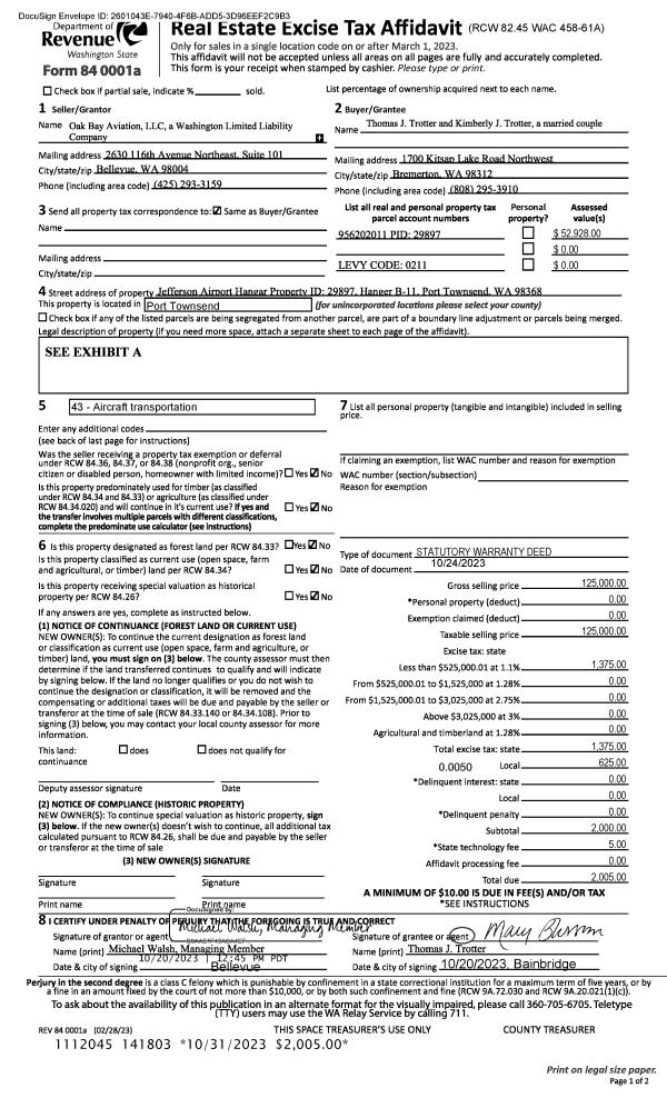
Property
Account |
| Property ID: | 25916 | Abbreviated Legal Description: | CAPE GEORGE VILLAGE DIV 3 LOT 57 |
| Parcel # / Geo ID: | 940500056 | Agent Code: | |
| Type: | Real | | |
| Tax Area: | 0111 - 1-50F1E1H2L1 | Land Use Code | 11 |
| Open Space: | N | DFL | N |
| Historic Property: | N | Remodel Property: | N |
| Multi-Family Redevelopment: | N | | |
| Township: | 30N | Section: | 13 |
| Range: | 2W |
Location |
| Address: | 50 HEMLOCK DR PORT TOWNSEND, WA 98368 | Mapsco: | 016/008 |
| Neighborhood: | CAPE GEORGE VILLAGE DIV 1, 2, 3, 4 | Map ID: | |
| Neighborhood CD: | 5525 |
Owner |
| Name: | SETH T & DAWN MONET | Owner ID: | 106347 |
| Mailing Address: | 8751 29TH AVE NW SEATTLE, WA 98117-3828 | % Ownership: | 100.0000000000% |
| | | Exemptions: | |
Pay Tax Due
There is currently No Amount Due on this property.
Taxes and Assessment Details
Property Tax Information as of
10/24/2025
Click on "Statement Details" to expand or collapse a tax statement.
* Please enter a valid date ** Please enter a valid date *
Statement Details |
| | TOTAL: | $0.00 | $0.00 | $0.00 | $0.00 | $0.00 | $0.00 |
|
| | $0.00 | $0.00 | $0.00 | $0.00 | $0.00 | $0.00 |
Values
| (+) Improvement Homesite Value: | + | $0 | |
| (+) Improvement Non-Homesite Value: | + | $229,110 | |
| (+) Land Homesite Value: | + | $0 | |
| (+) Land Non-Homesite Value: | + | $176,000 | |
| (+) Curr Use (HS): | + | $0 | $0 |
| (+) Curr Use (NHS): | + | $0 | $0 |
| | | -------------------------- | |
| (=) Market Value: | = | $405,110 | |
| (–) Productivity Loss: | – | $0 | |
| | | -------------------------- | |
| (=) Subtotal: | = | $405,110 | |
| (+) Senior Appraised Value: | + | $0 | |
| (+) Non-Senior Appraised Value: | + | $405,110 | |
| | | -------------------------- | |
| (=) Total Appraised Value: | = | $405,110 | |
| (–) Senior Exemption Loss: | – | $0 | |
| (–) Exemption Loss: | – | $0 | |
| | | -------------------------- | |
| (=) Taxable Value: | = | $405,110 | |
Taxing Jurisdiction
| Owner: | SETH T & DAWN MONET | | |
| % Ownership: | 100.0000000000% | | |
| Total Value: | N/A | | |
| Tax Area: | 0111 - 1-50F1E1H2L1 |
| CE | COUNTY CURRENT EXPENSE | N/A | N/A | N/A | N/A | | |
| CNTYDD | DEVELOPMENTAL DISABILITIES | N/A | N/A | N/A | N/A | | |
| CNTYVET | VETERANS RELIEF | N/A | N/A | N/A | N/A | | |
| MENTAL | MENTAL HEALTH | N/A | N/A | N/A | N/A | | |
| ROADS | COUNTY ROADS | N/A | N/A | N/A | N/A | | |
| ROADSCU | COUNTY ROADS TO CUR EXP | N/A | N/A | N/A | N/A | | |
| HOSP2CASH | HOSP DIST #2 GENERAL | N/A | N/A | N/A | N/A | | |
| SCH50BOND | SCHOOL DIST #50 BOND 2016 | N/A | N/A | N/A | N/A | | |
| SCH50CP | SCHOOL DIST #50 CAP PROJ | N/A | N/A | N/A | N/A | | |
| SCH50MO | SCHOOL DIST #50 EP & O | N/A | N/A | N/A | N/A | | |
| CONSERVE | CONSERVATION FUTURES | N/A | N/A | N/A | N/A | | |
| EMS1 | FIRE DIST #1 EMS | N/A | N/A | N/A | N/A | | |
| FD1 | FIRE DIST #1 GENERAL | N/A | N/A | N/A | N/A | | |
| LIB1 | LIBRARY DIST #1 GENERAL | N/A | N/A | N/A | N/A | | |
| PORTPT | PORT OF PT GENERAL | N/A | N/A | N/A | N/A | | |
| PORTPTIDD | PORT OF PT IDD 2019 | N/A | N/A | N/A | N/A | | |
| PUD1 | PUD #1 GENERAL | N/A | N/A | N/A | N/A | | |
| STATE | STATE SCHOOL PART 1 | N/A | N/A | N/A | N/A | | |
| STATE2 | STATE SCHOOL PART 2 | N/A | N/A | N/A | N/A | | |
| | Total Tax Rate: | N/A | | | | | |
| | | | | Taxes w/Current Exemptions: | N/A | | |
| | | | | Taxes w/o Exemptions: | N/A | | |
Improvement / Building
| Improvement #1: | Manufactured Home | State Code: | 11 | 1152.0 sqft | Value: | $229,110 |
| Bathrooms (#): | 2 (FULL) | Bedrooms (#): | 2 | | Exterior Wall: | METAL | Floor Construction: | FRAME | | Foundation: | PO&BL | Heating/Cooling: | F/A | | Roof Cover: | COMP |   |   |
|
| | Type | Description | Class CD | Sub Class CD | Year Built | Area |
| | MA | Main Area | 5 | MFH | 1977 | 1152.0 |
| | MDECK | MH Deck | 5 | * | 1977 | 180.0 |
| | MDET | MH Detached Garage | 5 | MFH | 1977 | 544.0 |
| | CARPTN | Carport W/O Floor | 2 | * | 1977 | 176.0 |
| | ADDN | Addition (Table Not Dep) | 5 | * | 1977 | 256.0 |
| | MSKIRT_WD | MH Skirting - Wood | 5 | * | 1977 | 144.0 |
| | MCPOR | MH Concrete Porch | 5 | * | 1977 | 128.0 |
Sketch
Property Image
Land
| 1 | 5525-1155L | Village Area of Avg Wtr/Mtn View Lots | 0.0000 | 0.00 | 0.00 | 0.00 | 1.00 | $176,000 | $0 |
Roll Value History
| 2025 | N/A | N/A | N/A | N/A | N/A |
| 2024 | $229,110 | $176,000 | $0 | $405,110 | $405,110 |
| 2023 | $215,479 | $162,750 | $0 | $378,229 | $378,229 |
| 2022 | $205,685 | $115,000 | $0 | $320,685 | $320,685 |
| 2021 | $83,226 | $99,000 | $0 | $182,226 | $182,226 |
Deed and Sales History
| 1 | 01/12/2022 | SWD | Statutory Warranty Deed | JOELLE R BOYCE | SETH T & DAWN MONET | | | $425,000.00 | 138426 | |
| 2 | 07/22/2019 | SWD | Statutory Warranty Deed | MICHAEL & ROBIN BALLOU | JOELLE R BOYCE | | | $165,000.00 | 132816 | |
| 3 | 11/13/2018 | LOP | Lack of Probate | | | | | | 131399 | |
| 4 | 03/20/2016 | QCD | Quit Claim Deed | RALEIGH W BALLOU | MICHAEL & ROBIN BALLOU | | | | 125245 | |
| 5 | 09/16/2005 | SWD | Statutory Warranty Deed | GANO, WALTER E/JUNE J | BAILOU, RALEIGH W/NADINE M | 0 | 0 | $165,000.00 | 104787 | 0 |
Payout Agreement
| No payout information available.. |