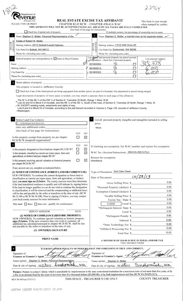
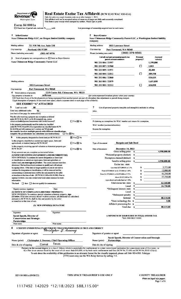
Property
Account |
| Property ID: | 25959 | Abbreviated Legal Description: | CAPE GEORGE VILLAGE DIV 4 LOT 13 |
| Parcel # / Geo ID: | 940800013 | Agent Code: | |
| Type: | Real | | |
| Tax Area: | 0111 - 1-50F1E1H2L1 | Land Use Code | 11 |
| Open Space: | N | DFL | N |
| Historic Property: | N | Remodel Property: | N |
| Multi-Family Redevelopment: | N | | |
| Township: | 30N | Section: | 13 |
| Range: | 2W |
Location |
| Address: | 150 MAPLE DR PORT TOWNSEND, WA 98368 | Mapsco: | 017/013 |
| Neighborhood: | CAPE GEORGE VILLAGE DIV 1, 2, 3, 4 | Map ID: | |
| Neighborhood CD: | 5525 |
Owner |
| Name: | MARGARET W DESANNOY | Owner ID: | 97811 |
| Mailing Address: | 150 MAPLE DR PORT TOWNSEND, WA 98368 | % Ownership: | 100.0000000000% |
| | | Exemptions: | |
Pay Tax Due
There is currently No Amount Due on this property.
Taxes and Assessment Details
Property Tax Information as of
10/24/2025
Click on "Statement Details" to expand or collapse a tax statement.
* Please enter a valid date ** Please enter a valid date *
Statement Details |
| | TOTAL: | $0.00 | $0.00 | $0.00 | $0.00 | $0.00 | $0.00 |
|
| | $0.00 | $0.00 | $0.00 | $0.00 | $0.00 | $0.00 |
Values
| (+) Improvement Homesite Value: | + | $0 | |
| (+) Improvement Non-Homesite Value: | + | $319,234 | |
| (+) Land Homesite Value: | + | $0 | |
| (+) Land Non-Homesite Value: | + | $190,300 | |
| (+) Curr Use (HS): | + | $0 | $0 |
| (+) Curr Use (NHS): | + | $0 | $0 |
| | | -------------------------- | |
| (=) Market Value: | = | $509,534 | |
| (–) Productivity Loss: | – | $0 | |
| | | -------------------------- | |
| (=) Subtotal: | = | $509,534 | |
| (+) Senior Appraised Value: | + | $0 | |
| (+) Non-Senior Appraised Value: | + | $509,534 | |
| | | -------------------------- | |
| (=) Total Appraised Value: | = | $509,534 | |
| (–) Senior Exemption Loss: | – | $0 | |
| (–) Exemption Loss: | – | $0 | |
| | | -------------------------- | |
| (=) Taxable Value: | = | $509,534 | |
Taxing Jurisdiction
| Owner: | MARGARET W DESANNOY | | |
| % Ownership: | 100.0000000000% | | |
| Total Value: | N/A | | |
| Tax Area: | 0111 - 1-50F1E1H2L1 |
| CE | COUNTY CURRENT EXPENSE | N/A | N/A | N/A | N/A | | |
| CNTYDD | DEVELOPMENTAL DISABILITIES | N/A | N/A | N/A | N/A | | |
| CNTYVET | VETERANS RELIEF | N/A | N/A | N/A | N/A | | |
| MENTAL | MENTAL HEALTH | N/A | N/A | N/A | N/A | | |
| ROADS | COUNTY ROADS | N/A | N/A | N/A | N/A | | |
| ROADSCU | COUNTY ROADS TO CUR EXP | N/A | N/A | N/A | N/A | | |
| HOSP2CASH | HOSP DIST #2 GENERAL | N/A | N/A | N/A | N/A | | |
| SCH50BOND | SCHOOL DIST #50 BOND 2016 | N/A | N/A | N/A | N/A | | |
| SCH50CP | SCHOOL DIST #50 CAP PROJ | N/A | N/A | N/A | N/A | | |
| SCH50MO | SCHOOL DIST #50 EP & O | N/A | N/A | N/A | N/A | | |
| CONSERVE | CONSERVATION FUTURES | N/A | N/A | N/A | N/A | | |
| EMS1 | FIRE DIST #1 EMS | N/A | N/A | N/A | N/A | | |
| FD1 | FIRE DIST #1 GENERAL | N/A | N/A | N/A | N/A | | |
| LIB1 | LIBRARY DIST #1 GENERAL | N/A | N/A | N/A | N/A | | |
| PORTPT | PORT OF PT GENERAL | N/A | N/A | N/A | N/A | | |
| PORTPTIDD | PORT OF PT IDD 2019 | N/A | N/A | N/A | N/A | | |
| PUD1 | PUD #1 GENERAL | N/A | N/A | N/A | N/A | | |
| STATE | STATE SCHOOL PART 1 | N/A | N/A | N/A | N/A | | |
| STATE2 | STATE SCHOOL PART 2 | N/A | N/A | N/A | N/A | | |
| | Total Tax Rate: | N/A | | | | | |
| | | | | Taxes w/Current Exemptions: | N/A | | |
| | | | | Taxes w/o Exemptions: | N/A | | |
Improvement / Building
| Improvement #1: | Residential Bldg | State Code: | 11 | 1056.0 sqft | Value: | $319,234 |
| Bathrooms (#): | 2 (FULL) | Bedrooms (#): | 2 | | Exterior Wall: | PL/T1 | Fireplace: | SIN 1-GOOD | | Floor Construction: | FRAME | Foundation: | CONPR | | Heating/Cooling: | F/A | Roof Cover: | METAL |
|
| | Type | Description | Class CD | Sub Class CD | Year Built | Area |
| | MA | Main Area | 4 | 1S | 1972 | 1056.0 |
| | HDECK | House Deck | 4 | * | 1972 | 496.0 |
| | GBSMT | Basement Garage | 4 | 1S | 1972 | 504.0 |
| | CONCD | Concrete Drive | 3 | * | 1972 | 1500.0 |
| | HCPOR | House Concrete Porch | 4 | * | 1972 | 336.0 |
Sketch
Property Image
Land
| 1 | 5525-1155L | Village Area of Avg Wtr/Mtn View Lots | 0.0000 | 0.00 | 0.00 | 0.00 | 1.00 | $190,300 | $0 |
Roll Value History
| 2025 | N/A | N/A | N/A | N/A | N/A |
| 2024 | $319,234 | $190,300 | $0 | $509,534 | $509,534 |
| 2023 | $303,001 | $176,400 | $0 | $479,401 | $479,401 |
| 2022 | $289,228 | $124,500 | $0 | $413,728 | $413,728 |
| 2021 | $210,347 | $107,250 | $0 | $317,597 | $317,597 |
Deed and Sales History
| 1 | 08/16/2017 | SWD | Statutory Warranty Deed | JUDITH L HAGEN | MARGARET W DESANNOY | | | $365,000.00 | 128360 | |
|   | |
| 2 | 08/03/2016 | TRED | Trustee Deed | NICHOLAS M GERICH | JUDITH L HAGEN | | | | 126106 | |
| 3 | 08/04/2011 | WD | Warranty Deed | GERICH, NICHOLAS M | GERICH, NICHOLAS M REVOCABLE T | 0 | 0 | $0.00 | 116435 | 0 |
| 4 | 03/16/2001 | SWD | Statutory Warranty Deed | COYNE, JAMES | GERICH, NICHOLAS | 0 | 0 | $145,000.00 | 91810 | 0 |
| 5 | 11/15/1995 | SWD | Statutory Warranty Deed | NOEL, IRMA D/ROBERT B | COYNE, JOANN E/JAMES D | 0 | 0 | $132,000.00 | 78261 | 0 |
| 6 | 06/07/1993 | SWD | Statutory Warranty Deed | HOOG, HOLLIS E/IONE K TRU | NOEL, IRMA D/ROBERT B | 0 | 0 | $152,000.00 | 71315 | 0 |
Payout Agreement
| No payout information available.. |