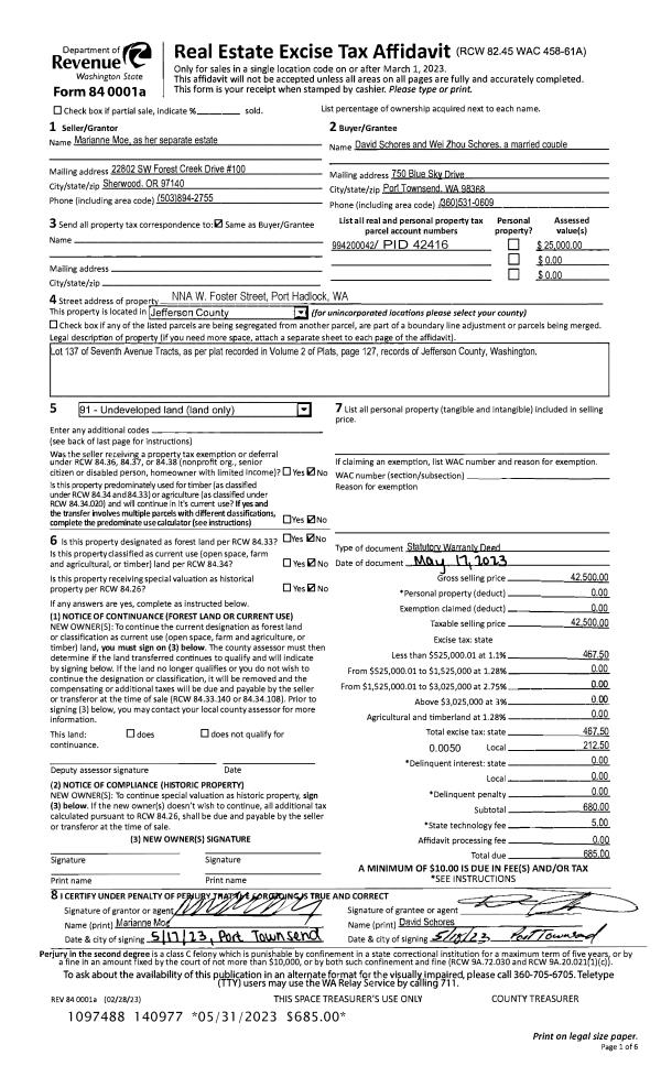
Property
Account |
| Property ID: | 25969 | Abbreviated Legal Description: | CAPE GEORGE VILLAGE DIV 4 LOT 23 |
| Parcel # / Geo ID: | 940800023 | Agent Code: | |
| Type: | Real | | |
| Tax Area: | 0111 - 1-50F1E1H2L1 | Land Use Code | 18 |
| Open Space: | N | DFL | N |
| Historic Property: | N | Remodel Property: | N |
| Multi-Family Redevelopment: | N | | |
| Township: | | Section: | |
| Range: | |
Location |
| Address: | 51 MAPLE DR PORT TOWNSEND, WA 98368 | Mapsco: | 017/023 |
| Neighborhood: | CAPE GEORGE VILLAGE DIV 1, 2, 3, 4 | Map ID: | |
| Neighborhood CD: | 5525 |
Owner |
| Name: | RIALTO ARANSAS REALTY INC | Owner ID: | 102632 |
| Mailing Address: | 350 CASTELLANO WAY #203 PORT TOWNSEND, WA 98368-5017 | % Ownership: | 100.0000000000% |
| | | Exemptions: | |
Pay Tax Due
There is currently No Amount Due on this property.
Taxes and Assessment Details
Property Tax Information as of
10/24/2025
Click on "Statement Details" to expand or collapse a tax statement.
* Please enter a valid date ** Please enter a valid date *
Statement Details |
| | TOTAL: | $0.00 | $0.00 | $0.00 | $0.00 | $0.00 | $0.00 |
|
| | $0.00 | $0.00 | $0.00 | $0.00 | $0.00 | $0.00 |
Values
| (+) Improvement Homesite Value: | + | $68,836 | |
| (+) Improvement Non-Homesite Value: | + | $0 | |
| (+) Land Homesite Value: | + | $132,000 | |
| (+) Land Non-Homesite Value: | + | $0 | |
| (+) Curr Use (HS): | + | $0 | $0 |
| (+) Curr Use (NHS): | + | $0 | $0 |
| | | -------------------------- | |
| (=) Market Value: | = | $200,836 | |
| (–) Productivity Loss: | – | $0 | |
| | | -------------------------- | |
| (=) Subtotal: | = | $200,836 | |
| (+) Senior Appraised Value: | + | $0 | |
| (+) Non-Senior Appraised Value: | + | $200,836 | |
| | | -------------------------- | |
| (=) Total Appraised Value: | = | $200,836 | |
| (–) Senior Exemption Loss: | – | $0 | |
| (–) Exemption Loss: | – | $0 | |
| | | -------------------------- | |
| (=) Taxable Value: | = | $200,836 | |
Taxing Jurisdiction
| Owner: | RIALTO ARANSAS REALTY INC | | |
| % Ownership: | 100.0000000000% | | |
| Total Value: | N/A | | |
| Tax Area: | 0111 - 1-50F1E1H2L1 |
| CE | COUNTY CURRENT EXPENSE | N/A | N/A | N/A | N/A | | |
| CNTYDD | DEVELOPMENTAL DISABILITIES | N/A | N/A | N/A | N/A | | |
| CNTYVET | VETERANS RELIEF | N/A | N/A | N/A | N/A | | |
| MENTAL | MENTAL HEALTH | N/A | N/A | N/A | N/A | | |
| ROADS | COUNTY ROADS | N/A | N/A | N/A | N/A | | |
| ROADSCU | COUNTY ROADS TO CUR EXP | N/A | N/A | N/A | N/A | | |
| HOSP2CASH | HOSP DIST #2 GENERAL | N/A | N/A | N/A | N/A | | |
| SCH50BOND | SCHOOL DIST #50 BOND 2016 | N/A | N/A | N/A | N/A | | |
| SCH50CP | SCHOOL DIST #50 CAP PROJ | N/A | N/A | N/A | N/A | | |
| SCH50MO | SCHOOL DIST #50 EP & O | N/A | N/A | N/A | N/A | | |
| CONSERVE | CONSERVATION FUTURES | N/A | N/A | N/A | N/A | | |
| EMS1 | FIRE DIST #1 EMS | N/A | N/A | N/A | N/A | | |
| FD1 | FIRE DIST #1 GENERAL | N/A | N/A | N/A | N/A | | |
| LIB1 | LIBRARY DIST #1 GENERAL | N/A | N/A | N/A | N/A | | |
| PORTPT | PORT OF PT GENERAL | N/A | N/A | N/A | N/A | | |
| PORTPTIDD | PORT OF PT IDD 2019 | N/A | N/A | N/A | N/A | | |
| PUD1 | PUD #1 GENERAL | N/A | N/A | N/A | N/A | | |
| STATE | STATE SCHOOL PART 1 | N/A | N/A | N/A | N/A | | |
| STATE2 | STATE SCHOOL PART 2 | N/A | N/A | N/A | N/A | | |
| | Total Tax Rate: | N/A | | | | | |
| | | | | Taxes w/Current Exemptions: | N/A | | |
| | | | | Taxes w/o Exemptions: | N/A | | |
Improvement / Building
| Improvement #1: | Site Improvements | State Code: | 18 | 420.0 sqft | Value: | $68,836 |
| Exterior Wall: | SI/ST | Floor Construction: | CONCR | | Foundation: | CONPR | Interior Finish: | FIN | | Roof Cover: | METAL |   |   |
|
| | Type | Description | Class CD | Sub Class CD | Year Built | Area |
| | MA | Main Area | 4 | C1S | 1973 | 420.0 |
| | GARAG | Garage (Table Not Dep) | 3 | * | 1973 | 504.0 |
| | CONCD | Concrete Drive | 3 | * | 1973 | 750.0 |
Sketch
Property Image
Land
| 1 | 5525-1165L | Village Area of Fair Wtr/Mtn View Lots | 0.0000 | 0.00 | 0.00 | 0.00 | 1.00 | $132,000 | $0 |
Roll Value History
| 2025 | N/A | N/A | N/A | N/A | N/A |
| 2024 | $68,836 | $132,000 | $0 | $200,836 | $200,836 |
| 2023 | $24,057 | $120,750 | $0 | $144,807 | $144,807 |
| 2022 | $22,963 | $95,000 | $0 | $117,963 | $117,963 |
| 2021 | $18,370 | $82,500 | $0 | $100,870 | $100,870 |
Deed and Sales History
| 1 | 05/05/2020 | BSD | Bargain and Sale Deed | DEAN A SHINN | RIALTO ARANSAS REALTY INC | | | $137,500.00 | 134330 | |
| 2 | 12/17/2001 | SWD | Statutory Warranty Deed | O'CONNELL, KELLY ANN WATA | SHINN, DEAN A | 0 | 0 | $79,000.00 | 93709 | 0 |
| 3 | 05/21/1999 | QCD | Quit Claim Deed | YANCEY, GORDON ALEXANDER/ | YANCEY, KELLY ANN | 0 | 0 | $0.00 | 86978 | 0 |
| 4 | 08/22/1997 | SWD | Statutory Warranty Deed | HOLCOMB, ADELAIDE K | YANCEY, GORDON A/KELLY A | 0 | 0 | $65,000.00 | 82619 | 0 |
Payout Agreement
| No payout information available.. |