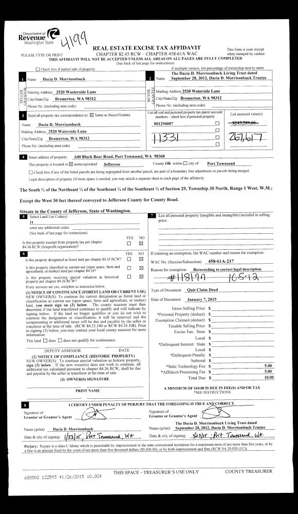
Property
Account |
| Property ID: | 26007 | Abbreviated Legal Description: | CAPE GEORGE VILLAGE DIV 4 LOT 65 |
| Parcel # / Geo ID: | 940800061 | Agent Code: | |
| Type: | Real | | |
| Tax Area: | 0111 - 1-50F1E1H2L1 | Land Use Code | 11 |
| Open Space: | N | DFL | N |
| Historic Property: | N | Remodel Property: | N |
| Multi-Family Redevelopment: | N | | |
| Township: | 30N | Section: | 13 |
| Range: | 2W |
Location |
| Address: | 41 DENNIS BLVD PORT TOWNSEND, WA 98368 | Mapsco: | 018/024 |
| Neighborhood: | CAPE GEORGE VILLAGE DIV 1, 2, 3, 4 | Map ID: | |
| Neighborhood CD: | 5525 |
Owner |
| Name: | NANCY D CHARPENTIER & BONNIE J ROSALIND | Owner ID: | 100728 |
| Mailing Address: | 41 DENNIS BLVD PORT TOWNSEND, WA 98368-9479 | % Ownership: | 100.0000000000% |
| | | Exemptions: | |
Pay Tax Due
There is currently No Amount Due on this property.
Taxes and Assessment Details
Property Tax Information as of
10/24/2025
Click on "Statement Details" to expand or collapse a tax statement.
* Please enter a valid date ** Please enter a valid date *
Statement Details |
| | TOTAL: | $0.00 | $0.00 | $0.00 | $0.00 | $0.00 | $0.00 |
|
| | $0.00 | $0.00 | $0.00 | $0.00 | $0.00 | $0.00 |
Values
| (+) Improvement Homesite Value: | + | $0 | |
| (+) Improvement Non-Homesite Value: | + | $419,887 | |
| (+) Land Homesite Value: | + | $0 | |
| (+) Land Non-Homesite Value: | + | $110,000 | |
| (+) Curr Use (HS): | + | $0 | $0 |
| (+) Curr Use (NHS): | + | $0 | $0 |
| | | -------------------------- | |
| (=) Market Value: | = | $529,887 | |
| (–) Productivity Loss: | – | $0 | |
| | | -------------------------- | |
| (=) Subtotal: | = | $529,887 | |
| (+) Senior Appraised Value: | + | $0 | |
| (+) Non-Senior Appraised Value: | + | $529,887 | |
| | | -------------------------- | |
| (=) Total Appraised Value: | = | $529,887 | |
| (–) Senior Exemption Loss: | – | $0 | |
| (–) Exemption Loss: | – | $0 | |
| | | -------------------------- | |
| (=) Taxable Value: | = | $529,887 | |
Taxing Jurisdiction
| Owner: | NANCY D CHARPENTIER & BONNIE J ROSALIND | | |
| % Ownership: | 100.0000000000% | | |
| Total Value: | N/A | | |
| Tax Area: | 0111 - 1-50F1E1H2L1 |
| CE | COUNTY CURRENT EXPENSE | N/A | N/A | N/A | N/A | | |
| CNTYDD | DEVELOPMENTAL DISABILITIES | N/A | N/A | N/A | N/A | | |
| CNTYVET | VETERANS RELIEF | N/A | N/A | N/A | N/A | | |
| MENTAL | MENTAL HEALTH | N/A | N/A | N/A | N/A | | |
| ROADS | COUNTY ROADS | N/A | N/A | N/A | N/A | | |
| ROADSCU | COUNTY ROADS TO CUR EXP | N/A | N/A | N/A | N/A | | |
| HOSP2CASH | HOSP DIST #2 GENERAL | N/A | N/A | N/A | N/A | | |
| SCH50BOND | SCHOOL DIST #50 BOND 2016 | N/A | N/A | N/A | N/A | | |
| SCH50CP | SCHOOL DIST #50 CAP PROJ | N/A | N/A | N/A | N/A | | |
| SCH50MO | SCHOOL DIST #50 EP & O | N/A | N/A | N/A | N/A | | |
| CONSERVE | CONSERVATION FUTURES | N/A | N/A | N/A | N/A | | |
| EMS1 | FIRE DIST #1 EMS | N/A | N/A | N/A | N/A | | |
| FD1 | FIRE DIST #1 GENERAL | N/A | N/A | N/A | N/A | | |
| LIB1 | LIBRARY DIST #1 GENERAL | N/A | N/A | N/A | N/A | | |
| PORTPT | PORT OF PT GENERAL | N/A | N/A | N/A | N/A | | |
| PORTPTIDD | PORT OF PT IDD 2019 | N/A | N/A | N/A | N/A | | |
| PUD1 | PUD #1 GENERAL | N/A | N/A | N/A | N/A | | |
| STATE | STATE SCHOOL PART 1 | N/A | N/A | N/A | N/A | | |
| STATE2 | STATE SCHOOL PART 2 | N/A | N/A | N/A | N/A | | |
| | Total Tax Rate: | N/A | | | | | |
| | | | | Taxes w/Current Exemptions: | N/A | | |
| | | | | Taxes w/o Exemptions: | N/A | | |
Improvement / Building
| Improvement #1: | Residential Bldg | State Code: | 11 | 1409.2 sqft | Value: | $419,887 |
| Bathrooms (#): | 2 (FULL) | Bedrooms (#): | 2 | | Exterior Wall: | SI/ST | Fireplace: | WD ST-GOOD | | Floor Construction: | FRAME | Foundation: | CONPR | | Heating/Cooling: | ELBB | Inside Verify: | YES | | Roof Cover: | COMP |   |   |
|
| | Type | Description | Class CD | Sub Class CD | Year Built | Area |
| | MA | Main Area | 3+ | 1S | 1969 | 1409.2 |
| | HWPOR | House Wood Porch | 4 | * | 1969 | 139.9 |
| | GATT | House Attached Garage | 4 | * | 2011 | 702.0 |
| | HWPOR | House Wood Porch | 4 | * | 2016 | 384.0 |
| | HDECK | House Deck | 4 | * | 2016 | 88.9 |
| | ADDN-D | Addition (Table Depreciated) | 4 | * | 2013 | 702.0 |
Sketch
Property Image
Land
| 1 | 5525-1173L | Village Wooded/Terr View Lots along Pine/Alder Sts | 0.0000 | 0.00 | 0.00 | 0.00 | 1.00 | $110,000 | $0 |
Roll Value History
| 2025 | N/A | N/A | N/A | N/A | N/A |
| 2024 | $419,887 | $110,000 | $0 | $529,887 | $529,887 |
| 2023 | $428,923 | $99,750 | $0 | $528,673 | $528,673 |
| 2022 | $452,619 | $75,000 | $0 | $527,619 | $527,619 |
| 2021 | $329,177 | $60,500 | $0 | $389,677 | $389,677 |
Deed and Sales History
| 1 | 03/21/2019 | SWD | Statutory Warranty Deed | JULIA & ROBERT KILCULLEN | NANCY D CHARPENTIER & BONNIE J ROSALIND | | | $359,600.00 | 132033 | |
| 2 | 09/22/2017 | SWD | Statutory Warranty Deed | NOAH & HANNAH MIDDLETON | JULIA & ROBERT KILCULLEN | | | $310,000.00 | 128678 | |
| 3 | 09/04/2015 | SWD | Statutory Warranty Deed | THEODORE M LUNDQUIST JR | NOAH & HANNAH MIDDLETON | | | $130,000.00 | 123947 | |
| 4 | 01/27/2015 | SWD | Statutory Warranty Deed | MICHAEL K WILLIAMSON TSTE | THEODORE M LUNDQUIST JR | | | $99,000.00 | 122644 | |
| 5 | 08/21/2008 | REC | Real Estate Contract | SNYDER, ANGELA D | WILLIAMSON FAMILY TRUST | 0 | 0 | $75,000.00 | 111794 | 0 |
| 6 | 02/13/2008 | QCD | Quit Claim Deed | SNYDER, JOHN TRUSTEE | SNYDER, ANGELA | 0 | 0 | $0.00 | 110816 | 0 |
| 7 | 07/22/1999 | QCD | Quit Claim Deed | SNYDER, JOHN L | SNYDER, JOHN L/TRUST | 0 | 0 | $0.00 | 87626 | 0 |
| 8 | 09/27/1995 | SWD | Statutory Warranty Deed | MASCHER, WILBUR/MARY | SNYDER, JOHN | 0 | 0 | $44,550.00 | 77912 | 0 |
Payout Agreement
| No payout information available.. |