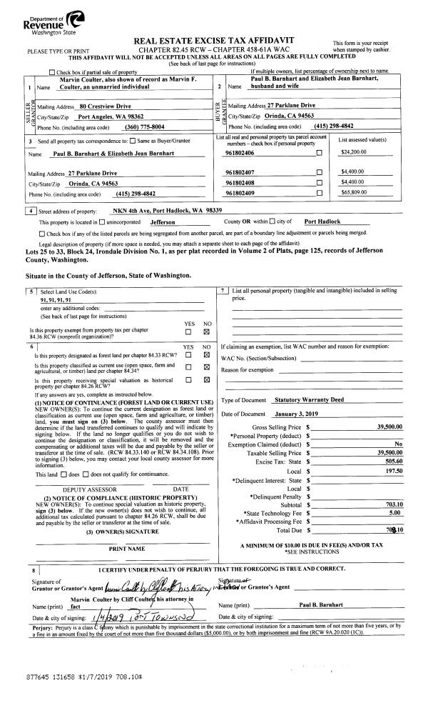
Property
Account |
| Property ID: | 26072 | Abbreviated Legal Description: | CAPE GEORGE VILLAGE DIV 7 LOT 12 |
| Parcel # / Geo ID: | 941500012 | Agent Code: | |
| Type: | Real | | |
| Tax Area: | 0111 - 1-50F1E1H2L1 | Land Use Code | 11 |
| Open Space: | N | DFL | N |
| Historic Property: | N | Remodel Property: | N |
| Multi-Family Redevelopment: | N | | |
| Township: | 30N | Section: | 18 |
| Range: | 1W |
Location |
| Address: | 530 SADDLE DR PORT TOWNSEND, WA 98368 | Mapsco: | 020/012 |
| Neighborhood: | CAPE GEORGE VILLAGE DIV 5 & 7 (HIGHLANDS) & INGERSOLL'S ADDN | Map ID: | |
| Neighborhood CD: | 5530 |
Owner |
| Name: | KENNETH T & MARILYN K MATTHEWS | Owner ID: | 101013 |
| Mailing Address: | 530 SADDLE DR PORT TOWNSEND, WA 98368-8905 | % Ownership: | 100.0000000000% |
| | | Exemptions: | |
Pay Tax Due
There is currently No Amount Due on this property.
Taxes and Assessment Details
Property Tax Information as of
10/24/2025
Click on "Statement Details" to expand or collapse a tax statement.
* Please enter a valid date ** Please enter a valid date *
Statement Details |
| | TOTAL: | $0.00 | $0.00 | $0.00 | $0.00 | $0.00 | $0.00 |
|
| | $0.00 | $0.00 | $0.00 | $0.00 | $0.00 | $0.00 |
Values
| (+) Improvement Homesite Value: | + | $0 | |
| (+) Improvement Non-Homesite Value: | + | $526,505 | |
| (+) Land Homesite Value: | + | $0 | |
| (+) Land Non-Homesite Value: | + | $153,519 | |
| (+) Curr Use (HS): | + | $0 | $0 |
| (+) Curr Use (NHS): | + | $0 | $0 |
| | | -------------------------- | |
| (=) Market Value: | = | $680,024 | |
| (–) Productivity Loss: | – | $0 | |
| | | -------------------------- | |
| (=) Subtotal: | = | $680,024 | |
| (+) Senior Appraised Value: | + | $0 | |
| (+) Non-Senior Appraised Value: | + | $680,024 | |
| | | -------------------------- | |
| (=) Total Appraised Value: | = | $680,024 | |
| (–) Senior Exemption Loss: | – | $0 | |
| (–) Exemption Loss: | – | $0 | |
| | | -------------------------- | |
| (=) Taxable Value: | = | $680,024 | |
Taxing Jurisdiction
| Owner: | KENNETH T & MARILYN K MATTHEWS | | |
| % Ownership: | 100.0000000000% | | |
| Total Value: | N/A | | |
| Tax Area: | 0111 - 1-50F1E1H2L1 |
| CE | COUNTY CURRENT EXPENSE | N/A | N/A | N/A | N/A | | |
| CNTYDD | DEVELOPMENTAL DISABILITIES | N/A | N/A | N/A | N/A | | |
| CNTYVET | VETERANS RELIEF | N/A | N/A | N/A | N/A | | |
| MENTAL | MENTAL HEALTH | N/A | N/A | N/A | N/A | | |
| ROADS | COUNTY ROADS | N/A | N/A | N/A | N/A | | |
| ROADSCU | COUNTY ROADS TO CUR EXP | N/A | N/A | N/A | N/A | | |
| HOSP2CASH | HOSP DIST #2 GENERAL | N/A | N/A | N/A | N/A | | |
| SCH50BOND | SCHOOL DIST #50 BOND 2016 | N/A | N/A | N/A | N/A | | |
| SCH50CP | SCHOOL DIST #50 CAP PROJ | N/A | N/A | N/A | N/A | | |
| SCH50MO | SCHOOL DIST #50 EP & O | N/A | N/A | N/A | N/A | | |
| CONSERVE | CONSERVATION FUTURES | N/A | N/A | N/A | N/A | | |
| EMS1 | FIRE DIST #1 EMS | N/A | N/A | N/A | N/A | | |
| FD1 | FIRE DIST #1 GENERAL | N/A | N/A | N/A | N/A | | |
| LIB1 | LIBRARY DIST #1 GENERAL | N/A | N/A | N/A | N/A | | |
| PORTPT | PORT OF PT GENERAL | N/A | N/A | N/A | N/A | | |
| PORTPTIDD | PORT OF PT IDD 2019 | N/A | N/A | N/A | N/A | | |
| PUD1 | PUD #1 GENERAL | N/A | N/A | N/A | N/A | | |
| STATE | STATE SCHOOL PART 1 | N/A | N/A | N/A | N/A | | |
| STATE2 | STATE SCHOOL PART 2 | N/A | N/A | N/A | N/A | | |
| | Total Tax Rate: | N/A | | | | | |
| | | | | Taxes w/Current Exemptions: | N/A | | |
| | | | | Taxes w/o Exemptions: | N/A | | |
Improvement / Building
| Improvement #1: | Residential Bldg | State Code: | 11 | 1780.0 sqft | Value: | $526,505 |
| Bathrooms (#): | 2 (FULL) | Bedrooms (#): | 2 | | Exterior Wall: | SI/ST | Fireplace: | WD ST-GOOD | | Floor Construction: | FRAME | Foundation: | CONPR | | Heating/Cooling: | HPUMP | Roof Cover: | COMP |
|
| | Type | Description | Class CD | Sub Class CD | Year Built | Area |
| | MA | Main Area | 5- | 1S | 2011 | 1780.0 |
| | HDECK | House Deck | 4 | * | 2011 | 375.0 |
| | GATT | House Attached Garage | 5 | 1S | 2011 | 320.0 |
| | SHED | Shed (Table Not Dep) | 4 | * | 2011 | 320.0 |
Sketch
Property Image
Land
| 1 | 1574A | Terr/Mtn/No View <6 Acres | 0.7500 | 32670.00 | 0.00 | 0.00 | 1.00 | $10,519 | $0 |
| 2 | 5530-1375S | CG Highlands Sites 1+/- Acre | 1.0000 | 43560.00 | 0.00 | 0.00 | 1.00 | $143,000 | $0 |
Roll Value History
| 2025 | N/A | N/A | N/A | N/A | N/A |
| 2024 | $526,505 | $153,519 | $0 | $680,024 | $680,024 |
| 2023 | $493,968 | $134,000 | $0 | $627,968 | $627,968 |
| 2022 | $493,968 | $120,000 | $0 | $613,968 | $613,968 |
| 2021 | $359,249 | $88,000 | $0 | $447,249 | $447,249 |
Deed and Sales History
| 1 | 04/18/2019 | SWD | Statutory Warranty Deed | ROBERT A FRENETTE | KENNETH T & MARILYN K MATTHEWS | | | $425,000.00 | 132314 | |
| 2 | 09/23/2009 | SWD | Statutory Warranty Deed | SWEEM, RANDAL | FRENETTE, ROBERT/LINDA | 0 | 0 | $90,000.00 | 113468 | 0 |
| 3 | 09/17/2009 | QCD | Quit Claim Deed | SWEEM, CANDRICE | SWEEM, RANDY D | 0 | 0 | $0.00 | 113467 | 0 |
Payout Agreement
| No payout information available.. |