Property
Account |
| Property ID: | 26123 | Abbreviated Legal Description: | CARROLL'S HOOD CANAL VIEW EST #1 BLK 2 LOT 20 |
| Parcel # / Geo ID: | 941700217 | Agent Code: | |
| Type: | Real | | |
| Tax Area: | 0440 - 1-46F4E4H2C1L1Z1P2 | Land Use Code | 11 |
| Open Space: | N | DFL | N |
| Historic Property: | N | Remodel Property: | N |
| Multi-Family Redevelopment: | N | | |
| Township: | 25N | Section: | 2 |
| Range: | 2W |
Location |
| Address: | 102 COREY LN BRINNON, WA 98320 | Mapsco: | 004/027 |
| Neighborhood: | S2 THROUGH S6 T25N R2W & CARROLLS HOOD CANAL & COREY S.P. | Map ID: | |
| Neighborhood CD: | 1210 |
Owner |
| Name: | THEODORE & DONNA J KITCHNER | Owner ID: | 104493 |
| Mailing Address: | 6333 83RD AVE SE SNOHOMISH, WA 98290-9208 | % Ownership: | 100.0000000000% |
| | | Exemptions: | |
Pay Tax Due
There is currently No Amount Due on this property.
Taxes and Assessment Details
Property Tax Information as of
10/24/2025
Click on "Statement Details" to expand or collapse a tax statement.
* Please enter a valid date ** Please enter a valid date *
Statement Details |
| | TOTAL: | $0.00 | $0.00 | $0.00 | $0.00 | $0.00 | $0.00 |
|
| | $0.00 | $0.00 | $0.00 | $0.00 | $0.00 | $0.00 |
Values
| (+) Improvement Homesite Value: | + | $0 | |
| (+) Improvement Non-Homesite Value: | + | $0 | |
| (+) Land Homesite Value: | + | $0 | |
| (+) Land Non-Homesite Value: | + | $18,150 | |
| (+) Curr Use (HS): | + | $0 | $0 |
| (+) Curr Use (NHS): | + | $0 | $0 |
| | | -------------------------- | |
| (=) Market Value: | = | $18,150 | |
| (–) Productivity Loss: | – | $0 | |
| | | -------------------------- | |
| (=) Subtotal: | = | $18,150 | |
| (+) Senior Appraised Value: | + | $0 | |
| (+) Non-Senior Appraised Value: | + | $18,150 | |
| | | -------------------------- | |
| (=) Total Appraised Value: | = | $18,150 | |
| (–) Senior Exemption Loss: | – | $0 | |
| (–) Exemption Loss: | – | $0 | |
| | | -------------------------- | |
| (=) Taxable Value: | = | $18,150 | |
Taxing Jurisdiction
| Owner: | THEODORE & DONNA J KITCHNER | | |
| % Ownership: | 100.0000000000% | | |
| Total Value: | N/A | | |
| Tax Area: | 0440 - 1-46F4E4H2C1L1Z1P2 |
| CE | COUNTY CURRENT EXPENSE | N/A | N/A | N/A | N/A | | |
| CNTYDD | DEVELOPMENTAL DISABILITIES | N/A | N/A | N/A | N/A | | |
| CNTYVET | VETERANS RELIEF | N/A | N/A | N/A | N/A | | |
| MENTAL | MENTAL HEALTH | N/A | N/A | N/A | N/A | | |
| ROADS | COUNTY ROADS | N/A | N/A | N/A | N/A | | |
| ROADSCU | COUNTY ROADS TO CUR EXP | N/A | N/A | N/A | N/A | | |
| HOSP2CASH | HOSP DIST #2 GENERAL | N/A | N/A | N/A | N/A | | |
| SCH46MO | SCHOOL DIST #46 EP & O | N/A | N/A | N/A | N/A | | |
| CEM1 | CEMETERY DIST #1 GENERAL | N/A | N/A | N/A | N/A | | |
| CONSERVE | CONSERVATION FUTURES | N/A | N/A | N/A | N/A | | |
| EMS4 | FIRE DIST #4 EMS | N/A | N/A | N/A | N/A | | |
| FD4 | FIRE DIST #4 GENERAL | N/A | N/A | N/A | N/A | | |
| FD4BOND | FIRE DIST #4 BOND 2019 | N/A | N/A | N/A | N/A | | |
| LIB1 | LIBRARY DIST #1 GENERAL | N/A | N/A | N/A | N/A | | |
| PORTPT | PORT OF PT GENERAL | N/A | N/A | N/A | N/A | | |
| PORTPTIDD | PORT OF PT IDD 2019 | N/A | N/A | N/A | N/A | | |
| PUD1 | PUD #1 GENERAL | N/A | N/A | N/A | N/A | | |
| STATE | STATE SCHOOL PART 1 | N/A | N/A | N/A | N/A | | |
| STATE2 | STATE SCHOOL PART 2 | N/A | N/A | N/A | N/A | | |
| | Total Tax Rate: | N/A | | | | | |
| | | | | Taxes w/Current Exemptions: | N/A | | |
| | | | | Taxes w/o Exemptions: | N/A | | |
Improvement / Building
Sketch
| No sketches available for this property. |
Property Image
Land
| 1 | 1210-1175L | Lots in Carroll's Hood Canal View Estates | 0.1377 | 6000.00 | 0.00 | 0.00 | 1.00 | $18,150 | $0 |
Roll Value History
| 2025 | N/A | N/A | N/A | N/A | N/A |
| 2024 | $0 | $17,325 | $0 | $17,325 | $17,325 |
| 2023 | $0 | $17,325 | $0 | $17,325 | $17,325 |
| 2022 | $0 | $16,500 | $0 | $16,500 | $16,500 |
| 2021 | $0 | $16,500 | $0 | $16,500 | $16,500 |
Deed and Sales History
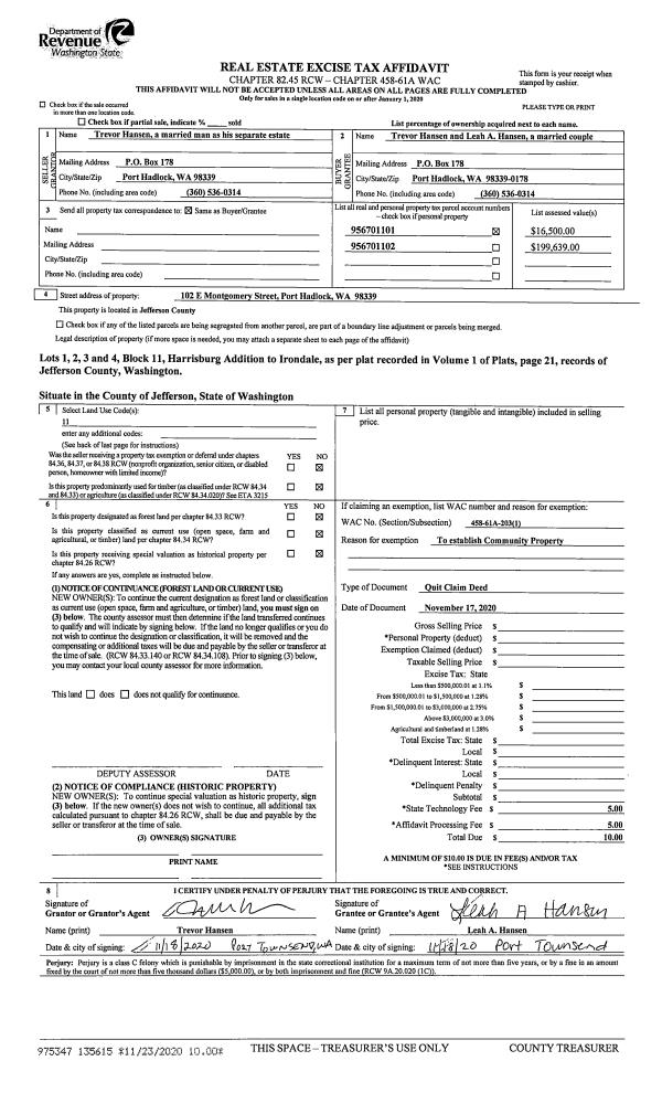
| 1 | 04/01/2021 | SWD | Statutory Warranty Deed | ALICE R THOMAS JOHNSON | THEODORE & DONNA J KITCHNER | | | $100,000.00 | 136446 | |
|   | |
| 2 | 04/01/2021 | LOP | Lack of Probate | JAMES H THOMAS | ALICE R THOMAS JOHNSON | | | | 136445 | |
| 3 | 04/01/2021 | QCD | Quit Claim Deed | | HEIRS OF ALICE R THOMAS JOHNSON | | | | 136444 | |
| 4 | 05/30/2000 | QCD | Quit Claim Deed | JOHNSON, ALICE R | THOMAS, JAMES H & ALICE R/TR | 0 | 0 | $0.00 | 89715 | 0 |
Payout Agreement
| No payout information available.. |