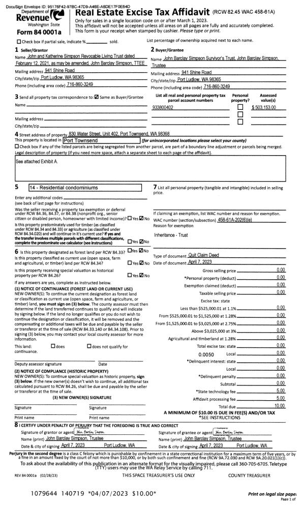
Property
Account |
| Property ID: | 26236 | Abbreviated Legal Description: | CHALMER'S 1ST ADDITION BLK 2, LTS 40(E1/3)41,42,43(ALL)44(W1/3) |
| Parcel # / Geo ID: | 942600205 | Agent Code: | |
| Type: | Real | | |
| Tax Area: | 0211 - 1-49F1E1H2L1 | Land Use Code | 11 |
| Open Space: | N | DFL | N |
| Historic Property: | N | Remodel Property: | N |
| Multi-Family Redevelopment: | N | | |
| Township: | 29N | Section: | 3 |
| Range: | 1W |
Location |
| Address: | 91 PATISON ST PORT HADLOCK, WA 98339 | Mapsco: | 013/011 |
| Neighborhood: | CHALMER'S 1ST & CHALMER'S 2ND | Map ID: | |
| Neighborhood CD: | 4225 |
Owner |
| Name: | MICHAEL A BRITTAIN | Owner ID: | 12114 |
| Mailing Address: | 91 PATISON ST PORT HADLOCK, WA 98339-9540 | % Ownership: | 100.0000000000% |
| | | Exemptions: | |
Pay Tax Due
There is currently No Amount Due on this property.
Taxes and Assessment Details
Property Tax Information as of
10/24/2025
Click on "Statement Details" to expand or collapse a tax statement.
* Please enter a valid date ** Please enter a valid date *
Statement Details |
| | TOTAL: | $0.00 | $0.00 | $0.00 | $0.00 | $0.00 | $0.00 |
|
| | $0.00 | $0.00 | $0.00 | $0.00 | $0.00 | $0.00 |
Values
| (+) Improvement Homesite Value: | + | $0 | |
| (+) Improvement Non-Homesite Value: | + | $222,688 | |
| (+) Land Homesite Value: | + | $0 | |
| (+) Land Non-Homesite Value: | + | $98,956 | |
| (+) Curr Use (HS): | + | $0 | $0 |
| (+) Curr Use (NHS): | + | $0 | $0 |
| | | -------------------------- | |
| (=) Market Value: | = | $321,644 | |
| (–) Productivity Loss: | – | $0 | |
| | | -------------------------- | |
| (=) Subtotal: | = | $321,644 | |
| (+) Senior Appraised Value: | + | $0 | |
| (+) Non-Senior Appraised Value: | + | $321,644 | |
| | | -------------------------- | |
| (=) Total Appraised Value: | = | $321,644 | |
| (–) Senior Exemption Loss: | – | $0 | |
| (–) Exemption Loss: | – | $0 | |
| | | -------------------------- | |
| (=) Taxable Value: | = | $321,644 | |
Taxing Jurisdiction
| Owner: | MICHAEL A BRITTAIN | | |
| % Ownership: | 100.0000000000% | | |
| Total Value: | N/A | | |
| Tax Area: | 0211 - 1-49F1E1H2L1 |
| CE | COUNTY CURRENT EXPENSE | N/A | N/A | N/A | N/A | | |
| CNTYDD | DEVELOPMENTAL DISABILITIES | N/A | N/A | N/A | N/A | | |
| CNTYVET | VETERANS RELIEF | N/A | N/A | N/A | N/A | | |
| MENTAL | MENTAL HEALTH | N/A | N/A | N/A | N/A | | |
| ROADS | COUNTY ROADS | N/A | N/A | N/A | N/A | | |
| ROADSCU | COUNTY ROADS TO CUR EXP | N/A | N/A | N/A | N/A | | |
| HOSP2CASH | HOSP DIST #2 GENERAL | N/A | N/A | N/A | N/A | | |
| SCH49CP | SCHOOL DIST #49 CAP PROJ | N/A | N/A | N/A | N/A | | |
| SCH49MO | SCHOOL DIST #49 EP & O | N/A | N/A | N/A | N/A | | |
| CONSERVE | CONSERVATION FUTURES | N/A | N/A | N/A | N/A | | |
| EMS1 | FIRE DIST #1 EMS | N/A | N/A | N/A | N/A | | |
| FD1 | FIRE DIST #1 GENERAL | N/A | N/A | N/A | N/A | | |
| LIB1 | LIBRARY DIST #1 GENERAL | N/A | N/A | N/A | N/A | | |
| PORTPT | PORT OF PT GENERAL | N/A | N/A | N/A | N/A | | |
| PORTPTIDD | PORT OF PT IDD 2019 | N/A | N/A | N/A | N/A | | |
| PUD1 | PUD #1 GENERAL | N/A | N/A | N/A | N/A | | |
| STATE | STATE SCHOOL PART 1 | N/A | N/A | N/A | N/A | | |
| STATE2 | STATE SCHOOL PART 2 | N/A | N/A | N/A | N/A | | |
| | Total Tax Rate: | N/A | | | | | |
| | | | | Taxes w/Current Exemptions: | N/A | | |
| | | | | Taxes w/o Exemptions: | N/A | | |
Improvement / Building
| Improvement #1: | Residential Bldg | State Code: | 11 | 1508.0 sqft | Value: | $222,688 |
| Bathrooms (#): | 1 (FULL) | Bathrooms (#): | 1 (HALF) | | Bedrooms (#): | 3 | Exterior Wall: | SI/ST | | Fireplace: | WD ST-AVG | Floor Construction: | FRAME | | Foundation: | CONPR | Heating/Cooling: | ELBB | | Inside Verify: | YES-FIX | Roof Cover: | COMP |
|
| | Type | Description | Class CD | Sub Class CD | Year Built | Area |
| | MA | Main Area | 3+ | 2S | 1988 | 908.0 |
| | MA2 | Second Floor Main Area | 3+ | 2S | 1988 | 600.0 |
| | HDECK | House Deck | 3 | * | 1988 | 192.0 |
| | OTHER | Other | * | * | 1988 | 0.0 |
| | SHED | Shed (Table Not Dep) | 3 | * | 1988 | 80.0 |
Sketch
Property Image
Land
| 1 | 4225-1288S | 2 Lot Sites Chalmers 1st & Blks 7-12 Chalmers 2nd | 0.0000 | 0.00 | 0.00 | 0.00 | 1.00 | $88,000 | $0 |
| 2 | 4225-1187L | Addn 25x100 Lots (Behind Frontage Site) | 0.0000 | 0.00 | 0.00 | 0.00 | 1.00 | $10,956 | $0 |
Roll Value History
| 2025 | N/A | N/A | N/A | N/A | N/A |
| 2024 | $212,566 | $94,458 | $0 | $307,024 | $307,024 |
| 2023 | $212,566 | $84,960 | $0 | $297,526 | $297,526 |
| 2022 | $180,689 | $69,960 | $0 | $250,649 | $250,649 |
| 2021 | $150,574 | $55,968 | $0 | $206,542 | $206,542 |
Deed and Sales History
| 1 | 03/25/2008 | SWD | Statutory Warranty Deed | LINDBLAD, ERIC/MO-CHI | BRITTAIN, MICHAEL A | 0 | 0 | $215,000.00 | 111019 | 0 |
| 2 | 02/11/2002 | SWD | Statutory Warranty Deed | KELLY, MICHAEL J/SHANA R | LINDBLAD, ERIC D/MO-CHI ZOE | 0 | 0 | $119,000.00 | 94020 | 0 |
| 3 | 09/15/1993 | SWD | Statutory Warranty Deed | COX, GERALD L/TERESA A | KELLY, MICHAEL J/SHANA R | 0 | 0 | $84,000.00 | 72174 | 0 |
| 4 | 01/07/1992 | QCD | Quit Claim Deed | ALLEN, TERESA A | COX, TERESA A/GERALD L | 0 | 0 | $0.00 | 70178 | 0 |
Payout Agreement
| No payout information available.. |