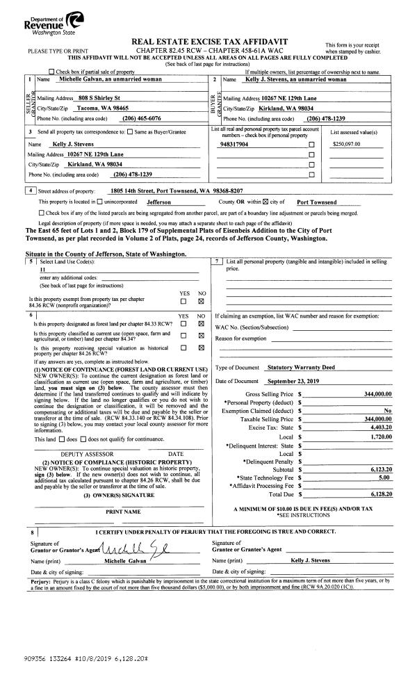
Property
Account |
| Property ID: | 26274 | Abbreviated Legal Description: | CHALMER'S 1ST ADDITION BLK 5 LOTS 17 THRU 20 |
| Parcel # / Geo ID: | 942600513 | Agent Code: | |
| Type: | Real | | |
| Tax Area: | 0211 - 1-49F1E1H2L1 | Land Use Code | 11 |
| Open Space: | N | DFL | N |
| Historic Property: | N | Remodel Property: | N |
| Multi-Family Redevelopment: | N | | |
| Township: | 29N | Section: | 3 |
| Range: | 1W |
Location |
| Address: | 30 MAY ST PORT HADLOCK, WA 98339 | Mapsco: | 014/011 |
| Neighborhood: | CHALMER'S 1ST & CHALMER'S 2ND | Map ID: | |
| Neighborhood CD: | 4225 |
Owner |
| Name: | SHELLY LYNN BROWN | Owner ID: | 103147 |
| Mailing Address: | PO BOX 756 PORT HADLOCK, WA 98339-0756 | % Ownership: | 100.0000000000% |
| | | Exemptions: | |
Pay Tax Due
There is currently No Amount Due on this property.
Taxes and Assessment Details
Property Tax Information as of
10/24/2025
Click on "Statement Details" to expand or collapse a tax statement.
* Please enter a valid date ** Please enter a valid date *
Statement Details |
| | TOTAL: | $0.00 | $0.00 | $0.00 | $0.00 | $0.00 | $0.00 |
|
| | $0.00 | $0.00 | $0.00 | $0.00 | $0.00 | $0.00 |
Values
| (+) Improvement Homesite Value: | + | $0 | |
| (+) Improvement Non-Homesite Value: | + | $13,003 | |
| (+) Land Homesite Value: | + | $0 | |
| (+) Land Non-Homesite Value: | + | $101,200 | |
| (+) Curr Use (HS): | + | $0 | $0 |
| (+) Curr Use (NHS): | + | $0 | $0 |
| | | -------------------------- | |
| (=) Market Value: | = | $114,203 | |
| (–) Productivity Loss: | – | $0 | |
| | | -------------------------- | |
| (=) Subtotal: | = | $114,203 | |
| (+) Senior Appraised Value: | + | $0 | |
| (+) Non-Senior Appraised Value: | + | $114,203 | |
| | | -------------------------- | |
| (=) Total Appraised Value: | = | $114,203 | |
| (–) Senior Exemption Loss: | – | $0 | |
| (–) Exemption Loss: | – | $0 | |
| | | -------------------------- | |
| (=) Taxable Value: | = | $114,203 | |
Taxing Jurisdiction
| Owner: | SHELLY LYNN BROWN | | |
| % Ownership: | 100.0000000000% | | |
| Total Value: | N/A | | |
| Tax Area: | 0211 - 1-49F1E1H2L1 |
| CE | COUNTY CURRENT EXPENSE | N/A | N/A | N/A | N/A | | |
| CNTYDD | DEVELOPMENTAL DISABILITIES | N/A | N/A | N/A | N/A | | |
| CNTYVET | VETERANS RELIEF | N/A | N/A | N/A | N/A | | |
| MENTAL | MENTAL HEALTH | N/A | N/A | N/A | N/A | | |
| ROADS | COUNTY ROADS | N/A | N/A | N/A | N/A | | |
| ROADSCU | COUNTY ROADS TO CUR EXP | N/A | N/A | N/A | N/A | | |
| HOSP2CASH | HOSP DIST #2 GENERAL | N/A | N/A | N/A | N/A | | |
| SCH49CP | SCHOOL DIST #49 CAP PROJ | N/A | N/A | N/A | N/A | | |
| SCH49MO | SCHOOL DIST #49 EP & O | N/A | N/A | N/A | N/A | | |
| CONSERVE | CONSERVATION FUTURES | N/A | N/A | N/A | N/A | | |
| EMS1 | FIRE DIST #1 EMS | N/A | N/A | N/A | N/A | | |
| FD1 | FIRE DIST #1 GENERAL | N/A | N/A | N/A | N/A | | |
| LIB1 | LIBRARY DIST #1 GENERAL | N/A | N/A | N/A | N/A | | |
| PORTPT | PORT OF PT GENERAL | N/A | N/A | N/A | N/A | | |
| PORTPTIDD | PORT OF PT IDD 2019 | N/A | N/A | N/A | N/A | | |
| PUD1 | PUD #1 GENERAL | N/A | N/A | N/A | N/A | | |
| STATE | STATE SCHOOL PART 1 | N/A | N/A | N/A | N/A | | |
| STATE2 | STATE SCHOOL PART 2 | N/A | N/A | N/A | N/A | | |
| | Total Tax Rate: | N/A | | | | | |
| | | | | Taxes w/Current Exemptions: | N/A | | |
| | | | | Taxes w/o Exemptions: | N/A | | |
Improvement / Building
| Improvement #1: | Manufactured Home | State Code: | 11 | 924.0 sqft | Value: | $13,003 |
| Bathrooms (#): | 2 (FULL) | Bedrooms (#): | 2 | | Exterior Wall: | METAL | Fireplace: | WD ST-AVG | | Floor Construction: | FRAME | Foundation: | PO&BL | | Heating/Cooling: | F/A | Interior Finish: | FIN | | Roof Cover: | METAL |   |   |
|
| | Type | Description | Class CD | Sub Class CD | Year Built | Area |
| | MA | Main Area | 2 | MSG | 1979 | 924.0 |
| | MWPOR | MH Wood Porch | 2 | * | 1979 | 32.0 |
Sketch
Property Image
Land
| 1 | 4225-1288S | 2 Lot Sites Chalmers 1st & Blks 7-12 Chalmers 2nd | 0.0000 | 0.00 | 0.00 | 0.00 | 1.00 | $88,000 | $0 |
| 2 | 4225-1187L | Addn 25x100 Lots (Behind Frontage Site) | 0.0000 | 0.00 | 0.00 | 0.00 | 2.00 | $13,200 | $0 |
Roll Value History
| 2025 | N/A | N/A | N/A | N/A | N/A |
| 2024 | $12,412 | $96,600 | $0 | $109,012 | $109,012 |
| 2023 | $12,412 | $87,000 | $0 | $99,412 | $99,412 |
| 2022 | $13,744 | $72,000 | $0 | $85,744 | $85,744 |
| 2021 | $11,453 | $57,600 | $0 | $69,053 | $69,053 |
Deed and Sales History
| 1 | 08/11/2020 | SWD | Statutory Warranty Deed | GINA G GOLDEN | SHELLY LYNN BROWN | | | $68,000.00 | 134904 | |
| 2 | 12/27/2016 | LOP | Lack of Probate | KENNETH T GOLDEN | GINA G GOLDEN | | | | 128234 | |
| 3 | 08/25/2000 | SWD | Statutory Warranty Deed | CLARKE, MICHAEL | GOLDEN, KENNETH T/GINA G | 0 | 0 | $35,401.00 | 90426 | 0 |
| 4 | 06/30/1994 | SWD | Statutory Warranty Deed | BASORA, OZZIE/TRUST | CLARKE, MICHAEL | 0 | 0 | $38,500.00 | 74567 | 0 |
Payout Agreement
| No payout information available.. |