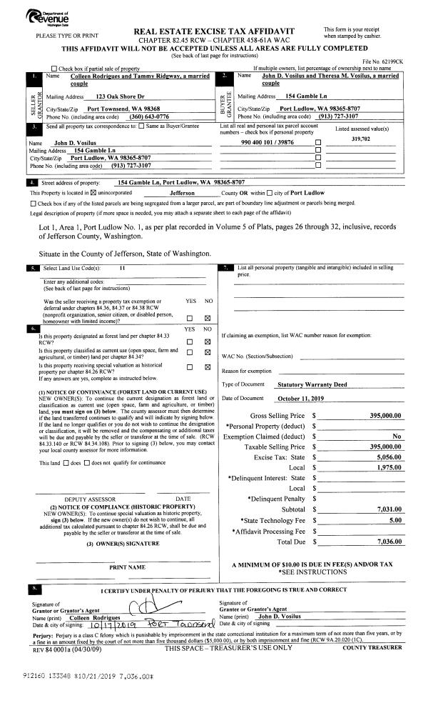
Property
Account |
| Property ID: | 26305 | Abbreviated Legal Description: | CHALMER'S 2ND ADDITION BLK 9 LOTS 14,15,16,17 |
| Parcel # / Geo ID: | 942900905 | Agent Code: | |
| Type: | Real | | |
| Tax Area: | 0211 - 1-49F1E1H2L1 | Land Use Code | 11 |
| Open Space: | N | DFL | N |
| Historic Property: | N | Remodel Property: | N |
| Multi-Family Redevelopment: | N | | |
| Township: | 29N | Section: | 3 |
| Range: | 1W |
Location |
| Address: | 90 THOMAS DR PORT HADLOCK, WA 98339 | Mapsco: | 015/015 |
| Neighborhood: | CHALMER'S 1ST & CHALMER'S 2ND | Map ID: | |
| Neighborhood CD: | 4225 |
Owner |
| Name: | JACOB & HOLLY BAGGE | Owner ID: | 102703 |
| Mailing Address: | 90 THOMAS DR PORT HADLOCK, WA 98339-9559 | % Ownership: | 100.0000000000% |
| | | Exemptions: | |
Pay Tax Due
There is currently No Amount Due on this property.
Taxes and Assessment Details
Property Tax Information as of
10/24/2025
Click on "Statement Details" to expand or collapse a tax statement.
* Please enter a valid date ** Please enter a valid date *
Statement Details |
| | TOTAL: | $0.00 | $0.00 | $0.00 | $0.00 | $0.00 | $0.00 |
|
| | $0.00 | $0.00 | $0.00 | $0.00 | $0.00 | $0.00 |
Values
| (+) Improvement Homesite Value: | + | $0 | |
| (+) Improvement Non-Homesite Value: | + | $258,477 | |
| (+) Land Homesite Value: | + | $0 | |
| (+) Land Non-Homesite Value: | + | $101,200 | |
| (+) Curr Use (HS): | + | $0 | $0 |
| (+) Curr Use (NHS): | + | $0 | $0 |
| | | -------------------------- | |
| (=) Market Value: | = | $359,677 | |
| (–) Productivity Loss: | – | $0 | |
| | | -------------------------- | |
| (=) Subtotal: | = | $359,677 | |
| (+) Senior Appraised Value: | + | $0 | |
| (+) Non-Senior Appraised Value: | + | $359,677 | |
| | | -------------------------- | |
| (=) Total Appraised Value: | = | $359,677 | |
| (–) Senior Exemption Loss: | – | $0 | |
| (–) Exemption Loss: | – | $0 | |
| | | -------------------------- | |
| (=) Taxable Value: | = | $359,677 | |
Taxing Jurisdiction
| Owner: | JACOB & HOLLY BAGGE | | |
| % Ownership: | 100.0000000000% | | |
| Total Value: | N/A | | |
| Tax Area: | 0211 - 1-49F1E1H2L1 |
| CE | COUNTY CURRENT EXPENSE | N/A | N/A | N/A | N/A | | |
| CNTYDD | DEVELOPMENTAL DISABILITIES | N/A | N/A | N/A | N/A | | |
| CNTYVET | VETERANS RELIEF | N/A | N/A | N/A | N/A | | |
| MENTAL | MENTAL HEALTH | N/A | N/A | N/A | N/A | | |
| ROADS | COUNTY ROADS | N/A | N/A | N/A | N/A | | |
| ROADSCU | COUNTY ROADS TO CUR EXP | N/A | N/A | N/A | N/A | | |
| HOSP2CASH | HOSP DIST #2 GENERAL | N/A | N/A | N/A | N/A | | |
| SCH49CP | SCHOOL DIST #49 CAP PROJ | N/A | N/A | N/A | N/A | | |
| SCH49MO | SCHOOL DIST #49 EP & O | N/A | N/A | N/A | N/A | | |
| CONSERVE | CONSERVATION FUTURES | N/A | N/A | N/A | N/A | | |
| EMS1 | FIRE DIST #1 EMS | N/A | N/A | N/A | N/A | | |
| FD1 | FIRE DIST #1 GENERAL | N/A | N/A | N/A | N/A | | |
| LIB1 | LIBRARY DIST #1 GENERAL | N/A | N/A | N/A | N/A | | |
| PORTPT | PORT OF PT GENERAL | N/A | N/A | N/A | N/A | | |
| PORTPTIDD | PORT OF PT IDD 2019 | N/A | N/A | N/A | N/A | | |
| PUD1 | PUD #1 GENERAL | N/A | N/A | N/A | N/A | | |
| STATE | STATE SCHOOL PART 1 | N/A | N/A | N/A | N/A | | |
| STATE2 | STATE SCHOOL PART 2 | N/A | N/A | N/A | N/A | | |
| | Total Tax Rate: | N/A | | | | | |
| | | | | Taxes w/Current Exemptions: | N/A | | |
| | | | | Taxes w/o Exemptions: | N/A | | |
Improvement / Building
| Improvement #1: | Residential Bldg | State Code: | 11 | 1296.0 sqft | Value: | $258,477 |
| Bathrooms (#): | 1 (FULL) | Bedrooms (#): | 3 | | Exterior Wall: | PL/T1 | Fireplace: | WD ST-AVG | | Floor Construction: | FRAME | Foundation: | CONPR | | Heating/Cooling: | ELBB | Inside Verify: | YES-FIX | | Interior Finish: | FIN | Roof Cover: | METAL |
|
| | Type | Description | Class CD | Sub Class CD | Year Built | Area |
| | MA | Main Area | 4 | 1S | 1982 | 1296.0 |
| | HDECK | House Deck | 4 | * | 1982 | 48.0 |
| | HENCL | House Enclosure | 4 | * | 1982 | 444.0 |
Sketch
Property Image
Land
| 1 | 4225-1288S | 2 Lot Sites Chalmers 1st & Blks 7-12 Chalmers 2nd | 0.0000 | 0.00 | 0.00 | 0.00 | 1.00 | $88,000 | $0 |
| 2 | 4225-1187L | Addn 25x100 Lots (Behind Frontage Site) | 0.0000 | 0.00 | 0.00 | 0.00 | 2.00 | $13,200 | $0 |
Roll Value History
| 2025 | N/A | N/A | N/A | N/A | N/A |
| 2024 | $246,728 | $96,600 | $0 | $343,328 | $343,328 |
| 2023 | $246,728 | $87,000 | $0 | $333,728 | $333,728 |
| 2022 | $255,178 | $72,000 | $0 | $327,178 | $327,178 |
| 2021 | $212,648 | $57,600 | $0 | $270,248 | $270,248 |
Deed and Sales History
| 1 | 05/26/2020 | SWD | Statutory Warranty Deed | JIN H LEE | JACOB & HOLLY BAGGE | | | $270,000.00 | 134406 | |
| 2 | 07/25/2008 | SWD | Statutory Warranty Deed | MORTGAGE GURANTY INSURANC | LEE, JIN HWA/TAE KUE | | | $167,500.00 | 111672 | 0 |
| 3 | 03/26/2008 | SWD | Statutory Warranty Deed | U S BANK NATIONAL ASSOC T | MORTGAGE GUARANTY INS CORP | | | $192,680.00 | 111674 | 0 |
| 4 | 08/20/2007 | WD | Warranty Deed | NORTHWEST TRUSTEE SERVICE | US BANK NATIONAL ASSOC/TRTEE | 0 | 0 | $174,030.00 | 109911 | 0 |
| 5 | 06/28/2005 | QCD | Quit Claim Deed | HOEPPNER, KAY | HOEPPNER, LONNIE A | | | $0.00 | 104057 | 0 |
| 6 | 10/12/2001 | SWD | Statutory Warranty Deed | BODENHEIMER, LUCIA AKA FI | HOEPPNER, LONNIE | 0 | 0 | $100,924.00 | 93299 | 0 |
| 7 | 10/11/2001 | QCD | Quit Claim Deed | HOEPPNER, KAY L | HOEPPNER, LONNIE A | 0 | 0 | $0.00 | 93300 | 0 |
Payout Agreement
| No payout information available.. |