Property
Account |
| Property ID: | 26313 | Abbreviated Legal Description: | CHALMER'S 2ND ADDITION BLK 12 LOTS 1 THRU 5 |
| Parcel # / Geo ID: | 942901201 | Agent Code: | |
| Type: | Real | | |
| Tax Area: | 0211 - 1-49F1E1H2L1 | Land Use Code | 11 |
| Open Space: | N | DFL | N |
| Historic Property: | N | Remodel Property: | N |
| Multi-Family Redevelopment: | N | | |
| Township: | 29N | Section: | 3 |
| Range: | 1W |
Location |
| Address: | 60 FLORA ST PORT HADLOCK, WA 98339 | Mapsco: | 015/023 |
| Neighborhood: | CHALMER'S 1ST & CHALMER'S 2ND | Map ID: | |
| Neighborhood CD: | 4225 |
Owner |
| Name: | EVAN D DOBROWSKI | Owner ID: | 93166 |
| Mailing Address: | 111 SHERMAN RD PORT LUDLOW, WA 98365-9508 | % Ownership: | 100.0000000000% |
| | | Exemptions: | |
Pay Tax Due
There is currently No Amount Due on this property.
Taxes and Assessment Details
Property Tax Information as of
10/24/2025
Click on "Statement Details" to expand or collapse a tax statement.
* Please enter a valid date ** Please enter a valid date *
Statement Details |
| | TOTAL: | $0.00 | $0.00 | $0.00 | $0.00 | $0.00 | $0.00 |
|
| | $0.00 | $0.00 | $0.00 | $0.00 | $0.00 | $0.00 |
Values
| (+) Improvement Homesite Value: | + | $0 | |
| (+) Improvement Non-Homesite Value: | + | $223,710 | |
| (+) Land Homesite Value: | + | $0 | |
| (+) Land Non-Homesite Value: | + | $102,850 | |
| (+) Curr Use (HS): | + | $0 | $0 |
| (+) Curr Use (NHS): | + | $0 | $0 |
| | | -------------------------- | |
| (=) Market Value: | = | $326,560 | |
| (–) Productivity Loss: | – | $0 | |
| | | -------------------------- | |
| (=) Subtotal: | = | $326,560 | |
| (+) Senior Appraised Value: | + | $0 | |
| (+) Non-Senior Appraised Value: | + | $326,560 | |
| | | -------------------------- | |
| (=) Total Appraised Value: | = | $326,560 | |
| (–) Senior Exemption Loss: | – | $0 | |
| (–) Exemption Loss: | – | $0 | |
| | | -------------------------- | |
| (=) Taxable Value: | = | $326,560 | |
Taxing Jurisdiction
| Owner: | EVAN D DOBROWSKI | | |
| % Ownership: | 100.0000000000% | | |
| Total Value: | N/A | | |
| Tax Area: | 0211 - 1-49F1E1H2L1 |
| CE | COUNTY CURRENT EXPENSE | N/A | N/A | N/A | N/A | | |
| CNTYDD | DEVELOPMENTAL DISABILITIES | N/A | N/A | N/A | N/A | | |
| CNTYVET | VETERANS RELIEF | N/A | N/A | N/A | N/A | | |
| MENTAL | MENTAL HEALTH | N/A | N/A | N/A | N/A | | |
| ROADS | COUNTY ROADS | N/A | N/A | N/A | N/A | | |
| ROADSCU | COUNTY ROADS TO CUR EXP | N/A | N/A | N/A | N/A | | |
| HOSP2CASH | HOSP DIST #2 GENERAL | N/A | N/A | N/A | N/A | | |
| SCH49CP | SCHOOL DIST #49 CAP PROJ | N/A | N/A | N/A | N/A | | |
| SCH49MO | SCHOOL DIST #49 EP & O | N/A | N/A | N/A | N/A | | |
| CONSERVE | CONSERVATION FUTURES | N/A | N/A | N/A | N/A | | |
| EMS1 | FIRE DIST #1 EMS | N/A | N/A | N/A | N/A | | |
| FD1 | FIRE DIST #1 GENERAL | N/A | N/A | N/A | N/A | | |
| LIB1 | LIBRARY DIST #1 GENERAL | N/A | N/A | N/A | N/A | | |
| PORTPT | PORT OF PT GENERAL | N/A | N/A | N/A | N/A | | |
| PORTPTIDD | PORT OF PT IDD 2019 | N/A | N/A | N/A | N/A | | |
| PUD1 | PUD #1 GENERAL | N/A | N/A | N/A | N/A | | |
| STATE | STATE SCHOOL PART 1 | N/A | N/A | N/A | N/A | | |
| STATE2 | STATE SCHOOL PART 2 | N/A | N/A | N/A | N/A | | |
| | Total Tax Rate: | N/A | | | | | |
| | | | | Taxes w/Current Exemptions: | N/A | | |
| | | | | Taxes w/o Exemptions: | N/A | | |
Improvement / Building
| Improvement #1: | Residential Bldg | State Code: | 11 | 1344.0 sqft | Value: | $223,710 |
| Bathrooms (#): | 2 (FULL) | Bedrooms (#): | 3 | | Exterior Wall: | SI/ST | Floor Construction: | FRAME | | Foundation: | CONPR | Heating/Cooling: | ELBB | | Roof Cover: | COMP |   |   |
|
| | Type | Description | Class CD | Sub Class CD | Year Built | Area |
| | MA | Main Area | 3 | 1S | 1991 | 1344.0 |
| | GATT | House Attached Garage | 3 | 1S | 1991 | 1000.0 |
Sketch
Property Image
Land
| 1 | 4225-1288S | 2 Lot Sites Chalmers 1st & Blks 7-12 Chalmers 2nd | 0.0000 | 0.00 | 0.00 | 0.00 | 1.00 | $88,000 | $0 |
| 2 | 4225-1187L | Addn 25x100 Lots (Behind Frontage Site) | 0.0000 | 0.00 | 0.00 | 0.00 | 1.00 | $14,850 | $0 |
Roll Value History
| 2025 | N/A | N/A | N/A | N/A | N/A |
| 2024 | $213,542 | $98,175 | $0 | $311,717 | $311,717 |
| 2023 | $213,542 | $88,500 | $0 | $302,042 | $302,042 |
| 2022 | $193,218 | $73,500 | $0 | $266,718 | $266,718 |
| 2021 | $161,015 | $58,800 | $0 | $219,815 | $219,815 |
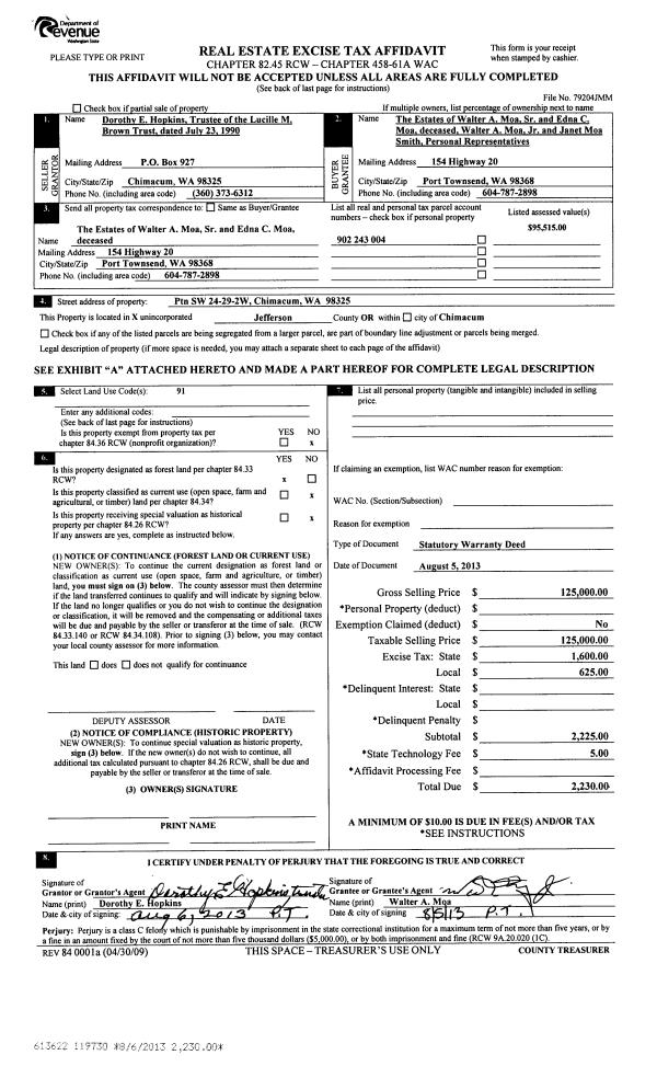
Deed and Sales History
| 1 | 02/06/2015 | SPWD | Special Warranty Deed | FEDERAL NATIONAL MORTGAGE ASC | EVAN D DOBROWSKI | | | $158,500.00 | 122693 | |
| 2 | 05/21/2014 | TRED | Trustee Deed | NORTHWEST TRUSTEE SERVICES INC | FEDERAL NATIONAL MORTGAGE ASC | | | | 121223 | |
| 3 | 01/04/2005 | QCD | Quit Claim Deed | HECK, HELEN I | HECK, ROBERT D | 0 | 0 | $159,000.00 | 102444 | 0 |
| 4 | 01/27/1997 | SWD | Statutory Warranty Deed | ANDERSON, WILLIAM & PAMEL | HECK, HELEN I | 0 | 0 | $103,000.00 | 81412 | 0 |
| 5 | 08/06/1993 | WD | Warranty Deed | ANDERSON,WILLIAM F/PAMELA | W F/P E ANDERSON REV LIV TRUST | 0 | 0 | $0.00 | 71990 | 0 |
Payout Agreement
| No payout information available.. |