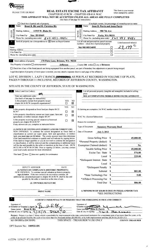
Property
Account |
| Property ID: | 26354 | Abbreviated Legal Description: | CHALMER'S 2ND ADDITION BLK 17 LOTS 1 THRU 8 |
| Parcel # / Geo ID: | 942901703 | Agent Code: | |
| Type: | Real | | |
| Tax Area: | 0211 - 1-49F1E1H2L1 | Land Use Code | 11 |
| Open Space: | N | DFL | N |
| Historic Property: | N | Remodel Property: | N |
| Multi-Family Redevelopment: | N | | |
| Township: | 29N | Section: | 3 |
| Range: | 1W |
Location |
| Address: | 11088 RHODY DR PORT HADLOCK, WA 98339 | Mapsco: | 016/028 |
| Neighborhood: | CHALMER'S 1ST & CHALMER'S 2ND | Map ID: | |
| Neighborhood CD: | 4225 |
Owner |
| Name: | CURTIS MAXFIELD | Owner ID: | 93106 |
| Mailing Address: | 11088 RHODY DR PORT HADLOCK, WA 98339-9748 | % Ownership: | 100.0000000000% |
| | | Exemptions: | SNR/DSBL |
Pay Tax Due
There is currently No Amount Due on this property.
Taxes and Assessment Details
Property Tax Information as of
10/24/2025
Click on "Statement Details" to expand or collapse a tax statement.
* Please enter a valid date ** Please enter a valid date *
Statement Details |
| | TOTAL: | $0.00 | $0.00 | $0.00 | $0.00 | $0.00 | $0.00 |
|
| | $0.00 | $0.00 | $0.00 | $0.00 | $0.00 | $0.00 |
Values
| (+) Improvement Homesite Value: | + | $202,585 | |
| (+) Improvement Non-Homesite Value: | + | $0 | |
| (+) Land Homesite Value: | + | $146,300 | |
| (+) Land Non-Homesite Value: | + | $0 | |
| (+) Curr Use (HS): | + | $0 | $0 |
| (+) Curr Use (NHS): | + | $0 | $0 |
| | | -------------------------- | |
| (=) Market Value: | = | $348,885 | |
| (–) Productivity Loss: | – | $0 | |
| | | -------------------------- | |
| (=) Subtotal: | = | $348,885 | |
| (+) Senior Appraised Value: | + | $151,198 | |
| (+) Non-Senior Appraised Value: | + | $0 | |
| | | -------------------------- | |
| (=) Total Appraised Value: | = | $151,198 | |
| (–) Senior Exemption Loss: | – | $0 | |
| (–) Exemption Loss: | – | $0 | |
| | | -------------------------- | |
| (=) Taxable Value: | = | $151,198 | |
Taxing Jurisdiction
| Owner: | CURTIS MAXFIELD | | |
| % Ownership: | 100.0000000000% | | |
| Total Value: | N/A | | |
| Tax Area: | 0211 - 1-49F1E1H2L1 |
| CE | COUNTY CURRENT EXPENSE | N/A | N/A | N/A | N/A | | |
| CNTYDD | DEVELOPMENTAL DISABILITIES | N/A | N/A | N/A | N/A | | |
| CNTYVET | VETERANS RELIEF | N/A | N/A | N/A | N/A | | |
| MENTAL | MENTAL HEALTH | N/A | N/A | N/A | N/A | | |
| ROADS | COUNTY ROADS | N/A | N/A | N/A | N/A | | |
| ROADSCU | COUNTY ROADS TO CUR EXP | N/A | N/A | N/A | N/A | | |
| HOSP2CASH | HOSP DIST #2 GENERAL | N/A | N/A | N/A | N/A | | |
| SCH49CP | SCHOOL DIST #49 CAP PROJ | N/A | N/A | N/A | N/A | | |
| SCH49MO | SCHOOL DIST #49 EP & O | N/A | N/A | N/A | N/A | | |
| CONSERVE | CONSERVATION FUTURES | N/A | N/A | N/A | N/A | | |
| EMS1 | FIRE DIST #1 EMS | N/A | N/A | N/A | N/A | | |
| FD1 | FIRE DIST #1 GENERAL | N/A | N/A | N/A | N/A | | |
| LIB1 | LIBRARY DIST #1 GENERAL | N/A | N/A | N/A | N/A | | |
| PORTPT | PORT OF PT GENERAL | N/A | N/A | N/A | N/A | | |
| PORTPTIDD | PORT OF PT IDD 2019 | N/A | N/A | N/A | N/A | | |
| PUD1 | PUD #1 GENERAL | N/A | N/A | N/A | N/A | | |
| STATE | STATE SCHOOL PART 1 | N/A | N/A | N/A | N/A | | |
| STATE2 | STATE SCHOOL PART 2 | N/A | N/A | N/A | N/A | | |
| | Total Tax Rate: | N/A | | | | | |
| | | | | Taxes w/Current Exemptions: | N/A | | |
| | | | | Taxes w/o Exemptions: | N/A | | |
Improvement / Building
| Improvement #1: | Residential Bldg | State Code: | 11 | 1296.0 sqft | Value: | $202,585 |
| Bathrooms (#): | 1 (FULL) | Bathrooms (#): | 1 (HALF) | | Bedrooms (#): | 2 | Exterior Wall: | PL/T1 | | Floor Construction: | FRAME | Foundation: | CONPR | | Heating/Cooling: | ELBB | Inside Verify: | YES-FIX | | Roof Cover: | COMP |   |   |
|
| | Type | Description | Class CD | Sub Class CD | Year Built | Area |
| | MA | Main Area | 3 | 1S | 1991 | 1296.0 |
| | HWPOR | House Wood Porch | 3 | * | 1991 | 216.0 |
| | HDECK | House Deck | 3 | * | 1991 | 348.0 |
| | OTHER | Other | * | * | 1991 | 0.0 |
Sketch
Property Image
Land
| 1 | 4225-1287S | 2 Lot Sites (40 x 100) | 0.0000 | 0.00 | 0.00 | 0.00 | 1.00 | $93,500 | $0 |
| 2 | 4225-1186L | Addn 40x100 Lots (Behind Frontage Site) | 0.0000 | 0.00 | 0.00 | 0.00 | 6.00 | $52,800 | $0 |
Roll Value History
| 2025 | N/A | N/A | N/A | N/A | N/A |
| 2024 | $193,376 | $139,650 | $0 | $333,026 | $151,198 |
| 2023 | $193,376 | $128,000 | $0 | $321,376 | $98,279 |
| 2022 | $172,390 | $113,000 | $0 | $285,390 | $151,198 |
| 2021 | $143,658 | $82,800 | $0 | $226,458 | $151,198 |
Deed and Sales History
| 1 | 01/28/2015 | SPWD | Special Warranty Deed | FEDERAL NATIONAL MORTGAGE ASSOC | CURTIS MAXFIELD | | | $145,000.00 | 122629 | |
| 2 | 11/20/2014 | TRED | Trustee Deed | QUALITY LOAN SERVICE CORP | FEDERAL NATIONAL MORTGAGE ASSOC | | | | 0 | |
| 3 | 10/26/2005 | QCD | Quit Claim Deed | KJOSEN, MARILYN | KJOSEN, PETER M | 0 | 0 | $0.00 | 105178 | 0 |
| 4 | 10/27/1993 | SWD | Statutory Warranty Deed | BENTON, GREGORY L/TIFFANY | KJOSEN, PETER M/MARILYN | 0 | 0 | $89,500.00 | 72509 | 0 |
Payout Agreement
| No payout information available.. |