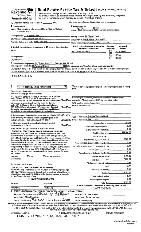
Property
Account |
| Property ID: | 26429 | Abbreviated Legal Description: | CHALMER'S 2ND ADDITION BLK 35 LOT 16(LESS E'LY 70') & LOT 17 & PT VAC. ST. LESS RD R OF W |
| Parcel # / Geo ID: | 942903506 | Agent Code: | |
| Type: | Real | | |
| Tax Area: | 0211 - 1-49F1E1H2L1 | Land Use Code | 66 |
| Open Space: | N | DFL | N |
| Historic Property: | N | Remodel Property: | N |
| Multi-Family Redevelopment: | N | | |
| Township: | 29N | Section: | 3 |
| Range: | 1W |
Location |
| Address: | 10712 RHODY DR PORT HADLOCK, WA 98339 | Mapsco: | 018/023 |
| Neighborhood: | RHODY DR / NESS CORNER RD COMMERCIAL AREA | Map ID: | |
| Neighborhood CD: | 4225C |
Owner |
| Name: | KISMET HOLDINGS LLC | Owner ID: | 106654 |
| Mailing Address: | 747 SPRUCE ST EDMONDS, WA 98020-4032 | % Ownership: | 100.0000000000% |
| | | Exemptions: | |
Pay Tax Due
There is currently No Amount Due on this property.
Taxes and Assessment Details
Property Tax Information as of
10/24/2025
Click on "Statement Details" to expand or collapse a tax statement.
* Please enter a valid date ** Please enter a valid date *
Statement Details |
| | TOTAL: | $0.00 | $0.00 | $0.00 | $0.00 | $0.00 | $0.00 |
|
| | $0.00 | $0.00 | $0.00 | $0.00 | $0.00 | $0.00 |
Values
| (+) Improvement Homesite Value: | + | $0 | |
| (+) Improvement Non-Homesite Value: | + | $690,561 | |
| (+) Land Homesite Value: | + | $0 | |
| (+) Land Non-Homesite Value: | + | $224,758 | |
| (+) Curr Use (HS): | + | $0 | $0 |
| (+) Curr Use (NHS): | + | $0 | $0 |
| | | -------------------------- | |
| (=) Market Value: | = | $915,319 | |
| (–) Productivity Loss: | – | $0 | |
| | | -------------------------- | |
| (=) Subtotal: | = | $915,319 | |
| (+) Senior Appraised Value: | + | $0 | |
| (+) Non-Senior Appraised Value: | + | $915,319 | |
| | | -------------------------- | |
| (=) Total Appraised Value: | = | $915,319 | |
| (–) Senior Exemption Loss: | – | $0 | |
| (–) Exemption Loss: | – | $0 | |
| | | -------------------------- | |
| (=) Taxable Value: | = | $915,319 | |
Taxing Jurisdiction
| Owner: | KISMET HOLDINGS LLC | | |
| % Ownership: | 100.0000000000% | | |
| Total Value: | N/A | | |
| Tax Area: | 0211 - 1-49F1E1H2L1 |
| CE | COUNTY CURRENT EXPENSE | N/A | N/A | N/A | N/A | | |
| CNTYDD | DEVELOPMENTAL DISABILITIES | N/A | N/A | N/A | N/A | | |
| CNTYVET | VETERANS RELIEF | N/A | N/A | N/A | N/A | | |
| MENTAL | MENTAL HEALTH | N/A | N/A | N/A | N/A | | |
| ROADS | COUNTY ROADS | N/A | N/A | N/A | N/A | | |
| ROADSCU | COUNTY ROADS TO CUR EXP | N/A | N/A | N/A | N/A | | |
| HOSP2CASH | HOSP DIST #2 GENERAL | N/A | N/A | N/A | N/A | | |
| SCH49CP | SCHOOL DIST #49 CAP PROJ | N/A | N/A | N/A | N/A | | |
| SCH49MO | SCHOOL DIST #49 EP & O | N/A | N/A | N/A | N/A | | |
| CONSERVE | CONSERVATION FUTURES | N/A | N/A | N/A | N/A | | |
| EMS1 | FIRE DIST #1 EMS | N/A | N/A | N/A | N/A | | |
| FD1 | FIRE DIST #1 GENERAL | N/A | N/A | N/A | N/A | | |
| LIB1 | LIBRARY DIST #1 GENERAL | N/A | N/A | N/A | N/A | | |
| PORTPT | PORT OF PT GENERAL | N/A | N/A | N/A | N/A | | |
| PORTPTIDD | PORT OF PT IDD 2019 | N/A | N/A | N/A | N/A | | |
| PUD1 | PUD #1 GENERAL | N/A | N/A | N/A | N/A | | |
| STATE | STATE SCHOOL PART 1 | N/A | N/A | N/A | N/A | | |
| STATE2 | STATE SCHOOL PART 2 | N/A | N/A | N/A | N/A | | |
| | Total Tax Rate: | N/A | | | | | |
| | | | | Taxes w/Current Exemptions: | N/A | | |
| | | | | Taxes w/o Exemptions: | N/A | | |
Improvement / Building
| Improvement #1: | Commercial/Industrial/Government Bldg | State Code: | 66 | 3928.0 sqft | Value: | $690,561 |
| | Type | Description | Class CD | Sub Class CD | Year Built | Area |
| | M&S | Commercial (M&S) | 4 | * | 1999 | 2250.0 |
| | M&S | Commercial (M&S) | 4 | | 1999 | 1678.0 |
Sketch
Property Image
Land
| 1 | 4225-6275Q | Commercial Frtg on Rhody Dr & Ness Corner Rd | 0.7069 | 30793.00 | 0.00 | 0.00 | 0.00 | $224,758 | $0 |
Roll Value History
| 2025 | N/A | N/A | N/A | N/A | N/A |
| 2024 | $690,561 | $224,758 | $0 | $915,319 | $915,319 |
| 2023 | $664,035 | $219,758 | $0 | $883,793 | $883,793 |
| 2022 | $571,803 | $183,965 | $0 | $755,768 | $755,768 |
| 2021 | $224,225 | $140,474 | $0 | $364,699 | $364,699 |
Deed and Sales History
| 1 | 03/16/2022 | REC | Real Estate Contract | MARTIN J PETERSON | KISMET HOLDINGS LLC | | | $927,000.00 | 138751 | |
| 2 | 10/15/2010 | QCD | Quit Claim Deed | PETERSON TRUSTE, MARTIN J | PETERSON, MARTIN J | 0 | 0 | $0.00 | 115091 | 0 |
| 3 | 04/22/1998 | SWD | Statutory Warranty Deed | TAYLOR, MAGGIE JAY FITZHU | PETERSON FAMILY TRUST | 0 | 0 | $136,300.00 | 84304 | 0 |
Payout Agreement
| No payout information available.. |