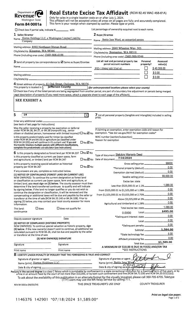
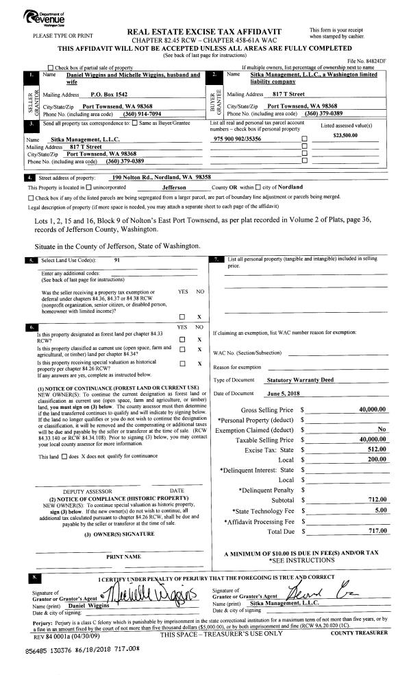
Property
Account |
| Property ID: | 26444 | Abbreviated Legal Description: | CHALMER'S 2ND ADDITION BLK 37 LOTS 18 THRU 21 & BLK 38-LOT 8(LS R/W) TGTH W/N30' OF VAC SIMMS ST ADJ/LOTS 19-21 & ALL OF VAC SIMMS ST LYING BTWN LOTS 18 & 8 BND THRU SDR2023-00164 |
| Parcel # / Geo ID: | 942903703 | Agent Code: | |
| Type: | Real | | |
| Tax Area: | 0211 - 1-49F1E1H2L1 | Land Use Code | 11 |
| Open Space: | N | DFL | N |
| Historic Property: | N | Remodel Property: | N |
| Multi-Family Redevelopment: | N | | |
| Township: | 29N | Section: | 3 |
| Range: | 1W |
Location |
| Address: | 40 SOMMERVILLE RD CHIMACUM, WA 98325 | Mapsco: | 018/038 |
| Neighborhood: | RHODY DR / NESS CORNER RD COMMERCIAL AREA | Map ID: | |
| Neighborhood CD: | 4225C |
Owner |
| Name: | CASE P SWANSON | Owner ID: | 106657 |
| Mailing Address: | TREVOR M MUNSON 221 LILLIAN ST CHIMACUM, WA 98325-7745 | % Ownership: | 100.0000000000% |
| | | Exemptions: | |
Pay Tax Due
There is currently No Amount Due on this property.
Taxes and Assessment Details
Property Tax Information as of
10/24/2025
Click on "Statement Details" to expand or collapse a tax statement.
* Please enter a valid date ** Please enter a valid date *
Statement Details |
| | TOTAL: | $0.00 | $0.00 | $0.00 | $0.00 | $0.00 | $0.00 |
|
| | $0.00 | $0.00 | $0.00 | $0.00 | $0.00 | $0.00 |
Values
| (+) Improvement Homesite Value: | + | $0 | |
| (+) Improvement Non-Homesite Value: | + | $306,906 | |
| (+) Land Homesite Value: | + | $0 | |
| (+) Land Non-Homesite Value: | + | $213,073 | |
| (+) Curr Use (HS): | + | $0 | $0 |
| (+) Curr Use (NHS): | + | $0 | $0 |
| | | -------------------------- | |
| (=) Market Value: | = | $519,979 | |
| (–) Productivity Loss: | – | $0 | |
| | | -------------------------- | |
| (=) Subtotal: | = | $519,979 | |
| (+) Senior Appraised Value: | + | $0 | |
| (+) Non-Senior Appraised Value: | + | $519,979 | |
| | | -------------------------- | |
| (=) Total Appraised Value: | = | $519,979 | |
| (–) Senior Exemption Loss: | – | $0 | |
| (–) Exemption Loss: | – | $0 | |
| | | -------------------------- | |
| (=) Taxable Value: | = | $519,979 | |
Taxing Jurisdiction
| Owner: | CASE P SWANSON | | |
| % Ownership: | 100.0000000000% | | |
| Total Value: | N/A | | |
| Tax Area: | 0211 - 1-49F1E1H2L1 |
| CE | COUNTY CURRENT EXPENSE | N/A | N/A | N/A | N/A | | |
| CNTYDD | DEVELOPMENTAL DISABILITIES | N/A | N/A | N/A | N/A | | |
| CNTYVET | VETERANS RELIEF | N/A | N/A | N/A | N/A | | |
| MENTAL | MENTAL HEALTH | N/A | N/A | N/A | N/A | | |
| ROADS | COUNTY ROADS | N/A | N/A | N/A | N/A | | |
| ROADSCU | COUNTY ROADS TO CUR EXP | N/A | N/A | N/A | N/A | | |
| HOSP2CASH | HOSP DIST #2 GENERAL | N/A | N/A | N/A | N/A | | |
| SCH49CP | SCHOOL DIST #49 CAP PROJ | N/A | N/A | N/A | N/A | | |
| SCH49MO | SCHOOL DIST #49 EP & O | N/A | N/A | N/A | N/A | | |
| CONSERVE | CONSERVATION FUTURES | N/A | N/A | N/A | N/A | | |
| EMS1 | FIRE DIST #1 EMS | N/A | N/A | N/A | N/A | | |
| FD1 | FIRE DIST #1 GENERAL | N/A | N/A | N/A | N/A | | |
| LIB1 | LIBRARY DIST #1 GENERAL | N/A | N/A | N/A | N/A | | |
| PORTPT | PORT OF PT GENERAL | N/A | N/A | N/A | N/A | | |
| PORTPTIDD | PORT OF PT IDD 2019 | N/A | N/A | N/A | N/A | | |
| PUD1 | PUD #1 GENERAL | N/A | N/A | N/A | N/A | | |
| STATE | STATE SCHOOL PART 1 | N/A | N/A | N/A | N/A | | |
| STATE2 | STATE SCHOOL PART 2 | N/A | N/A | N/A | N/A | | |
| | Total Tax Rate: | N/A | | | | | |
| | | | | Taxes w/Current Exemptions: | N/A | | |
| | | | | Taxes w/o Exemptions: | N/A | | |
Improvement / Building
| Improvement #1: | Residential Bldg | State Code: | 11 | 1620.0 sqft | Value: | $306,906 |
| Bathrooms (#): | 3 (FULL) | Bedrooms (#): | 2 | | Exterior Wall: | SI/ST | Foundation: | CONPR | | Heating/Cooling: | HPUMP | Roof Cover: | METAL |
|
Sketch
Property Image
Land
| 1 | 4225-6285Q | Commercial Near Rhody Dr (Secondary/Non Frontage) | 2.5054 | 109135.00 | 0.00 | 0.00 | 1.00 | $213,073 | $0 |
Roll Value History
| 2025 | N/A | N/A | N/A | N/A | N/A |
| 2024 | $83,976 | $203,388 | $0 | $287,364 | $287,364 |
| 2023 | $0 | $63,016 | $0 | $63,016 | $63,016 |
| 2022 | $0 | $63,016 | $0 | $63,016 | $63,016 |
| 2021 | $0 | $118,800 | $0 | $118,800 | $118,800 |
Deed and Sales History
| 1 | 03/15/2022 | SWD | Statutory Warranty Deed | ROBERT J DETTMER JR | CASE P SWANSON | | | $85,000.00 | 138741 | |
|   | |
| 2 | 01/31/2014 | QCD | Quit Claim Deed | | | | | | 120685 | |
| 3 | 09/23/2013 | QCD | Quit Claim Deed | | | | | | 120116 | |
| 4 | 01/29/2014 | QCD | Quit Claim Deed | | | | | | 120684 | |
| 5 | 09/23/2013 | QCD | Quit Claim Deed | | | | | | 120115 | |
| 6 | 03/04/1996 | SWD | Statutory Warranty Deed | DETTMER, ROBERT J/WILLIAM | STEWART,CHARLES C/JOY P | 0 | 0 | $29,800.00 | 78994 | 0 |
| 7 | 04/27/1993 | WD | Warranty Deed | DETTMER, ROBERT J/WILLIAM | JEFFERSON COUNTY | 0 | 0 | $0.00 | 71213 | 0 |
Payout Agreement
| No payout information available.. |