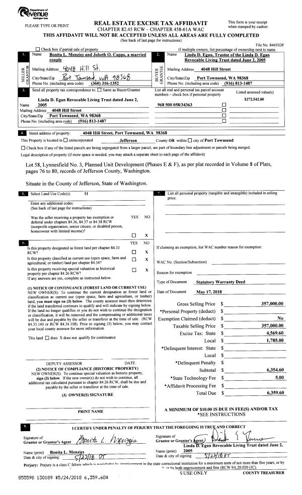
Property
Account |
| Property ID: | 26455 | Abbreviated Legal Description: | CHERRY PARK LOTS 1 - 5 SUBJ TO EASE 12% IMPS/04%-LAND-TXBLE REMAINDER STATE EXEMPT |
| Parcel # / Geo ID: | 943200001 | Agent Code: | |
| Type: | Real | | |
| Tax Area: | 0110 - C-50F1E1H2 | Land Use Code | 69 |
| Open Space: | N | DFL | N |
| Historic Property: | N | Remodel Property: | N |
| Multi-Family Redevelopment: | N | | |
| Township: | 30N | Section: | 2 |
| Range: | 1W |
Location |
| Address: | 3918 SAN JUAN AVE PORT TOWNSEND, WA 98368 | Mapsco: | 014/022 |
| Neighborhood: | BROADWAY AND CHERRY PARK LP | Map ID: | |
| Neighborhood CD: | 6430 |
Owner |
| Name: | UNITY CHURCH OF PORT TOWNSENSEND | Owner ID: | 89470 |
| Mailing Address: | PO BOX 1853 PORT TOWNSEND, WA 98368 | % Ownership: | Segment Owner |
| | | Exemptions: | EX |
Pay Tax Due
There is currently No Amount Due on this property.
Taxes and Assessment Details
Property Tax Information as of
10/24/2025
Click on "Statement Details" to expand or collapse a tax statement.
* Please enter a valid date ** Please enter a valid date *
Statement Details |
| | TOTAL: | $0.00 | $0.00 | $0.00 | $0.00 | $0.00 | $0.00 |
|
| | $0.00 | $0.00 | $0.00 | $0.00 | $0.00 | $0.00 |
Values
| (+) Improvement Homesite Value: | + | $0 | |
| (+) Improvement Non-Homesite Value: | + | $195,007 | |
| (+) Land Homesite Value: | + | $0 | |
| (+) Land Non-Homesite Value: | + | $9,700 | |
| (+) Curr Use (HS): | + | $0 | $0 |
| (+) Curr Use (NHS): | + | $0 | $0 |
| | | -------------------------- | |
| (=) Market Value: | = | $204,707 | |
| (–) Productivity Loss: | – | $0 | |
| | | -------------------------- | |
| (=) Subtotal: | = | $204,707 | |
| (+) Senior Appraised Value: | + | $0 | |
| (+) Non-Senior Appraised Value: | + | $204,707 | |
| | | -------------------------- | |
| (=) Total Appraised Value: | = | $204,707 | |
| (–) Senior Exemption Loss: | – | $0 | |
| (–) Exemption Loss: | – | $204,707 | |
| | | -------------------------- | |
| (=) Taxable Value: | = | $0 | |
Taxing Jurisdiction
| Owner: | UNITY CHURCH OF PORT TOWNSENSEND | | |
| % Ownership: | 100.0000000000% | | |
| Total Value: | N/A | | |
| Tax Area: | 0110 - C-50F1E1H2 |
| CE | COUNTY CURRENT EXPENSE | N/A | N/A | N/A | N/A | | |
| CNTYDD | DEVELOPMENTAL DISABILITIES | N/A | N/A | N/A | N/A | | |
| CNTYVET | VETERANS RELIEF | N/A | N/A | N/A | N/A | | |
| MENTAL | MENTAL HEALTH | N/A | N/A | N/A | N/A | | |
| PTGEN | CITY OF PT GENERAL | N/A | N/A | N/A | N/A | | |
| PTLLL | CITY OF PT - LIBRARY LID LIFT | N/A | N/A | N/A | N/A | | |
| PTMVBOND | CITY OF PT MV BOND | N/A | N/A | N/A | N/A | | |
| HOSP2CASH | HOSP DIST #2 GENERAL | N/A | N/A | N/A | N/A | | |
| SCH50BOND | SCHOOL DIST #50 BOND 2016 | N/A | N/A | N/A | N/A | | |
| SCH50CP | SCHOOL DIST #50 CAP PROJ | N/A | N/A | N/A | N/A | | |
| SCH50MO | SCHOOL DIST #50 EP & O | N/A | N/A | N/A | N/A | | |
| CONSERVE | CONSERVATION FUTURES | N/A | N/A | N/A | N/A | | |
| EMS1 | FIRE DIST #1 EMS | N/A | N/A | N/A | N/A | | |
| FD1 | FIRE DIST #1 GENERAL | N/A | N/A | N/A | N/A | | |
| PORTPT | PORT OF PT GENERAL | N/A | N/A | N/A | N/A | | |
| PORTPTIDD | PORT OF PT IDD 2019 | N/A | N/A | N/A | N/A | | |
| PUD1 | PUD #1 GENERAL | N/A | N/A | N/A | N/A | | |
| STATE | STATE SCHOOL PART 1 | N/A | N/A | N/A | N/A | | |
| STATE2 | STATE SCHOOL PART 2 | N/A | N/A | N/A | N/A | | |
| | Total Tax Rate: | N/A | | | | | |
| | | | | Taxes w/Current Exemptions: | N/A | | |
| | | | | Taxes w/o Exemptions: | N/A | | |
Improvement / Building
| Improvement #1: | Commercial/Industrial/Government Bldg | State Code: | 18 | 10508.0 sqft | Value: | $1,625,061 |
Sketch
Property Image
Land
| 1 | 6430-1275S | Cherry Park Homesites < .33 Ac | 0.0000 | 0.00 | 0.00 | 0.00 | 1.00 | $242,500 | $0 |
Roll Value History
| 2025 | N/A | N/A | N/A | N/A | N/A |
| 2024 | $195,007 | $9,680 | $0 | $204,687 | $0 |
| 2023 | $187,207 | $9,030 | $0 | $196,237 | $0 |
| 2022 | $8,172 | $8,400 | $0 | $16,572 | $0 |
| 2021 | $6,833 | $7,250 | $0 | $14,083 | $0 |
Deed and Sales History
| 1 | 03/28/2013 | SWD | Statutory Warranty Deed | FOURSQUARE GOSPEL | UNITY CHURCH OF PORT TOWNSENSEND | | | $199,000.00 | 119048 | |
|   | |
| 2 | 10/26/1999 | SWD | Statutory Warranty Deed | KUEHNEL, DELBERT L & ELBE | INTERNATIONAL CHURCH OF THE FO | 0 | 0 | $85,000.00 | 88321 | 0 |
Payout Agreement
| No payout information available.. |