Property
Account |
| Property ID: | 26457 | Abbreviated Legal Description: | CHERRY PARK LOTS 11 & 76(S1/2 OF EA) |
| Parcel # / Geo ID: | 943200003 | Agent Code: | |
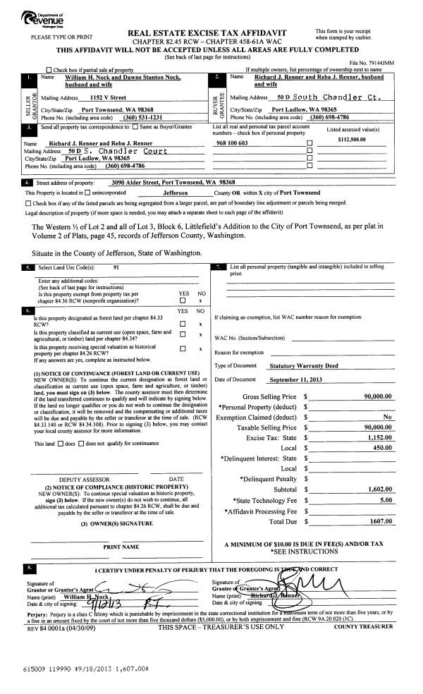
| Type: | Real | | |
| Tax Area: | 0110 - C-50F1E1H2 | Land Use Code | 11 |
| Open Space: | N | DFL | N |
| Historic Property: | N | Remodel Property: | N |
| Multi-Family Redevelopment: | N | | |
| Township: | 30N | Section: | 2 |
| Range: | 1W |
Location |
| Address: | 1276 CEDAR ST PORT TOWNSEND, WA 98368 | Mapsco: | 014/028 |
| Neighborhood: | BROADWAY AND CHERRY PARK LP | Map ID: | |
| Neighborhood CD: | 6430 |
Owner |
| Name: | LEWIS & HYLAS FAMILY TRUST | Owner ID: | 107157 |
| Mailing Address: | TIMOTHY A HYLAS TRUSTEE CAROLYN A LEWIS TRUSTEE 1276 CEDAR ST PORT TOWNSEND, WA 98368-4007 | % Ownership: | 100.0000000000% |
| | | Exemptions: | |
Pay Tax Due
There is currently No Amount Due on this property.
Taxes and Assessment Details
Property Tax Information as of
10/24/2025
Click on "Statement Details" to expand or collapse a tax statement.
* Please enter a valid date ** Please enter a valid date *
Statement Details |
| | TOTAL: | $0.00 | $0.00 | $0.00 | $0.00 | $0.00 | $0.00 |
|
| | $0.00 | $0.00 | $0.00 | $0.00 | $0.00 | $0.00 |
Values
| (+) Improvement Homesite Value: | + | $0 | |
| (+) Improvement Non-Homesite Value: | + | $333,565 | |
| (+) Land Homesite Value: | + | $0 | |
| (+) Land Non-Homesite Value: | + | $151,500 | |
| (+) Curr Use (HS): | + | $0 | $0 |
| (+) Curr Use (NHS): | + | $0 | $0 |
| | | -------------------------- | |
| (=) Market Value: | = | $485,065 | |
| (–) Productivity Loss: | – | $0 | |
| | | -------------------------- | |
| (=) Subtotal: | = | $485,065 | |
| (+) Senior Appraised Value: | + | $0 | |
| (+) Non-Senior Appraised Value: | + | $485,065 | |
| | | -------------------------- | |
| (=) Total Appraised Value: | = | $485,065 | |
| (–) Senior Exemption Loss: | – | $0 | |
| (–) Exemption Loss: | – | $0 | |
| | | -------------------------- | |
| (=) Taxable Value: | = | $485,065 | |
Taxing Jurisdiction
| Owner: | LEWIS & HYLAS FAMILY TRUST | | |
| % Ownership: | 100.0000000000% | | |
| Total Value: | N/A | | |
| Tax Area: | 0110 - C-50F1E1H2 |
| CE | COUNTY CURRENT EXPENSE | N/A | N/A | N/A | N/A | | |
| CNTYDD | DEVELOPMENTAL DISABILITIES | N/A | N/A | N/A | N/A | | |
| CNTYVET | VETERANS RELIEF | N/A | N/A | N/A | N/A | | |
| MENTAL | MENTAL HEALTH | N/A | N/A | N/A | N/A | | |
| PTGEN | CITY OF PT GENERAL | N/A | N/A | N/A | N/A | | |
| PTLLL | CITY OF PT - LIBRARY LID LIFT | N/A | N/A | N/A | N/A | | |
| PTMVBOND | CITY OF PT MV BOND | N/A | N/A | N/A | N/A | | |
| HOSP2CASH | HOSP DIST #2 GENERAL | N/A | N/A | N/A | N/A | | |
| SCH50BOND | SCHOOL DIST #50 BOND 2016 | N/A | N/A | N/A | N/A | | |
| SCH50CP | SCHOOL DIST #50 CAP PROJ | N/A | N/A | N/A | N/A | | |
| SCH50MO | SCHOOL DIST #50 EP & O | N/A | N/A | N/A | N/A | | |
| CONSERVE | CONSERVATION FUTURES | N/A | N/A | N/A | N/A | | |
| EMS1 | FIRE DIST #1 EMS | N/A | N/A | N/A | N/A | | |
| FD1 | FIRE DIST #1 GENERAL | N/A | N/A | N/A | N/A | | |
| PORTPT | PORT OF PT GENERAL | N/A | N/A | N/A | N/A | | |
| PORTPTIDD | PORT OF PT IDD 2019 | N/A | N/A | N/A | N/A | | |
| PUD1 | PUD #1 GENERAL | N/A | N/A | N/A | N/A | | |
| STATE | STATE SCHOOL PART 1 | N/A | N/A | N/A | N/A | | |
| STATE2 | STATE SCHOOL PART 2 | N/A | N/A | N/A | N/A | | |
| | Total Tax Rate: | N/A | | | | | |
| | | | | Taxes w/Current Exemptions: | N/A | | |
| | | | | Taxes w/o Exemptions: | N/A | | |
Improvement / Building
| Improvement #1: | Residential Bldg | State Code: | 11 | 1280.0 sqft | Value: | $333,565 |
| Bathrooms (#): | 2 (FULL) | Bedrooms (#): | 3 | | Exterior Wall: | PL/T1 | Fireplace: | SIN 1-GOOD | | Floor Construction: | FRAME | Foundation: | CONPR | | Heating/Cooling: | F/A | Inside Verify: | YES-FIX | | Roof Cover: | COMP |   |   |
|
| | Type | Description | Class CD | Sub Class CD | Year Built | Area |
| | MA | Main Area | 4 | 1S | 1974 | 1280.0 |
| | GATT | House Attached Garage | 4 | 1S | 1974 | 112.0 |
| | HDECK | House Deck | 4 | * | 1974 | 160.0 |
Sketch
Property Image
Land
| 1 | 6430-1275S | Cherry Park Homesites < .33 Ac | 0.0000 | 0.00 | 0.00 | 0.00 | 1.00 | $151,500 | $0 |
Roll Value History
| 2025 | N/A | N/A | N/A | N/A | N/A |
| 2024 | $322,995 | $151,800 | $0 | $474,795 | $474,795 |
| 2023 | $310,075 | $139,650 | $0 | $449,725 | $449,725 |
| 2022 | $284,236 | $128,000 | $0 | $412,236 | $412,236 |
| 2021 | $237,655 | $108,750 | $0 | $346,405 | $346,405 |
Deed and Sales History
| 1 | 06/06/2022 | SWD | Statutory Warranty Deed | EDWARD GOMEZ & ELLEN MACK REVOCABLE TRUST | LEWIS & HYLAS FAMILY TRUST | | | $475,000.00 | 139286 | |
| 2 | 07/31/2020 | SWD | Statutory Warranty Deed | MARK M & SUSAN O HARTER | EDWARD GOMEZ & ELLEN MACK REVOCABLE TRUST | | | $366,200.00 | 134767 | |
| 3 | 05/21/2015 | SWD | Statutory Warranty Deed | REBECCA BERGSCHNEIDER | MARK M & SUSAN O HARTER | | | $210,000.00 | 123239 | |
| 4 | 04/07/2012 | SWD | Statutory Warranty Deed | BUCKLEY, CHARLENE | BERGSCHNEIDER, REBECCA/RICHARD | 0 | 0 | $167,000.00 | 117412 | 0 |
| 5 | 03/05/2004 | SWD | Statutory Warranty Deed | PARKER, JAMES G | BUCKLEY, CHARLENE | 0 | 0 | $131,000.00 | 99664 | 0 |
| 6 | 05/18/1999 | SWD | Statutory Warranty Deed | GUSTAFSON, CHAD/ET AL | PARKER, JAMES G | 0 | 0 | $78,000.00 | 86967 | 0 |
| 7 | 12/20/1993 | QCD | Quit Claim Deed | MCKINNEY, E W CASEY/SUSAN | GUSTAFSON, CHAD/ ET AL | 0 | 0 | $0.00 | 73019 | 0 |
Payout Agreement
| No payout information available.. |