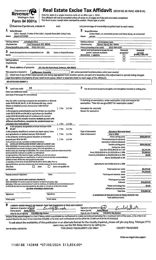
Property
Account |
| Property ID: | 26524 | Abbreviated Legal Description: | CHIMACUM CREEK ESTATES DIV 2 LOT 8 |
| Parcel # / Geo ID: | 943700009 | Agent Code: | |
| Type: | Real | | |
| Tax Area: | 0211 - 1-49F1E1H2L1 | Land Use Code | 11 |
| Open Space: | N | DFL | N |
| Historic Property: | N | Remodel Property: | N |
| Multi-Family Redevelopment: | N | | |
| Township: | 29N | Section: | 2 |
| Range: | 1W |
Location |
| Address: | 110 CHIMACUM CREEK DR PORT HADLOCK, WA 98339 | Mapsco: | 020/008 |
| Neighborhood: | CHIMACUM CREEK ESTATES DIV I & DIV II | Map ID: | |
| Neighborhood CD: | 4218 |
Owner |
| Name: | BRENDAN CHAMBERS | Owner ID: | 111713 |
| Mailing Address: | MARGARET BULKLEY 110 CHIMACUM CREEK DR PORT HADLOCK, WA 98339-9422 | % Ownership: | 100.0000000000% |
| | | Exemptions: | |
Pay Tax Due
There is currently No Amount Due on this property.
Taxes and Assessment Details
Property Tax Information as of
10/24/2025
Click on "Statement Details" to expand or collapse a tax statement.
* Please enter a valid date ** Please enter a valid date *
Statement Details |
| | TOTAL: | $0.00 | $0.00 | $0.00 | $0.00 | $0.00 | $0.00 |
|
| | $0.00 | $0.00 | $0.00 | $0.00 | $0.00 | $0.00 |
Values
| (+) Improvement Homesite Value: | + | $0 | |
| (+) Improvement Non-Homesite Value: | + | $348,732 | |
| (+) Land Homesite Value: | + | $0 | |
| (+) Land Non-Homesite Value: | + | $110,000 | |
| (+) Curr Use (HS): | + | $0 | $0 |
| (+) Curr Use (NHS): | + | $0 | $0 |
| | | -------------------------- | |
| (=) Market Value: | = | $458,732 | |
| (–) Productivity Loss: | – | $0 | |
| | | -------------------------- | |
| (=) Subtotal: | = | $458,732 | |
| (+) Senior Appraised Value: | + | $0 | |
| (+) Non-Senior Appraised Value: | + | $458,732 | |
| | | -------------------------- | |
| (=) Total Appraised Value: | = | $458,732 | |
| (–) Senior Exemption Loss: | – | $0 | |
| (–) Exemption Loss: | – | $0 | |
| | | -------------------------- | |
| (=) Taxable Value: | = | $458,732 | |
Taxing Jurisdiction
| Owner: | BRENDAN CHAMBERS | | |
| % Ownership: | 100.0000000000% | | |
| Total Value: | N/A | | |
| Tax Area: | 0211 - 1-49F1E1H2L1 |
| CE | COUNTY CURRENT EXPENSE | N/A | N/A | N/A | N/A | | |
| CNTYDD | DEVELOPMENTAL DISABILITIES | N/A | N/A | N/A | N/A | | |
| CNTYVET | VETERANS RELIEF | N/A | N/A | N/A | N/A | | |
| MENTAL | MENTAL HEALTH | N/A | N/A | N/A | N/A | | |
| ROADS | COUNTY ROADS | N/A | N/A | N/A | N/A | | |
| ROADSCU | COUNTY ROADS TO CUR EXP | N/A | N/A | N/A | N/A | | |
| HOSP2CASH | HOSP DIST #2 GENERAL | N/A | N/A | N/A | N/A | | |
| SCH49CP | SCHOOL DIST #49 CAP PROJ | N/A | N/A | N/A | N/A | | |
| SCH49MO | SCHOOL DIST #49 EP & O | N/A | N/A | N/A | N/A | | |
| CONSERVE | CONSERVATION FUTURES | N/A | N/A | N/A | N/A | | |
| EMS1 | FIRE DIST #1 EMS | N/A | N/A | N/A | N/A | | |
| FD1 | FIRE DIST #1 GENERAL | N/A | N/A | N/A | N/A | | |
| LIB1 | LIBRARY DIST #1 GENERAL | N/A | N/A | N/A | N/A | | |
| PORTPT | PORT OF PT GENERAL | N/A | N/A | N/A | N/A | | |
| PORTPTIDD | PORT OF PT IDD 2019 | N/A | N/A | N/A | N/A | | |
| PUD1 | PUD #1 GENERAL | N/A | N/A | N/A | N/A | | |
| STATE | STATE SCHOOL PART 1 | N/A | N/A | N/A | N/A | | |
| STATE2 | STATE SCHOOL PART 2 | N/A | N/A | N/A | N/A | | |
| | Total Tax Rate: | N/A | | | | | |
| | | | | Taxes w/Current Exemptions: | N/A | | |
| | | | | Taxes w/o Exemptions: | N/A | | |
Improvement / Building
| Improvement #1: | Residential Bldg | State Code: | 11 | 1495.0 sqft | Value: | $348,732 |
| Bathrooms (#): | 2 (FULL) | Bedrooms (#): | 3 | | Exterior Wall: | SI/ST | Fireplace: | SIN 1-AVG | | Floor Construction: | FRAME | Foundation: | CONPR | | Heating/Cooling: | ELBB | Inside Verify: | YES-FIX | | Roof Cover: | COMP |   |   |
|
| | Type | Description | Class CD | Sub Class CD | Year Built | Area |
| | MA | Main Area | 4+ | 1S | 1986 | 1495.0 |
| | HDECK | House Deck | 4 | * | 1986 | 113.0 |
| | GATT | House Attached Garage | 3 | 1S | 1986 | 420.0 |
Sketch
Property Image
Land
| 1 | 4218-1284S | Chimacum Creek Estates Div II Sites | 0.0000 | 0.00 | 0.00 | 0.00 | 1.00 | $110,000 | $0 |
Roll Value History
| 2025 | N/A | N/A | N/A | N/A | N/A |
| 2024 | $333,570 | $105,000 | $0 | $438,570 | $438,570 |
| 2023 | $318,407 | $95,000 | $0 | $413,407 | $413,407 |
| 2022 | $281,353 | $85,000 | $0 | $366,353 | $366,353 |
| 2021 | $223,296 | $75,000 | $0 | $298,296 | $298,296 |
Deed and Sales History
| 1 | 10/30/2024 | SWD | Statutory Warranty Deed | ERIC & SHERRY BULLIMAN | BRENDAN CHAMBERS | | | $543,000.00 | 143451 | |
| 2 | 06/29/2016 | QCD | Quit Claim Deed | | | | | | 125720 | |
| 3 | 07/02/2012 | SWD | Statutory Warranty Deed | PETZOLDT, BARBARA | CAMERON, SHERRY L | 0 | 0 | $197,900.00 | 117954 | 0 |
| 4 | 07/25/1995 | SWD | Statutory Warranty Deed | BARROWS, DONALD J/CONNIE | PETZOLDT, WILLARD R/BARBARA K | 0 | 0 | $119,000.00 | 77459 | 0 |
Payout Agreement
| No payout information available.. |