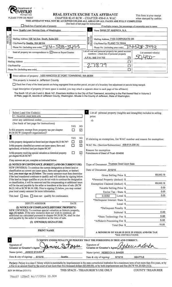
Property
Account |
| Property ID: | 26563 | Abbreviated Legal Description: | CHIMACUM CREEK ESTATES DIV 2 LOT 48 |
| Parcel # / Geo ID: | 943700049 | Agent Code: | |
| Type: | Real | | |
| Tax Area: | 0211 - 1-49F1E1H2L1 | Land Use Code | 11 |
| Open Space: | N | DFL | N |
| Historic Property: | N | Remodel Property: | N |
| Multi-Family Redevelopment: | N | | |
| Township: | 29N | Section: | 2 |
| Range: | 1W |
Location |
| Address: | 20 UPLAND CT PORT HADLOCK, WA 98339 | Mapsco: | 020/048 |
| Neighborhood: | CHIMACUM CREEK ESTATES DIV I & DIV II | Map ID: | |
| Neighborhood CD: | 4218 |
Owner |
| Name: | MELANIE B & TOMMY H BLANTON | Owner ID: | 111375 |
| Mailing Address: | 20 UPLAND CT PORT HADLOCK, WA 98339-9419 | % Ownership: | 100.0000000000% |
| | | Exemptions: | |
Pay Tax Due
There is currently No Amount Due on this property.
Taxes and Assessment Details
Property Tax Information as of
10/24/2025
Click on "Statement Details" to expand or collapse a tax statement.
* Please enter a valid date ** Please enter a valid date *
Statement Details |
| | TOTAL: | $0.00 | $0.00 | $0.00 | $0.00 | $0.00 | $0.00 |
|
| | $0.00 | $0.00 | $0.00 | $0.00 | $0.00 | $0.00 |
Values
| (+) Improvement Homesite Value: | + | $0 | |
| (+) Improvement Non-Homesite Value: | + | $343,173 | |
| (+) Land Homesite Value: | + | $0 | |
| (+) Land Non-Homesite Value: | + | $110,000 | |
| (+) Curr Use (HS): | + | $0 | $0 |
| (+) Curr Use (NHS): | + | $0 | $0 |
| | | -------------------------- | |
| (=) Market Value: | = | $453,173 | |
| (–) Productivity Loss: | – | $0 | |
| | | -------------------------- | |
| (=) Subtotal: | = | $453,173 | |
| (+) Senior Appraised Value: | + | $0 | |
| (+) Non-Senior Appraised Value: | + | $453,173 | |
| | | -------------------------- | |
| (=) Total Appraised Value: | = | $453,173 | |
| (–) Senior Exemption Loss: | – | $0 | |
| (–) Exemption Loss: | – | $0 | |
| | | -------------------------- | |
| (=) Taxable Value: | = | $453,173 | |
Taxing Jurisdiction
| Owner: | MELANIE B & TOMMY H BLANTON | | |
| % Ownership: | 100.0000000000% | | |
| Total Value: | N/A | | |
| Tax Area: | 0211 - 1-49F1E1H2L1 |
| CE | COUNTY CURRENT EXPENSE | N/A | N/A | N/A | N/A | | |
| CNTYDD | DEVELOPMENTAL DISABILITIES | N/A | N/A | N/A | N/A | | |
| CNTYVET | VETERANS RELIEF | N/A | N/A | N/A | N/A | | |
| MENTAL | MENTAL HEALTH | N/A | N/A | N/A | N/A | | |
| ROADS | COUNTY ROADS | N/A | N/A | N/A | N/A | | |
| ROADSCU | COUNTY ROADS TO CUR EXP | N/A | N/A | N/A | N/A | | |
| HOSP2CASH | HOSP DIST #2 GENERAL | N/A | N/A | N/A | N/A | | |
| SCH49CP | SCHOOL DIST #49 CAP PROJ | N/A | N/A | N/A | N/A | | |
| SCH49MO | SCHOOL DIST #49 EP & O | N/A | N/A | N/A | N/A | | |
| CONSERVE | CONSERVATION FUTURES | N/A | N/A | N/A | N/A | | |
| EMS1 | FIRE DIST #1 EMS | N/A | N/A | N/A | N/A | | |
| FD1 | FIRE DIST #1 GENERAL | N/A | N/A | N/A | N/A | | |
| LIB1 | LIBRARY DIST #1 GENERAL | N/A | N/A | N/A | N/A | | |
| PORTPT | PORT OF PT GENERAL | N/A | N/A | N/A | N/A | | |
| PORTPTIDD | PORT OF PT IDD 2019 | N/A | N/A | N/A | N/A | | |
| PUD1 | PUD #1 GENERAL | N/A | N/A | N/A | N/A | | |
| STATE | STATE SCHOOL PART 1 | N/A | N/A | N/A | N/A | | |
| STATE2 | STATE SCHOOL PART 2 | N/A | N/A | N/A | N/A | | |
| | Total Tax Rate: | N/A | | | | | |
| | | | | Taxes w/Current Exemptions: | N/A | | |
| | | | | Taxes w/o Exemptions: | N/A | | |
Improvement / Building
| Improvement #1: | Residential Bldg | State Code: | 11 | 1431.0 sqft | Value: | $343,173 |
| Bathrooms (#): | 2 (FULL) | Bedrooms (#): | 3 | | Exterior Wall: | PL/T1 | Fireplace: | SIN 1-AVG | | Floor Construction: | FRAME | Foundation: | CONPR | | Heating/Cooling: | ELBB | Interior Finish: | FIN | | Roof Cover: | COMP |   |   |
|
| | Type | Description | Class CD | Sub Class CD | Year Built | Area |
| | MA | Main Area | 4+ | 1S | 1980 | 1431.0 |
| | GATT | House Attached Garage | 3 | 1S | 1980 | 484.0 |
Sketch
Property Image
Land
| 1 | 4218-1284S | Chimacum Creek Estates Div II Sites | 0.0000 | 0.00 | 0.00 | 0.00 | 1.00 | $110,000 | $0 |
Roll Value History
| 2025 | N/A | N/A | N/A | N/A | N/A |
| 2024 | $328,252 | $105,000 | $0 | $433,252 | $433,252 |
| 2023 | $313,332 | $95,000 | $0 | $408,332 | $408,332 |
| 2022 | $285,332 | $85,000 | $0 | $370,332 | $370,332 |
| 2021 | $226,454 | $75,000 | $0 | $301,454 | $301,454 |
Deed and Sales History
| 1 | 08/28/2024 | SWD | Statutory Warranty Deed | PAUL STOFFER | MELANIE B & TOMMY H BLANTON | | | $515,000.00 | 143168 | |
| 2 | 03/30/2017 | SPWD | Special Warranty Deed | FEDERAL NATIONAL MORTGAGE ASSOCIATION | PAUL STOFFER | | | $236,000.00 | 127431 | |
| 3 | 05/03/2016 | TRED | Trustee Deed | ROBERT O NORRIS | FEDERAL NATIONAL MORTGAGE ASSOCIATION | | | | 125337 | |
| 4 | 05/16/2007 | SWD | Statutory Warranty Deed | CARTUS RELOCATION CORP | NORRIS, ROBERT/MARION | | | $244,000.00 | 109361 | 0 |
| 5 | 02/07/2007 | SWD | Statutory Warranty Deed | KLAASEN, JOHN & CAROLYN | CARTUS RELOCATION CORP | 0 | 0 | $252,500.00 | 108671 | 0 |
Payout Agreement
| No payout information available.. |