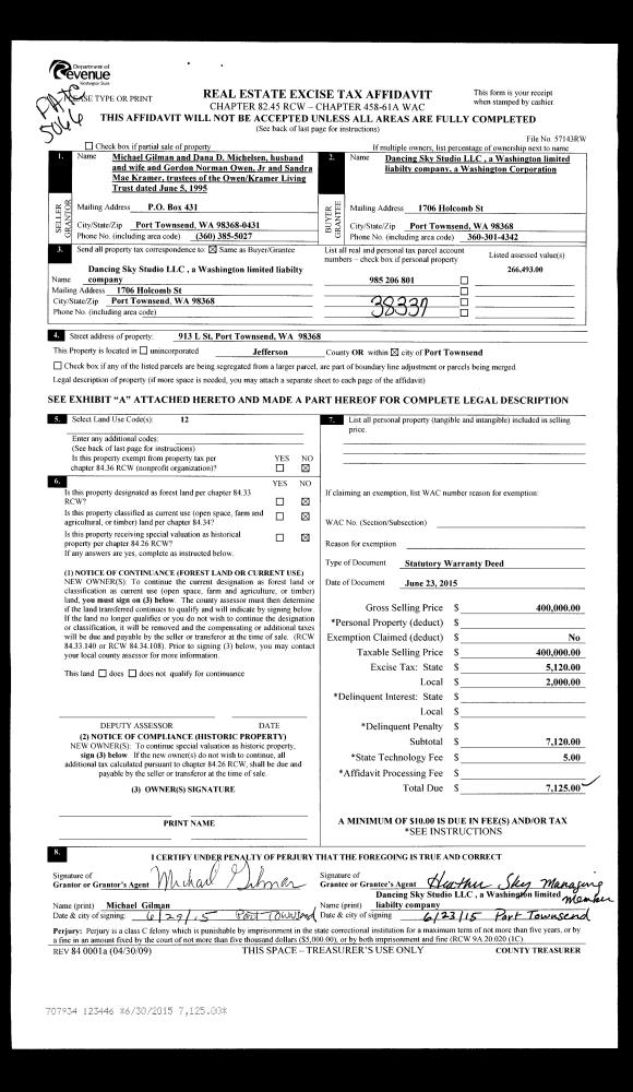
Property
Account |
| Property ID: | 26595 | Abbreviated Legal Description: | COLUMBIA ADDITION BLK 1 LOTS 3 & 4 W/EASE |
| Parcel # / Geo ID: | 944400107 | Agent Code: | |
| Type: | Real | | |
| Tax Area: | 0110 - C-50F1E1H2 | Land Use Code | 11 |
| Open Space: | N | DFL | N |
| Historic Property: | N | Remodel Property: | N |
| Multi-Family Redevelopment: | N | | |
| Township: | 30N | Section: | 3 |
| Range: | 1W |
Location |
| Address: | 2546 HOLCOMB ST PORT TOWNSEND, WA 98368 | Mapsco: | 015/004 |
| Neighborhood: | COLUMBIA//HUSSEY/WEYMOUNT-DYER/WOODLAND LP-ACREAGE; CEMETERY | Map ID: | |
| Neighborhood CD: | 6120 |
Owner |
| Name: | REBECCA WELTI | Owner ID: | 106849 |
| Mailing Address: | 747 HASTINGS AVE PORT TOWNSEND, WA 98368-6105 | % Ownership: | 100.0000000000% |
| | | Exemptions: | |
Pay Tax Due
There is currently No Amount Due on this property.
Taxes and Assessment Details
Property Tax Information as of
10/24/2025
Click on "Statement Details" to expand or collapse a tax statement.
* Please enter a valid date ** Please enter a valid date *
Statement Details |
| | TOTAL: | $0.00 | $0.00 | $0.00 | $0.00 | $0.00 | $0.00 |
|
| | $0.00 | $0.00 | $0.00 | $0.00 | $0.00 | $0.00 |
Values
| (+) Improvement Homesite Value: | + | $0 | |
| (+) Improvement Non-Homesite Value: | + | $283,560 | |
| (+) Land Homesite Value: | + | $0 | |
| (+) Land Non-Homesite Value: | + | $210,000 | |
| (+) Curr Use (HS): | + | $0 | $0 |
| (+) Curr Use (NHS): | + | $0 | $0 |
| | | -------------------------- | |
| (=) Market Value: | = | $493,560 | |
| (–) Productivity Loss: | – | $0 | |
| | | -------------------------- | |
| (=) Subtotal: | = | $493,560 | |
| (+) Senior Appraised Value: | + | $0 | |
| (+) Non-Senior Appraised Value: | + | $493,560 | |
| | | -------------------------- | |
| (=) Total Appraised Value: | = | $493,560 | |
| (–) Senior Exemption Loss: | – | $0 | |
| (–) Exemption Loss: | – | $0 | |
| | | -------------------------- | |
| (=) Taxable Value: | = | $493,560 | |
Taxing Jurisdiction
| Owner: | REBECCA WELTI | | |
| % Ownership: | 100.0000000000% | | |
| Total Value: | N/A | | |
| Tax Area: | 0110 - C-50F1E1H2 |
| CE | COUNTY CURRENT EXPENSE | N/A | N/A | N/A | N/A | | |
| CNTYDD | DEVELOPMENTAL DISABILITIES | N/A | N/A | N/A | N/A | | |
| CNTYVET | VETERANS RELIEF | N/A | N/A | N/A | N/A | | |
| MENTAL | MENTAL HEALTH | N/A | N/A | N/A | N/A | | |
| PTGEN | CITY OF PT GENERAL | N/A | N/A | N/A | N/A | | |
| PTLLL | CITY OF PT - LIBRARY LID LIFT | N/A | N/A | N/A | N/A | | |
| PTMVBOND | CITY OF PT MV BOND | N/A | N/A | N/A | N/A | | |
| HOSP2CASH | HOSP DIST #2 GENERAL | N/A | N/A | N/A | N/A | | |
| SCH50BOND | SCHOOL DIST #50 BOND 2016 | N/A | N/A | N/A | N/A | | |
| SCH50CP | SCHOOL DIST #50 CAP PROJ | N/A | N/A | N/A | N/A | | |
| SCH50MO | SCHOOL DIST #50 EP & O | N/A | N/A | N/A | N/A | | |
| CONSERVE | CONSERVATION FUTURES | N/A | N/A | N/A | N/A | | |
| EMS1 | FIRE DIST #1 EMS | N/A | N/A | N/A | N/A | | |
| FD1 | FIRE DIST #1 GENERAL | N/A | N/A | N/A | N/A | | |
| PORTPT | PORT OF PT GENERAL | N/A | N/A | N/A | N/A | | |
| PORTPTIDD | PORT OF PT IDD 2019 | N/A | N/A | N/A | N/A | | |
| PUD1 | PUD #1 GENERAL | N/A | N/A | N/A | N/A | | |
| STATE | STATE SCHOOL PART 1 | N/A | N/A | N/A | N/A | | |
| STATE2 | STATE SCHOOL PART 2 | N/A | N/A | N/A | N/A | | |
| | Total Tax Rate: | N/A | | | | | |
| | | | | Taxes w/Current Exemptions: | N/A | | |
| | | | | Taxes w/o Exemptions: | N/A | | |
Improvement / Building
| Improvement #1: | Residential Bldg | State Code: | 11 | 1280.0 sqft | Value: | $283,560 |
| Bathrooms (#): | 2 (FULL) | Bedrooms (#): | 3 | | Exterior Wall: | SI/ST | Fireplace: | SIN 1-AVG | | Floor Construction: | FRAME | Foundation: | CONPR | | Heating/Cooling: | ELBB | Roof Cover: | COMP |
|
| | Type | Description | Class CD | Sub Class CD | Year Built | Area |
| | MA | Main Area | 4- | 1S | 1979 | 1280.0 |
| | HDECK | House Deck | 4 | * | 1979 | 427.5 |
| | GATT | House Attached Garage | 4 | 1S | 1979 | 280.0 |
| | SHED | Shed (Table Not Dep) | * | * | 1979 | 80.0 |
Sketch
Property Image
Land
| 1 | 6120-1175L | Standard Lot (Avg Terr View Area) | 0.0000 | 0.00 | 0.00 | 0.00 | 1.00 | $210,000 | $0 |
Roll Value History
| 2025 | N/A | N/A | N/A | N/A | N/A |
| 2024 | $290,622 | $204,750 | $0 | $495,372 | $495,372 |
| 2023 | $290,622 | $199,500 | $0 | $490,122 | $490,122 |
| 2022 | $266,403 | $185,000 | $0 | $451,403 | $451,403 |
| 2021 | $227,694 | $102,750 | $0 | $330,444 | $330,444 |
Deed and Sales History
| 1 | 04/22/2022 | QCD | Quit Claim Deed | REBECCA WELTI TRUST | REBECCA WELTI | | | | 138961 | |
| 2 | 05/31/2016 | SWD | Statutory Warranty Deed | THOMAS G RUTENBECK | REBECCA WELTI TRUST | | | $244,333.00 | 125518 | |
| 3 | 09/10/1998 | SWD | Statutory Warranty Deed | QUASTLER, REBA WRIGHT/IMR | RUTENBECK, THOMAS G/ET AL | 0 | 0 | $113,500.00 | 85360 | 0 |
| 4 | 08/27/1993 | QCD | Quit Claim Deed | THE QUASTLER FAMILY TRUST | REBA WRIGHT-QUASTLER | 0 | 0 | $0.00 | 72177 | 0 |
Payout Agreement
| No payout information available.. |