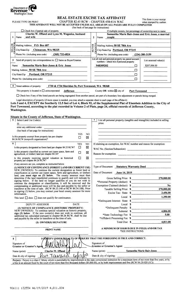
Property
Account |
| Property ID: | 26599 | Abbreviated Legal Description: | COLUMBIA ADDITION BLK 2 LOTS 14(ALL), 13(N2'), 15(LS N12') BND/REST COV 521/129 |
| Parcel # / Geo ID: | 944400203 | Agent Code: | |
| Type: | Real | | |
| Tax Area: | 0110 - C-50F1E1H2 | Land Use Code | 11 |
| Open Space: | N | DFL | N |
| Historic Property: | N | Remodel Property: | N |
| Multi-Family Redevelopment: | N | | |
| Township: | 30N | Section: | 3 |
| Range: | 1W |
Location |
| Address: | 2554 GISE ST PORT TOWNSEND, WA 98368 | Mapsco: | 015/019 |
| Neighborhood: | COLUMBIA//HUSSEY/WEYMOUNT-DYER/WOODLAND LP-ACREAGE; CEMETERY | Map ID: | |
| Neighborhood CD: | 6120 |
Owner |
| Name: | SUSAN C WALKER | Owner ID: | 29802 |
| Mailing Address: | 2554 GISE ST PORT TOWNSEND, WA 98368-7128 | % Ownership: | 100.0000000000% |
| | | Exemptions: | |
Pay Tax Due
There is currently No Amount Due on this property.
Taxes and Assessment Details
Property Tax Information as of
10/24/2025
Click on "Statement Details" to expand or collapse a tax statement.
* Please enter a valid date ** Please enter a valid date *
Statement Details |
| | TOTAL: | $0.00 | $0.00 | $0.00 | $0.00 | $0.00 | $0.00 |
|
| | $0.00 | $0.00 | $0.00 | $0.00 | $0.00 | $0.00 |
Values
| (+) Improvement Homesite Value: | + | $0 | |
| (+) Improvement Non-Homesite Value: | + | $266,279 | |
| (+) Land Homesite Value: | + | $0 | |
| (+) Land Non-Homesite Value: | + | $164,250 | |
| (+) Curr Use (HS): | + | $0 | $0 |
| (+) Curr Use (NHS): | + | $0 | $0 |
| | | -------------------------- | |
| (=) Market Value: | = | $430,529 | |
| (–) Productivity Loss: | – | $0 | |
| | | -------------------------- | |
| (=) Subtotal: | = | $430,529 | |
| (+) Senior Appraised Value: | + | $0 | |
| (+) Non-Senior Appraised Value: | + | $430,529 | |
| | | -------------------------- | |
| (=) Total Appraised Value: | = | $430,529 | |
| (–) Senior Exemption Loss: | – | $0 | |
| (–) Exemption Loss: | – | $0 | |
| | | -------------------------- | |
| (=) Taxable Value: | = | $430,529 | |
Taxing Jurisdiction
| Owner: | SUSAN C WALKER | | |
| % Ownership: | 100.0000000000% | | |
| Total Value: | N/A | | |
| Tax Area: | 0110 - C-50F1E1H2 |
| CE | COUNTY CURRENT EXPENSE | N/A | N/A | N/A | N/A | | |
| CNTYDD | DEVELOPMENTAL DISABILITIES | N/A | N/A | N/A | N/A | | |
| CNTYVET | VETERANS RELIEF | N/A | N/A | N/A | N/A | | |
| MENTAL | MENTAL HEALTH | N/A | N/A | N/A | N/A | | |
| PTGEN | CITY OF PT GENERAL | N/A | N/A | N/A | N/A | | |
| PTLLL | CITY OF PT - LIBRARY LID LIFT | N/A | N/A | N/A | N/A | | |
| PTMVBOND | CITY OF PT MV BOND | N/A | N/A | N/A | N/A | | |
| HOSP2CASH | HOSP DIST #2 GENERAL | N/A | N/A | N/A | N/A | | |
| SCH50BOND | SCHOOL DIST #50 BOND 2016 | N/A | N/A | N/A | N/A | | |
| SCH50CP | SCHOOL DIST #50 CAP PROJ | N/A | N/A | N/A | N/A | | |
| SCH50MO | SCHOOL DIST #50 EP & O | N/A | N/A | N/A | N/A | | |
| CONSERVE | CONSERVATION FUTURES | N/A | N/A | N/A | N/A | | |
| EMS1 | FIRE DIST #1 EMS | N/A | N/A | N/A | N/A | | |
| FD1 | FIRE DIST #1 GENERAL | N/A | N/A | N/A | N/A | | |
| PORTPT | PORT OF PT GENERAL | N/A | N/A | N/A | N/A | | |
| PORTPTIDD | PORT OF PT IDD 2019 | N/A | N/A | N/A | N/A | | |
| PUD1 | PUD #1 GENERAL | N/A | N/A | N/A | N/A | | |
| STATE | STATE SCHOOL PART 1 | N/A | N/A | N/A | N/A | | |
| STATE2 | STATE SCHOOL PART 2 | N/A | N/A | N/A | N/A | | |
| | Total Tax Rate: | N/A | | | | | |
| | | | | Taxes w/Current Exemptions: | N/A | | |
| | | | | Taxes w/o Exemptions: | N/A | | |
Improvement / Building
| Improvement #1: | Residential Bldg | State Code: | 11 | 1530.0 sqft | Value: | $266,279 |
| Bathrooms (#): | 1 (FULL) | Bedrooms (#): | 3 | | Exterior Wall: | SI/ST | Fireplace: | WD ST-AVG | | Floor Construction: | FRAME | Foundation: | CONPR | | Heating/Cooling: | OTHER | Roof Cover: | COMP |
|
| | Type | Description | Class CD | Sub Class CD | Year Built | Area |
| | MA | Main Area | 3+ | 15SF | 1951 | 1230.0 |
| | MA2 | Second Floor Main Area | 3+ | 15SF | 1951 | 300.0 |
| | PATIO | House Patio | 3 | * | 1951 | 540.0 |
| | HCPOR | House Concrete Porch | 3 | * | 1951 | 48.0 |
| | GDET | Detached Garage | 4 | 15SF | 1951 | 320.0 |
| | BSMTU | House basement unfinished | 3 | * | 1951 | 400.0 |
| | HDECK | House Deck | 4 | * | 1951 | 222.0 |
| | SHED | Shed (Table Not Dep) | 3 | * | 1951 | 36.0 |
| | CONCD | Concrete Drive | 3 | * | 1951 | 594.0 |
Sketch
Property Image
Land
| 1 | 6120-1176L | Multiple Lot Site (2+/-) with Access/Utilities | 0.0000 | 0.00 | 0.00 | 0.00 | 1.00 | $105,000 | $0 |
| 2 | 6120-1176L | Multiple Lot Site (2+/-) with Access/Utilities | 0.0000 | 0.00 | 0.00 | 0.00 | 1.00 | $59,250 | $0 |
Roll Value History
| 2025 | N/A | N/A | N/A | N/A | N/A |
| 2024 | $273,774 | $163,065 | $0 | $436,839 | $436,839 |
| 2023 | $273,774 | $157,815 | $0 | $431,589 | $431,589 |
| 2022 | $250,959 | $145,300 | $0 | $396,259 | $396,259 |
| 2021 | $214,494 | $131,520 | $0 | $346,014 | $346,014 |
Deed and Sales History
| 1 | 10/26/2009 | SWD | Statutory Warranty Deed | JACKSON, JACQUELINE L | WALKER, SUSAN CLAIRE | 0 | 0 | $254,000.00 | 113590 | 0 |
| 2 | 07/24/2003 | QCD | Quit Claim Deed | PROMISEL, WILLIAM E | JACKSON, JACQUELINE L | 0 | 0 | $27,946.00 | 97923 | 0 |
| 3 | 06/23/2000 | SWD | Statutory Warranty Deed | CAMPBELL, SEAN R/ANISSA A | JACKSON, J L/PROMISEL, WILLIAM | 0 | 0 | $128,500.00 | 89972 | 0 |
| 4 | 06/23/1998 | QCD | Quit Claim Deed | CAMPBELL, ANISSA A | CAMPBELL, SEAN R | 0 | 0 | $0.00 | 84701 | 0 |
| 5 | 01/10/1995 | BLA | Boundary Line Adjustment | CAMPBELL, SEAN R/ANISSA A | CAMPBELL, SEAN R/ANISSA A | 0 | 0 | $0.00 | 76112 | 0 |
| 6 | 09/03/1993 | SWD | Statutory Warranty Deed | KILHAM, OLIVER F/ONDA R | CAMPBELL, SEAN R/ANISSA A | 0 | 0 | $60,000.00 | 72146 | 0 |
Payout Agreement
| No payout information available.. |