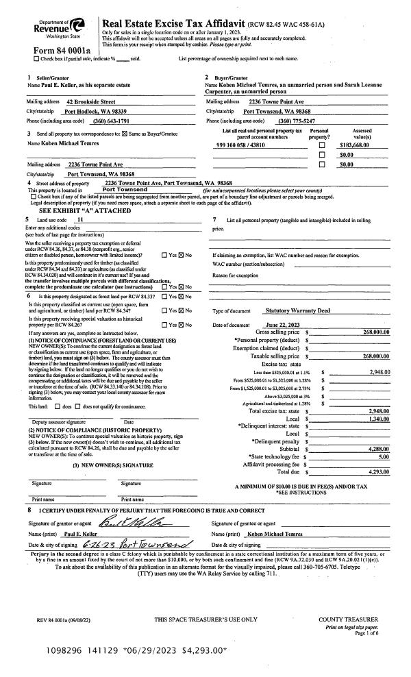
Property
Account |
| Property ID: | 26600 | Abbreviated Legal Description: | COLUMBIA ADDITION BLK 2 LOTS 3 & 4 |
| Parcel # / Geo ID: | 944400204 | Agent Code: | |
| Type: | Real | | |
| Tax Area: | 0110 - C-50F1E1H2 | Land Use Code | 11 |
| Open Space: | N | DFL | N |
| Historic Property: | N | Remodel Property: | N |
| Multi-Family Redevelopment: | N | | |
| Township: | 30N | Section: | 3 |
| Range: | 1W |
Location |
| Address: | 2543 HOLCOMB ST PORT TOWNSEND, WA 98368 | Mapsco: | 015/013 |
| Neighborhood: | COLUMBIA//HUSSEY/WEYMOUNT-DYER/WOODLAND LP-ACREAGE; CEMETERY | Map ID: | |
| Neighborhood CD: | 6120 |
Owner |
| Name: | LISA A FLORES | Owner ID: | 100387 |
| Mailing Address: | 2543 HOLCOMB ST PORT TOWNSEND, WA 98368-7122 | % Ownership: | 100.0000000000% |
| | | Exemptions: | SNR/DSBL |
Pay Tax Due
There is currently No Amount Due on this property.
Taxes and Assessment Details
Property Tax Information as of
10/24/2025
Click on "Statement Details" to expand or collapse a tax statement.
* Please enter a valid date ** Please enter a valid date *
Statement Details |
| | TOTAL: | $0.00 | $0.00 | $0.00 | $0.00 | $0.00 | $0.00 |
|
| | $0.00 | $0.00 | $0.00 | $0.00 | $0.00 | $0.00 |
Values
| (+) Improvement Homesite Value: | + | $530,673 | |
| (+) Improvement Non-Homesite Value: | + | $0 | |
| (+) Land Homesite Value: | + | $172,500 | |
| (+) Land Non-Homesite Value: | + | $0 | |
| (+) Curr Use (HS): | + | $0 | $0 |
| (+) Curr Use (NHS): | + | $0 | $0 |
| | | -------------------------- | |
| (=) Market Value: | = | $703,173 | |
| (–) Productivity Loss: | – | $0 | |
| | | -------------------------- | |
| (=) Subtotal: | = | $703,173 | |
| (+) Senior Appraised Value: | + | $498,583 | |
| (+) Non-Senior Appraised Value: | + | $0 | |
| | | -------------------------- | |
| (=) Total Appraised Value: | = | $498,583 | |
| (–) Senior Exemption Loss: | – | $299,150 | |
| (–) Exemption Loss: | – | $0 | |
| | | -------------------------- | |
| (=) Taxable Value: | = | $199,433 | |
Taxing Jurisdiction
| Owner: | LISA A FLORES | | |
| % Ownership: | 100.0000000000% | | |
| Total Value: | N/A | | |
| Tax Area: | 0110 - C-50F1E1H2 |
| CE | COUNTY CURRENT EXPENSE | N/A | N/A | N/A | N/A | | |
| CNTYDD | DEVELOPMENTAL DISABILITIES | N/A | N/A | N/A | N/A | | |
| CNTYVET | VETERANS RELIEF | N/A | N/A | N/A | N/A | | |
| MENTAL | MENTAL HEALTH | N/A | N/A | N/A | N/A | | |
| PTGEN | CITY OF PT GENERAL | N/A | N/A | N/A | N/A | | |
| PTLLL | CITY OF PT - LIBRARY LID LIFT | N/A | N/A | N/A | N/A | | |
| PTMVBOND | CITY OF PT MV BOND | N/A | N/A | N/A | N/A | | |
| HOSP2CASH | HOSP DIST #2 GENERAL | N/A | N/A | N/A | N/A | | |
| SCH50BOND | SCHOOL DIST #50 BOND 2016 | N/A | N/A | N/A | N/A | | |
| SCH50CP | SCHOOL DIST #50 CAP PROJ | N/A | N/A | N/A | N/A | | |
| SCH50MO | SCHOOL DIST #50 EP & O | N/A | N/A | N/A | N/A | | |
| CONSERVE | CONSERVATION FUTURES | N/A | N/A | N/A | N/A | | |
| EMS1 | FIRE DIST #1 EMS | N/A | N/A | N/A | N/A | | |
| FD1 | FIRE DIST #1 GENERAL | N/A | N/A | N/A | N/A | | |
| PORTPT | PORT OF PT GENERAL | N/A | N/A | N/A | N/A | | |
| PORTPTIDD | PORT OF PT IDD 2019 | N/A | N/A | N/A | N/A | | |
| PUD1 | PUD #1 GENERAL | N/A | N/A | N/A | N/A | | |
| STATE | STATE SCHOOL PART 1 | N/A | N/A | N/A | N/A | | |
| STATE2 | STATE SCHOOL PART 2 | N/A | N/A | N/A | N/A | | |
| | Total Tax Rate: | N/A | | | | | |
| | | | | Taxes w/Current Exemptions: | N/A | | |
| | | | | Taxes w/o Exemptions: | N/A | | |
Improvement / Building
| Improvement #1: | Residential Bldg | State Code: | 11 | 1168.0 sqft | Value: | $378,322 |
| Bathrooms (#): | 2 (FULL) | Bedrooms (#): | 3 | | Exterior Wall: | PL/T1 | Fireplace: | PROPS-GOOD | | Floor Construction: | FRAME | Foundation: | CONPR | | Heating/Cooling: | ELBB | Roof Cover: | METAL |
|
| | Type | Description | Class CD | Sub Class CD | Year Built | Area |
| | MA | Main Area | 4- | 1S | 1978 | 1168.0 |
| | PATIO | House Patio | 3 | * | 1978 | 102.0 |
| | HDECK | House Deck | 3 | * | 1978 | 200.0 |
| | GBSMT | Basement Garage | 3 | 1S | 1978 | 540.0 |
| | BSMTF | House basement finished | 3 | * | 1978 | 552.0 |
| Improvement #2: | Residential Bldg | State Code: | 11 | 528.0 sqft | Value: | $152,351 |
| Bathrooms (#): | 1 (FULL) | Exterior Wall: | SI/ST | | Floor Construction: | FRAME | Foundation: | CONPR | | Heating/Cooling: | HPUMP | Interior Finish: | FIN | | Roof Cover: | COMP |   |   |
|
| | Type | Description | Class CD | Sub Class CD | Year Built | Area |
| | MA | Main Area | 4 | ADU | 2023 | 384.0 |
| | MA2 | Second Floor Main Area | 4 | ADU | 2023 | 144.0 |
Sketch
Property Image
Land
| 1 | 6120-1177L | Standard Lot (Fair Terr View Area) | 0.0000 | 0.00 | 0.00 | 0.00 | 1.00 | $172,500 | $0 |
Roll Value History
| 2025 | N/A | N/A | N/A | N/A | N/A |
| 2024 | $511,287 | $173,250 | $0 | $684,537 | $199,433 |
| 2023 | $412,016 | $168,000 | $0 | $580,016 | $210,717 |
| 2022 | $329,935 | $155,000 | $0 | $484,935 | $132,950 |
| 2021 | $281,995 | $123,750 | $0 | $405,745 | $132,950 |
Deed and Sales History
| 1 | 12/20/2018 | SWD | Statutory Warranty Deed | MICHAEL & GALILA KITZES REVOCABLE TRUST | LISA A FLORES | | | $365,000.00 | 131613 | |
| 2 | 11/03/2018 | DTH CERT | Death Certificate | JUDITH R TOLEDANO | MICHAEL & GALILA KITZES REVOCABLE TRUST | | | | 131372 | |
| 3 | 01/10/2003 | SWD | Statutory Warranty Deed | BUMGARNER, RICHARD/LYNN E | TOLEDANO, JUDITH R | 0 | 0 | $191,000.00 | 96387 | 0 |
Payout Agreement
| No payout information available.. |