Property
Account |
| Property ID: | 26605 | Abbreviated Legal Description: | COLUMBIA ADDITION BLK 2 LOT 13(LS N2') REST COV V520 PG6-8 |
| Parcel # / Geo ID: | 944400213 | Agent Code: | |
| Type: | Real | | |
| Tax Area: | 0110 - C-50F1E1H2 | Land Use Code | 11 |
| Open Space: | N | DFL | N |
| Historic Property: | N | Remodel Property: | N |
| Multi-Family Redevelopment: | N | | |
| Township: | 30N | Section: | 3 |
| Range: | 1W |
Location |
| Address: | 2538 GISE ST PORT TOWNSEND, WA 98368 | Mapsco: | 015/018 |
| Neighborhood: | COLUMBIA//HUSSEY/WEYMOUNT-DYER/WOODLAND LP-ACREAGE; CEMETERY | Map ID: | |
| Neighborhood CD: | 6120 |
Owner |
| Name: | YEWAH LAU | Owner ID: | 97464 |
| Mailing Address: | 2538 GISE ST PORT TOWNSEND, WA 98368-7128 | % Ownership: | 100.0000000000% |
| | | Exemptions: | |
Pay Tax Due
There is currently No Amount Due on this property.
Taxes and Assessment Details
Property Tax Information as of
10/24/2025
Click on "Statement Details" to expand or collapse a tax statement.
* Please enter a valid date ** Please enter a valid date *
Statement Details |
| | TOTAL: | $0.00 | $0.00 | $0.00 | $0.00 | $0.00 | $0.00 |
|
| | $0.00 | $0.00 | $0.00 | $0.00 | $0.00 | $0.00 |
Values
| (+) Improvement Homesite Value: | + | $0 | |
| (+) Improvement Non-Homesite Value: | + | $360,828 | |
| (+) Land Homesite Value: | + | $0 | |
| (+) Land Non-Homesite Value: | + | $125,000 | |
| (+) Curr Use (HS): | + | $0 | $0 |
| (+) Curr Use (NHS): | + | $0 | $0 |
| | | -------------------------- | |
| (=) Market Value: | = | $485,828 | |
| (–) Productivity Loss: | – | $0 | |
| | | -------------------------- | |
| (=) Subtotal: | = | $485,828 | |
| (+) Senior Appraised Value: | + | $0 | |
| (+) Non-Senior Appraised Value: | + | $485,828 | |
| | | -------------------------- | |
| (=) Total Appraised Value: | = | $485,828 | |
| (–) Senior Exemption Loss: | – | $0 | |
| (–) Exemption Loss: | – | $0 | |
| | | -------------------------- | |
| (=) Taxable Value: | = | $485,828 | |
Taxing Jurisdiction
| Owner: | YEWAH LAU | | |
| % Ownership: | 100.0000000000% | | |
| Total Value: | N/A | | |
| Tax Area: | 0110 - C-50F1E1H2 |
| CE | COUNTY CURRENT EXPENSE | N/A | N/A | N/A | N/A | | |
| CNTYDD | DEVELOPMENTAL DISABILITIES | N/A | N/A | N/A | N/A | | |
| CNTYVET | VETERANS RELIEF | N/A | N/A | N/A | N/A | | |
| MENTAL | MENTAL HEALTH | N/A | N/A | N/A | N/A | | |
| PTGEN | CITY OF PT GENERAL | N/A | N/A | N/A | N/A | | |
| PTLLL | CITY OF PT - LIBRARY LID LIFT | N/A | N/A | N/A | N/A | | |
| PTMVBOND | CITY OF PT MV BOND | N/A | N/A | N/A | N/A | | |
| HOSP2CASH | HOSP DIST #2 GENERAL | N/A | N/A | N/A | N/A | | |
| SCH50BOND | SCHOOL DIST #50 BOND 2016 | N/A | N/A | N/A | N/A | | |
| SCH50CP | SCHOOL DIST #50 CAP PROJ | N/A | N/A | N/A | N/A | | |
| SCH50MO | SCHOOL DIST #50 EP & O | N/A | N/A | N/A | N/A | | |
| CONSERVE | CONSERVATION FUTURES | N/A | N/A | N/A | N/A | | |
| EMS1 | FIRE DIST #1 EMS | N/A | N/A | N/A | N/A | | |
| FD1 | FIRE DIST #1 GENERAL | N/A | N/A | N/A | N/A | | |
| PORTPT | PORT OF PT GENERAL | N/A | N/A | N/A | N/A | | |
| PORTPTIDD | PORT OF PT IDD 2019 | N/A | N/A | N/A | N/A | | |
| PUD1 | PUD #1 GENERAL | N/A | N/A | N/A | N/A | | |
| STATE | STATE SCHOOL PART 1 | N/A | N/A | N/A | N/A | | |
| STATE2 | STATE SCHOOL PART 2 | N/A | N/A | N/A | N/A | | |
| | Total Tax Rate: | N/A | | | | | |
| | | | | Taxes w/Current Exemptions: | N/A | | |
| | | | | Taxes w/o Exemptions: | N/A | | |
Improvement / Building
| Improvement #1: | Residential Bldg | State Code: | 11 | 1304.0 sqft | Value: | $360,828 |
| Bathrooms (#): | 2 (FULL) | Bathrooms (#): | 1 (HALF) | | Bedrooms (#): | 3 | Exterior Wall: | SI/ST | | Fireplace: | PROPS-GOOD | Floor Construction: | FRAME | | Foundation: | CONPR | Heating/Cooling: | ELBB | | Roof Cover: | COMP |   |   |
|
| | Type | Description | Class CD | Sub Class CD | Year Built | Area |
| | MA | Main Area | 4+ | 2S | 1995 | 680.0 |
| | MA2 | Second Floor Main Area | 4+ | 2S | 1995 | 624.0 |
| | HWPOR | House Wood Porch | 4 | * | 1995 | 108.0 |
| | HDECK | House Deck | 4 | * | 1995 | 120.0 |
| | GATT | House Attached Garage | 4 | 2S | 1995 | 336.0 |
| | CONCD | Concrete Drive | 4 | * | 1995 | 480.0 |
Sketch
Property Image
Land
| 1 | 6120-1177L | Standard Lot (Fair Terr View Area) | 0.0000 | 0.00 | 0.00 | 0.00 | 1.00 | $125,000 | $0 |
Roll Value History
| 2025 | N/A | N/A | N/A | N/A | N/A |
| 2024 | $330,556 | $126,000 | $0 | $456,556 | $456,556 |
| 2023 | $330,556 | $120,750 | $0 | $451,306 | $451,306 |
| 2022 | $303,009 | $110,000 | $0 | $413,009 | $413,009 |
| 2021 | $258,982 | $105,186 | $0 | $364,168 | $364,168 |
Deed and Sales History
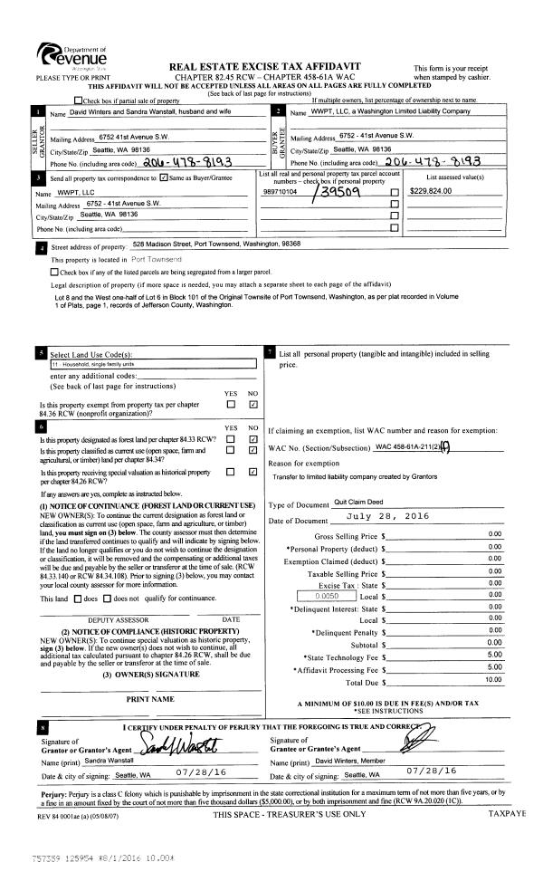
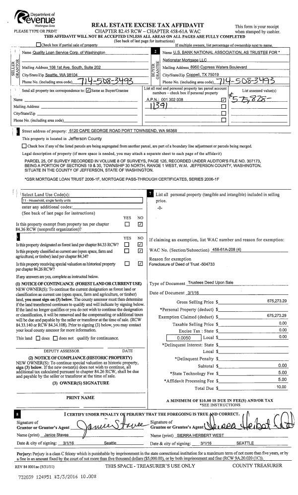
| 1 | 06/06/2017 | SWD | Statutory Warranty Deed | HMC ASSETS LLC | YEWAH LAU | | | $300,300.00 | 127951 | |
| 2 | 03/09/2017 | QCD | Quit Claim Deed | CAM REAL ESTATE XVIII LLC | HMC ASSETS LLC | | | | 127328 | |
| 3 | 10/20/2016 | QCD | Quit Claim Deed | CAM XVIII TRUST | CAM REAL ESTATE XVIII LLC | | | | 127187 | |
| 4 | 01/17/2017 | TRED | Trustee Deed | DENISE R FLEENER TRUSTEE | CAM XVIII TRUST | | | | 126990 | |
| 5 | 08/22/2007 | SWD | Statutory Warranty Deed | FLEENER, DENISE R | FLEENER, DENISE R/TRUSTEE | 0 | 0 | $0.00 | 109877 | 0 |
| 6 | 08/31/2006 | SWD | Statutory Warranty Deed | HOFFMAN, BRIAN | FLEENER, DENISE R | 0 | 0 | $278,000.00 | 107540 | 0 |
| 7 | 06/14/2001 | QCD | Quit Claim Deed | HOFFMAN-FRIEDMAN, BETH A/ | HOFFMAN, BRIAN | 0 | 0 | $0.00 | 92383 | 0 |
| 8 | 06/02/1999 | SWD | Statutory Warranty Deed | MAIER, BRADLEY R | HOFFMAN, BRIAN/BETH F | 0 | 0 | $121,000.00 | 87083 | 0 |
| 9 | 08/11/1995 | SWD | Statutory Warranty Deed | VANTAGE HOMES INC | MAIER, BRADLEY R | 0 | 0 | $130,640.00 | 77575 | 0 |
| 10 | 01/19/1995 | SWD | Statutory Warranty Deed | CAMPBELL, SEAN R/ANISSA A | VANTAGE HOMES INC | 0 | 0 | $18,000.00 | 76113 | 0 |
Payout Agreement
| No payout information available.. |