Property
Account |
| Property ID: | 27059 | Abbreviated Legal Description: | DUNDEE PLACE BLK 9 LOTS 1 & 2 |
| Parcel # / Geo ID: | 948000904 | Agent Code: | |
| Type: | Real | | |
| Tax Area: | 0110 - C-50F1E1H2 | Land Use Code | 11 |
| Open Space: | N | DFL | N |
| Historic Property: | N | Remodel Property: | N |
| Multi-Family Redevelopment: | N | | |
| Township: | 30N | Section: | 3 |
| Range: | 1W |
Location |
| Address: | 1507 UMATILLA AVE PORT TOWNSEND, WA 98368 | Mapsco: | 017/011 |
| Neighborhood: | DUNDEE PLATS | Map ID: | |
| Neighborhood CD: | 6075 |
Owner |
| Name: | DOUGLAS D PIERCE LIVING TRUST | Owner ID: | 108264 |
| Mailing Address: | DOUGLAS D PIERCE TRUSTEE 1507 UMATILLA AVE PORT TOWNSEND, WA 98368-4849 | % Ownership: | 100.0000000000% |
| | | Exemptions: | |
Pay Tax Due
There is currently No Amount Due on this property.
Taxes and Assessment Details
Property Tax Information as of
10/24/2025
Click on "Statement Details" to expand or collapse a tax statement.
* Please enter a valid date ** Please enter a valid date *
Statement Details |
| | TOTAL: | $0.00 | $0.00 | $0.00 | $0.00 | $0.00 | $0.00 |
|
| | $0.00 | $0.00 | $0.00 | $0.00 | $0.00 | $0.00 |
Values
| (+) Improvement Homesite Value: | + | $0 | |
| (+) Improvement Non-Homesite Value: | + | $279,648 | |
| (+) Land Homesite Value: | + | $0 | |
| (+) Land Non-Homesite Value: | + | $166,000 | |
| (+) Curr Use (HS): | + | $0 | $0 |
| (+) Curr Use (NHS): | + | $0 | $0 |
| | | -------------------------- | |
| (=) Market Value: | = | $445,648 | |
| (–) Productivity Loss: | – | $0 | |
| | | -------------------------- | |
| (=) Subtotal: | = | $445,648 | |
| (+) Senior Appraised Value: | + | $0 | |
| (+) Non-Senior Appraised Value: | + | $445,648 | |
| | | -------------------------- | |
| (=) Total Appraised Value: | = | $445,648 | |
| (–) Senior Exemption Loss: | – | $0 | |
| (–) Exemption Loss: | – | $0 | |
| | | -------------------------- | |
| (=) Taxable Value: | = | $445,648 | |
Taxing Jurisdiction
| Owner: | DOUGLAS D PIERCE LIVING TRUST | | |
| % Ownership: | 100.0000000000% | | |
| Total Value: | N/A | | |
| Tax Area: | 0110 - C-50F1E1H2 |
| CE | COUNTY CURRENT EXPENSE | N/A | N/A | N/A | N/A | | |
| CNTYDD | DEVELOPMENTAL DISABILITIES | N/A | N/A | N/A | N/A | | |
| CNTYVET | VETERANS RELIEF | N/A | N/A | N/A | N/A | | |
| MENTAL | MENTAL HEALTH | N/A | N/A | N/A | N/A | | |
| PTGEN | CITY OF PT GENERAL | N/A | N/A | N/A | N/A | | |
| PTLLL | CITY OF PT - LIBRARY LID LIFT | N/A | N/A | N/A | N/A | | |
| PTMVBOND | CITY OF PT MV BOND | N/A | N/A | N/A | N/A | | |
| HOSP2CASH | HOSP DIST #2 GENERAL | N/A | N/A | N/A | N/A | | |
| SCH50BOND | SCHOOL DIST #50 BOND 2016 | N/A | N/A | N/A | N/A | | |
| SCH50CP | SCHOOL DIST #50 CAP PROJ | N/A | N/A | N/A | N/A | | |
| SCH50MO | SCHOOL DIST #50 EP & O | N/A | N/A | N/A | N/A | | |
| CONSERVE | CONSERVATION FUTURES | N/A | N/A | N/A | N/A | | |
| EMS1 | FIRE DIST #1 EMS | N/A | N/A | N/A | N/A | | |
| FD1 | FIRE DIST #1 GENERAL | N/A | N/A | N/A | N/A | | |
| PORTPT | PORT OF PT GENERAL | N/A | N/A | N/A | N/A | | |
| PORTPTIDD | PORT OF PT IDD 2019 | N/A | N/A | N/A | N/A | | |
| PUD1 | PUD #1 GENERAL | N/A | N/A | N/A | N/A | | |
| STATE | STATE SCHOOL PART 1 | N/A | N/A | N/A | N/A | | |
| STATE2 | STATE SCHOOL PART 2 | N/A | N/A | N/A | N/A | | |
| | Total Tax Rate: | N/A | | | | | |
| | | | | Taxes w/Current Exemptions: | N/A | | |
| | | | | Taxes w/o Exemptions: | N/A | | |
Improvement / Building
| Improvement #1: | Residential Bldg | State Code: | 11 | 1148.0 sqft | Value: | $279,648 |
| Bathrooms (#): | 2 (FULL) | Bedrooms (#): | 3 | | Exterior Wall: | PL/T1 | Fireplace: | SIN 1-GOOD | | Floor Construction: | FRAME | Foundation: | CONPR | | Heating/Cooling: | ELBB | Roof Cover: | COMP |
|
| | Type | Description | Class CD | Sub Class CD | Year Built | Area |
| | MA | Main Area | 3+ | 1S | 1979 | 1148.0 |
| | HCPOR | House Concrete Porch | 3 | * | 1979 | 24.0 |
| | HDECK | House Deck | 3 | * | 1979 | 100.0 |
| | GATT | House Attached Garage | 4 | * | 1979 | 564.0 |
| | SHED | Shed (Table Not Dep) | 4 | * | 1979 | 88.0 |
| | CONCD | Concrete Drive | 3 | * | 1979 | 480.0 |
| | HWPOR | House Wood Porch | 3 | * | 1979 | 140.0 |
| | OTHER | Other | 3 | * | 2016 | 96.0 |
Sketch
Property Image
Land
| 1 | 6075-1165L | Fair Wtr/Terr View Lots w Access/Utilities Nearby | 0.0000 | 0.00 | 0.00 | 0.00 | 2.00 | $166,000 | $0 |
Roll Value History
| 2025 | N/A | N/A | N/A | N/A | N/A |
| 2024 | $250,515 | $165,900 | $0 | $416,415 | $416,415 |
| 2023 | $239,623 | $153,000 | $0 | $392,623 | $392,623 |
| 2022 | $239,623 | $148,000 | $0 | $387,623 | $387,623 |
| 2021 | $200,353 | $127,650 | $0 | $328,003 | $328,003 |
Deed and Sales History
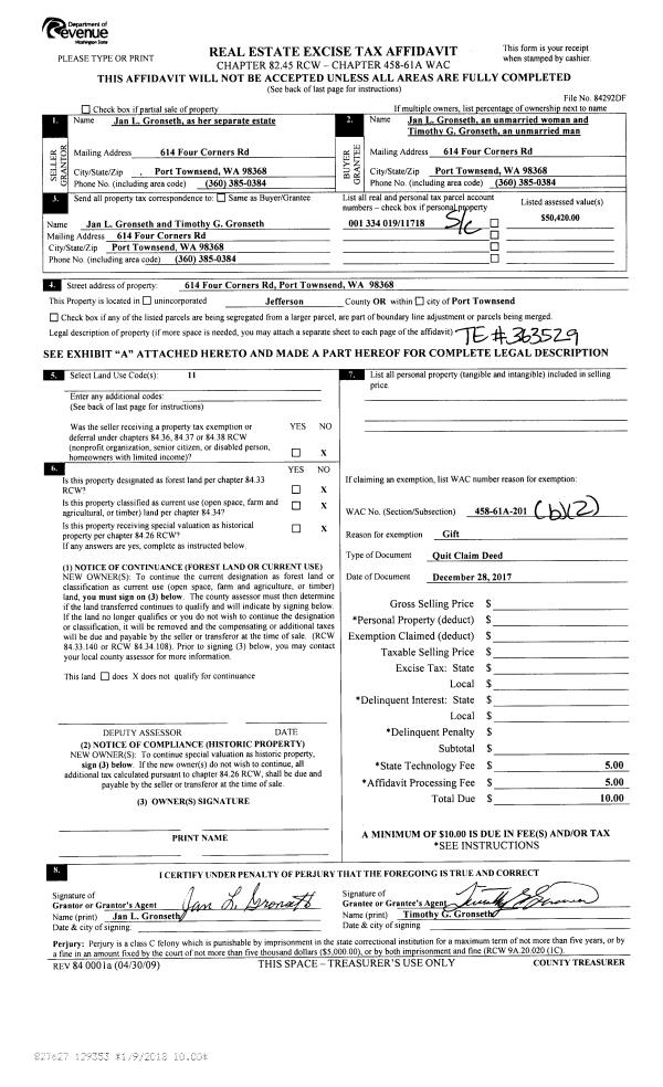
| 1 | 01/20/2023 | QCD | Quit Claim Deed | DOUGLAS D PIERCE | DOUGLAS D PIERCE LIVING TRUST | | | | 140442 | |
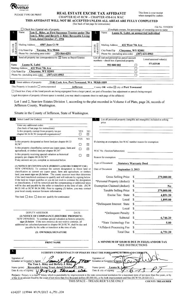
| 2 | 04/03/2018 | SWD | Statutory Warranty Deed | VICTOR K FLEMING JR | DOUGLAS D PIERCE | | | $250,000.00 | 129880 | |
| 3 | 05/18/2015 | SWD | Statutory Warranty Deed | NANCY N LITTLE | VICTOR K FLEMING JR | | | $280,000.00 | 123210 | |
| 4 | 04/04/2013 | SWD | Statutory Warranty Deed | RICHARD JAHRMARKT | NANCY N LITTLE | | | $178,000.00 | 119047 | |
| 5 | 03/03/2004 | SWD | Statutory Warranty Deed | UNGERECHT, CALVIN G | JAHRMARKT, RICHARD | 0 | 0 | $135,000.00 | 99657 | 0 |
Payout Agreement
| No payout information available.. |