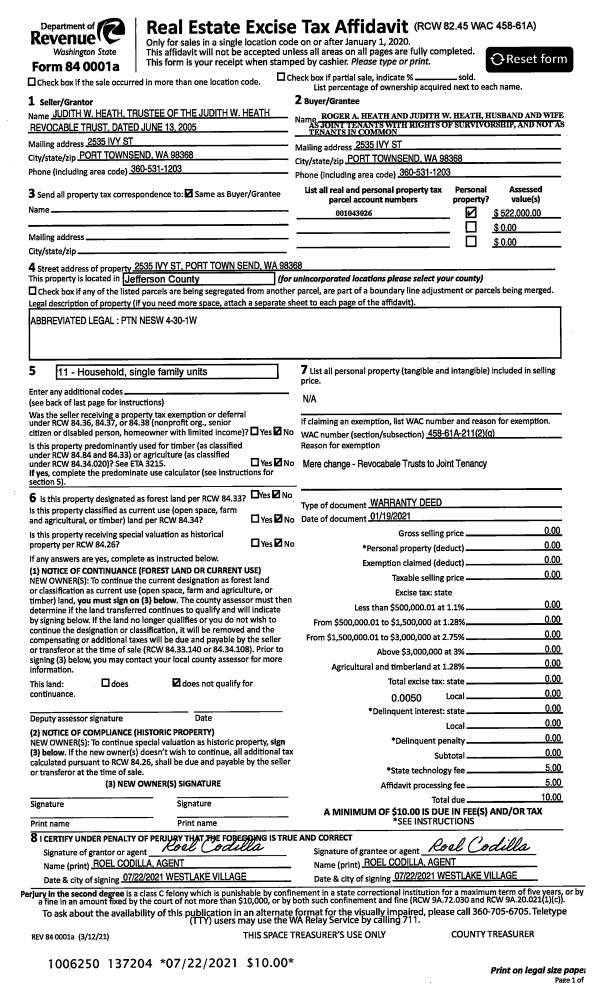
Property
Account |
| Property ID: | 27158 | Abbreviated Legal Description: | DUNDEE PLACE BLK 34 LOTS 8,9,17 & 18 LS N10' FOR R/W |
| Parcel # / Geo ID: | 948003407 | Agent Code: | |
| Type: | Real | | |
| Tax Area: | 0110 - C-50F1E1H2 | Land Use Code | 11 |
| Open Space: | N | DFL | N |
| Historic Property: | N | Remodel Property: | N |
| Multi-Family Redevelopment: | N | | |
| Township: | 30N | Section: | 3 |
| Range: | 1W |
Location |
| Address: | 888 CORONA AVE PORT TOWNSEND, WA 98368 | Mapsco: | 018/056 |
| Neighborhood: | DUNDEE PLATS | Map ID: | |
| Neighborhood CD: | 6075 |
Owner |
| Name: | SCOTT FRANCE & GILLIAN SCOTT | Owner ID: | 106103 |
| Mailing Address: | 888 CORONA ST PORT TOWNSEND, WA 98368-4920 | % Ownership: | 100.0000000000% |
| | | Exemptions: | |
Pay Tax Due
There is currently No Amount Due on this property.
Taxes and Assessment Details
Property Tax Information as of
10/24/2025
Click on "Statement Details" to expand or collapse a tax statement.
* Please enter a valid date ** Please enter a valid date *
Statement Details |
| | TOTAL: | $0.00 | $0.00 | $0.00 | $0.00 | $0.00 | $0.00 |
|
| | $0.00 | $0.00 | $0.00 | $0.00 | $0.00 | $0.00 |
Values
| (+) Improvement Homesite Value: | + | $0 | |
| (+) Improvement Non-Homesite Value: | + | $667,798 | |
| (+) Land Homesite Value: | + | $0 | |
| (+) Land Non-Homesite Value: | + | $229,400 | |
| (+) Curr Use (HS): | + | $0 | $0 |
| (+) Curr Use (NHS): | + | $0 | $0 |
| | | -------------------------- | |
| (=) Market Value: | = | $897,198 | |
| (–) Productivity Loss: | – | $0 | |
| | | -------------------------- | |
| (=) Subtotal: | = | $897,198 | |
| (+) Senior Appraised Value: | + | $0 | |
| (+) Non-Senior Appraised Value: | + | $897,198 | |
| | | -------------------------- | |
| (=) Total Appraised Value: | = | $897,198 | |
| (–) Senior Exemption Loss: | – | $0 | |
| (–) Exemption Loss: | – | $0 | |
| | | -------------------------- | |
| (=) Taxable Value: | = | $897,198 | |
Taxing Jurisdiction
| Owner: | SCOTT FRANCE & GILLIAN SCOTT | | |
| % Ownership: | 100.0000000000% | | |
| Total Value: | N/A | | |
| Tax Area: | 0110 - C-50F1E1H2 |
| CE | COUNTY CURRENT EXPENSE | N/A | N/A | N/A | N/A | | |
| CNTYDD | DEVELOPMENTAL DISABILITIES | N/A | N/A | N/A | N/A | | |
| CNTYVET | VETERANS RELIEF | N/A | N/A | N/A | N/A | | |
| MENTAL | MENTAL HEALTH | N/A | N/A | N/A | N/A | | |
| PTGEN | CITY OF PT GENERAL | N/A | N/A | N/A | N/A | | |
| PTLLL | CITY OF PT - LIBRARY LID LIFT | N/A | N/A | N/A | N/A | | |
| PTMVBOND | CITY OF PT MV BOND | N/A | N/A | N/A | N/A | | |
| HOSP2CASH | HOSP DIST #2 GENERAL | N/A | N/A | N/A | N/A | | |
| SCH50BOND | SCHOOL DIST #50 BOND 2016 | N/A | N/A | N/A | N/A | | |
| SCH50CP | SCHOOL DIST #50 CAP PROJ | N/A | N/A | N/A | N/A | | |
| SCH50MO | SCHOOL DIST #50 EP & O | N/A | N/A | N/A | N/A | | |
| CONSERVE | CONSERVATION FUTURES | N/A | N/A | N/A | N/A | | |
| EMS1 | FIRE DIST #1 EMS | N/A | N/A | N/A | N/A | | |
| FD1 | FIRE DIST #1 GENERAL | N/A | N/A | N/A | N/A | | |
| PORTPT | PORT OF PT GENERAL | N/A | N/A | N/A | N/A | | |
| PORTPTIDD | PORT OF PT IDD 2019 | N/A | N/A | N/A | N/A | | |
| PUD1 | PUD #1 GENERAL | N/A | N/A | N/A | N/A | | |
| STATE | STATE SCHOOL PART 1 | N/A | N/A | N/A | N/A | | |
| STATE2 | STATE SCHOOL PART 2 | N/A | N/A | N/A | N/A | | |
| | Total Tax Rate: | N/A | | | | | |
| | | | | Taxes w/Current Exemptions: | N/A | | |
| | | | | Taxes w/o Exemptions: | N/A | | |
Improvement / Building
| Improvement #1: | Residential Bldg | State Code: | 11 | 1744.0 sqft | Value: | $667,798 |
| Bathrooms (#): | 2 (FULL) | Bedrooms (#): | 3 | | Exterior Wall: | MASON | Fireplace: | DBL 2-GOOD | | Floor Construction: | FRAME | Foundation: | CONPR | | Interior Finish: | FIN | Roof Cover: | COMP |
|
| | Type | Description | Class CD | Sub Class CD | Year Built | Area |
| | MA | Main Area | 5- | 2S | 2023 | 908.0 |
| | MA2 | Second Floor Main Area | 5- | 2S | 2023 | 836.0 |
| | BSMTF | House basement finished | 5 | | 2023 | 418.0 |
| | BSMTU | House basement unfinished | 5 | 2S | 2023 | 486.0 |
| | HCPOR | House Concrete Porch | 5 | 2S | 2023 | 200.0 |
Sketch
Property Image
Land
| 1 | 6075-1177L | XS Lots or Lots with Limited Access | 0.0000 | 0.00 | 0.00 | 0.00 | 1.00 | $29,400 | $0 |
| 2 | 6075-1165L | Fair Wtr/Terr View Lots w Access/Utilities Nearby | 0.0000 | 0.00 | 0.00 | 0.00 | 2.00 | $200,000 | $0 |
Roll Value History
| 2025 | N/A | N/A | N/A | N/A | N/A |
| 2024 | $677,820 | $228,312 | $0 | $906,132 | $906,132 |
| 2023 | $286,297 | $212,440 | $0 | $498,737 | $498,737 |
| 2022 | $0 | $187,440 | $0 | $187,440 | $187,440 |
| 2021 | $0 | $207,667 | $0 | $207,667 | $207,667 |
Deed and Sales History
| 1 | 12/08/2021 | SWD | Statutory Warranty Deed | JAMES S FEIT | SCOTT FRANCE & GILLIAN SCOTT | | | $194,000.00 | 138211 | |
| 2 | 01/04/2000 | SWD | Statutory Warranty Deed | POLLACK, MICHAEL/KATHRINE | FEIT, JAMES S | 0 | 0 | $40,000.00 | 88788 | 0 |
| 3 | 10/28/1993 | QCD | Quit Claim Deed | ILGEN, ED/PATRICIA | POLLACK, MICHAEL/KATHRINE | 0 | 0 | $0.00 | 72473 | 0 |
Payout Agreement
| No payout information available.. |