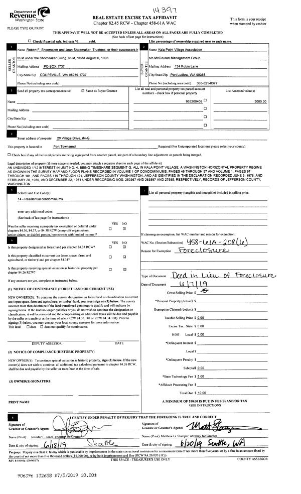
Property
Account |
| Property ID: | 27171 | Abbreviated Legal Description: | DUNDEE PLACE BLK 37 LOTS 5,6,7(S25'EA),8(ALL) W/EASE |
| Parcel # / Geo ID: | 948003709 | Agent Code: | |
| Type: | Real | | |
| Tax Area: | 0110 - C-50F1E1H2 | Land Use Code | 11 |
| Open Space: | N | DFL | N |
| Historic Property: | N | Remodel Property: | N |
| Multi-Family Redevelopment: | N | | |
| Township: | 30N | Section: | 3 |
| Range: | 1W |
Location |
| Address: | 3144 SHERIDAN ST PORT TOWNSEND, WA 98368 | Mapsco: | 019/006 |
| Neighborhood: | DUNDEE PLATS | Map ID: | |
| Neighborhood CD: | 6075 |
Owner |
| Name: | DAVID P OLSEN | Owner ID: | 23933 |
| Mailing Address: | DEBORAH P OLSEN 2023 E SIMS WAY #176 PORT TOWNSEND, WA 98368-6905 | % Ownership: | 100.0000000000% |
| | | Exemptions: | |
Pay Tax Due
There is currently No Amount Due on this property.
Taxes and Assessment Details
Property Tax Information as of
10/24/2025
Click on "Statement Details" to expand or collapse a tax statement.
* Please enter a valid date ** Please enter a valid date *
Statement Details |
| | TOTAL: | $0.00 | $0.00 | $0.00 | $0.00 | $0.00 | $0.00 |
|
| | $0.00 | $0.00 | $0.00 | $0.00 | $0.00 | $0.00 |
Values
| (+) Improvement Homesite Value: | + | $0 | |
| (+) Improvement Non-Homesite Value: | + | $294,408 | |
| (+) Land Homesite Value: | + | $0 | |
| (+) Land Non-Homesite Value: | + | $143,050 | |
| (+) Curr Use (HS): | + | $0 | $0 |
| (+) Curr Use (NHS): | + | $0 | $0 |
| | | -------------------------- | |
| (=) Market Value: | = | $437,458 | |
| (–) Productivity Loss: | – | $0 | |
| | | -------------------------- | |
| (=) Subtotal: | = | $437,458 | |
| (+) Senior Appraised Value: | + | $0 | |
| (+) Non-Senior Appraised Value: | + | $437,458 | |
| | | -------------------------- | |
| (=) Total Appraised Value: | = | $437,458 | |
| (–) Senior Exemption Loss: | – | $0 | |
| (–) Exemption Loss: | – | $0 | |
| | | -------------------------- | |
| (=) Taxable Value: | = | $437,458 | |
Taxing Jurisdiction
| Owner: | DAVID P OLSEN | | |
| % Ownership: | 100.0000000000% | | |
| Total Value: | N/A | | |
| Tax Area: | 0110 - C-50F1E1H2 |
| CE | COUNTY CURRENT EXPENSE | N/A | N/A | N/A | N/A | | |
| CNTYDD | DEVELOPMENTAL DISABILITIES | N/A | N/A | N/A | N/A | | |
| CNTYVET | VETERANS RELIEF | N/A | N/A | N/A | N/A | | |
| MENTAL | MENTAL HEALTH | N/A | N/A | N/A | N/A | | |
| PTGEN | CITY OF PT GENERAL | N/A | N/A | N/A | N/A | | |
| PTLLL | CITY OF PT - LIBRARY LID LIFT | N/A | N/A | N/A | N/A | | |
| PTMVBOND | CITY OF PT MV BOND | N/A | N/A | N/A | N/A | | |
| HOSP2CASH | HOSP DIST #2 GENERAL | N/A | N/A | N/A | N/A | | |
| SCH50BOND | SCHOOL DIST #50 BOND 2016 | N/A | N/A | N/A | N/A | | |
| SCH50CP | SCHOOL DIST #50 CAP PROJ | N/A | N/A | N/A | N/A | | |
| SCH50MO | SCHOOL DIST #50 EP & O | N/A | N/A | N/A | N/A | | |
| CONSERVE | CONSERVATION FUTURES | N/A | N/A | N/A | N/A | | |
| EMS1 | FIRE DIST #1 EMS | N/A | N/A | N/A | N/A | | |
| FD1 | FIRE DIST #1 GENERAL | N/A | N/A | N/A | N/A | | |
| PORTPT | PORT OF PT GENERAL | N/A | N/A | N/A | N/A | | |
| PORTPTIDD | PORT OF PT IDD 2019 | N/A | N/A | N/A | N/A | | |
| PUD1 | PUD #1 GENERAL | N/A | N/A | N/A | N/A | | |
| STATE | STATE SCHOOL PART 1 | N/A | N/A | N/A | N/A | | |
| STATE2 | STATE SCHOOL PART 2 | N/A | N/A | N/A | N/A | | |
| | Total Tax Rate: | N/A | | | | | |
| | | | | Taxes w/Current Exemptions: | N/A | | |
| | | | | Taxes w/o Exemptions: | N/A | | |
Improvement / Building
| Improvement #1: | Residential Bldg | State Code: | 11 | 1038.0 sqft | Value: | $294,408 |
| Bathrooms (#): | 1 (FULL) | Bedrooms (#): | 3 | | Exterior Wall: | PL/T1 | Fireplace: | PROPS-GOOD | | Floor Construction: | FRAME | Foundation: | CONPR | | Heating/Cooling: | ELBB | Roof Cover: | COMP |
|
| | Type | Description | Class CD | Sub Class CD | Year Built | Area |
| | MA | Main Area | 4+ | 1S | 1977 | 1038.0 |
| | GATT | House Attached Garage | 4 | * | 1977 | 325.0 |
| | SHED | Shed (Table Not Dep) | 4 | * | 1977 | 48.0 |
| | PATIO | House Patio | 4 | * | 1977 | 434.2 |
| | CONCD | Concrete Drive | 4 | * | 1977 | 200.0 |
Sketch
Property Image
Land
| 1 | 6075-1165L | Fair Wtr/Terr View Lots w Access/Utilities Nearby | 0.0000 | 0.00 | 0.00 | 0.00 | 1.00 | $143,050 | $0 |
Roll Value History
| 2025 | N/A | N/A | N/A | N/A | N/A |
| 2024 | $249,705 | $143,220 | $0 | $392,925 | $392,925 |
| 2023 | $238,849 | $131,400 | $0 | $370,249 | $370,249 |
| 2022 | $238,849 | $126,400 | $0 | $365,249 | $365,249 |
| 2021 | $199,707 | $109,020 | $0 | $308,727 | $308,727 |
Deed and Sales History
| 1 | 03/10/2014 | SWD | Statutory Warranty Deed | DEREK T FALKENHAGEN | DAVID P OLSEN | | | $200,000.00 | 120870 | |
| 2 | 04/21/2006 | SWD | Statutory Warranty Deed | FOGUS, MICHELLE | FALKENHAGEN, DEREK | | | $210,000.00 | 106482 | 0 |
| 3 | 11/07/2003 | QCD | Quit Claim Deed | GOMPERT, CHRISTOPHER | FOGUS, MICHELLE | 0 | 0 | $0.00 | 98796 | 0 |
| 4 | 11/06/2003 | SWD | Statutory Warranty Deed | GOODRICH, QUENTIN/JOY | FOGUS, MICHELLE | 0 | 0 | $142,000.00 | 98793 | 0 |
| 5 | 08/13/2003 | QCD | Quit Claim Deed | GOMPERT, CHRISTOPHER | FOGUS, MICHELLE | 0 | 0 | $0.00 | 98795 | 0 |
| 6 | 07/03/1996 | SWD | Statutory Warranty Deed | HUNTINGFORD, DANIEL/LOUIS | GOODRICH, QUENTIN/JOY | 0 | 0 | $80,000.00 | 79859 | 0 |
Payout Agreement
| No payout information available.. |