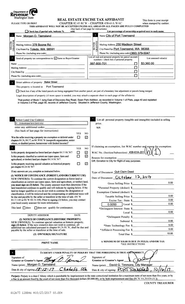
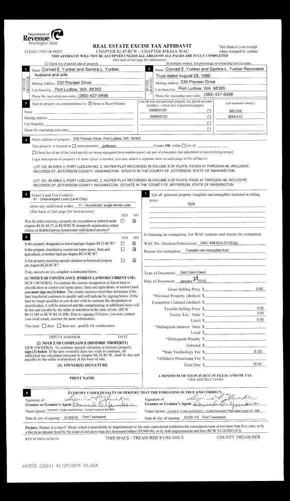
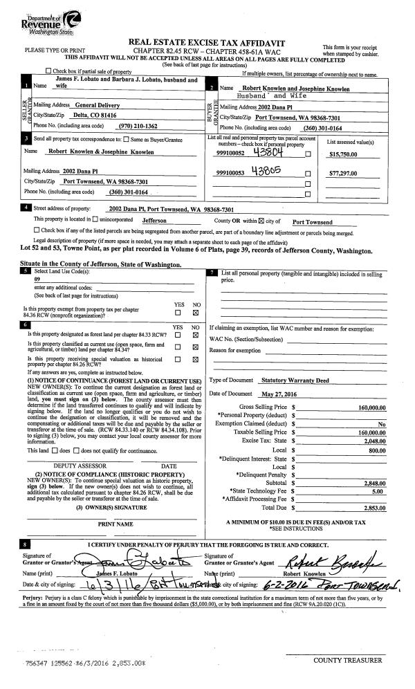
Property
Account |
| Property ID: | 27261 | Abbreviated Legal Description: | EDGEWOOD VILLAGE LOT 7 |
| Parcel # / Geo ID: | 948200007 | Agent Code: | |
| Type: | Real | | |
| Tax Area: | 0213 - 1-49F1E1H2L1 | Land Use Code | 11 |
| Open Space: | N | DFL | N |
| Historic Property: | N | Remodel Property: | N |
| Multi-Family Redevelopment: | N | | |
| Township: | 28N | Section: | 20 |
| Range: | 1E |
Location |
| Address: | 224 EDGEWOOD DR PORT LUDLOW, WA 98365 | Mapsco: | 023/007 |
| Neighborhood: | SOUTH BAY 1, 2, & 3; EDGEWOOD AND GREENVIEW VILLAGES | Map ID: | |
| Neighborhood CD: | 3355 |
Owner |
| Name: | STEVEN P & CYNTHIA L SCILLITANI | Owner ID: | 99494 |
| Mailing Address: | 224 EDGEWOOD DR PORT LUDLOW, WA 98365 | % Ownership: | 100.0000000000% |
| | | Exemptions: | |
Pay Tax Due
There is currently No Amount Due on this property.
Taxes and Assessment Details
Property Tax Information as of
10/24/2025
Click on "Statement Details" to expand or collapse a tax statement.
* Please enter a valid date ** Please enter a valid date *
Statement Details |
| | TOTAL: | $0.00 | $0.00 | $0.00 | $0.00 | $0.00 | $0.00 |
|
| | $0.00 | $0.00 | $0.00 | $0.00 | $0.00 | $0.00 |
Values
| (+) Improvement Homesite Value: | + | $0 | |
| (+) Improvement Non-Homesite Value: | + | $630,564 | |
| (+) Land Homesite Value: | + | $0 | |
| (+) Land Non-Homesite Value: | + | $185,000 | |
| (+) Curr Use (HS): | + | $0 | $0 |
| (+) Curr Use (NHS): | + | $0 | $0 |
| | | -------------------------- | |
| (=) Market Value: | = | $815,564 | |
| (–) Productivity Loss: | – | $0 | |
| | | -------------------------- | |
| (=) Subtotal: | = | $815,564 | |
| (+) Senior Appraised Value: | + | $0 | |
| (+) Non-Senior Appraised Value: | + | $815,564 | |
| | | -------------------------- | |
| (=) Total Appraised Value: | = | $815,564 | |
| (–) Senior Exemption Loss: | – | $0 | |
| (–) Exemption Loss: | – | $0 | |
| | | -------------------------- | |
| (=) Taxable Value: | = | $815,564 | |
Taxing Jurisdiction
| Owner: | STEVEN P & CYNTHIA L SCILLITANI | | |
| % Ownership: | 100.0000000000% | | |
| Total Value: | N/A | | |
| Tax Area: | 0213 - 1-49F1E1H2L1 |
| CE | COUNTY CURRENT EXPENSE | N/A | N/A | N/A | N/A | | |
| CNTYDD | DEVELOPMENTAL DISABILITIES | N/A | N/A | N/A | N/A | | |
| CNTYVET | VETERANS RELIEF | N/A | N/A | N/A | N/A | | |
| MENTAL | MENTAL HEALTH | N/A | N/A | N/A | N/A | | |
| ROADS | COUNTY ROADS | N/A | N/A | N/A | N/A | | |
| ROADSCU | COUNTY ROADS TO CUR EXP | N/A | N/A | N/A | N/A | | |
| HOSP2CASH | HOSP DIST #2 GENERAL | N/A | N/A | N/A | N/A | | |
| SCH49CP | SCHOOL DIST #49 CAP PROJ | N/A | N/A | N/A | N/A | | |
| SCH49MO | SCHOOL DIST #49 EP & O | N/A | N/A | N/A | N/A | | |
| CONSERVE | CONSERVATION FUTURES | N/A | N/A | N/A | N/A | | |
| EMS1 | FIRE DIST #1 EMS | N/A | N/A | N/A | N/A | | |
| FD1 | FIRE DIST #1 GENERAL | N/A | N/A | N/A | N/A | | |
| LIB1 | LIBRARY DIST #1 GENERAL | N/A | N/A | N/A | N/A | | |
| PORTPT | PORT OF PT GENERAL | N/A | N/A | N/A | N/A | | |
| PORTPTIDD | PORT OF PT IDD 2019 | N/A | N/A | N/A | N/A | | |
| PUD1 | PUD #1 GENERAL | N/A | N/A | N/A | N/A | | |
| STATE | STATE SCHOOL PART 1 | N/A | N/A | N/A | N/A | | |
| STATE2 | STATE SCHOOL PART 2 | N/A | N/A | N/A | N/A | | |
| | Total Tax Rate: | N/A | | | | | |
| | | | | Taxes w/Current Exemptions: | N/A | | |
| | | | | Taxes w/o Exemptions: | N/A | | |
Improvement / Building
| Improvement #1: | Residential Bldg | State Code: | 11 | 2982.0 sqft | Value: | $630,564 |
| Bathrooms (#): | 2 (FULL) | Bathrooms (#): | 1 (HALF) | | Bedrooms (#): | 3 | Exterior Wall: | SI/ST | | Floor Construction: | FRAME | Foundation: | CONPR | | Heating/Cooling: | HPUMP | Inside Verify: | YES | | Roof Cover: | COMP |   |   |
|
| | Type | Description | Class CD | Sub Class CD | Year Built | Area |
| | MA | Main Area | 5- | 15SF | 1997 | 1956.0 |
| | MA2 | Second Floor Main Area | 5- | 15SF | 1997 | 1026.0 |
| | PATIO | House Patio | 4 | 15SF | 1997 | 50.0 |
| | HCPOR | House Concrete Porch | 4 | 15SF | 1997 | 48.0 |
| | HDECK | House Deck | 4 | 15SF | 1997 | 810.0 |
| | GATT | House Attached Garage | 4 | 15SF | 1997 | 821.0 |
| | HWPOR | House Wood Porch | 4 | 15SF | 1997 | 108.0 |
| | CONCD | Concrete Drive | 4 | 15SF | 1997 | 2000.0 |
Sketch
Property Image
Land
| 1 | 3355-1143L | Superior View Sites South Bay | 0.0000 | 0.00 | 0.00 | 0.00 | 1.00 | $185,000 | $0 |
Roll Value History
| 2025 | N/A | N/A | N/A | N/A | N/A |
| 2024 | $630,564 | $185,000 | $0 | $815,564 | $815,564 |
| 2023 | $630,564 | $180,000 | $0 | $810,564 | $810,564 |
| 2022 | $630,564 | $175,000 | $0 | $805,564 | $805,564 |
| 2021 | $531,849 | $162,000 | $0 | $693,849 | $693,849 |
Deed and Sales History
| 1 | 06/20/2018 | SWD | Statutory Warranty Deed | THOMAS GISKE & HEIDI LEE | STEVEN P & CYNTHIA L SCILLITANI | | | $598,000.00 | 130477 | |
| 2 | 04/21/2017 | SWD | Statutory Warranty Deed | MARC G & KERRI B KOENIG SR | THOMAS GISKE & HEIDI LEE | | | $510,000.00 | 127571 | |
| 3 | 12/20/2012 | SWD | Statutory Warranty Deed | CHULSOON KHANG TRSTEE | MARC G & KERRI B KOENIG SR | | | $419,500.00 | 118545 | |
| 4 | 06/23/2011 | QCD | Quit Claim Deed | KHANG, CHULSOON/YEE YU | KHANG, CHULSOON/YEE YU TRUSTEE | | | $0.00 | 116176 | 0 |
| 5 | 08/30/1996 | SWD | Statutory Warranty Deed | RIDGE FAMILY TRUST | KHANG, CHULSOON/YEE YU | 0 | 0 | $109,250.00 | 80304 | 0 |
| 6 | 06/29/1995 | QCD | Quit Claim Deed | RIDGE, RONALD R/IMOGENE I | RIDGE FAMILY TRUST | 0 | 0 | $0.00 | 77264 | 0 |
| 7 | 06/28/1995 | SWD | Statutory Warranty Deed | POPE RESOURCES | RIDGE, RONALD/IMOGENE | 0 | 0 | $75,000.00 | 77240 | 0 |
Payout Agreement
| No payout information available.. |