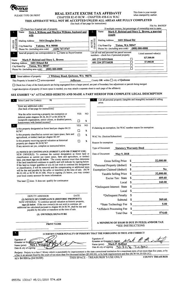
Property
Account |
| Property ID: | 27270 | Abbreviated Legal Description: | EDGEWOOD VILLAGE LOT 16 |
| Parcel # / Geo ID: | 948200016 | Agent Code: | |
| Type: | Real | | |
| Tax Area: | 0213 - 1-49F1E1H2L1 | Land Use Code | 11 |
| Open Space: | N | DFL | N |
| Historic Property: | N | Remodel Property: | N |
| Multi-Family Redevelopment: | N | | |
| Township: | 28N | Section: | 20 |
| Range: | 1E |
Location |
| Address: | 101 EDGEWOOD DR PORT LUDLOW, WA 98365 | Mapsco: | 023/016 |
| Neighborhood: | SOUTH BAY 1, 2, & 3; EDGEWOOD AND GREENVIEW VILLAGES | Map ID: | |
| Neighborhood CD: | 3355 |
Owner |
| Name: | VIOREL I & CARMEN ARIMESCU | Owner ID: | 100700 |
| Mailing Address: | 101 EDGEWOOD DR PORT LUDLOW, WA 98365 | % Ownership: | 100.0000000000% |
| | | Exemptions: | |
Pay Tax Due
There is currently No Amount Due on this property.
Taxes and Assessment Details
Property Tax Information as of
10/24/2025
Click on "Statement Details" to expand or collapse a tax statement.
* Please enter a valid date ** Please enter a valid date *
Statement Details |
| | TOTAL: | $0.00 | $0.00 | $0.00 | $0.00 | $0.00 | $0.00 |
|
| | $0.00 | $0.00 | $0.00 | $0.00 | $0.00 | $0.00 |
Values
| (+) Improvement Homesite Value: | + | $0 | |
| (+) Improvement Non-Homesite Value: | + | $448,751 | |
| (+) Land Homesite Value: | + | $0 | |
| (+) Land Non-Homesite Value: | + | $150,000 | |
| (+) Curr Use (HS): | + | $0 | $0 |
| (+) Curr Use (NHS): | + | $0 | $0 |
| | | -------------------------- | |
| (=) Market Value: | = | $598,751 | |
| (–) Productivity Loss: | – | $0 | |
| | | -------------------------- | |
| (=) Subtotal: | = | $598,751 | |
| (+) Senior Appraised Value: | + | $0 | |
| (+) Non-Senior Appraised Value: | + | $598,751 | |
| | | -------------------------- | |
| (=) Total Appraised Value: | = | $598,751 | |
| (–) Senior Exemption Loss: | – | $0 | |
| (–) Exemption Loss: | – | $0 | |
| | | -------------------------- | |
| (=) Taxable Value: | = | $598,751 | |
Taxing Jurisdiction
| Owner: | VIOREL I & CARMEN ARIMESCU | | |
| % Ownership: | 100.0000000000% | | |
| Total Value: | N/A | | |
| Tax Area: | 0213 - 1-49F1E1H2L1 |
| CE | COUNTY CURRENT EXPENSE | N/A | N/A | N/A | N/A | | |
| CNTYDD | DEVELOPMENTAL DISABILITIES | N/A | N/A | N/A | N/A | | |
| CNTYVET | VETERANS RELIEF | N/A | N/A | N/A | N/A | | |
| MENTAL | MENTAL HEALTH | N/A | N/A | N/A | N/A | | |
| ROADS | COUNTY ROADS | N/A | N/A | N/A | N/A | | |
| ROADSCU | COUNTY ROADS TO CUR EXP | N/A | N/A | N/A | N/A | | |
| HOSP2CASH | HOSP DIST #2 GENERAL | N/A | N/A | N/A | N/A | | |
| SCH49CP | SCHOOL DIST #49 CAP PROJ | N/A | N/A | N/A | N/A | | |
| SCH49MO | SCHOOL DIST #49 EP & O | N/A | N/A | N/A | N/A | | |
| CONSERVE | CONSERVATION FUTURES | N/A | N/A | N/A | N/A | | |
| EMS1 | FIRE DIST #1 EMS | N/A | N/A | N/A | N/A | | |
| FD1 | FIRE DIST #1 GENERAL | N/A | N/A | N/A | N/A | | |
| LIB1 | LIBRARY DIST #1 GENERAL | N/A | N/A | N/A | N/A | | |
| PORTPT | PORT OF PT GENERAL | N/A | N/A | N/A | N/A | | |
| PORTPTIDD | PORT OF PT IDD 2019 | N/A | N/A | N/A | N/A | | |
| PUD1 | PUD #1 GENERAL | N/A | N/A | N/A | N/A | | |
| STATE | STATE SCHOOL PART 1 | N/A | N/A | N/A | N/A | | |
| STATE2 | STATE SCHOOL PART 2 | N/A | N/A | N/A | N/A | | |
| | Total Tax Rate: | N/A | | | | | |
| | | | | Taxes w/Current Exemptions: | N/A | | |
| | | | | Taxes w/o Exemptions: | N/A | | |
Improvement / Building
| Improvement #1: | Residential Bldg | State Code: | 11 | 1876.0 sqft | Value: | $448,751 |
| Bathrooms (#): | 2 (FULL) | Bedrooms (#): | 3 | | Exterior Wall: | SI/ST | Fireplace: | SIN 1-GOOD | | Fireplace: | PROPS-GOOD | Floor Construction: | FRAME | | Foundation: | CONPR | Heating/Cooling: | F/A | | Inside Verify: | YES | Roof Cover: | COMP |
|
| | Type | Description | Class CD | Sub Class CD | Year Built | Area |
| | MA | Main Area | 4- | 1S | 1996 | 1876.0 |
| | PATIO | House Patio | 4 | 1S | 1996 | 224.0 |
| | HWPOR | House Wood Porch | 4 | 1S | 1996 | 110.0 |
| | HDECK | House Deck | 4 | 1S | 1996 | 279.0 |
| | GATT | House Attached Garage | 4 | 1S | 1996 | 552.0 |
| | BSMTU | House basement unfinished | 4 | 1S | 1996 | 800.0 |
| | CONCD | Concrete Drive | 4 | 1S | 1996 | 800.0 |
Sketch
Property Image
Land
| 1 | 3355-1145L | Good Water/Terr View Lots Edgewood Village | 0.0000 | 0.00 | 0.00 | 0.00 | 1.00 | $150,000 | $0 |
Roll Value History
| 2025 | N/A | N/A | N/A | N/A | N/A |
| 2024 | $448,751 | $150,000 | $0 | $598,751 | $598,751 |
| 2023 | $448,751 | $145,000 | $0 | $593,751 | $593,751 |
| 2022 | $448,751 | $140,000 | $0 | $588,751 | $588,751 |
| 2021 | $319,351 | $120,900 | $0 | $440,251 | $440,251 |
Deed and Sales History
| 1 | 03/12/2019 | SWD | Statutory Warranty Deed | LAURA DEE & EDWARD J TONER III | VIOREL I & CARMEN ARIMESCU | | | $476,000.00 | 131966 | |
| 2 | 03/29/2013 | SWD | Statutory Warranty Deed | JOHN M GOLDEN TRUSTEE | LAURA DEE & EDWARD J TONER III | | | $280,000.00 | 118997 | |
| 3 | 05/16/2000 | QCD | Quit Claim Deed | GOLDEN, JOHN M/DIANE E | GOLDEN FAMILY TRUST | 0 | 0 | $0.00 | 89616 | 0 |
| 4 | 02/01/1995 | SWD | Statutory Warranty Deed | POPE RESOURCES | GOLDEN, JOHN M/DIANE E | 0 | 0 | $90,000.00 | 76289 | 0 |
Payout Agreement
| No payout information available.. |