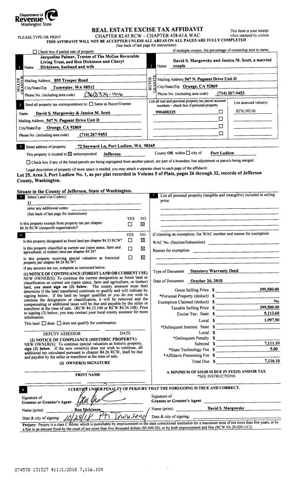
Property
Account |
| Property ID: | 27308 | Abbreviated Legal Description: | EISENBEIS ADDITION BLK 5 LOTS 5 & 6(ENLG BY TAX 41) BND TGTH THRU LLA#105262 |
| Parcel # / Geo ID: | 948300503 | Agent Code: | |
| Type: | Real | | |
| Tax Area: | 0110 - C-50F1E1H2 | Land Use Code | 11 |
| Open Space: | N | DFL | N |
| Historic Property: | N | Remodel Property: | N |
| Multi-Family Redevelopment: | N | | |
| Township: | 30N | Section: | 10 |
| Range: | 1W |
Location |
| Address: | 330 19TH ST PORT TOWNSEND, WA 98368 | Mapsco: | 021/026 |
| Neighborhood: | EISENBEIS, OC HASTINGS & SUPP, PINKS LESS VICTORIAN VILLAGE | Map ID: | |
| Neighborhood CD: | 6210 |
Owner |
| Name: | JOHN F PIATT & NANCY L NASLUND | Owner ID: | 71678 |
| Mailing Address: | 3039 SPRING ST PORT TOWNSEND, WA 98368-5915 | % Ownership: | 100.0000000000% |
| | | Exemptions: | |
Pay Tax Due
There is currently No Amount Due on this property.
Taxes and Assessment Details
Property Tax Information as of
10/24/2025
Click on "Statement Details" to expand or collapse a tax statement.
* Please enter a valid date ** Please enter a valid date *
Statement Details |
| | TOTAL: | $0.00 | $0.00 | $0.00 | $0.00 | $0.00 | $0.00 |
|
| | $0.00 | $0.00 | $0.00 | $0.00 | $0.00 | $0.00 |
Values
| (+) Improvement Homesite Value: | + | $0 | |
| (+) Improvement Non-Homesite Value: | + | $359,130 | |
| (+) Land Homesite Value: | + | $0 | |
| (+) Land Non-Homesite Value: | + | $255,000 | |
| (+) Curr Use (HS): | + | $0 | $0 |
| (+) Curr Use (NHS): | + | $0 | $0 |
| | | -------------------------- | |
| (=) Market Value: | = | $614,130 | |
| (–) Productivity Loss: | – | $0 | |
| | | -------------------------- | |
| (=) Subtotal: | = | $614,130 | |
| (+) Senior Appraised Value: | + | $0 | |
| (+) Non-Senior Appraised Value: | + | $614,130 | |
| | | -------------------------- | |
| (=) Total Appraised Value: | = | $614,130 | |
| (–) Senior Exemption Loss: | – | $0 | |
| (–) Exemption Loss: | – | $0 | |
| | | -------------------------- | |
| (=) Taxable Value: | = | $614,130 | |
Taxing Jurisdiction
| Owner: | JOHN F PIATT & NANCY L NASLUND | | |
| % Ownership: | 100.0000000000% | | |
| Total Value: | N/A | | |
| Tax Area: | 0110 - C-50F1E1H2 |
| CE | COUNTY CURRENT EXPENSE | N/A | N/A | N/A | N/A | | |
| CNTYDD | DEVELOPMENTAL DISABILITIES | N/A | N/A | N/A | N/A | | |
| CNTYVET | VETERANS RELIEF | N/A | N/A | N/A | N/A | | |
| MENTAL | MENTAL HEALTH | N/A | N/A | N/A | N/A | | |
| PTGEN | CITY OF PT GENERAL | N/A | N/A | N/A | N/A | | |
| PTLLL | CITY OF PT - LIBRARY LID LIFT | N/A | N/A | N/A | N/A | | |
| PTMVBOND | CITY OF PT MV BOND | N/A | N/A | N/A | N/A | | |
| HOSP2CASH | HOSP DIST #2 GENERAL | N/A | N/A | N/A | N/A | | |
| SCH50BOND | SCHOOL DIST #50 BOND 2016 | N/A | N/A | N/A | N/A | | |
| SCH50CP | SCHOOL DIST #50 CAP PROJ | N/A | N/A | N/A | N/A | | |
| SCH50MO | SCHOOL DIST #50 EP & O | N/A | N/A | N/A | N/A | | |
| CONSERVE | CONSERVATION FUTURES | N/A | N/A | N/A | N/A | | |
| EMS1 | FIRE DIST #1 EMS | N/A | N/A | N/A | N/A | | |
| FD1 | FIRE DIST #1 GENERAL | N/A | N/A | N/A | N/A | | |
| PORTPT | PORT OF PT GENERAL | N/A | N/A | N/A | N/A | | |
| PORTPTIDD | PORT OF PT IDD 2019 | N/A | N/A | N/A | N/A | | |
| PUD1 | PUD #1 GENERAL | N/A | N/A | N/A | N/A | | |
| STATE | STATE SCHOOL PART 1 | N/A | N/A | N/A | N/A | | |
| STATE2 | STATE SCHOOL PART 2 | N/A | N/A | N/A | N/A | | |
| | Total Tax Rate: | N/A | | | | | |
| | | | | Taxes w/Current Exemptions: | N/A | | |
| | | | | Taxes w/o Exemptions: | N/A | | |
Improvement / Building
| Improvement #1: | Residential Bldg | State Code: | 11 | 1484.0 sqft | Value: | $359,130 |
| Bathrooms (#): | 1 (FULL) | Bathrooms (#): | 1 (HALF) | | Bedrooms (#): | 3 | Exterior Wall: | PL/T1 | | Fireplace: | WD ST-AVG | Floor Construction: | FRAME | | Foundation: | CONPR | Heating/Cooling: | ELBB | | Inside Verify: | YES-FIX | Roof Cover: | COMP |
|
| | Type | Description | Class CD | Sub Class CD | Year Built | Area |
| | MA | Main Area | 4 | 1S | 1972 | 1484.0 |
| | PATIO | House Patio | 4 | 1S | 1972 | 664.0 |
| | GATT | House Attached Garage | 4 | 1S | 1972 | 288.0 |
| | SHED | Shed (Table Not Dep) | 4 | 1S | 1972 | 64.0 |
Sketch
Property Image
Land
| 1 | 6210-1175L | Standard Lot (Fair) | 0.0000 | 0.00 | 0.00 | 0.00 | 1.00 | $65,000 | $0 |
| 2 | 6210-1165L | Standard Lot (Avg) | 0.0000 | 0.00 | 0.00 | 0.00 | 1.00 | $190,000 | $0 |
Roll Value History
| 2025 | N/A | N/A | N/A | N/A | N/A |
| 2024 | $322,726 | $236,250 | $0 | $558,976 | $558,976 |
| 2023 | $308,694 | $220,000 | $0 | $528,694 | $528,694 |
| 2022 | $308,694 | $215,000 | $0 | $523,694 | $523,694 |
| 2021 | $194,564 | $117,975 | $0 | $312,539 | $312,539 |
Deed and Sales History
| 1 | 06/10/2022 | SWD | Statutory Warranty Deed | MATTHEW J & ANNA P ROMCEVICH | JOHN F PIATT & NANCY L NASLUND | | | $637,000.00 | 139309 | |
| 2 | 07/07/2020 | SWD | Statutory Warranty Deed | ROBERT H DISHINGTON IRREVOCABLE TRUST | MATTHEW J & ANNA P ROMCEVICH | | | $375,000.00 | 134656 | |
| 3 | 03/08/2019 | QCD | Quit Claim Deed | | | | | | 131952 | |
| 4 | 05/15/2006 | SWD | Statutory Warranty Deed | PARKER, GREG & JEANETTE M | DISHINGTON, ROBERT | | | $265,000.00 | 106698 | 0 |
| 5 | 05/26/2004 | SWD | Statutory Warranty Deed | CANFIELD, RALPH W | PARKER, GREG M & JEANETTE M | 0 | 0 | $125,000.00 | 100359 | 0 |
| 6 | 05/18/2004 | QCD | Quit Claim Deed | CARTMEL, KAREN D | CANFIELD, RALPH W | 0 | 0 | $0.00 | 100252 | 0 |
| 7 | 07/29/2002 | QCD | Quit Claim Deed | RALPH W CANFIELD | RALPH & SHARON CANFIELD | 0 | 0 | $0.00 | 95182 | 0 |
| 8 | 07/29/2002 | QCD | Quit Claim Deed | RALPH & SHARON CANFIELD | RALPH W CANFIELD | 0 | 0 | $0.00 | 95183 | 0 |
| 9 | 07/29/2002 | QCD | Quit Claim Deed | RALPH CANFIELD | KAREN CARTMEL | 0 | 0 | $0.00 | 95184 | 0 |
| 10 | 04/02/2002 | QCD | Quit Claim Deed | CANFIELD, RALPH W/SHARON | CARTMEL, KAREN D | 0 | 0 | $0.00 | 94360 | 0 |
Payout Agreement
| No payout information available.. |