Property
Account |
| Property ID: | 27310 | Abbreviated Legal Description: | EISENBEIS ADDITION BLK 6 LOTS 1 & 2 PTN VAC ALLEY ADJ TGTH/EASEMENTS |
| Parcel # / Geo ID: | 948300601 | Agent Code: | |
| Type: | Real | | |
| Tax Area: | 0110 - C-50F1E1H2 | Land Use Code | 11 |
| Open Space: | N | DFL | N |
| Historic Property: | N | Remodel Property: | N |
| Multi-Family Redevelopment: | N | | |
| Township: | 30N | Section: | 10 |
| Range: | 1W |
Location |
| Address: | 319 19TH ST PORT TOWNSEND, WA 98368 | Mapsco: | 021/028 |
| Neighborhood: | EISENBEIS, OC HASTINGS & SUPP, PINKS LESS VICTORIAN VILLAGE | Map ID: | |
| Neighborhood CD: | 6210 |
Owner |
| Name: | ALEX & VALARIE CARLSON | Owner ID: | 97287 |
| Mailing Address: | 100 ROLLING GREEN PL MISSOULA, MT 59803-2435 | % Ownership: | 100.0000000000% |
| | | Exemptions: | |
Pay Tax Due
There is currently No Amount Due on this property.
Taxes and Assessment Details
Property Tax Information as of
10/24/2025
Click on "Statement Details" to expand or collapse a tax statement.
* Please enter a valid date ** Please enter a valid date *
Statement Details |
| | TOTAL: | $0.00 | $0.00 | $0.00 | $0.00 | $0.00 | $0.00 |
|
| | $0.00 | $0.00 | $0.00 | $0.00 | $0.00 | $0.00 |
Values
| (+) Improvement Homesite Value: | + | $0 | |
| (+) Improvement Non-Homesite Value: | + | $206,773 | |
| (+) Land Homesite Value: | + | $0 | |
| (+) Land Non-Homesite Value: | + | $225,000 | |
| (+) Curr Use (HS): | + | $0 | $0 |
| (+) Curr Use (NHS): | + | $0 | $0 |
| | | -------------------------- | |
| (=) Market Value: | = | $431,773 | |
| (–) Productivity Loss: | – | $0 | |
| | | -------------------------- | |
| (=) Subtotal: | = | $431,773 | |
| (+) Senior Appraised Value: | + | $0 | |
| (+) Non-Senior Appraised Value: | + | $431,773 | |
| | | -------------------------- | |
| (=) Total Appraised Value: | = | $431,773 | |
| (–) Senior Exemption Loss: | – | $0 | |
| (–) Exemption Loss: | – | $0 | |
| | | -------------------------- | |
| (=) Taxable Value: | = | $431,773 | |
Taxing Jurisdiction
| Owner: | ALEX & VALARIE CARLSON | | |
| % Ownership: | 100.0000000000% | | |
| Total Value: | N/A | | |
| Tax Area: | 0110 - C-50F1E1H2 |
| CE | COUNTY CURRENT EXPENSE | N/A | N/A | N/A | N/A | | |
| CNTYDD | DEVELOPMENTAL DISABILITIES | N/A | N/A | N/A | N/A | | |
| CNTYVET | VETERANS RELIEF | N/A | N/A | N/A | N/A | | |
| MENTAL | MENTAL HEALTH | N/A | N/A | N/A | N/A | | |
| PTGEN | CITY OF PT GENERAL | N/A | N/A | N/A | N/A | | |
| PTLLL | CITY OF PT - LIBRARY LID LIFT | N/A | N/A | N/A | N/A | | |
| PTMVBOND | CITY OF PT MV BOND | N/A | N/A | N/A | N/A | | |
| HOSP2CASH | HOSP DIST #2 GENERAL | N/A | N/A | N/A | N/A | | |
| SCH50BOND | SCHOOL DIST #50 BOND 2016 | N/A | N/A | N/A | N/A | | |
| SCH50CP | SCHOOL DIST #50 CAP PROJ | N/A | N/A | N/A | N/A | | |
| SCH50MO | SCHOOL DIST #50 EP & O | N/A | N/A | N/A | N/A | | |
| CONSERVE | CONSERVATION FUTURES | N/A | N/A | N/A | N/A | | |
| EMS1 | FIRE DIST #1 EMS | N/A | N/A | N/A | N/A | | |
| FD1 | FIRE DIST #1 GENERAL | N/A | N/A | N/A | N/A | | |
| PORTPT | PORT OF PT GENERAL | N/A | N/A | N/A | N/A | | |
| PORTPTIDD | PORT OF PT IDD 2019 | N/A | N/A | N/A | N/A | | |
| PUD1 | PUD #1 GENERAL | N/A | N/A | N/A | N/A | | |
| STATE | STATE SCHOOL PART 1 | N/A | N/A | N/A | N/A | | |
| STATE2 | STATE SCHOOL PART 2 | N/A | N/A | N/A | N/A | | |
| | Total Tax Rate: | N/A | | | | | |
| | | | | Taxes w/Current Exemptions: | N/A | | |
| | | | | Taxes w/o Exemptions: | N/A | | |
Improvement / Building
| Improvement #1: | Residential Bldg | State Code: | 11 | 1134.0 sqft | Value: | $169,407 |
| Bathrooms (#): | 1 (FULL) | Bedrooms (#): | 3 | | Exterior Wall: | SI/ST | Fireplace: | SIN 1-AVG | | Floor Construction: | FRAME | Foundation: | CONBL | | Heating/Cooling: | F/A | Inside Verify: | YES-FIX | | Roof Cover: | COMP |   |   |
|
| | Type | Description | Class CD | Sub Class CD | Year Built | Area |
| | MA | Main Area | 3 | 1S | 1930 | 1134.0 |
| | HCPOR | House Concrete Porch | 2 | 1S | 1930 | 120.0 |
| | HDECK | House Deck | 2 | 1S | 1930 | 225.0 |
| | HENCL | House Enclosure | 2 | 1S | 1930 | 120.0 |
| Improvement #2: | Residential Bldg | State Code: | 11 | 0.0 sqft | Value: | $37,366 |
| | Type | Description | Class CD | Sub Class CD | Year Built | Area |
| | ADDN-D | Addition (Table Depreciated) | 3 | ADU | 1930 | 320.0 |
| | GATT | House Attached Garage | 3 | ADU | 1930 | 480.0 |
Sketch
Property Image
Land
| 1 | 6210-1175L | Standard Lot (Fair) | 0.0000 | 0.00 | 0.00 | 0.00 | 1.00 | $160,000 | $0 |
| 2 | 6210-1175L | Standard Lot (Fair) | 0.0000 | 0.00 | 0.00 | 0.00 | 1.00 | $65,000 | $0 |
Roll Value History
| 2025 | N/A | N/A | N/A | N/A | N/A |
| 2024 | $194,333 | $204,750 | $0 | $399,083 | $399,083 |
| 2023 | $185,884 | $190,000 | $0 | $375,884 | $375,884 |
| 2022 | $185,883 | $185,000 | $0 | $370,883 | $370,883 |
| 2021 | $158,874 | $113,250 | $0 | $272,124 | $272,124 |
Deed and Sales History
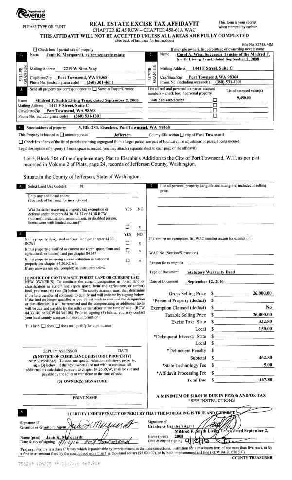
| 1 | 05/22/2017 | SPWD | Special Warranty Deed | SECRETARY OF HOUSING & URBAN DEVELOPMENT | ALEX & VALARIE CARLSON | | | $211,440.00 | 127721 | |
| 2 | 01/30/2014 | SWD | Statutory Warranty Deed | BANK OF AMERICA | SECRETARY OF HOUSING & URBAN DEVELOPMENT | | | | 127176 | |
| 3 | 01/07/2014 | TRED | Trustee Deed | QUALITY LOAN SERVICE CORP | BANK OF AMERICA | | | | 120568 | |
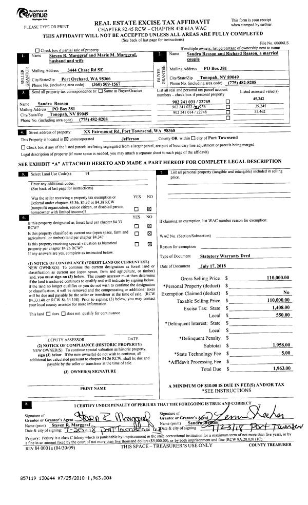
| 4 | 10/27/2005 | SWD | Statutory Warranty Deed | DEJONG, HAROLD | THOMPSON, RICHARD | 0 | 0 | $150,000.00 | 105254 | 0 |
| 5 | 06/22/2005 | QCD | Quit Claim Deed | BRUNS, DEJONG, FAY | DEJONG, HAROLD | | | $0.00 | 103933 | 0 |
| 6 | 05/12/2003 | SWD | Statutory Warranty Deed | DE JONG, HAROLD | MCKEE, KAREN R | 0 | 0 | $72,000.00 | 97267 | 0 |
| 7 | 09/17/2001 | SWD | Statutory Warranty Deed | BLANKENSHIP, JAMES I | DEJONG, HAROLD/FAY C | 0 | 0 | $147,500.00 | 93109 | 0 |
Payout Agreement
| No payout information available.. |