Property
Account |
| Property ID: | 27338 | Abbreviated Legal Description: | EISENBEIS ADDITION BLK 22 LOT 21(LS S15'),22-23(ALL) BND TGTH BY LLA #107334 |
| Parcel # / Geo ID: | 948302213 | Agent Code: | |
| Type: | Real | | |
| Tax Area: | 0110 - C-50F1E1H2 | Land Use Code | 11 |
| Open Space: | N | DFL | N |
| Historic Property: | N | Remodel Property: | N |
| Multi-Family Redevelopment: | N | | |
| Township: | 30N | Section: | 10 |
| Range: | 1W |
Location |
| Address: | 1630 LANDES ST PORT TOWNSEND, WA 98368 | Mapsco: | 021/092 |
| Neighborhood: | EISENBEIS - LANDES/19TH/LAGOON AREA NON-COM | Map ID: | |
| Neighborhood CD: | 6215 |
Owner |
| Name: | BARBARA JO TRAILER | Owner ID: | 89127 |
| Mailing Address: | 1630 LANDES ST PORT TOWNSEND, WA 98368-8327 | % Ownership: | 100.0000000000% |
| | | Exemptions: | |
Pay Tax Due
There is currently No Amount Due on this property.
Taxes and Assessment Details
Property Tax Information as of
10/24/2025
Click on "Statement Details" to expand or collapse a tax statement.
* Please enter a valid date ** Please enter a valid date *
Statement Details |
| | TOTAL: | $0.00 | $0.00 | $0.00 | $0.00 | $0.00 | $0.00 |
|
| | $0.00 | $0.00 | $0.00 | $0.00 | $0.00 | $0.00 |
Values
| (+) Improvement Homesite Value: | + | $0 | |
| (+) Improvement Non-Homesite Value: | + | $428,322 | |
| (+) Land Homesite Value: | + | $0 | |
| (+) Land Non-Homesite Value: | + | $206,000 | |
| (+) Curr Use (HS): | + | $0 | $0 |
| (+) Curr Use (NHS): | + | $0 | $0 |
| | | -------------------------- | |
| (=) Market Value: | = | $634,322 | |
| (–) Productivity Loss: | – | $0 | |
| | | -------------------------- | |
| (=) Subtotal: | = | $634,322 | |
| (+) Senior Appraised Value: | + | $0 | |
| (+) Non-Senior Appraised Value: | + | $634,322 | |
| | | -------------------------- | |
| (=) Total Appraised Value: | = | $634,322 | |
| (–) Senior Exemption Loss: | – | $0 | |
| (–) Exemption Loss: | – | $0 | |
| | | -------------------------- | |
| (=) Taxable Value: | = | $634,322 | |
Taxing Jurisdiction
| Owner: | BARBARA JO TRAILER | | |
| % Ownership: | 100.0000000000% | | |
| Total Value: | N/A | | |
| Tax Area: | 0110 - C-50F1E1H2 |
| CE | COUNTY CURRENT EXPENSE | N/A | N/A | N/A | N/A | | |
| CNTYDD | DEVELOPMENTAL DISABILITIES | N/A | N/A | N/A | N/A | | |
| CNTYVET | VETERANS RELIEF | N/A | N/A | N/A | N/A | | |
| MENTAL | MENTAL HEALTH | N/A | N/A | N/A | N/A | | |
| PTGEN | CITY OF PT GENERAL | N/A | N/A | N/A | N/A | | |
| PTLLL | CITY OF PT - LIBRARY LID LIFT | N/A | N/A | N/A | N/A | | |
| PTMVBOND | CITY OF PT MV BOND | N/A | N/A | N/A | N/A | | |
| HOSP2CASH | HOSP DIST #2 GENERAL | N/A | N/A | N/A | N/A | | |
| SCH50BOND | SCHOOL DIST #50 BOND 2016 | N/A | N/A | N/A | N/A | | |
| SCH50CP | SCHOOL DIST #50 CAP PROJ | N/A | N/A | N/A | N/A | | |
| SCH50MO | SCHOOL DIST #50 EP & O | N/A | N/A | N/A | N/A | | |
| CONSERVE | CONSERVATION FUTURES | N/A | N/A | N/A | N/A | | |
| EMS1 | FIRE DIST #1 EMS | N/A | N/A | N/A | N/A | | |
| FD1 | FIRE DIST #1 GENERAL | N/A | N/A | N/A | N/A | | |
| PORTPT | PORT OF PT GENERAL | N/A | N/A | N/A | N/A | | |
| PORTPTIDD | PORT OF PT IDD 2019 | N/A | N/A | N/A | N/A | | |
| PUD1 | PUD #1 GENERAL | N/A | N/A | N/A | N/A | | |
| STATE | STATE SCHOOL PART 1 | N/A | N/A | N/A | N/A | | |
| STATE2 | STATE SCHOOL PART 2 | N/A | N/A | N/A | N/A | | |
| | Total Tax Rate: | N/A | | | | | |
| | | | | Taxes w/Current Exemptions: | N/A | | |
| | | | | Taxes w/o Exemptions: | N/A | | |
Improvement / Building
| Improvement #1: | Residential Bldg | State Code: | 11 | 1664.0 sqft | Value: | $428,322 |
| Bathrooms (#): | 3 (FULL) | Bedrooms (#): | 3 | | Exterior Wall: | SI/ST | Floor Construction: | FRAME | | Foundation: | CONBL | Heating/Cooling: | OTHER | | Roof Cover: | COMP |   |   |
|
| | Type | Description | Class CD | Sub Class CD | Year Built | Area |
| | MA | Main Area | 5- | 2S | 2008 | 832.0 |
| | MA2 | Second Floor Main Area | 5- | 2S | 2008 | 832.0 |
| | HWPOR | House Wood Porch | 4 | 2S | 2008 | 136.0 |
| | SHED | Shed (Table Not Dep) | 4 | 2S | 2008 | 0.0 |
| | BSMTU | House basement unfinished | 2 | 2S | 2008 | 170.0 |
Sketch
Property Image
Land
| 1 | 6215-1155L | Standard 3000SF Lot (View) | 0.0000 | 0.00 | 0.00 | 0.00 | 1.00 | $140,000 | $0 |
| 2 | 6215-1155L | Standard 3000SF Lot (View) | 0.0000 | 0.00 | 0.00 | 0.00 | 1.00 | $66,000 | $0 |
Roll Value History
| 2025 | N/A | N/A | N/A | N/A | N/A |
| 2024 | $397,906 | $199,500 | $0 | $597,406 | $597,406 |
| 2023 | $380,606 | $185,000 | $0 | $565,606 | $565,606 |
| 2022 | $380,606 | $176,800 | $0 | $557,406 | $557,406 |
| 2021 | $318,233 | $140,410 | $0 | $458,643 | $458,643 |
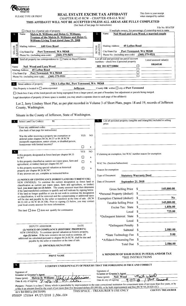
Deed and Sales History
| 1 | 12/13/2012 | SWD | Statutory Warranty Deed | GARRY L WOOD | BARBARA JO TRAILER | | | $305,000.00 | 118491 | |
| 2 | 03/26/2008 | SWD | Statutory Warranty Deed | LONG, CAROL LINDA | WOOD, GARRY L & CRISTINA C | 0 | 0 | $102,000.00 | 111023 | 0 |
Payout Agreement
| No payout information available.. |