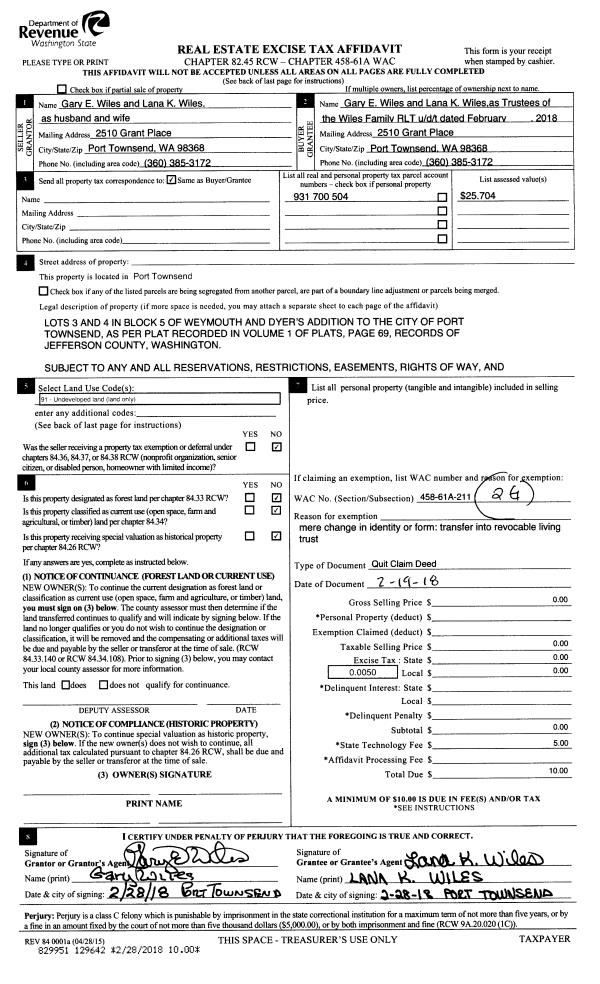
| 1 | 01/06/2021 | QCD | Quit Claim Deed | MORGANA BERNARD & CRAIG WARDEN | WARDEN BERNARD LIVING TRUST | | | | 135901 | |
| 2 | 04/03/2020 | SWD | Statutory Warranty Deed | JACK E SEBBEN | MORGANA BERNARD & CRAIG WARDEN | | | $622,500.00 | 134211 | |
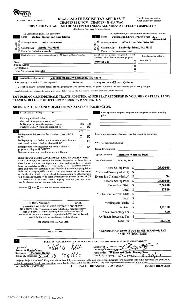
| 3 | 08/10/2018 | SWD | Statutory Warranty Deed | RICHARD A WASTENEYS | JACK E SEBBEN | | | $586,500.00 | 130818 | |
| 4 | 11/18/2013 | SWD | Statutory Warranty Deed | JEFFREY W WEEKLEY | RICHARD A WASTENEYS | | | $407,500.00 | 120396 | |
| 5 | 11/15/2005 | SWD | Statutory Warranty Deed | ROWE, LEONE A | WEEKLEY, JEFFREY & HELEN | 0 | 0 | $378,500.00 | 105405 | 0 |
| 6 | 04/13/2000 | SWD | Statutory Warranty Deed | ADNEY, JACK/MARY | ROWE, LEONE TRUSTEE | 0 | 0 | $231,100.00 | 89461 | 0 |
| 7 | 10/27/1993 | SWD | Statutory Warranty Deed | BUSSART, HARLEY J/SHIRLEE | ADNEY, JACK E/MARY LOUISE | 0 | 0 | $246,000.00 | 72491 | 0 |
| 8 | 03/02/1992 | QCD | Quit Claim Deed | BUSSART, HARLEY J/SHIRLEE | BUSSART, HARLEY J/SHIRLEE A | 0 | 0 | $0.00 | 67877 | 0 |