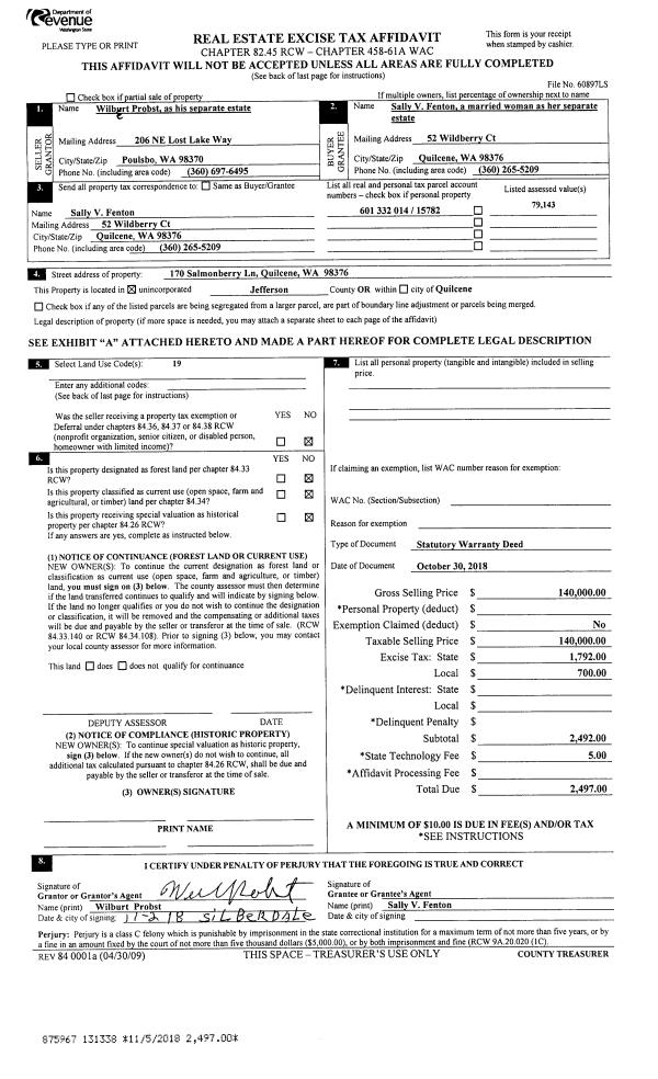
Property
Account |
| Property ID: | 27410 | Abbreviated Legal Description: | EISENBEIS ADDITION BLK 37 LOTS 11,12 & 13 |
| Parcel # / Geo ID: | 948303710 | Agent Code: | |
| Type: | Real | | |
| Tax Area: | 0110 - C-50F1E1H2 | Land Use Code | 11 |
| Open Space: | N | DFL | N |
| Historic Property: | N | Remodel Property: | N |
| Multi-Family Redevelopment: | N | | |
| Township: | 30N | Section: | 10 |
| Range: | 1W |
Location |
| Address: | 1223 HILL PL PORT TOWNSEND, WA 98368 | Mapsco: | 023/061 |
| Neighborhood: | EISENBEIS - LANDES/19TH/LAGOON AREA NON-COM | Map ID: | |
| Neighborhood CD: | 6215 |
Owner |
| Name: | RODNEY SCHMIDT | Owner ID: | 26737 |
| Mailing Address: | 1223 HILL ST PORT TOWNSEND, WA 98368-8425 | % Ownership: | 100.0000000000% |
| | | Exemptions: | |
Pay Tax Due
There is currently No Amount Due on this property.
Taxes and Assessment Details
Property Tax Information as of
10/24/2025
Click on "Statement Details" to expand or collapse a tax statement.
* Please enter a valid date ** Please enter a valid date *
Statement Details |
| | TOTAL: | $0.00 | $0.00 | $0.00 | $0.00 | $0.00 | $0.00 |
|
| | $0.00 | $0.00 | $0.00 | $0.00 | $0.00 | $0.00 |
Values
| (+) Improvement Homesite Value: | + | $0 | |
| (+) Improvement Non-Homesite Value: | + | $514,254 | |
| (+) Land Homesite Value: | + | $0 | |
| (+) Land Non-Homesite Value: | + | $230,000 | |
| (+) Curr Use (HS): | + | $0 | $0 |
| (+) Curr Use (NHS): | + | $0 | $0 |
| | | -------------------------- | |
| (=) Market Value: | = | $744,254 | |
| (–) Productivity Loss: | – | $0 | |
| | | -------------------------- | |
| (=) Subtotal: | = | $744,254 | |
| (+) Senior Appraised Value: | + | $0 | |
| (+) Non-Senior Appraised Value: | + | $744,254 | |
| | | -------------------------- | |
| (=) Total Appraised Value: | = | $744,254 | |
| (–) Senior Exemption Loss: | – | $0 | |
| (–) Exemption Loss: | – | $0 | |
| | | -------------------------- | |
| (=) Taxable Value: | = | $744,254 | |
Taxing Jurisdiction
| Owner: | RODNEY SCHMIDT | | |
| % Ownership: | 100.0000000000% | | |
| Total Value: | N/A | | |
| Tax Area: | 0110 - C-50F1E1H2 |
| CE | COUNTY CURRENT EXPENSE | N/A | N/A | N/A | N/A | | |
| CNTYDD | DEVELOPMENTAL DISABILITIES | N/A | N/A | N/A | N/A | | |
| CNTYVET | VETERANS RELIEF | N/A | N/A | N/A | N/A | | |
| MENTAL | MENTAL HEALTH | N/A | N/A | N/A | N/A | | |
| PTGEN | CITY OF PT GENERAL | N/A | N/A | N/A | N/A | | |
| PTLLL | CITY OF PT - LIBRARY LID LIFT | N/A | N/A | N/A | N/A | | |
| PTMVBOND | CITY OF PT MV BOND | N/A | N/A | N/A | N/A | | |
| HOSP2CASH | HOSP DIST #2 GENERAL | N/A | N/A | N/A | N/A | | |
| SCH50BOND | SCHOOL DIST #50 BOND 2016 | N/A | N/A | N/A | N/A | | |
| SCH50CP | SCHOOL DIST #50 CAP PROJ | N/A | N/A | N/A | N/A | | |
| SCH50MO | SCHOOL DIST #50 EP & O | N/A | N/A | N/A | N/A | | |
| CONSERVE | CONSERVATION FUTURES | N/A | N/A | N/A | N/A | | |
| EMS1 | FIRE DIST #1 EMS | N/A | N/A | N/A | N/A | | |
| FD1 | FIRE DIST #1 GENERAL | N/A | N/A | N/A | N/A | | |
| PORTPT | PORT OF PT GENERAL | N/A | N/A | N/A | N/A | | |
| PORTPTIDD | PORT OF PT IDD 2019 | N/A | N/A | N/A | N/A | | |
| PUD1 | PUD #1 GENERAL | N/A | N/A | N/A | N/A | | |
| STATE | STATE SCHOOL PART 1 | N/A | N/A | N/A | N/A | | |
| STATE2 | STATE SCHOOL PART 2 | N/A | N/A | N/A | N/A | | |
| | Total Tax Rate: | N/A | | | | | |
| | | | | Taxes w/Current Exemptions: | N/A | | |
| | | | | Taxes w/o Exemptions: | N/A | | |
Improvement / Building
| Improvement #1: | Residential Bldg | State Code: | 11 | 1841.0 sqft | Value: | $514,254 |
| Bathrooms (#): | 3 (FULL) | Bedrooms (#): | 3 | | Exterior Wall: | SI/ST | Fireplace: | DBL 1-AVG | | Floor Construction: | FRAME | Foundation: | CONPR | | Heating/Cooling: | ELBB | Inside Verify: | YES-FIX | | Roof Cover: | COMP |   |   |
|
| | Type | Description | Class CD | Sub Class CD | Year Built | Area |
| | MA | Main Area | 4- | 1S | 1990 | 1841.0 |
| | HWPOR | House Wood Porch | 4 | 1S | 1990 | 42.0 |
| | HDECK | House Deck | 4 | 1S | 1990 | 134.0 |
| | GATT | House Attached Garage | 4 | 1S | 1990 | 476.0 |
| | BSMTF | House basement finished | 4 | 1S | 1990 | 936.0 |
Sketch
Property Image
Land
| 1 | 6215-1165L | Standard 3000SF Lot (Avg) | 0.0000 | 0.00 | 0.00 | 0.00 | 1.00 | $130,000 | $0 |
| 2 | 6215-1165L | Standard 3000SF Lot (Avg) | 0.0000 | 0.00 | 0.00 | 0.00 | 2.00 | $100,000 | $0 |
Roll Value History
| 2025 | N/A | N/A | N/A | N/A | N/A |
| 2024 | $499,646 | $220,500 | $0 | $720,146 | $720,146 |
| 2023 | $477,923 | $205,000 | $0 | $682,923 | $682,923 |
| 2022 | $477,923 | $195,000 | $0 | $672,923 | $672,923 |
| 2021 | $399,601 | $155,480 | $0 | $555,081 | $555,081 |
Deed and Sales History
| 1 | 06/01/2023 | TODD | TRANSFER ON DTH DEED | RODNEY SCHMIDT | MELANIE K ARIAS | | | | 0 | 660637 |
| 2 | 02/03/2009 | SWD | Statutory Warranty Deed | IRWIN, JAY R/JUDY A | SCHMIDT, RODNEY | 0 | 0 | $470,000.00 | 112496 | 0 |
| 3 | 07/16/2004 | SWD | Statutory Warranty Deed | CAVANAGH, EUGENE & JO/TRU | IRWIN, JAY R/JUDY A | 0 | 0 | $399,000.00 | 100911 | 0 |
| 4 | 11/06/2000 | SWD | Statutory Warranty Deed | SWARTZ, GERALD/BONNIE | CAVANAGH TRUSTEE, EUGENE | 0 | 0 | $240,000.00 | 90950 | 0 |
Payout Agreement
| No payout information available.. |