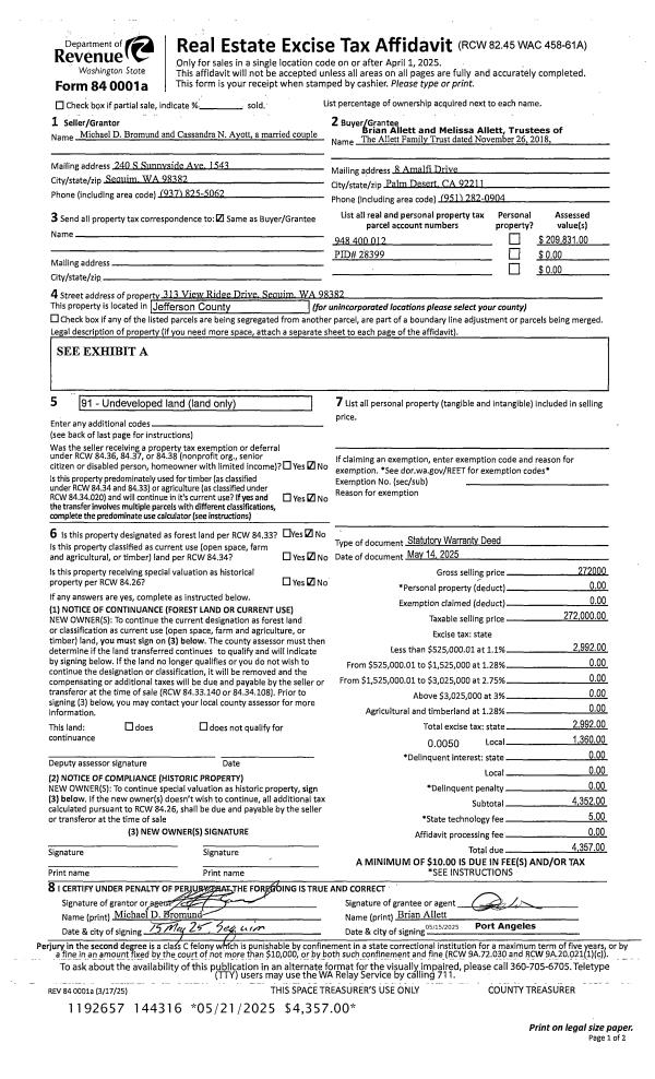
Property
Account |
| Property ID: | 27441 | Abbreviated Legal Description: | EISENBEIS ADDITION BLK 43 TAX 97 BND TGTH THRU LLA AFN 513909 |
| Parcel # / Geo ID: | 948304303 | Agent Code: | |
| Type: | Real | | |
| Tax Area: | 0110 - C-50F1E1H2 | Land Use Code | 11 |
| Open Space: | N | DFL | N |
| Historic Property: | N | Remodel Property: | N |
| Multi-Family Redevelopment: | N | | |
| Township: | 30N | Section: | 3 |
| Range: | 1W |
Location |
| Address: | 2020 JACKMAN ST PORT TOWNSEND, WA 98368 | Mapsco: | 024/032 |
| Neighborhood: | EISENBEIS, OC HASTINGS & SUPP, PINKS LESS VICTORIAN VILLAGE | Map ID: | |
| Neighborhood CD: | 6210 |
Owner |
| Name: | JOYCE M MORTON REV LIV TRUST | Owner ID: | 112892 |
| Mailing Address: | JOYCE M MORTON TRUSTEE 2020 JACKMAN ST PORT TOWNSEND, WA 98368-7706 | % Ownership: | 100.0000000000% |
| | | Exemptions: | |
Pay Tax Due
There is currently No Amount Due on this property.
Taxes and Assessment Details
Property Tax Information as of
10/24/2025
Click on "Statement Details" to expand or collapse a tax statement.
* Please enter a valid date ** Please enter a valid date *
Statement Details |
| | TOTAL: | $0.00 | $0.00 | $0.00 | $0.00 | $0.00 | $0.00 |
|
| | $0.00 | $0.00 | $0.00 | $0.00 | $0.00 | $0.00 |
Values
| (+) Improvement Homesite Value: | + | $0 | |
| (+) Improvement Non-Homesite Value: | + | $443,367 | |
| (+) Land Homesite Value: | + | $0 | |
| (+) Land Non-Homesite Value: | + | $268,875 | |
| (+) Curr Use (HS): | + | $0 | $0 |
| (+) Curr Use (NHS): | + | $0 | $0 |
| | | -------------------------- | |
| (=) Market Value: | = | $712,242 | |
| (–) Productivity Loss: | – | $0 | |
| | | -------------------------- | |
| (=) Subtotal: | = | $712,242 | |
| (+) Senior Appraised Value: | + | $0 | |
| (+) Non-Senior Appraised Value: | + | $712,242 | |
| | | -------------------------- | |
| (=) Total Appraised Value: | = | $712,242 | |
| (–) Senior Exemption Loss: | – | $0 | |
| (–) Exemption Loss: | – | $0 | |
| | | -------------------------- | |
| (=) Taxable Value: | = | $712,242 | |
Taxing Jurisdiction
| Owner: | JOYCE M MORTON REV LIV TRUST | | |
| % Ownership: | 100.0000000000% | | |
| Total Value: | N/A | | |
| Tax Area: | 0110 - C-50F1E1H2 |
| CE | COUNTY CURRENT EXPENSE | N/A | N/A | N/A | N/A | | |
| CNTYDD | DEVELOPMENTAL DISABILITIES | N/A | N/A | N/A | N/A | | |
| CNTYVET | VETERANS RELIEF | N/A | N/A | N/A | N/A | | |
| MENTAL | MENTAL HEALTH | N/A | N/A | N/A | N/A | | |
| PTGEN | CITY OF PT GENERAL | N/A | N/A | N/A | N/A | | |
| PTLLL | CITY OF PT - LIBRARY LID LIFT | N/A | N/A | N/A | N/A | | |
| PTMVBOND | CITY OF PT MV BOND | N/A | N/A | N/A | N/A | | |
| HOSP2CASH | HOSP DIST #2 GENERAL | N/A | N/A | N/A | N/A | | |
| SCH50BOND | SCHOOL DIST #50 BOND 2016 | N/A | N/A | N/A | N/A | | |
| SCH50CP | SCHOOL DIST #50 CAP PROJ | N/A | N/A | N/A | N/A | | |
| SCH50MO | SCHOOL DIST #50 EP & O | N/A | N/A | N/A | N/A | | |
| CONSERVE | CONSERVATION FUTURES | N/A | N/A | N/A | N/A | | |
| EMS1 | FIRE DIST #1 EMS | N/A | N/A | N/A | N/A | | |
| FD1 | FIRE DIST #1 GENERAL | N/A | N/A | N/A | N/A | | |
| PORTPT | PORT OF PT GENERAL | N/A | N/A | N/A | N/A | | |
| PORTPTIDD | PORT OF PT IDD 2019 | N/A | N/A | N/A | N/A | | |
| PUD1 | PUD #1 GENERAL | N/A | N/A | N/A | N/A | | |
| STATE | STATE SCHOOL PART 1 | N/A | N/A | N/A | N/A | | |
| STATE2 | STATE SCHOOL PART 2 | N/A | N/A | N/A | N/A | | |
| | Total Tax Rate: | N/A | | | | | |
| | | | | Taxes w/Current Exemptions: | N/A | | |
| | | | | Taxes w/o Exemptions: | N/A | | |
Improvement / Building
| Improvement #1: | Residential Bldg | State Code: | 11 | 1512.0 sqft | Value: | $348,138 |
| Bathrooms (#): | 2 (FULL) | Bedrooms (#): | 3 | | Exterior Wall: | SI/ST | Floor Construction: | FRAME | | Foundation: | CONPR | Heating/Cooling: | HTWTR | | Inside Verify: | YES-FIX | Roof Cover: | COMP |
|
| | Type | Description | Class CD | Sub Class CD | Year Built | Area |
| | MA | Main Area | 4+ | 15SF | 2000 | 952.0 |
| | MA2 | Second Floor Main Area | 4+ | 15SF | 2000 | 560.0 |
| | HWPOR | House Wood Porch | 4 | 15SF | 2000 | 48.0 |
| | HDECK | House Deck | 4 | 15SF | 2000 | 96.0 |
| | BSMTU | House basement unfinished | 3 | 15SF | 2000 | 120.0 |
| Improvement #2: | Residential Bldg | State Code: | 11 | 0.0 sqft | Value: | $95,229 |
| | Type | Description | Class CD | Sub Class CD | Year Built | Area |
| | ADDN-D | Addition (Table Depreciated) | 2 | ADU | 2000 | 800.0 |
| | GDET | Detached Garage | 4 | ADU | 2000 | 1100.0 |
Sketch
Property Image
Land
| 1 | 6210-1185L | Standard Lot (No View) | 0.0000 | 0.00 | 0.00 | 0.00 | 1.00 | $135,000 | $0 |
| 2 | 6210-1185L | Standard Lot (No View) | 0.0000 | 0.00 | 0.00 | 0.00 | 3.00 | $133,875 | $0 |
Roll Value History
| 2025 | N/A | N/A | N/A | N/A | N/A |
| 2024 | $458,143 | $246,488 | $0 | $704,631 | $704,631 |
| 2023 | $438,224 | $229,750 | $0 | $667,974 | $667,974 |
| 2022 | $438,224 | $202,000 | $0 | $640,224 | $640,224 |
| 2021 | $374,550 | $151,470 | $0 | $526,020 | $526,020 |
Deed and Sales History
| 1 | 07/07/2025 | QCD | Quit Claim Deed | JOYCE MORTON | JOYCE M MORTON REV LIV TRUST | | | | 144540 | |
| 2 | 01/02/2021 | DTH CERT | Death Certificate | JOHN MORTON | JOYCE MORTON | | | | 0 | |
| 3 | 02/25/2005 | SWD | Statutory Warranty Deed | FITCH, NANCY B | MORTON, JOHN W/JOYCE M | 0 | 0 | $329,000.00 | 102860 | 0 |
| 4 | 02/22/2000 | SWD | Statutory Warranty Deed | HUYSSER, A/VAN DER HEYDE, | FITCH, NANCY B | 0 | 0 | $30,000.00 | 89037 | 0 |
| 5 | 11/18/1997 | BLA | Boundary Line Adjustment | HUYSSER, AUGUSTINE | LEINBACH, SUSAN | 0 | 0 | $0.00 | 83405 | 0 |
| 6 | 03/05/1996 | SWD | Statutory Warranty Deed | LEINBACH, JAMES N/MARY A | HUYSSER, AUGUSTINE/ET AL | 0 | 0 | $25,000.00 | 79076 | 0 |
| 7 | 04/19/1994 | QCD | Quit Claim Deed | LEINBACH, SUSAN E | SEINBACH, JAMES N/MARY A | 0 | 0 | $0.00 | 73895 | 0 |
| 8 | 02/28/1992 | SWD | Statutory Warranty Deed | AMBURN, WILLIAM W/ELVA A | LEINBACH, SUSAN | 0 | 0 | $16,000.00 | 67827 | 0 |
Payout Agreement
| No payout information available.. |