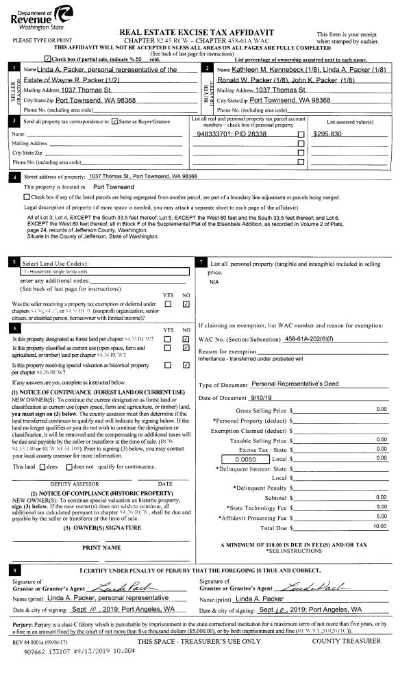
Property
Account |
| Property ID: | 27481 | Abbreviated Legal Description: | EISENBEIS ADDITION BLK 50 LOTS 3 & 4(ALL), 5(N'LY 14 1/2') W/PTN VAC ALLEY & JACKMAN ST ADJ |
| Parcel # / Geo ID: | 948305009 | Agent Code: | |
| Type: | Real | | |
| Tax Area: | 0110 - C-50F1E1H2 | Land Use Code | 11 |
| Open Space: | N | DFL | N |
| Historic Property: | N | Remodel Property: | N |
| Multi-Family Redevelopment: | N | | |
| Township: | 30N | Section: | 10 |
| Range: | 1W |
Location |
| Address: | 1355 JACKMAN ST PORT TOWNSEND, WA 98368 | Mapsco: | 025/025 |
| Neighborhood: | EISENBEIS - LANDES/19TH/LAGOON AREA NON-COM | Map ID: | |
| Neighborhood CD: | 6215 |
Owner |
| Name: | DELBOCA REVOCABLE TRUST | Owner ID: | 102638 |
| Mailing Address: | FRANK T DELBOCA TRUSTEE WINSTON REV TRUST LORENE WINSTON TRUSTEE PO BOX 2011 PORT TOWNSEND, WA 98368-0089 | % Ownership: | 100.0000000000% |
| | | Exemptions: | |
Pay Tax Due
There is currently No Amount Due on this property.
Taxes and Assessment Details
Property Tax Information as of
10/24/2025
Click on "Statement Details" to expand or collapse a tax statement.
* Please enter a valid date ** Please enter a valid date *
Statement Details |
| | TOTAL: | $0.00 | $0.00 | $0.00 | $0.00 | $0.00 | $0.00 |
|
| | $0.00 | $0.00 | $0.00 | $0.00 | $0.00 | $0.00 |
Values
| (+) Improvement Homesite Value: | + | $0 | |
| (+) Improvement Non-Homesite Value: | + | $687,124 | |
| (+) Land Homesite Value: | + | $0 | |
| (+) Land Non-Homesite Value: | + | $230,000 | |
| (+) Curr Use (HS): | + | $0 | $0 |
| (+) Curr Use (NHS): | + | $0 | $0 |
| | | -------------------------- | |
| (=) Market Value: | = | $917,124 | |
| (–) Productivity Loss: | – | $0 | |
| | | -------------------------- | |
| (=) Subtotal: | = | $917,124 | |
| (+) Senior Appraised Value: | + | $0 | |
| (+) Non-Senior Appraised Value: | + | $917,124 | |
| | | -------------------------- | |
| (=) Total Appraised Value: | = | $917,124 | |
| (–) Senior Exemption Loss: | – | $0 | |
| (–) Exemption Loss: | – | $0 | |
| | | -------------------------- | |
| (=) Taxable Value: | = | $917,124 | |
Taxing Jurisdiction
| Owner: | DELBOCA REVOCABLE TRUST | | |
| % Ownership: | 100.0000000000% | | |
| Total Value: | N/A | | |
| Tax Area: | 0110 - C-50F1E1H2 |
| CE | COUNTY CURRENT EXPENSE | N/A | N/A | N/A | N/A | | |
| CNTYDD | DEVELOPMENTAL DISABILITIES | N/A | N/A | N/A | N/A | | |
| CNTYVET | VETERANS RELIEF | N/A | N/A | N/A | N/A | | |
| MENTAL | MENTAL HEALTH | N/A | N/A | N/A | N/A | | |
| PTGEN | CITY OF PT GENERAL | N/A | N/A | N/A | N/A | | |
| PTLLL | CITY OF PT - LIBRARY LID LIFT | N/A | N/A | N/A | N/A | | |
| PTMVBOND | CITY OF PT MV BOND | N/A | N/A | N/A | N/A | | |
| HOSP2CASH | HOSP DIST #2 GENERAL | N/A | N/A | N/A | N/A | | |
| SCH50BOND | SCHOOL DIST #50 BOND 2016 | N/A | N/A | N/A | N/A | | |
| SCH50CP | SCHOOL DIST #50 CAP PROJ | N/A | N/A | N/A | N/A | | |
| SCH50MO | SCHOOL DIST #50 EP & O | N/A | N/A | N/A | N/A | | |
| CONSERVE | CONSERVATION FUTURES | N/A | N/A | N/A | N/A | | |
| EMS1 | FIRE DIST #1 EMS | N/A | N/A | N/A | N/A | | |
| FD1 | FIRE DIST #1 GENERAL | N/A | N/A | N/A | N/A | | |
| PORTPT | PORT OF PT GENERAL | N/A | N/A | N/A | N/A | | |
| PORTPTIDD | PORT OF PT IDD 2019 | N/A | N/A | N/A | N/A | | |
| PUD1 | PUD #1 GENERAL | N/A | N/A | N/A | N/A | | |
| STATE | STATE SCHOOL PART 1 | N/A | N/A | N/A | N/A | | |
| STATE2 | STATE SCHOOL PART 2 | N/A | N/A | N/A | N/A | | |
| | Total Tax Rate: | N/A | | | | | |
| | | | | Taxes w/Current Exemptions: | N/A | | |
| | | | | Taxes w/o Exemptions: | N/A | | |
Improvement / Building
| Improvement #1: | Residential Bldg | State Code: | 11 | 1888.0 sqft | Value: | $687,124 |
| Bathrooms (#): | 3 (FULL) | Bedrooms (#): | 3 | | Exterior Wall: | SI/ST | Fireplace: | WD ST-GOOD | | Floor Construction: | FRAME | Foundation: | CONPR | | Heating/Cooling: | HPUMP | Inside Verify: | YES-FIX | | Roof Cover: | COMP |   |   |
|
| | Type | Description | Class CD | Sub Class CD | Year Built | Area |
| | MA | Main Area | 5 | 1S | 1999 | 1888.0 |
| | HWPOR | House Wood Porch | 5 | 1S | 1999 | 48.0 |
| | HDECK | House Deck | 5 | 1S | 1999 | 448.0 |
| | GBLTIN | Builtin Garage | 5 | 1S | 1999 | 1120.0 |
| | BSMTF | House basement finished | 5 | 1S | 1999 | 880.0 |
Sketch
Property Image
Land
| 1 | 6215-1165L | Standard 3000SF Lot (Avg) | 0.0000 | 0.00 | 0.00 | 0.00 | 1.00 | $130,000 | $0 |
| 2 | 6215-1165L | Standard 3000SF Lot (Avg) | 0.0000 | 0.00 | 0.00 | 0.00 | 2.00 | $100,000 | $0 |
Roll Value History
| 2025 | N/A | N/A | N/A | N/A | N/A |
| 2024 | $660,191 | $220,500 | $0 | $880,691 | $880,691 |
| 2023 | $631,487 | $205,000 | $0 | $836,487 | $836,487 |
| 2022 | $631,487 | $181,700 | $0 | $813,187 | $813,187 |
| 2021 | $527,999 | $144,468 | $0 | $672,467 | $672,467 |
Deed and Sales History
| 1 | 05/11/2020 | QCD | Quit Claim Deed | FRANK T DELBOCA | DELBOCA REVOCABLE TRUST | | | | 134335 | |
| 2 | 12/06/2017 | SWD | Statutory Warranty Deed | JAMES M NEEDHAM | FRANK T DELBOCA | | | $605,000.00 | 129267 | |
| 3 | 08/28/2002 | SWD | Statutory Warranty Deed | JAMES D CARLSON | JAMES & SHARON NEEDHAM | 0 | 0 | $337,500.00 | 95473 | 0 |
| 4 | 07/15/1998 | SWD | Statutory Warranty Deed | THE CRUTCHER FAMILY TRUST | CARLSON, JAMES D & SUSAN K | 0 | 0 | $50,000.00 | 84897 | 0 |
Payout Agreement
| No payout information available.. |