Property
Account |
| Property ID: | 27486 | Abbreviated Legal Description: | EISENBEIS ADDITION BLK 51 LOTS 12 TO 16 CERT/LOTS OF REC #513471 |
| Parcel # / Geo ID: | 948305103 | Agent Code: | |
| Type: | Real | | |
| Tax Area: | 0110 - C-50F1E1H2 | Land Use Code | 11 |
| Open Space: | N | DFL | N |
| Historic Property: | N | Remodel Property: | N |
| Multi-Family Redevelopment: | N | | |
| Township: | 30N | Section: | 10 |
| Range: | 1W |
Location |
| Address: | 710 10TH ST PORT TOWNSEND, WA 98368 | Mapsco: | 025/041 |
| Neighborhood: | EISENBEIS - LANDES/19TH/LAGOON AREA NON-COM | Map ID: | |
| Neighborhood CD: | 6215 |
Owner |
| Name: | BOB PETERS TRUSTEE | Owner ID: | 24639 |
| Mailing Address: | NORMA M PETERS TRUSTEE B & N PETERS LIVING TRUST 108 SUNSET VIEW DR LONGVIEW, WA 98632-5367 | % Ownership: | 100.0000000000% |
| | | Exemptions: | |
Pay Tax Due
There is currently No Amount Due on this property.
Taxes and Assessment Details
Property Tax Information as of
10/24/2025
Click on "Statement Details" to expand or collapse a tax statement.
* Please enter a valid date ** Please enter a valid date *
Statement Details |
| | TOTAL: | $0.00 | $0.00 | $0.00 | $0.00 | $0.00 | $0.00 |
|
| | $0.00 | $0.00 | $0.00 | $0.00 | $0.00 | $0.00 |
Values
| (+) Improvement Homesite Value: | + | $0 | |
| (+) Improvement Non-Homesite Value: | + | $189,075 | |
| (+) Land Homesite Value: | + | $0 | |
| (+) Land Non-Homesite Value: | + | $354,500 | |
| (+) Curr Use (HS): | + | $0 | $0 |
| (+) Curr Use (NHS): | + | $0 | $0 |
| | | -------------------------- | |
| (=) Market Value: | = | $543,575 | |
| (–) Productivity Loss: | – | $0 | |
| | | -------------------------- | |
| (=) Subtotal: | = | $543,575 | |
| (+) Senior Appraised Value: | + | $0 | |
| (+) Non-Senior Appraised Value: | + | $543,575 | |
| | | -------------------------- | |
| (=) Total Appraised Value: | = | $543,575 | |
| (–) Senior Exemption Loss: | – | $0 | |
| (–) Exemption Loss: | – | $0 | |
| | | -------------------------- | |
| (=) Taxable Value: | = | $543,575 | |
Taxing Jurisdiction
| Owner: | BOB PETERS TRUSTEE | | |
| % Ownership: | 100.0000000000% | | |
| Total Value: | N/A | | |
| Tax Area: | 0110 - C-50F1E1H2 |
| CE | COUNTY CURRENT EXPENSE | N/A | N/A | N/A | N/A | | |
| CNTYDD | DEVELOPMENTAL DISABILITIES | N/A | N/A | N/A | N/A | | |
| CNTYVET | VETERANS RELIEF | N/A | N/A | N/A | N/A | | |
| MENTAL | MENTAL HEALTH | N/A | N/A | N/A | N/A | | |
| PTGEN | CITY OF PT GENERAL | N/A | N/A | N/A | N/A | | |
| PTLLL | CITY OF PT - LIBRARY LID LIFT | N/A | N/A | N/A | N/A | | |
| PTMVBOND | CITY OF PT MV BOND | N/A | N/A | N/A | N/A | | |
| HOSP2CASH | HOSP DIST #2 GENERAL | N/A | N/A | N/A | N/A | | |
| SCH50BOND | SCHOOL DIST #50 BOND 2016 | N/A | N/A | N/A | N/A | | |
| SCH50CP | SCHOOL DIST #50 CAP PROJ | N/A | N/A | N/A | N/A | | |
| SCH50MO | SCHOOL DIST #50 EP & O | N/A | N/A | N/A | N/A | | |
| CONSERVE | CONSERVATION FUTURES | N/A | N/A | N/A | N/A | | |
| EMS1 | FIRE DIST #1 EMS | N/A | N/A | N/A | N/A | | |
| FD1 | FIRE DIST #1 GENERAL | N/A | N/A | N/A | N/A | | |
| PORTPT | PORT OF PT GENERAL | N/A | N/A | N/A | N/A | | |
| PORTPTIDD | PORT OF PT IDD 2019 | N/A | N/A | N/A | N/A | | |
| PUD1 | PUD #1 GENERAL | N/A | N/A | N/A | N/A | | |
| STATE | STATE SCHOOL PART 1 | N/A | N/A | N/A | N/A | | |
| STATE2 | STATE SCHOOL PART 2 | N/A | N/A | N/A | N/A | | |
| | Total Tax Rate: | N/A | | | | | |
| | | | | Taxes w/Current Exemptions: | N/A | | |
| | | | | Taxes w/o Exemptions: | N/A | | |
Improvement / Building
| Improvement #1: | Residential Bldg | State Code: | 11 | 794.5 sqft | Value: | $189,075 |
| Bathrooms (#): | 1 (FULL) | Bedrooms (#): | 1 | | Exterior Wall: | SI/ST | Floor Construction: | FRAME | | Foundation: | CONPR | Heating/Cooling: | ELBB | | Inside Verify: | YES-FIX | Roof Cover: | COMP |
|
| | Type | Description | Class CD | Sub Class CD | Year Built | Area |
| | MA | Main Area | 3 | 1S | 1995 | 794.5 |
| | HWPOR | House Wood Porch | 3 | 1S | 1995 | 168.0 |
| | HDECK | House Deck | 3 | 1S | 1995 | 32.0 |
| | GBSMT | Basement Garage | 3 | 1S | 1995 | 588.0 |
| | BSMTF | House basement finished | 3 | 1S | 1995 | 364.0 |
Sketch
Property Image
Land
| 1 | 6215-1155L | Standard 3000SF Lot (View) | 0.0000 | 0.00 | 0.00 | 0.00 | 1.00 | $140,000 | $0 |
| 2 | 6215-1155L | Standard 3000SF Lot (View) | 0.0000 | 0.00 | 0.00 | 0.00 | 1.00 | $214,500 | $0 |
Roll Value History
| 2025 | N/A | N/A | N/A | N/A | N/A |
| 2024 | $178,685 | $341,250 | $0 | $519,935 | $519,935 |
| 2023 | $170,916 | $320,000 | $0 | $490,916 | $490,916 |
| 2022 | $170,916 | $300,000 | $0 | $470,916 | $470,916 |
| 2021 | $142,906 | $242,420 | $0 | $385,326 | $385,326 |
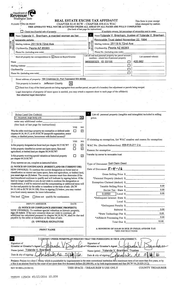
Deed and Sales History
| 1 | 02/05/2007 | QCD | Quit Claim Deed | | | | | | 126780 | |
| 2 | 02/05/2007 | QCD | Quit Claim Deed | | | | | | 108579 | |
| 3 | 08/18/2006 | SWD | Statutory Warranty Deed | PETERS, BOB & NORMA | HUMPHREY, CHRISTINE | 0 | 0 | $210,000.00 | 107479 | 0 |
|   | |
Payout Agreement
| No payout information available.. |