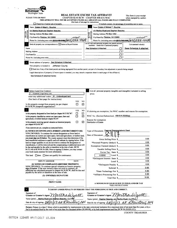
Property
Account |
| Property ID: | 27491 | Abbreviated Legal Description: | EISENBEIS ADDITION BLK 51 LOTS 17 TO 19 CERT/LOTS OF REC #513471 |
| Parcel # / Geo ID: | 948305117 | Agent Code: | |
| Type: | Real | | |
| Tax Area: | 0110 - C-50F1E1H2 | Land Use Code | 11 |
| Open Space: | N | DFL | N |
| Historic Property: | N | Remodel Property: | N |
| Multi-Family Redevelopment: | N | | |
| Township: | 30N | Section: | 10 |
| Range: | 1W |
Location |
| Address: | 1012 HOLCOMB ST 1006 PORT TOWNSEND, WA 98368 | Mapsco: | 025/043 |
| Neighborhood: | EISENBEIS - LANDES/19TH/LAGOON AREA NON-COM | Map ID: | |
| Neighborhood CD: | 6215 |
Owner |
| Name: | MICHELE ZABRANSKY | Owner ID: | 105355 |
| Mailing Address: | SHARON SOFIE 1006 HOLCOMB ST PORT TOWNSEND, WA 98368-2941 | % Ownership: | 100.0000000000% |
| | | Exemptions: | |
Pay Tax Due
There is currently No Amount Due on this property.
Taxes and Assessment Details
Property Tax Information as of
10/24/2025
Click on "Statement Details" to expand or collapse a tax statement.
* Please enter a valid date ** Please enter a valid date *
Statement Details |
| | TOTAL: | $0.00 | $0.00 | $0.00 | $0.00 | $0.00 | $0.00 |
|
| | $0.00 | $0.00 | $0.00 | $0.00 | $0.00 | $0.00 |
Values
| (+) Improvement Homesite Value: | + | $0 | |
| (+) Improvement Non-Homesite Value: | + | $648,661 | |
| (+) Land Homesite Value: | + | $0 | |
| (+) Land Non-Homesite Value: | + | $250,000 | |
| (+) Curr Use (HS): | + | $0 | $0 |
| (+) Curr Use (NHS): | + | $0 | $0 |
| | | -------------------------- | |
| (=) Market Value: | = | $898,661 | |
| (–) Productivity Loss: | – | $0 | |
| | | -------------------------- | |
| (=) Subtotal: | = | $898,661 | |
| (+) Senior Appraised Value: | + | $0 | |
| (+) Non-Senior Appraised Value: | + | $898,661 | |
| | | -------------------------- | |
| (=) Total Appraised Value: | = | $898,661 | |
| (–) Senior Exemption Loss: | – | $0 | |
| (–) Exemption Loss: | – | $0 | |
| | | -------------------------- | |
| (=) Taxable Value: | = | $898,661 | |
Taxing Jurisdiction
| Owner: | MICHELE ZABRANSKY | | |
| % Ownership: | 100.0000000000% | | |
| Total Value: | N/A | | |
| Tax Area: | 0110 - C-50F1E1H2 |
| CE | COUNTY CURRENT EXPENSE | N/A | N/A | N/A | N/A | | |
| CNTYDD | DEVELOPMENTAL DISABILITIES | N/A | N/A | N/A | N/A | | |
| CNTYVET | VETERANS RELIEF | N/A | N/A | N/A | N/A | | |
| MENTAL | MENTAL HEALTH | N/A | N/A | N/A | N/A | | |
| PTGEN | CITY OF PT GENERAL | N/A | N/A | N/A | N/A | | |
| PTLLL | CITY OF PT - LIBRARY LID LIFT | N/A | N/A | N/A | N/A | | |
| PTMVBOND | CITY OF PT MV BOND | N/A | N/A | N/A | N/A | | |
| HOSP2CASH | HOSP DIST #2 GENERAL | N/A | N/A | N/A | N/A | | |
| SCH50BOND | SCHOOL DIST #50 BOND 2016 | N/A | N/A | N/A | N/A | | |
| SCH50CP | SCHOOL DIST #50 CAP PROJ | N/A | N/A | N/A | N/A | | |
| SCH50MO | SCHOOL DIST #50 EP & O | N/A | N/A | N/A | N/A | | |
| CONSERVE | CONSERVATION FUTURES | N/A | N/A | N/A | N/A | | |
| EMS1 | FIRE DIST #1 EMS | N/A | N/A | N/A | N/A | | |
| FD1 | FIRE DIST #1 GENERAL | N/A | N/A | N/A | N/A | | |
| PORTPT | PORT OF PT GENERAL | N/A | N/A | N/A | N/A | | |
| PORTPTIDD | PORT OF PT IDD 2019 | N/A | N/A | N/A | N/A | | |
| PUD1 | PUD #1 GENERAL | N/A | N/A | N/A | N/A | | |
| STATE | STATE SCHOOL PART 1 | N/A | N/A | N/A | N/A | | |
| STATE2 | STATE SCHOOL PART 2 | N/A | N/A | N/A | N/A | | |
| | Total Tax Rate: | N/A | | | | | |
| | | | | Taxes w/Current Exemptions: | N/A | | |
| | | | | Taxes w/o Exemptions: | N/A | | |
Improvement / Building
| Improvement #1: | Residential Bldg | State Code: | 11 | 1878.8 sqft | Value: | $648,661 |
| Bathrooms (#): | 3 (FULL) | Bathrooms (#): | 1 (HALF) | | Bedrooms (#): | 4 | Exterior Wall: | SI/ST | | Fireplace: | PROPS-GOOD | Floor Construction: | FRAME | | Foundation: | CONPR | Heating/Cooling: | HTWTR | | Inside Verify: | NO | Roof Cover: | COMP |
|
| | Type | Description | Class CD | Sub Class CD | Year Built | Area |
| | MA | Main Area | 5- | 15SF | 2008 | 886.8 |
| | MA2 | Second Floor Main Area | 5- | 15SF | 2008 | 992.0 |
| | BSMTF | House basement finished | 4 | 15SF | 2008 | 992.0 |
| | GATT | House Attached Garage | 4 | 15SF | 2008 | 644.0 |
| | HCPOR | House Concrete Porch | 4 | 15SF | 2008 | 52.5 |
| | HWPOR | House Wood Porch | 4 | 15SF | 2008 | 32.0 |
| | PATIO | House Patio | 4 | 15SF | 2008 | 288.0 |
| | HBAL | House Balcony | 4 | 15SF | 2008 | 105.0 |
| | HDECK | House Deck | 4 | 15SF | 2008 | 655.0 |
Sketch
Property Image
Land
| 1 | 6215-1155L | Standard 3000SF Lot (View) | 0.0000 | 0.00 | 0.00 | 0.00 | 1.00 | $150,000 | $0 |
| 2 | 6215-1165L | Standard 3000SF Lot (Avg) | 0.0000 | 0.00 | 0.00 | 0.00 | 2.00 | $100,000 | $0 |
Roll Value History
| 2025 | N/A | N/A | N/A | N/A | N/A |
| 2024 | $608,539 | $252,000 | $0 | $860,539 | $860,539 |
| 2023 | $582,080 | $235,000 | $0 | $817,080 | $817,080 |
| 2022 | $582,080 | $240,000 | $0 | $822,080 | $822,080 |
| 2021 | $486,689 | $195,960 | $0 | $682,649 | $682,649 |
Deed and Sales History
| 1 | 07/28/2021 | QCD | Quit Claim Deed | LLOYD HUBBARD | MICHELE ZABRANSKY | | | | 137380 | |
| 2 | 04/12/2018 | SWD | Statutory Warranty Deed | CHRISTINE A HUMPHREY | MICHELE ZABRANSKY | | | $595,000.00 | 129948 | |
| 3 | 08/18/2006 | SWD | Statutory Warranty Deed | PETERS, BOB & NORMA | HUMPHREY, CHRISTINE | 0 | 0 | $210,000.00 | 107479 | 0 |
|   | |
Payout Agreement
| No payout information available.. |