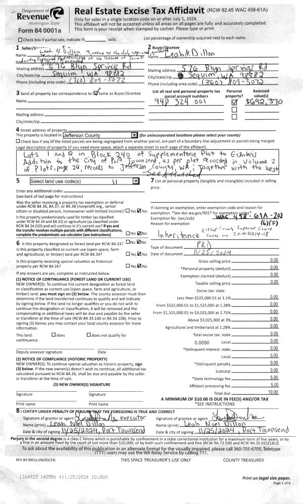
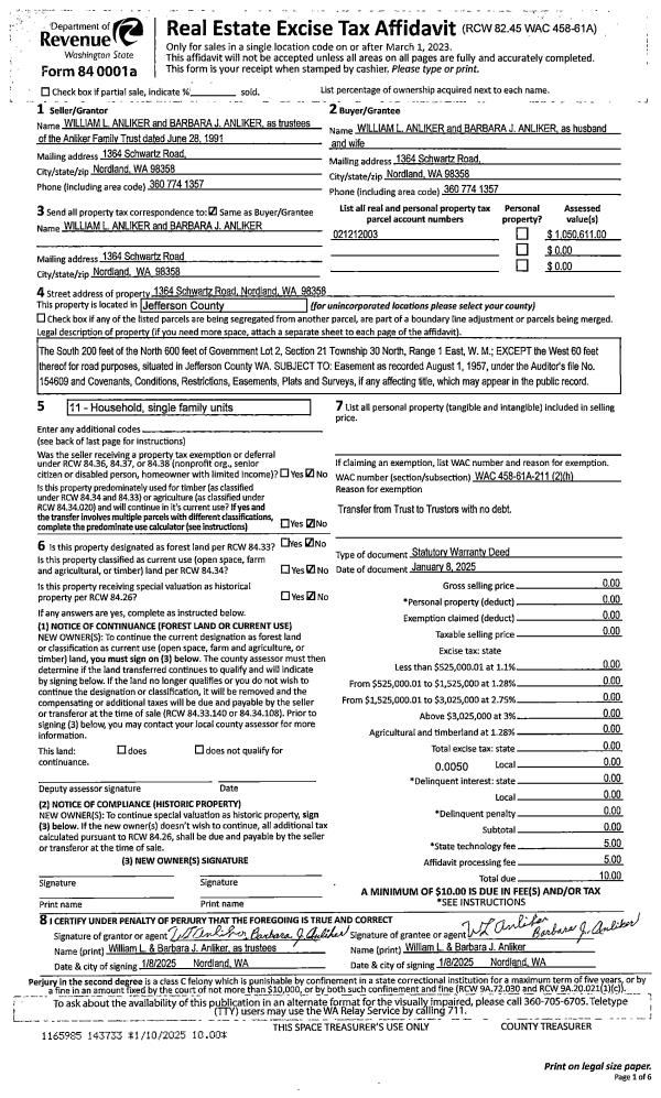
Property
Account |
| Property ID: | 275491 | Abbreviated Legal Description: | TAYLA SHORT PLAT - AMENDED LOT 2 SUBJ/EASE |
| Parcel # / Geo ID: | 001021009 | Agent Code: | |
| Type: | Real | | |
| Tax Area: | 0110 - C-50F1E1H2 | Land Use Code | 11 |
| Open Space: | N | DFL | N |
| Historic Property: | N | Remodel Property: | N |
| Multi-Family Redevelopment: | N | | |
| Township: | 30N | Section: | 2 |
| Range: | 1W |
Location |
| Address: | 905 COSGROVE ST PORT TOWNSEND, WA 98368 | Mapsco: | 166/031 |
| Neighborhood: | AL PETTYGROVE'S SMITH'S & DRUMMOND'S | Map ID: | |
| Neighborhood CD: | 6310 |
Owner |
| Name: | BRANDON K DAVIS | Owner ID: | 14169 |
| Mailing Address: | SHANNON R DAVIS 717 MOJI LN NW BAINBRIDGE ISLAND, WA 98110-2753 | % Ownership: | 100.0000000000% |
| | | Exemptions: | |
Pay Tax Due
Select the appropriate checkbox next to the year to be paid. Multiple years may be selected.
*Convenience Fee not included
Taxes and Assessment Details
Property Tax Information as of
10/23/2025
Click on "Statement Details" to expand or collapse a tax statement.
* Please enter a valid date ** Please enter a valid date *
Statement Details |
| 2025 | 33389 | STATE - STATE LEVY (SCHOOL) | $1247.58 | $1247.57 | $0.00 | $0.00 | $1247.58 | $1247.57 |
| 2025 | 33389 | COUNTY - COUNTY LEVIES (CE, DD, VET, MH) | $490.61 | $490.59 | $0.00 | $0.00 | $490.61 | $490.59 |
| 2025 | 33389 | CONSERVE - CONSERVATION FUTURES | $14.71 | $14.71 | $0.00 | $0.00 | $14.71 | $14.71 |
| 2025 | 33389 | CITYPT - CITY OF PT | $707.51 | $707.50 | $0.00 | $0.00 | $707.51 | $707.50 |
| 2025 | 33389 | PORTPT - PORT DISTRICT | $200.20 | $200.18 | $0.00 | $0.00 | $200.20 | $200.18 |
| 2025 | 33389 | PUD1 - PUD #1 | $32.10 | $32.10 | $0.00 | $0.00 | $32.10 | $32.10 |
| 2025 | 33389 | HD2 - HOSP DIST #2 | $28.63 | $28.62 | $0.00 | $0.00 | $28.63 | $28.62 |
| 2025 | 33389 | SD50 - SCHOOL DIST #50 | $911.78 | $911.76 | $0.00 | $0.00 | $911.78 | $911.76 |
| 2025 | 33389 | FD1 - FIRE DISTRICT #1 | $647.41 | $647.40 | $0.00 | $0.00 | $647.41 | $647.40 |
| 2025 | 33389 | EMS1 - FIRE DIST #1 EMS | $249.01 | $249.01 | $0.00 | $0.00 | $249.01 | $249.01 |
| 2025 | 33389 | JCCD - JC Conservation District | $2.55 | $2.55 | $0.00 | $0.00 | $2.55 | $2.55 |
| 2025 | 33389 | NWA - Noxious Weed Assessment | $2.15 | $2.15 | $0.00 | $0.00 | $2.15 | $2.15 |
| 2025 | 33389 | TOTAL: | $4534.24 | $4534.14 | $0.00 | $0.00 | $4534.24 | $4534.14 |
|
| 2025 | 33389 | $4534.24 | $4534.14 | $0.00 | $0.00 | $4534.24 | $4534.14 |
Statement Details |
| 2024 | 33453 | STATE - STATE LEVY (SCHOOL) | $1147.76 | $1147.76 | $0.00 | $0.00 | $2295.52 | $0.00 |
| 2024 | 33453 | COUNTY - COUNTY LEVIES (CE, DD, VET, MH) | $491.16 | $491.13 | $0.00 | $0.00 | $982.29 | $0.00 |
| 2024 | 33453 | CONSERVE - CONSERVATION FUTURES | $14.73 | $14.72 | $0.00 | $0.00 | $29.45 | $0.00 |
| 2024 | 33453 | CITYPT - CITY OF PT | $701.77 | $701.76 | $0.00 | $0.00 | $1403.53 | $0.00 |
| 2024 | 33453 | PORTPT - PORT DISTRICT | $202.87 | $202.85 | $0.00 | $0.00 | $405.72 | $0.00 |
| 2024 | 33453 | PUD1 - PUD #1 | $32.26 | $32.26 | $0.00 | $0.00 | $64.52 | $0.00 |
| 2024 | 33453 | HD2 - HOSP DIST #2 | $28.66 | $28.65 | $0.00 | $0.00 | $57.31 | $0.00 |
| 2024 | 33453 | SD50 - SCHOOL DIST #50 | $928.60 | $928.59 | $0.00 | $0.00 | $1857.19 | $0.00 |
| 2024 | 33453 | FD1 - FIRE DISTRICT #1 | $649.40 | $649.40 | $0.00 | $0.00 | $1298.80 | $0.00 |
| 2024 | 33453 | EMS1 - FIRE DIST #1 EMS | $248.05 | $248.04 | $0.00 | $0.00 | $496.09 | $0.00 |
| 2024 | 33453 | JCCD - JC Conservation District | $2.55 | $2.55 | $0.00 | $0.00 | $5.10 | $0.00 |
| 2024 | 33453 | NWA - Noxious Weed Assessment | $2.15 | $2.15 | $0.00 | $0.00 | $4.30 | $0.00 |
| 2024 | 33453 | TOTAL: | $4449.96 | $4449.86 | $0.00 | $0.00 | $8899.82 | $0.00 |
|
| 2024 | 33453 | $4449.96 | $4449.86 | $0.00 | $0.00 | $8899.82 | $0.00 |
Statement Details |
| 2023 | 33497 | STATE - STATE LEVY (SCHOOL) | $1075.11 | $1075.09 | $0.00 | $0.00 | $2150.20 | $0.00 |
| 2023 | 33497 | COUNTY - COUNTY LEVIES (CE, DD, VET, MH) | $469.16 | $469.12 | $0.00 | $0.00 | $938.28 | $0.00 |
| 2023 | 33497 | CONSERVE - CONSERVATION FUTURES | $14.07 | $14.07 | $0.00 | $0.00 | $28.14 | $0.00 |
| 2023 | 33497 | CITYPT - CITY OF PT | $663.06 | $663.04 | $0.00 | $0.00 | $1326.10 | $0.00 |
| 2023 | 33497 | PORTPT - PORT DISTRICT | $197.63 | $197.62 | $0.00 | $0.00 | $395.25 | $0.00 |
| 2023 | 33497 | PUD1 - PUD #1 | $31.10 | $31.10 | $0.00 | $0.00 | $62.20 | $0.00 |
| 2023 | 33497 | HD2 - HOSP DIST #2 | $27.38 | $27.38 | $0.00 | $0.00 | $54.76 | $0.00 |
| 2023 | 33497 | SD50 - SCHOOL DIST #50 | $853.12 | $853.10 | $0.00 | $0.00 | $1706.22 | $0.00 |
| 2023 | 33497 | FD1 - FIRE DISTRICT #1 | $386.48 | $386.48 | $0.00 | $0.00 | $772.96 | $0.00 |
| 2023 | 33497 | EMS1 - FIRE DIST #1 EMS | $164.40 | $164.40 | $0.00 | $0.00 | $328.80 | $0.00 |
| 2023 | 33497 | JCCD - JC Conservation District | $2.55 | $2.55 | $0.00 | $0.00 | $5.10 | $0.00 |
| 2023 | 33497 | NWA - Noxious Weed Assessment | $2.15 | $2.15 | $0.00 | $0.00 | $4.30 | $0.00 |
| 2023 | 33497 | TOTAL: | $3886.21 | $3886.10 | $0.00 | $0.00 | $7772.31 | $0.00 |
|
| 2023 | 33497 | $3886.21 | $3886.10 | $0.00 | $0.00 | $7772.31 | $0.00 |
Statement Details |
| 2022 | 33561 | STATE - STATE LEVY (SCHOOL) | $1076.11 | $1076.09 | $0.00 | $0.00 | $2152.20 | $0.00 |
| 2022 | 33561 | COUNTY - COUNTY LEVIES (CE, DD, VET, MH) | $479.47 | $479.45 | $0.00 | $0.00 | $958.92 | $0.00 |
| 2022 | 33561 | CONSERVE - CONSERVATION FUTURES | $14.38 | $14.37 | $0.00 | $0.00 | $28.75 | $0.00 |
| 2022 | 33561 | CITYPT - CITY OF PT | $616.97 | $616.95 | $0.00 | $0.00 | $1233.92 | $0.00 |
| 2022 | 33561 | PORTPT - PORT DISTRICT | $205.26 | $205.25 | $0.00 | $0.00 | $410.51 | $0.00 |
| 2022 | 33561 | PUD1 - PUD #1 | $32.07 | $32.06 | $0.00 | $0.00 | $64.13 | $0.00 |
| 2022 | 33561 | HD2 - HOSP DIST #2 | $27.99 | $27.98 | $0.00 | $0.00 | $55.97 | $0.00 |
| 2022 | 33561 | SD50 - SCHOOL DIST #50 | $797.45 | $797.43 | $0.00 | $0.00 | $1594.88 | $0.00 |
| 2022 | 33561 | FD1 - FIRE DISTRICT #1 | $393.34 | $393.33 | $0.00 | $0.00 | $786.67 | $0.00 |
| 2022 | 33561 | EMS1 - FIRE DIST #1 EMS | $167.31 | $167.31 | $0.00 | $0.00 | $334.62 | $0.00 |
| 2022 | 33561 | JCCD - JC Conservation District | $2.55 | $2.55 | $0.00 | $0.00 | $5.10 | $0.00 |
| 2022 | 33561 | NWA - Noxious Weed Assessment | $2.15 | $2.15 | $0.00 | $0.00 | $4.30 | $0.00 |
| 2022 | 33561 | TOTAL: | $3815.05 | $3814.92 | $0.00 | $0.00 | $7629.97 | $0.00 |
|
| 2022 | 33561 | $3815.05 | $3814.92 | $0.00 | $0.00 | $7629.97 | $0.00 |
Values
| (+) Improvement Homesite Value: | + | $0 | |
| (+) Improvement Non-Homesite Value: | + | $835,899 | |
| (+) Land Homesite Value: | + | $0 | |
| (+) Land Non-Homesite Value: | + | $270,000 | |
| (+) Curr Use (HS): | + | $0 | $0 |
| (+) Curr Use (NHS): | + | $0 | $0 |
| | | -------------------------- | |
| (=) Market Value: | = | $1,105,899 | |
| (–) Productivity Loss: | – | $0 | |
| | | -------------------------- | |
| (=) Subtotal: | = | $1,105,899 | |
| (+) Senior Appraised Value: | + | $0 | |
| (+) Non-Senior Appraised Value: | + | $1,105,899 | |
| | | -------------------------- | |
| (=) Total Appraised Value: | = | $1,105,899 | |
| (–) Senior Exemption Loss: | – | $0 | |
| (–) Exemption Loss: | – | $0 | |
| | | -------------------------- | |
| (=) Taxable Value: | = | $1,105,899 | |
Taxing Jurisdiction
| Owner: | BRANDON K DAVIS | | |
| % Ownership: | 100.0000000000% | | |
| Total Value: | N/A | | |
| Tax Area: | 0110 - C-50F1E1H2 |
| CE | COUNTY CURRENT EXPENSE | N/A | N/A | N/A | N/A | | |
| CNTYDD | DEVELOPMENTAL DISABILITIES | N/A | N/A | N/A | N/A | | |
| CNTYVET | VETERANS RELIEF | N/A | N/A | N/A | N/A | | |
| MENTAL | MENTAL HEALTH | N/A | N/A | N/A | N/A | | |
| PTGEN | CITY OF PT GENERAL | N/A | N/A | N/A | N/A | | |
| PTLLL | CITY OF PT - LIBRARY LID LIFT | N/A | N/A | N/A | N/A | | |
| PTMVBOND | CITY OF PT MV BOND | N/A | N/A | N/A | N/A | | |
| HOSP2CASH | HOSP DIST #2 GENERAL | N/A | N/A | N/A | N/A | | |
| SCH50BOND | SCHOOL DIST #50 BOND 2016 | N/A | N/A | N/A | N/A | | |
| SCH50CP | SCHOOL DIST #50 CAP PROJ | N/A | N/A | N/A | N/A | | |
| SCH50MO | SCHOOL DIST #50 EP & O | N/A | N/A | N/A | N/A | | |
| CONSERVE | CONSERVATION FUTURES | N/A | N/A | N/A | N/A | | |
| EMS1 | FIRE DIST #1 EMS | N/A | N/A | N/A | N/A | | |
| FD1 | FIRE DIST #1 GENERAL | N/A | N/A | N/A | N/A | | |
| PORTPT | PORT OF PT GENERAL | N/A | N/A | N/A | N/A | | |
| PORTPTIDD | PORT OF PT IDD 2019 | N/A | N/A | N/A | N/A | | |
| PUD1 | PUD #1 GENERAL | N/A | N/A | N/A | N/A | | |
| STATE | STATE SCHOOL PART 1 | N/A | N/A | N/A | N/A | | |
| STATE2 | STATE SCHOOL PART 2 | N/A | N/A | N/A | N/A | | |
| | Total Tax Rate: | N/A | | | | | |
| | | | | Taxes w/Current Exemptions: | N/A | | |
| | | | | Taxes w/o Exemptions: | N/A | | |
Improvement / Building
| Improvement #1: | Residential Bldg | State Code: | 11 | 2102.0 sqft | Value: | $835,899 |
| Bathrooms (#): | 4 (FULL) | Bedrooms (#): | 3 | | Exterior Wall: | SI/ST | Foundation: | CONPR | | Heating/Cooling: | HPUMP | Roof Cover: | COMP |
|
| | Type | Description | Class CD | Sub Class CD | Year Built | Area |
| | MA | Main Area | 5+ | 2S | 2014 | 1111.0 |
| | MA2 | Second Floor Main Area | 5+ | 2S | 2014 | 991.0 |
| | BSMTF | House basement finished | 5 | 2S | 2014 | 1063.0 |
| | HWPOR | House Wood Porch | 4 | 2S | 2014 | 335.0 |
Sketch
Property Image
Land
| 1 | 6310-1155L | | 0.1100 | 4791.60 | 0.00 | 0.00 | 1.00 | $270,000 | $0 |
Roll Value History
| 2025 | N/A | N/A | N/A | N/A | N/A |
| 2024 | $775,185 | $265,320 | $0 | $1,040,505 | $1,040,505 |
| 2023 | $744,178 | $248,010 | $0 | $992,188 | $992,188 |
| 2022 | $682,163 | $231,200 | $0 | $913,363 | $913,363 |
| 2021 | $570,371 | $216,750 | $0 | $787,121 | $787,121 |
Deed and Sales History
| 1 | 02/10/2012 | SWD | Statutory Warranty Deed | BRANDON K DAVIS | | | | | 0 | |
Payout Agreement
| No payout information available.. |