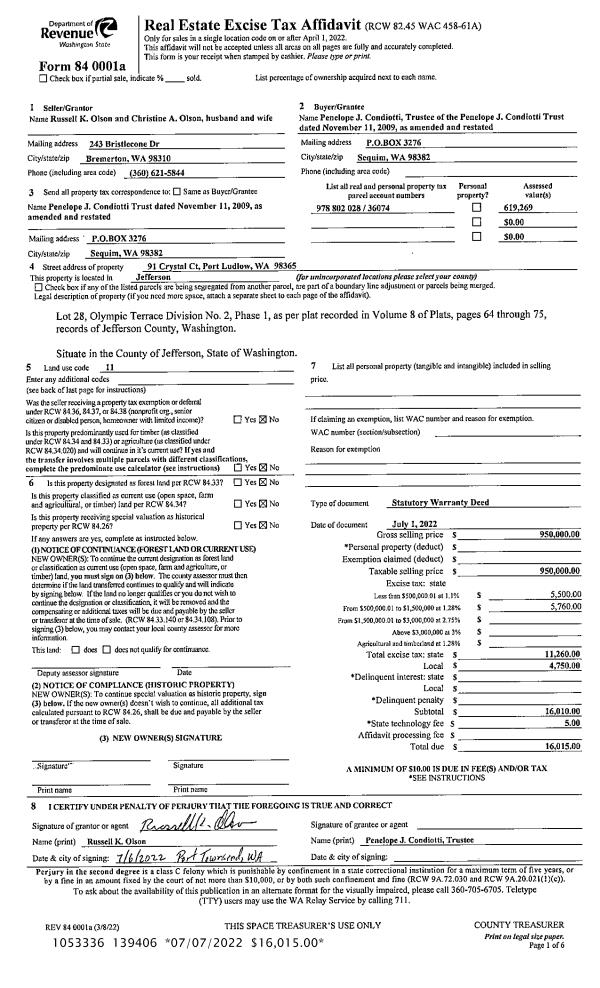
Property
Account |
| Property ID: | 275573 | Abbreviated Legal Description: | PETTYGROVES 2ND ADDITION BLK 58 LOTS 2 & 3 |
| Parcel # / Geo ID: | 985205802 | Agent Code: | |
| Type: | Real | | |
| Tax Area: | 0110 - C-50F1E1H2 | Land Use Code | 11 |
| Open Space: | N | DFL | N |
| Historic Property: | N | Remodel Property: | N |
| Multi-Family Redevelopment: | N | | |
| Township: | 31N | Section: | 35 |
| Range: | 1W |
Location |
| Address: | 915 V ST PORT TOWNSEND, WA 98368 | Mapsco: | 099/014A |
| Neighborhood: | PORTION PETTYGROVES 2ND LYING W OF CHERRY,QED SP | Map ID: | |
| Neighborhood CD: | 6410 |
Owner |
| Name: | BROOKS ELLIOTT TRUST | Owner ID: | 111332 |
| Mailing Address: | BRADLEY A BROOKS TRUSTEE DIANE C ELLIOTT TRUSTEE 915 V ST PORT TOWNSEND, WA 98368 | % Ownership: | 100.0000000000% |
| | | Exemptions: | |
Pay Tax Due
There is currently No Amount Due on this property.
Taxes and Assessment Details
Property Tax Information as of
10/24/2025
Click on "Statement Details" to expand or collapse a tax statement.
* Please enter a valid date ** Please enter a valid date *
Statement Details |
| | TOTAL: | $0.00 | $0.00 | $0.00 | $0.00 | $0.00 | $0.00 |
|
| | $0.00 | $0.00 | $0.00 | $0.00 | $0.00 | $0.00 |
Values
| (+) Improvement Homesite Value: | + | $0 | |
| (+) Improvement Non-Homesite Value: | + | $694,124 | |
| (+) Land Homesite Value: | + | $0 | |
| (+) Land Non-Homesite Value: | + | $262,500 | |
| (+) Curr Use (HS): | + | $0 | $0 |
| (+) Curr Use (NHS): | + | $0 | $0 |
| | | -------------------------- | |
| (=) Market Value: | = | $956,624 | |
| (–) Productivity Loss: | – | $0 | |
| | | -------------------------- | |
| (=) Subtotal: | = | $956,624 | |
| (+) Senior Appraised Value: | + | $0 | |
| (+) Non-Senior Appraised Value: | + | $956,624 | |
| | | -------------------------- | |
| (=) Total Appraised Value: | = | $956,624 | |
| (–) Senior Exemption Loss: | – | $0 | |
| (–) Exemption Loss: | – | $0 | |
| | | -------------------------- | |
| (=) Taxable Value: | = | $956,624 | |
Taxing Jurisdiction
| Owner: | BROOKS ELLIOTT TRUST | | |
| % Ownership: | 100.0000000000% | | |
| Total Value: | N/A | | |
| Tax Area: | 0110 - C-50F1E1H2 |
| CE | COUNTY CURRENT EXPENSE | N/A | N/A | N/A | N/A | | |
| CNTYDD | DEVELOPMENTAL DISABILITIES | N/A | N/A | N/A | N/A | | |
| CNTYVET | VETERANS RELIEF | N/A | N/A | N/A | N/A | | |
| MENTAL | MENTAL HEALTH | N/A | N/A | N/A | N/A | | |
| PTGEN | CITY OF PT GENERAL | N/A | N/A | N/A | N/A | | |
| PTLLL | CITY OF PT - LIBRARY LID LIFT | N/A | N/A | N/A | N/A | | |
| PTMVBOND | CITY OF PT MV BOND | N/A | N/A | N/A | N/A | | |
| HOSP2CASH | HOSP DIST #2 GENERAL | N/A | N/A | N/A | N/A | | |
| SCH50BOND | SCHOOL DIST #50 BOND 2016 | N/A | N/A | N/A | N/A | | |
| SCH50CP | SCHOOL DIST #50 CAP PROJ | N/A | N/A | N/A | N/A | | |
| SCH50MO | SCHOOL DIST #50 EP & O | N/A | N/A | N/A | N/A | | |
| CONSERVE | CONSERVATION FUTURES | N/A | N/A | N/A | N/A | | |
| EMS1 | FIRE DIST #1 EMS | N/A | N/A | N/A | N/A | | |
| FD1 | FIRE DIST #1 GENERAL | N/A | N/A | N/A | N/A | | |
| PORTPT | PORT OF PT GENERAL | N/A | N/A | N/A | N/A | | |
| PORTPTIDD | PORT OF PT IDD 2019 | N/A | N/A | N/A | N/A | | |
| PUD1 | PUD #1 GENERAL | N/A | N/A | N/A | N/A | | |
| STATE | STATE SCHOOL PART 1 | N/A | N/A | N/A | N/A | | |
| STATE2 | STATE SCHOOL PART 2 | N/A | N/A | N/A | N/A | | |
| | Total Tax Rate: | N/A | | | | | |
| | | | | Taxes w/Current Exemptions: | N/A | | |
| | | | | Taxes w/o Exemptions: | N/A | | |
Improvement / Building
| Improvement #1: | Residential Bldg | State Code: | 11 | 1478.0 sqft | Value: | $515,219 |
| Bathrooms (#): | 2 (FULL) | Bedrooms (#): | 2 | | Exterior Wall: | SI/ST | Foundation: | CONPR | | Heating/Cooling: | F/A | Roof Cover: | METAL |
|
| | Type | Description | Class CD | Sub Class CD | Year Built | Area |
| | MA | Main Area | 5 | 1S | 2021 | 1478.0 |
| | HWPOR | House Wood Porch | 4 | * | 2021 | 288.0 |
| Improvement #2: | Residential Bldg | State Code: | 11 | 400.0 sqft | Value: | $178,905 |
| Bathrooms (#): | 1 (FULL) | Bedrooms (#): | 1 | | Exterior Wall: | SI/ST | Foundation: | CONPR | | Heating/Cooling: | F/A | Roof Cover: | METAL |
|
| | Type | Description | Class CD | Sub Class CD | Year Built | Area |
| | MA | Main Area | 4 | ADU | 2021 | 400.0 |
| | GATT | House Attached Garage | 4 | ADU | 2021 | 400.0 |
| | HCPOR | House Concrete Porch | 3 | ADU | 2021 | 12.0 |
| | CONCD | Concrete Drive | 3 | ADU | 2021 | 336.0 |
Sketch
Property Image
Land
| 1 | 6410-1175L | Pettygroves 2nd Area Terr(Avg) | 0.0000 | 0.00 | 0.00 | 0.00 | 1.00 | $185,000 | $0 |
| 2 | 6410-1175L | Pettygroves 2nd Area Terr(Avg) | 0.0000 | 0.00 | 0.00 | 0.00 | 1.00 | $77,500 | $0 |
Roll Value History
| 2025 | N/A | N/A | N/A | N/A | N/A |
| 2024 | $666,225 | $264,000 | $0 | $930,225 | $930,225 |
| 2023 | $639,576 | $246,750 | $0 | $886,326 | $886,326 |
| 2022 | $586,278 | $230,000 | $0 | $816,278 | $816,278 |
| 2021 | $351,226 | $140,625 | $0 | $491,851 | $491,851 |
Deed and Sales History
| 1 | 08/30/2024 | QCD | Quit Claim Deed | BRADLEY BROOKS & DIANE ELLIOTT | BROOKS ELLIOTT TRUST | | | | 143143 | |
| 2 | 11/21/2017 | SWD | Statutory Warranty Deed | BENJAMIN SHAINE | BRADLEY BROOKS & DIANE ELLIOTT | | | $105,000.00 | 129105 | |
| 3 | 11/23/2016 | PRD | Personal Representatives Deed | | | | | | 126695 | |
| 4 | 01/11/2014 | QCD | Quit Claim Deed | DORIS H THURSTON | BENJAMIN A SHAINE | | | | 120620 | |
Payout Agreement
| No payout information available.. |