Property
Account |
| Property ID: | 275578 | Abbreviated Legal Description: | PUMPKIN PATCH SHORT PLATLOT 2 |
| Parcel # / Geo ID: | 702111039 | Agent Code: | |
| Type: | Real | | |
| Tax Area: | 0324 - 1-48F2E2H2C2L1Z3 | Land Use Code | 11 |
| Open Space: | N | DFL | N |
| Historic Property: | N | Remodel Property: | N |
| Multi-Family Redevelopment: | N | | |
| Township: | 27N | Section: | 11 |
| Range: | 2W |
Location |
| Address: | 191 LORDS LAKE LOOP RD QUILCENE, WA 98376 | Mapsco: | 179/091 |
| Neighborhood: | S11 T27N R2W & K. ELLIS #1, D. ELLIS, & WOODWARD SHORT PLATS | Map ID: | |
| Neighborhood CD: | 2520 |
Owner |
| Name: | RORY VAIL | Owner ID: | 93202 |
| Mailing Address: | PO BOX 531 QUILCENE, WA 98376-0531 | % Ownership: | 100.0000000000% |
| | | Exemptions: | |
Pay Tax Due
There is currently No Amount Due on this property.
Taxes and Assessment Details
Property Tax Information as of
10/24/2025
Click on "Statement Details" to expand or collapse a tax statement.
* Please enter a valid date ** Please enter a valid date *
Statement Details |
| | TOTAL: | $0.00 | $0.00 | $0.00 | $0.00 | $0.00 | $0.00 |
|
| | $0.00 | $0.00 | $0.00 | $0.00 | $0.00 | $0.00 |
Values
| (+) Improvement Homesite Value: | + | $0 | |
| (+) Improvement Non-Homesite Value: | + | $117,005 | |
| (+) Land Homesite Value: | + | $0 | |
| (+) Land Non-Homesite Value: | + | $114,586 | |
| (+) Curr Use (HS): | + | $0 | $0 |
| (+) Curr Use (NHS): | + | $0 | $0 |
| | | -------------------------- | |
| (=) Market Value: | = | $231,591 | |
| (–) Productivity Loss: | – | $0 | |
| | | -------------------------- | |
| (=) Subtotal: | = | $231,591 | |
| (+) Senior Appraised Value: | + | $0 | |
| (+) Non-Senior Appraised Value: | + | $231,591 | |
| | | -------------------------- | |
| (=) Total Appraised Value: | = | $231,591 | |
| (–) Senior Exemption Loss: | – | $0 | |
| (–) Exemption Loss: | – | $0 | |
| | | -------------------------- | |
| (=) Taxable Value: | = | $231,591 | |
Taxing Jurisdiction
| Owner: | RORY VAIL | | |
| % Ownership: | 100.0000000000% | | |
| Total Value: | N/A | | |
| Tax Area: | 0324 - 1-48F2E2H2C2L1Z3 |
| CE | COUNTY CURRENT EXPENSE | N/A | N/A | N/A | N/A | | |
| CNTYDD | DEVELOPMENTAL DISABILITIES | N/A | N/A | N/A | N/A | | |
| CNTYVET | VETERANS RELIEF | N/A | N/A | N/A | N/A | | |
| MENTAL | MENTAL HEALTH | N/A | N/A | N/A | N/A | | |
| ROADS | COUNTY ROADS | N/A | N/A | N/A | N/A | | |
| ROADSCU | COUNTY ROADS TO CUR EXP | N/A | N/A | N/A | N/A | | |
| HOSP2CASH | HOSP DIST #2 GENERAL | N/A | N/A | N/A | N/A | | |
| SCH48MO | SCHOOL DIST #48 EP & O | N/A | N/A | N/A | N/A | | |
| CEM2 | CEMETERY DIST #2 GENERAL | N/A | N/A | N/A | N/A | | |
| CONSERVE | CONSERVATION FUTURES | N/A | N/A | N/A | N/A | | |
| FD2 | FIRE DIST #2 GENERAL | N/A | N/A | N/A | N/A | | |
| LIB1 | LIBRARY DIST #1 GENERAL | N/A | N/A | N/A | N/A | | |
| PORTPT | PORT OF PT GENERAL | N/A | N/A | N/A | N/A | | |
| PORTPTIDD | PORT OF PT IDD 2019 | N/A | N/A | N/A | N/A | | |
| PUD1 | PUD #1 GENERAL | N/A | N/A | N/A | N/A | | |
| STATE | STATE SCHOOL PART 1 | N/A | N/A | N/A | N/A | | |
| STATE2 | STATE SCHOOL PART 2 | N/A | N/A | N/A | N/A | | |
| EMS2 | FIRE DIST #2 EMS | N/A | N/A | N/A | N/A | | |
| | Total Tax Rate: | N/A | | | | | |
| | | | | Taxes w/Current Exemptions: | N/A | | |
| | | | | Taxes w/o Exemptions: | N/A | | |
Improvement / Building
| Improvement #1: | Residential Bldg | State Code: | 11 | 1120.0 sqft | Value: | $117,005 |
| Exterior Wall: | SI/ST | Fireplace: | WD ST-AVG | | Floor Construction: | FRAME | Foundation: | CONPR | | Heating/Cooling: | HPUMP | Roof Cover: | METAL |
|
| | Type | Description | Class CD | Sub Class CD | Year Built | Area |
| | MA | Main Area | 2 | 1S | 1972 | 1120.0 |
| | HDECK | House Deck | 2 | * | 1972 | 760.0 |
| | CARPT | Carport (Table Not Dep) | 1 | * | 1972 | 576.0 |
| | GARAG | Garage (Table Not Dep) | 1 | * | 1972 | 864.0 |
| | GARAG | Garage (Table Not Dep) | 1 | * | 1972 | 288.0 |
Sketch
| No sketches available for this property. |
Property Image
Land
| 1 | 2520-1375S | Wooded/No View Sites Area 1+/- Acre | 0.0000 | 0.00 | 0.00 | 0.00 | 1.00 | $86,250 | $0 |
| 2 | 1575A | Terr/Mtn/No View <6 Acres | 2.3200 | 101059.20 | 0.00 | 0.00 | 0.00 | $21,344 | $0 |
| 3 | 1575A | Terr/Mtn/No View <6 Acres | 1.5200 | 66211.20 | 0.00 | 0.00 | 0.00 | $6,992 | $0 |
Roll Value History
| 2025 | N/A | N/A | N/A | N/A | N/A |
| 2024 | $112,130 | $109,604 | $0 | $221,734 | $221,734 |
| 2023 | $107,254 | $93,100 | $0 | $200,354 | $200,354 |
| 2022 | $97,504 | $85,790 | $0 | $183,294 | $183,294 |
| 2021 | $84,786 | $72,480 | $0 | $157,266 | $157,266 |
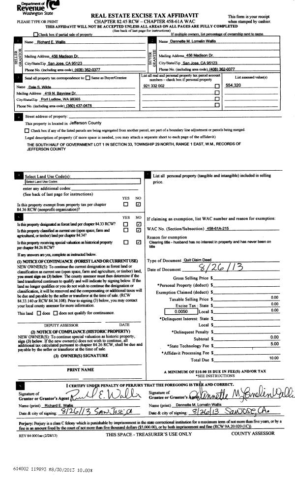
Deed and Sales History
| 1 | 02/25/2015 | SWD | Statutory Warranty Deed | | | | | | 122841 | |
| 2 | 02/25/2015 | SWD | Statutory Warranty Deed | DORA HAZEL BROWN EST | RORY VAIL | | | $124,000.00 | 122743 | |
| 3 | 02/25/2014 | QCD | Quit Claim Deed | WAYNE S BROWN | DORA HAZEL BROWN EST | | | | 120787 | |
| 4 | 02/25/2014 | QCD | Quit Claim Deed | | | | | | 120787 | |
| 5 | 09/06/2002 | QCD | Quit Claim Deed | DORA HAZEL BROWN | WAYNE STEVEN BROWN | 0 | 0 | $0.00 | 95621 | 0 |
Payout Agreement
| No payout information available.. |