Property
Account |
| Property ID: | 275631 | Abbreviated Legal Description: | LAZY C RANCH DIV 3 LOT 194 LOT CERTIFICATION AF#585062 |
| Parcel # / Geo ID: | 966900153 | Agent Code: | |
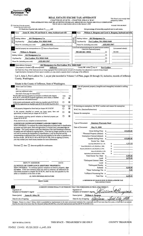
| Type: | Real | | |
| Tax Area: | 0440 - 1-46F4E4H2C1L1Z1P2 | Land Use Code | 11 |
| Open Space: | N | DFL | N |
| Historic Property: | N | Remodel Property: | N |
| Multi-Family Redevelopment: | N | | |
| Township: | 26N | Section: | 34 |
| Range: | 2W |
Location |
| Address: | | Mapsco: | 008/045 |
| Neighborhood: | LAZY C RANCH DIV 1 / LAZY C RANCH DIV 3 | Map ID: | |
| Neighborhood CD: | 1375 |
Owner |
| Name: | LAWRENCE R & KRISTI COLE | Owner ID: | 104007 |
| Mailing Address: | 32 WELSH LN BRINNON, WA 98320-9565 | % Ownership: | 100.0000000000% |
| | | Exemptions: | |
Pay Tax Due
There is currently No Amount Due on this property.
Taxes and Assessment Details
Property Tax Information as of
10/24/2025
Click on "Statement Details" to expand or collapse a tax statement.
* Please enter a valid date ** Please enter a valid date *
Statement Details |
| | TOTAL: | $0.00 | $0.00 | $0.00 | $0.00 | $0.00 | $0.00 |
|
| | $0.00 | $0.00 | $0.00 | $0.00 | $0.00 | $0.00 |
Values
| (+) Improvement Homesite Value: | + | $0 | |
| (+) Improvement Non-Homesite Value: | + | $0 | |
| (+) Land Homesite Value: | + | $0 | |
| (+) Land Non-Homesite Value: | + | $13,200 | |
| (+) Curr Use (HS): | + | $0 | $0 |
| (+) Curr Use (NHS): | + | $0 | $0 |
| | | -------------------------- | |
| (=) Market Value: | = | $13,200 | |
| (–) Productivity Loss: | – | $0 | |
| | | -------------------------- | |
| (=) Subtotal: | = | $13,200 | |
| (+) Senior Appraised Value: | + | $0 | |
| (+) Non-Senior Appraised Value: | + | $13,200 | |
| | | -------------------------- | |
| (=) Total Appraised Value: | = | $13,200 | |
| (–) Senior Exemption Loss: | – | $0 | |
| (–) Exemption Loss: | – | $0 | |
| | | -------------------------- | |
| (=) Taxable Value: | = | $13,200 | |
Taxing Jurisdiction
| Owner: | LAWRENCE R & KRISTI COLE | | |
| % Ownership: | 100.0000000000% | | |
| Total Value: | N/A | | |
| Tax Area: | 0440 - 1-46F4E4H2C1L1Z1P2 |
| CE | COUNTY CURRENT EXPENSE | N/A | N/A | N/A | N/A | | |
| CNTYDD | DEVELOPMENTAL DISABILITIES | N/A | N/A | N/A | N/A | | |
| CNTYVET | VETERANS RELIEF | N/A | N/A | N/A | N/A | | |
| MENTAL | MENTAL HEALTH | N/A | N/A | N/A | N/A | | |
| ROADS | COUNTY ROADS | N/A | N/A | N/A | N/A | | |
| ROADSCU | COUNTY ROADS TO CUR EXP | N/A | N/A | N/A | N/A | | |
| HOSP2CASH | HOSP DIST #2 GENERAL | N/A | N/A | N/A | N/A | | |
| SCH46MO | SCHOOL DIST #46 EP & O | N/A | N/A | N/A | N/A | | |
| CEM1 | CEMETERY DIST #1 GENERAL | N/A | N/A | N/A | N/A | | |
| CONSERVE | CONSERVATION FUTURES | N/A | N/A | N/A | N/A | | |
| EMS4 | FIRE DIST #4 EMS | N/A | N/A | N/A | N/A | | |
| FD4 | FIRE DIST #4 GENERAL | N/A | N/A | N/A | N/A | | |
| FD4BOND | FIRE DIST #4 BOND 2019 | N/A | N/A | N/A | N/A | | |
| LIB1 | LIBRARY DIST #1 GENERAL | N/A | N/A | N/A | N/A | | |
| PORTPT | PORT OF PT GENERAL | N/A | N/A | N/A | N/A | | |
| PORTPTIDD | PORT OF PT IDD 2019 | N/A | N/A | N/A | N/A | | |
| PUD1 | PUD #1 GENERAL | N/A | N/A | N/A | N/A | | |
| STATE | STATE SCHOOL PART 1 | N/A | N/A | N/A | N/A | | |
| STATE2 | STATE SCHOOL PART 2 | N/A | N/A | N/A | N/A | | |
| | Total Tax Rate: | N/A | | | | | |
| | | | | Taxes w/Current Exemptions: | N/A | | |
| | | | | Taxes w/o Exemptions: | N/A | | |
Improvement / Building
Sketch
| No sketches available for this property. |
Property Image
Land
| 1 | 1375-1185L | Lots in Lazy C Div 3 Typ Uneven No View | 0.0000 | 0.00 | 0.00 | 0.00 | 1.00 | $13,200 | $0 |
Roll Value History
| 2025 | N/A | N/A | N/A | N/A | N/A |
| 2024 | $0 | $12,000 | $0 | $12,000 | $12,000 |
| 2023 | $0 | $12,000 | $0 | $12,000 | $12,000 |
| 2022 | $0 | $12,000 | $0 | $12,000 | $12,000 |
| 2021 | $0 | $11,000 | $0 | $11,000 | $11,000 |
Deed and Sales History
| 1 | 01/08/2021 | SWD | Statutory Warranty Deed | EDWARD J RODEN | LAWRENCE R & KRISTI COLE | | | $17,500.00 | 135926 | |
|   | |
| 2 | 07/18/2014 | SWD | Statutory Warranty Deed | EMMETT G CARTER TRSTEE | EDWARD J RODEN | | | $11,500.00 | 121563 | |
|   | |
| 3 | 09/13/2000 | SWD | Statutory Warranty Deed | CARTER, EMMETT G/BERNICE | CARTER FAMILY TRUST | 0 | 0 | $0.00 | 90741 | 0 |
Payout Agreement
| No payout information available.. |