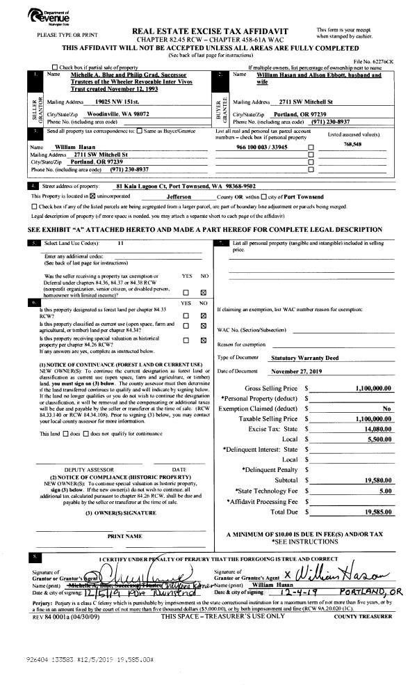
Property
Account |
| Property ID: | 275775 | Abbreviated Legal Description: | CAMPBELL SHORT PLAT LOT B SUBJ/EASE |
| Parcel # / Geo ID: | 001104031 | Agent Code: | |
| Type: | Real | | |
| Tax Area: | 0110 - C-50F1E1H2 | Land Use Code | 11 |
| Open Space: | N | DFL | N |
| Historic Property: | N | Remodel Property: | N |
| Multi-Family Redevelopment: | N | | |
| Township: | 30N | Section: | 10 |
| Range: | 1W |
Location |
| Address: | 276 CLEVELAND ST PORT TOWNSEND, WA 98368 | Mapsco: | 160/045 |
| Neighborhood: | GALLEON VIEW ESTATES, ISLAND VISTA, and TAX #14 15/30/1W | Map ID: | |
| Neighborhood CD: | 6230 |
Owner |
| Name: | KATHLEEN O'NEILL | Owner ID: | 23819 |
| Mailing Address: | 276 CLEVELAND ST PORT TOWNSEND, WA 98368-3033 | % Ownership: | 100.0000000000% |
| | | Exemptions: | |
Pay Tax Due
There is currently No Amount Due on this property.
Taxes and Assessment Details
Property Tax Information as of
10/23/2025
Click on "Statement Details" to expand or collapse a tax statement.
* Please enter a valid date ** Please enter a valid date *
Statement Details |
| 2025 | 33540 | STATE - STATE LEVY (SCHOOL) | $1581.99 | $1581.99 | $0.00 | $0.00 | $3163.98 | $0.00 |
| 2025 | 33540 | COUNTY - COUNTY LEVIES (CE, DD, VET, MH) | $622.12 | $622.10 | $0.00 | $0.00 | $1244.22 | $0.00 |
| 2025 | 33540 | CONSERVE - CONSERVATION FUTURES | $18.66 | $18.65 | $0.00 | $0.00 | $37.31 | $0.00 |
| 2025 | 33540 | CITYPT - CITY OF PT | $897.16 | $897.13 | $0.00 | $0.00 | $1794.29 | $0.00 |
| 2025 | 33540 | PORTPT - PORT DISTRICT | $253.86 | $253.85 | $0.00 | $0.00 | $507.71 | $0.00 |
| 2025 | 33540 | PUD1 - PUD #1 | $40.71 | $40.70 | $0.00 | $0.00 | $81.41 | $0.00 |
| 2025 | 33540 | HD2 - HOSP DIST #2 | $36.30 | $36.29 | $0.00 | $0.00 | $72.59 | $0.00 |
| 2025 | 33540 | SD50 - SCHOOL DIST #50 | $1156.19 | $1156.16 | $0.00 | $0.00 | $2312.35 | $0.00 |
| 2025 | 33540 | FD1 - FIRE DISTRICT #1 | $820.94 | $820.94 | $0.00 | $0.00 | $1641.88 | $0.00 |
| 2025 | 33540 | EMS1 - FIRE DIST #1 EMS | $315.76 | $315.75 | $0.00 | $0.00 | $631.51 | $0.00 |
| 2025 | 33540 | JCCD - JC Conservation District | $2.55 | $2.55 | $0.00 | $0.00 | $5.10 | $0.00 |
| 2025 | 33540 | NWA - Noxious Weed Assessment | $2.15 | $2.15 | $0.00 | $0.00 | $4.30 | $0.00 |
| 2025 | 33540 | TOTAL: | $5748.39 | $5748.26 | $0.00 | $0.00 | $11496.65 | $0.00 |
|
| 2025 | 33540 | $5748.39 | $5748.26 | $0.00 | $0.00 | $11496.65 | $0.00 |
Statement Details |
| 2024 | 33605 | STATE - STATE LEVY (SCHOOL) | $1526.30 | $1526.29 | $0.00 | $0.00 | $3052.59 | $0.00 |
| 2024 | 33605 | COUNTY - COUNTY LEVIES (CE, DD, VET, MH) | $653.13 | $653.09 | $0.00 | $0.00 | $1306.22 | $0.00 |
| 2024 | 33605 | CONSERVE - CONSERVATION FUTURES | $19.59 | $19.58 | $0.00 | $0.00 | $39.17 | $0.00 |
| 2024 | 33605 | CITYPT - CITY OF PT | $933.22 | $933.20 | $0.00 | $0.00 | $1866.42 | $0.00 |
| 2024 | 33605 | PORTPT - PORT DISTRICT | $269.77 | $269.76 | $0.00 | $0.00 | $539.53 | $0.00 |
| 2024 | 33605 | PUD1 - PUD #1 | $42.90 | $42.90 | $0.00 | $0.00 | $85.80 | $0.00 |
| 2024 | 33605 | HD2 - HOSP DIST #2 | $38.11 | $38.11 | $0.00 | $0.00 | $76.22 | $0.00 |
| 2024 | 33605 | SD50 - SCHOOL DIST #50 | $1234.86 | $1234.83 | $0.00 | $0.00 | $2469.69 | $0.00 |
| 2024 | 33605 | FD1 - FIRE DISTRICT #1 | $863.58 | $863.57 | $0.00 | $0.00 | $1727.15 | $0.00 |
| 2024 | 33605 | EMS1 - FIRE DIST #1 EMS | $329.86 | $329.85 | $0.00 | $0.00 | $659.71 | $0.00 |
| 2024 | 33605 | JCCD - JC Conservation District | $2.55 | $2.55 | $0.00 | $0.00 | $5.10 | $0.00 |
| 2024 | 33605 | NWA - Noxious Weed Assessment | $2.15 | $2.15 | $0.00 | $0.00 | $4.30 | $0.00 |
| 2024 | 33605 | TOTAL: | $5916.02 | $5915.88 | $0.00 | $0.00 | $11831.90 | $0.00 |
|
| 2024 | 33605 | $5916.02 | $5915.88 | $0.00 | $0.00 | $11831.90 | $0.00 |
Statement Details |
| 2023 | 33655 | STATE - STATE LEVY (SCHOOL) | $1936.69 | $1936.68 | $0.00 | $0.00 | $3873.37 | $0.00 |
| 2023 | 33655 | COUNTY - COUNTY LEVIES (CE, DD, VET, MH) | $845.12 | $845.09 | $0.00 | $0.00 | $1690.21 | $0.00 |
| 2023 | 33655 | CONSERVE - CONSERVATION FUTURES | $25.34 | $25.34 | $0.00 | $0.00 | $50.68 | $0.00 |
| 2023 | 33655 | CITYPT - CITY OF PT | $1194.43 | $1194.41 | $0.00 | $0.00 | $2388.84 | $0.00 |
| 2023 | 33655 | PORTPT - PORT DISTRICT | $356.01 | $356.00 | $0.00 | $0.00 | $712.01 | $0.00 |
| 2023 | 33655 | PUD1 - PUD #1 | $56.02 | $56.02 | $0.00 | $0.00 | $112.04 | $0.00 |
| 2023 | 33655 | HD2 - HOSP DIST #2 | $49.32 | $49.31 | $0.00 | $0.00 | $98.63 | $0.00 |
| 2023 | 33655 | SD50 - SCHOOL DIST #50 | $1536.80 | $1536.78 | $0.00 | $0.00 | $3073.58 | $0.00 |
| 2023 | 33655 | FD1 - FIRE DISTRICT #1 | $696.20 | $696.20 | $0.00 | $0.00 | $1392.40 | $0.00 |
| 2023 | 33655 | EMS1 - FIRE DIST #1 EMS | $296.15 | $296.15 | $0.00 | $0.00 | $592.30 | $0.00 |
| 2023 | 33655 | JCCD - JC Conservation District | $2.55 | $2.55 | $0.00 | $0.00 | $5.10 | $0.00 |
| 2023 | 33655 | NWA - Noxious Weed Assessment | $2.15 | $2.15 | $0.00 | $0.00 | $4.30 | $0.00 |
| 2023 | 33655 | TOTAL: | $6996.78 | $6996.68 | $0.00 | $0.00 | $13993.46 | $0.00 |
|
| 2023 | 33655 | $6996.78 | $6996.68 | $0.00 | $0.00 | $13993.46 | $0.00 |
Statement Details |
| 2022 | 33723 | STATE - STATE LEVY (SCHOOL) | $1963.23 | $1963.22 | $0.00 | $0.00 | $3926.45 | $0.00 |
| 2022 | 33723 | COUNTY - COUNTY LEVIES (CE, DD, VET, MH) | $874.74 | $874.71 | $0.00 | $0.00 | $1749.45 | $0.00 |
| 2022 | 33723 | CONSERVE - CONSERVATION FUTURES | $26.23 | $26.23 | $0.00 | $0.00 | $52.46 | $0.00 |
| 2022 | 33723 | CITYPT - CITY OF PT | $1125.58 | $1125.57 | $0.00 | $0.00 | $2251.15 | $0.00 |
| 2022 | 33723 | PORTPT - PORT DISTRICT | $374.47 | $374.46 | $0.00 | $0.00 | $748.93 | $0.00 |
| 2022 | 33723 | PUD1 - PUD #1 | $58.50 | $58.49 | $0.00 | $0.00 | $116.99 | $0.00 |
| 2022 | 33723 | HD2 - HOSP DIST #2 | $51.07 | $51.05 | $0.00 | $0.00 | $102.12 | $0.00 |
| 2022 | 33723 | SD50 - SCHOOL DIST #50 | $1454.85 | $1454.84 | $0.00 | $0.00 | $2909.69 | $0.00 |
| 2022 | 33723 | FD1 - FIRE DISTRICT #1 | $717.60 | $717.59 | $0.00 | $0.00 | $1435.19 | $0.00 |
| 2022 | 33723 | EMS1 - FIRE DIST #1 EMS | $305.24 | $305.23 | $0.00 | $0.00 | $610.47 | $0.00 |
| 2022 | 33723 | JCCD - JC Conservation District | $2.55 | $2.55 | $0.00 | $0.00 | $5.10 | $0.00 |
| 2022 | 33723 | NWA - Noxious Weed Assessment | $2.15 | $2.15 | $0.00 | $0.00 | $4.30 | $0.00 |
| 2022 | 33723 | TOTAL: | $6956.21 | $6956.09 | $0.00 | $0.00 | $13912.30 | $0.00 |
|
| 2022 | 33723 | $6956.21 | $6956.09 | $0.00 | $0.00 | $13912.30 | $0.00 |
Values
| (+) Improvement Homesite Value: | + | $0 | |
| (+) Improvement Non-Homesite Value: | + | $904,587 | |
| (+) Land Homesite Value: | + | $0 | |
| (+) Land Non-Homesite Value: | + | $491,250 | |
| (+) Curr Use (HS): | + | $0 | $0 |
| (+) Curr Use (NHS): | + | $0 | $0 |
| | | -------------------------- | |
| (=) Market Value: | = | $1,395,837 | |
| (–) Productivity Loss: | – | $0 | |
| | | -------------------------- | |
| (=) Subtotal: | = | $1,395,837 | |
| (+) Senior Appraised Value: | + | $0 | |
| (+) Non-Senior Appraised Value: | + | $1,395,837 | |
| | | -------------------------- | |
| (=) Total Appraised Value: | = | $1,395,837 | |
| (–) Senior Exemption Loss: | – | $0 | |
| (–) Exemption Loss: | – | $0 | |
| | | -------------------------- | |
| (=) Taxable Value: | = | $1,395,837 | |
Taxing Jurisdiction
| Owner: | KATHLEEN O'NEILL | | |
| % Ownership: | 100.0000000000% | | |
| Total Value: | N/A | | |
| Tax Area: | 0110 - C-50F1E1H2 |
| CE | COUNTY CURRENT EXPENSE | N/A | N/A | N/A | N/A | | |
| CNTYDD | DEVELOPMENTAL DISABILITIES | N/A | N/A | N/A | N/A | | |
| CNTYVET | VETERANS RELIEF | N/A | N/A | N/A | N/A | | |
| MENTAL | MENTAL HEALTH | N/A | N/A | N/A | N/A | | |
| PTGEN | CITY OF PT GENERAL | N/A | N/A | N/A | N/A | | |
| PTLLL | CITY OF PT - LIBRARY LID LIFT | N/A | N/A | N/A | N/A | | |
| PTMVBOND | CITY OF PT MV BOND | N/A | N/A | N/A | N/A | | |
| HOSP2CASH | HOSP DIST #2 GENERAL | N/A | N/A | N/A | N/A | | |
| SCH50BOND | SCHOOL DIST #50 BOND 2016 | N/A | N/A | N/A | N/A | | |
| SCH50CP | SCHOOL DIST #50 CAP PROJ | N/A | N/A | N/A | N/A | | |
| SCH50MO | SCHOOL DIST #50 EP & O | N/A | N/A | N/A | N/A | | |
| CONSERVE | CONSERVATION FUTURES | N/A | N/A | N/A | N/A | | |
| EMS1 | FIRE DIST #1 EMS | N/A | N/A | N/A | N/A | | |
| FD1 | FIRE DIST #1 GENERAL | N/A | N/A | N/A | N/A | | |
| PORTPT | PORT OF PT GENERAL | N/A | N/A | N/A | N/A | | |
| PORTPTIDD | PORT OF PT IDD 2019 | N/A | N/A | N/A | N/A | | |
| PUD1 | PUD #1 GENERAL | N/A | N/A | N/A | N/A | | |
| STATE | STATE SCHOOL PART 1 | N/A | N/A | N/A | N/A | | |
| STATE2 | STATE SCHOOL PART 2 | N/A | N/A | N/A | N/A | | |
| | Total Tax Rate: | N/A | | | | | |
| | | | | Taxes w/Current Exemptions: | N/A | | |
| | | | | Taxes w/o Exemptions: | N/A | | |
Improvement / Building
| Improvement #1: | Residential Bldg | State Code: | 11 | 2242.0 sqft | Value: | $709,579 |
| Bathrooms (#): | 3 (FULL) | Bathrooms (#): | 1 (HALF) | | Bedrooms (#): | 3 | Exterior Wall: | SI/ST | | Floor Construction: | FRAME | Foundation: | CONPR | | Heating/Cooling: | HPUMP | Roof Cover: | COMP |
|
| | Type | Description | Class CD | Sub Class CD | Year Built | Area |
| | MA | Main Area | 5 | 2S | 2018 | 1121.0 |
| | MA2 | Second Floor Main Area | 5 | 2S | 2018 | 1121.0 |
| | BSMTF | House basement finished | 5 | 2S | 2018 | 1040.0 |
| | GATT | House Attached Garage | 5 | 2S | 2018 | 345.0 |
| | HDECK | House Deck | 5 | * | 2018 | 150.0 |
| | HBAL | House Balcony | 5 | * | 2018 | 90.0 |
| | HWPOR | House Wood Porch | 5 | * | 2018 | 90.0 |
| | HCPOR | House Concrete Porch | 5 | * | 2018 | 36.0 |
| Improvement #2: | Residential Bldg | State Code: | 11 | 584.0 sqft | Value: | $195,008 |
| Bathrooms (#): | 1 (FULL) | Bedrooms (#): | 1 | | Exterior Wall: | SI/ST | Foundation: | CONPR | | Heating/Cooling: | ELBB | Roof Cover: | METAL |
|
Sketch
Property Image
Land
| 1 | 6230-1245S | | 0.0000 | 0.00 | 0.00 | 0.00 | 1.00 | $491,250 | $0 |
Roll Value History
| 2025 | N/A | N/A | N/A | N/A | N/A |
| 2024 | $850,662 | $468,750 | $0 | $1,319,412 | $1,319,412 |
| 2023 | $850,662 | $468,750 | $0 | $1,319,412 | $1,319,412 |
| 2022 | $1,186,579 | $458,750 | $0 | $1,645,329 | $1,645,329 |
| 2021 | $1,026,642 | $409,375 | $0 | $1,436,017 | $1,436,017 |
Deed and Sales History
| 1 | 12/26/2023 | SWD | Statutory Warranty Deed | TRAES FAMILY JOINT LIVING TRUST | KATHLEEN O'NEILL | | | $1,375,000.00 | 142072 | |
| 2 | 05/10/2022 | QCD | Quit Claim Deed | ELLEN STEEVENSZ & ROBIN O'CANNA | TRAES FAMILY JOINT LIVING TRUST | | | | 139066 | |
| 3 | 08/02/2021 | SWD | Statutory Warranty Deed | BRIAN NEWSOM | ELLEN STEEVENSZ & ROBIN O'CANNA | | | $1,500,000.00 | 137331 | |
| 4 | 06/07/2016 | SWD | Statutory Warranty Deed | MABEL L CAMPBELL | BRIAN NEWSOM | | | $320,000.00 | 125594 | |
| 5 | 02/04/2015 | QCD | Quit Claim Deed | | | | | | 122650 | |
| 6 | 01/30/2015 | QCD | Quit Claim Deed | | | | | | 122649 | |
| 7 | 09/11/2001 | SWD | Statutory Warranty Deed | CAMPBELL, MABEL L | WALZ, ROSALEE CAMPBELL | 0 | 0 | $0.00 | 93048 | 0 |
| 8 | 01/30/2001 | SWD | Statutory Warranty Deed | CAMPBELL, MABEL L | LEONS, NEVA CAMPBELL | 0 | 0 | $0.00 | 93046 | 0 |
| 9 | 12/27/2000 | SWD | Statutory Warranty Deed | CAMPBELL, MABEL L | LEONS, NEVA CAMPBELL | 0 | 0 | $0.00 | 93045 | 0 |
| 10 | 12/27/2000 | SWD | Statutory Warranty Deed | CAMPBELL, MABEL L | WALZ, ROSALEE CAMPBELL | 0 | 0 | $0.00 | 93047 | 0 |
Payout Agreement
| No payout information available.. |