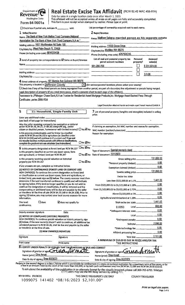
Property
Account |
| Property ID: | 27584 | Abbreviated Legal Description: | EISENBEIS ADDITION BLK 78 LOTS 3 & 4 |
| Parcel # / Geo ID: | 948307802 | Agent Code: | |
| Type: | Real | | |
| Tax Area: | 0110 - C-50F1E1H2 | Land Use Code | 11 |
| Open Space: | N | DFL | N |
| Historic Property: | N | Remodel Property: | N |
| Multi-Family Redevelopment: | N | | |
| Township: | 30N | Section: | 10 |
| Range: | 1W |
Location |
| Address: | 1224 CLEVELAND ST PORT TOWNSEND, WA 98368 | Mapsco: | 027/031 |
| Neighborhood: | EISENBEIS, OC HASTINGS & SUPP, PINKS LESS VICTORIAN VILLAGE | Map ID: | |
| Neighborhood CD: | 6210 |
Owner |
| Name: | DENNISON FAMILY IRREVOCABLE TRUST | Owner ID: | 112388 |
| Mailing Address: | RICK S DENNISON TRUSTEE 1224 CLEVELAND ST PORT TOWNSEND, WA 98368-8610 | % Ownership: | 100.0000000000% |
| | | Exemptions: | |
Pay Tax Due
There is currently No Amount Due on this property.
Taxes and Assessment Details
Property Tax Information as of
10/24/2025
Click on "Statement Details" to expand or collapse a tax statement.
* Please enter a valid date ** Please enter a valid date *
Statement Details |
| | TOTAL: | $0.00 | $0.00 | $0.00 | $0.00 | $0.00 | $0.00 |
|
| | $0.00 | $0.00 | $0.00 | $0.00 | $0.00 | $0.00 |
Values
| (+) Improvement Homesite Value: | + | $269,543 | |
| (+) Improvement Non-Homesite Value: | + | $61,942 | |
| (+) Land Homesite Value: | + | $184,375 | |
| (+) Land Non-Homesite Value: | + | $13,125 | |
| (+) Curr Use (HS): | + | $0 | $0 |
| (+) Curr Use (NHS): | + | $0 | $0 |
| | | -------------------------- | |
| (=) Market Value: | = | $528,985 | |
| (–) Productivity Loss: | – | $0 | |
| | | -------------------------- | |
| (=) Subtotal: | = | $528,985 | |
| (+) Senior Appraised Value: | + | $0 | |
| (+) Non-Senior Appraised Value: | + | $528,985 | |
| | | -------------------------- | |
| (=) Total Appraised Value: | = | $528,985 | |
| (–) Senior Exemption Loss: | – | $0 | |
| (–) Exemption Loss: | – | $0 | |
| | | -------------------------- | |
| (=) Taxable Value: | = | $528,985 | |
Taxing Jurisdiction
| Owner: | DENNISON FAMILY IRREVOCABLE TRUST | | |
| % Ownership: | 100.0000000000% | | |
| Total Value: | N/A | | |
| Tax Area: | 0110 - C-50F1E1H2 |
| CE | COUNTY CURRENT EXPENSE | N/A | N/A | N/A | N/A | | |
| CNTYDD | DEVELOPMENTAL DISABILITIES | N/A | N/A | N/A | N/A | | |
| CNTYVET | VETERANS RELIEF | N/A | N/A | N/A | N/A | | |
| MENTAL | MENTAL HEALTH | N/A | N/A | N/A | N/A | | |
| PTGEN | CITY OF PT GENERAL | N/A | N/A | N/A | N/A | | |
| PTLLL | CITY OF PT - LIBRARY LID LIFT | N/A | N/A | N/A | N/A | | |
| PTMVBOND | CITY OF PT MV BOND | N/A | N/A | N/A | N/A | | |
| HOSP2CASH | HOSP DIST #2 GENERAL | N/A | N/A | N/A | N/A | | |
| SCH50BOND | SCHOOL DIST #50 BOND 2016 | N/A | N/A | N/A | N/A | | |
| SCH50CP | SCHOOL DIST #50 CAP PROJ | N/A | N/A | N/A | N/A | | |
| SCH50MO | SCHOOL DIST #50 EP & O | N/A | N/A | N/A | N/A | | |
| CONSERVE | CONSERVATION FUTURES | N/A | N/A | N/A | N/A | | |
| EMS1 | FIRE DIST #1 EMS | N/A | N/A | N/A | N/A | | |
| FD1 | FIRE DIST #1 GENERAL | N/A | N/A | N/A | N/A | | |
| PORTPT | PORT OF PT GENERAL | N/A | N/A | N/A | N/A | | |
| PORTPTIDD | PORT OF PT IDD 2019 | N/A | N/A | N/A | N/A | | |
| PUD1 | PUD #1 GENERAL | N/A | N/A | N/A | N/A | | |
| STATE | STATE SCHOOL PART 1 | N/A | N/A | N/A | N/A | | |
| STATE2 | STATE SCHOOL PART 2 | N/A | N/A | N/A | N/A | | |
| | Total Tax Rate: | N/A | | | | | |
| | | | | Taxes w/Current Exemptions: | N/A | | |
| | | | | Taxes w/o Exemptions: | N/A | | |
Improvement / Building
| Improvement #1: | Residential Bldg | State Code: | 11 | 1086.0 sqft | Value: | $269,543 |
| Bathrooms (#): | 2 (FULL) | Bedrooms (#): | 2 | | Exterior Wall: | SI/ST | Floor Construction: | FRAME | | Foundation: | CONPR | Heating/Cooling: | ELBB | | Roof Cover: | COMP |   |   |
|
| | Type | Description | Class CD | Sub Class CD | Year Built | Area |
| | MA | Main Area | 4- | 1S | 1954 | 1086.0 |
| | HWPOR | House Wood Porch | 4 | 1S | 1954 | 66.0 |
| | HDECK | House Deck | 4 | 1S | 1954 | 114.0 |
| | GATT | House Attached Garage | 4 | 1S | 1954 | 531.2 |
| Improvement #2: | Manufactured Home | State Code: | 11M | 668.8 sqft | Value: | $61,942 |
| Bathrooms (#): | 1 (FULL) | Bedrooms (#): | 2 | | Exterior Wall: | PL/T1 | Floor Construction: | FRAME | | Foundation: | CONBL | Heating/Cooling: | ELBB | | Roof Cover: | COMP |   |   |
|
| | Type | Description | Class CD | Sub Class CD | Year Built | Area |
| | MA | Main Area | 2+ | MSG | 2020 | 668.8 |
| | MWPOR | MH Wood Porch | 2 | MSG | 2020 | 118.0 |
Sketch
Property Image
Land
| 1 | 6210-1185L | Standard Lot (No View) | 0.0000 | 0.00 | 0.00 | 0.00 | 1.00 | $145,000 | $0 |
| 2 | 6210-1185L | Standard Lot (No View) | 0.0000 | 0.00 | 0.00 | 0.00 | 1.00 | $52,500 | $0 |
Roll Value History
| 2025 | N/A | N/A | N/A | N/A | N/A |
| 2024 | $325,263 | $183,750 | $0 | $509,013 | $224,571 |
| 2023 | $311,122 | $170,000 | $0 | $481,122 | $221,452 |
| 2022 | $311,122 | $150,000 | $0 | $461,122 | $230,202 |
| 2021 | $265,916 | $99,500 | $0 | $365,416 | $365,416 |
Deed and Sales History
| 1 | 02/27/2025 | QCD | Quit Claim Deed | LARRY W DENNISON | DENNISON FAMILY IRREVOCABLE TRUST | | | | 144109 | |
| 2 | 03/08/2022 | QCD | Quit Claim Deed | LARRY W DENNISON | LARRY W DENNISON | | | | 138689 | |
| 3 | 11/01/1993 | SWD | Statutory Warranty Deed | DENNISON, LARRY W | DANSKIN, LARRY W/JULIA A | 0 | 0 | $28,000.00 | 72540 | 0 |
Payout Agreement
| No payout information available.. |