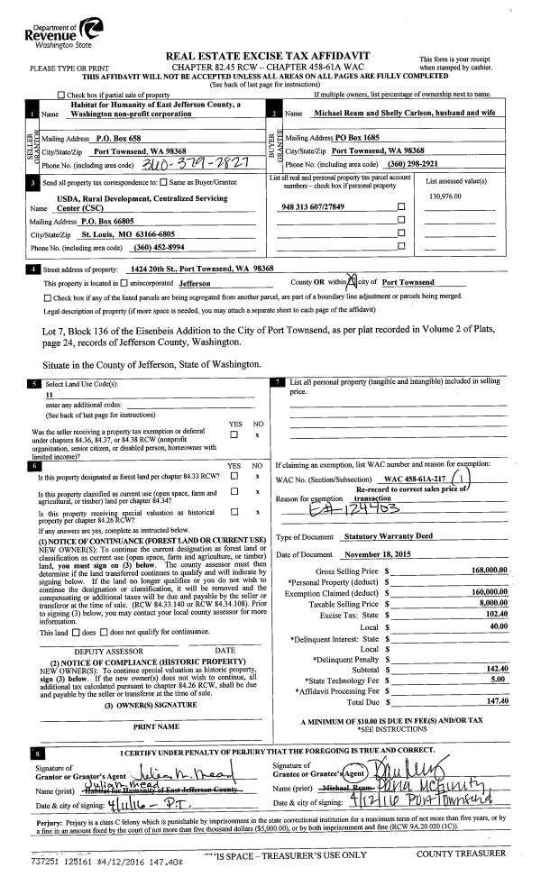
Property
Account |
| Property ID: | 275987 | Abbreviated Legal Description: | ROSECRANS TERRACE LOT 1 |
| Parcel # / Geo ID: | 994300001 | Agent Code: | |
| Type: | Real | | |
| Tax Area: | 0110 - C-50F1E1H2 | Land Use Code | 11 |
| Open Space: | N | DFL | N |
| Historic Property: | N | Remodel Property: | N |
| Multi-Family Redevelopment: | N | | |
| Township: | 30N | Section: | 3 |
| Range: | 1W |
Location |
| Address: | 2265 WEST ROSECRANS CT PORT TOWNSEND, WA 98368 | Mapsco: | 129/001 |
| Neighborhood: | LAUREL SHADE, HASTINGS HEIGHTS & ACREAGE PROXIMITY | Map ID: | |
| Neighborhood CD: | 6115 |
Owner |
| Name: | HEIDI J SEWALL | Owner ID: | 96918 |
| Mailing Address: | 334 SUNSET MEADOWS LN PORT HADLOCK, WA 98339 | % Ownership: | 100.0000000000% |
| | | Exemptions: | |
Pay Tax Due
There is currently No Amount Due on this property.
Taxes and Assessment Details
Property Tax Information as of
10/24/2025
Click on "Statement Details" to expand or collapse a tax statement.
* Please enter a valid date ** Please enter a valid date *
Statement Details |
| | TOTAL: | $0.00 | $0.00 | $0.00 | $0.00 | $0.00 | $0.00 |
|
| | $0.00 | $0.00 | $0.00 | $0.00 | $0.00 | $0.00 |
Values
| (+) Improvement Homesite Value: | + | $0 | |
| (+) Improvement Non-Homesite Value: | + | $313,357 | |
| (+) Land Homesite Value: | + | $0 | |
| (+) Land Non-Homesite Value: | + | $115,000 | |
| (+) Curr Use (HS): | + | $0 | $0 |
| (+) Curr Use (NHS): | + | $0 | $0 |
| | | -------------------------- | |
| (=) Market Value: | = | $428,357 | |
| (–) Productivity Loss: | – | $0 | |
| | | -------------------------- | |
| (=) Subtotal: | = | $428,357 | |
| (+) Senior Appraised Value: | + | $0 | |
| (+) Non-Senior Appraised Value: | + | $428,357 | |
| | | -------------------------- | |
| (=) Total Appraised Value: | = | $428,357 | |
| (–) Senior Exemption Loss: | – | $0 | |
| (–) Exemption Loss: | – | $0 | |
| | | -------------------------- | |
| (=) Taxable Value: | = | $428,357 | |
Taxing Jurisdiction
| Owner: | HEIDI J SEWALL | | |
| % Ownership: | 100.0000000000% | | |
| Total Value: | N/A | | |
| Tax Area: | 0110 - C-50F1E1H2 |
| CE | COUNTY CURRENT EXPENSE | N/A | N/A | N/A | N/A | | |
| CNTYDD | DEVELOPMENTAL DISABILITIES | N/A | N/A | N/A | N/A | | |
| CNTYVET | VETERANS RELIEF | N/A | N/A | N/A | N/A | | |
| MENTAL | MENTAL HEALTH | N/A | N/A | N/A | N/A | | |
| PTGEN | CITY OF PT GENERAL | N/A | N/A | N/A | N/A | | |
| PTLLL | CITY OF PT - LIBRARY LID LIFT | N/A | N/A | N/A | N/A | | |
| PTMVBOND | CITY OF PT MV BOND | N/A | N/A | N/A | N/A | | |
| HOSP2CASH | HOSP DIST #2 GENERAL | N/A | N/A | N/A | N/A | | |
| SCH50BOND | SCHOOL DIST #50 BOND 2016 | N/A | N/A | N/A | N/A | | |
| SCH50CP | SCHOOL DIST #50 CAP PROJ | N/A | N/A | N/A | N/A | | |
| SCH50MO | SCHOOL DIST #50 EP & O | N/A | N/A | N/A | N/A | | |
| CONSERVE | CONSERVATION FUTURES | N/A | N/A | N/A | N/A | | |
| EMS1 | FIRE DIST #1 EMS | N/A | N/A | N/A | N/A | | |
| FD1 | FIRE DIST #1 GENERAL | N/A | N/A | N/A | N/A | | |
| PORTPT | PORT OF PT GENERAL | N/A | N/A | N/A | N/A | | |
| PORTPTIDD | PORT OF PT IDD 2019 | N/A | N/A | N/A | N/A | | |
| PUD1 | PUD #1 GENERAL | N/A | N/A | N/A | N/A | | |
| STATE | STATE SCHOOL PART 1 | N/A | N/A | N/A | N/A | | |
| STATE2 | STATE SCHOOL PART 2 | N/A | N/A | N/A | N/A | | |
| | Total Tax Rate: | N/A | | | | | |
| | | | | Taxes w/Current Exemptions: | N/A | | |
| | | | | Taxes w/o Exemptions: | N/A | | |
Improvement / Building
| Improvement #1: | Residential Bldg | State Code: | 11 | 992.8 sqft | Value: | $313,357 |
| Bathrooms (#): | 2 (FULL) | Bedrooms (#): | 2 | | Exterior Wall: | SI/ST | Floor Construction: | FRAME | | Foundation: | CONPR | Heating/Cooling: | F/A | | Roof Cover: | COMP |   |   |
|
| | Type | Description | Class CD | Sub Class CD | Year Built | Area |
| | MA | Main Area | 4+ | 1S | 2016 | 992.8 |
| | HDECK | House Deck | 4 | * | 2016 | 144.0 |
| | PATIO | House Patio | 4 | * | 2016 | 76.0 |
| | CONCD | Concrete Drive | 4 | * | 2016 | 300.0 |
| | GATT | House Attached Garage | 4 | 1S | 2016 | 300.0 |
Sketch
Property Image
Land
| 1 | 6115-1175L | Lots in Laurel Shade/Rosecrans Terrace | 0.0000 | 0.00 | 0.00 | 0.00 | 1.00 | $115,000 | $0 |
Roll Value History
| 2025 | N/A | N/A | N/A | N/A | N/A |
| 2024 | $305,258 | $115,500 | $0 | $420,758 | $420,758 |
| 2023 | $305,258 | $110,250 | $0 | $415,508 | $415,508 |
| 2022 | $279,820 | $90,000 | $0 | $369,820 | $369,820 |
| 2021 | $239,162 | $60,750 | $0 | $299,912 | $299,912 |
Deed and Sales History
| 1 | 07/16/2018 | SWD | Statutory Warranty Deed | ALAN & LINDA TERRY | HEIDI J SEWALL | | | $320,000.00 | 130629 | |
| 2 | 07/22/2016 | SWD | Statutory Warranty Deed | CAFS LLC | ALAN & LINDA TERRY | | | $234,073.00 | 125938 | |
| 3 | 08/25/2014 | SWD | Statutory Warranty Deed | ST FRANCIS ESTATES LLC | CAFS LLC | | | $108,000.00 | 0 | |
| 4 | 10/30/2006 | QCD | Quit Claim Deed | PICK MINERALES, LLC, A WA | ST FRANCIS ESTATES, LLC | 0 | 0 | $0.00 | 0 | 0 |
| 5 | 10/30/2006 | QCD | Quit Claim Deed | PICK MINERALES LLC | ST FRANCIS ESTATES, LLC | 0 | 0 | $0.00 | 0 | 0 |
| 6 | 04/04/2006 | QCD | Quit Claim Deed | MCCLAIN, JAMES | PICK MINERALES, L.L.C. | | | $0.00 | 0 | 0 |
| 7 | 12/08/2005 | SWD | Statutory Warranty Deed | MASSEY, WILLIAM L & KATHL | MCCLAIN, JAMES | 0 | 0 | $0.00 | 0 | 0 |
| 8 | 03/17/1995 | SWD | Statutory Warranty Deed | BUCKINGHAM, JOHN W/SUSAN | MASSEY, WILLIAM L/KATHLEEN A | 0 | 0 | $112,000.00 | 0 | 0 |
Payout Agreement
| No payout information available.. |