Property
Account |
| Property ID: | 27600 | Abbreviated Legal Description: | EISENBEIS ADDITION BLK 82 LOT 1 |
| Parcel # / Geo ID: | 948308201 | Agent Code: | |
| Type: | Real | | |
| Tax Area: | 0110 - C-50F1E1H2 | Land Use Code | 11 |
| Open Space: | N | DFL | N |
| Historic Property: | N | Remodel Property: | N |
| Multi-Family Redevelopment: | N | | |
| Township: | 30N | Section: | 10 |
| Range: | 1W |
Location |
| Address: | 1625 WILSON ST PORT TOWNSEND, WA 98368 | Mapsco: | 027/048 |
| Neighborhood: | EISENBEIS, OC HASTINGS & SUPP, PINKS LESS VICTORIAN VILLAGE | Map ID: | |
| Neighborhood CD: | 6210 |
Owner |
| Name: | RYAN M & KATE L CHADWICK | Owner ID: | 94442 |
| Mailing Address: | 1625 WILSON ST PORT TOWNSEND, WA 98368 | % Ownership: | 100.0000000000% |
| | | Exemptions: | |
Pay Tax Due
There is currently No Amount Due on this property.
Taxes and Assessment Details
Property Tax Information as of
10/24/2025
Click on "Statement Details" to expand or collapse a tax statement.
* Please enter a valid date ** Please enter a valid date *
Statement Details |
| | TOTAL: | $0.00 | $0.00 | $0.00 | $0.00 | $0.00 | $0.00 |
|
| | $0.00 | $0.00 | $0.00 | $0.00 | $0.00 | $0.00 |
Values
| (+) Improvement Homesite Value: | + | $0 | |
| (+) Improvement Non-Homesite Value: | + | $335,763 | |
| (+) Land Homesite Value: | + | $0 | |
| (+) Land Non-Homesite Value: | + | $135,000 | |
| (+) Curr Use (HS): | + | $0 | $0 |
| (+) Curr Use (NHS): | + | $0 | $0 |
| | | -------------------------- | |
| (=) Market Value: | = | $470,763 | |
| (–) Productivity Loss: | – | $0 | |
| | | -------------------------- | |
| (=) Subtotal: | = | $470,763 | |
| (+) Senior Appraised Value: | + | $0 | |
| (+) Non-Senior Appraised Value: | + | $470,763 | |
| | | -------------------------- | |
| (=) Total Appraised Value: | = | $470,763 | |
| (–) Senior Exemption Loss: | – | $0 | |
| (–) Exemption Loss: | – | $0 | |
| | | -------------------------- | |
| (=) Taxable Value: | = | $470,763 | |
Taxing Jurisdiction
| Owner: | RYAN M & KATE L CHADWICK | | |
| % Ownership: | 100.0000000000% | | |
| Total Value: | N/A | | |
| Tax Area: | 0110 - C-50F1E1H2 |
| CE | COUNTY CURRENT EXPENSE | N/A | N/A | N/A | N/A | | |
| CNTYDD | DEVELOPMENTAL DISABILITIES | N/A | N/A | N/A | N/A | | |
| CNTYVET | VETERANS RELIEF | N/A | N/A | N/A | N/A | | |
| MENTAL | MENTAL HEALTH | N/A | N/A | N/A | N/A | | |
| PTGEN | CITY OF PT GENERAL | N/A | N/A | N/A | N/A | | |
| PTLLL | CITY OF PT - LIBRARY LID LIFT | N/A | N/A | N/A | N/A | | |
| PTMVBOND | CITY OF PT MV BOND | N/A | N/A | N/A | N/A | | |
| HOSP2CASH | HOSP DIST #2 GENERAL | N/A | N/A | N/A | N/A | | |
| SCH50BOND | SCHOOL DIST #50 BOND 2016 | N/A | N/A | N/A | N/A | | |
| SCH50CP | SCHOOL DIST #50 CAP PROJ | N/A | N/A | N/A | N/A | | |
| SCH50MO | SCHOOL DIST #50 EP & O | N/A | N/A | N/A | N/A | | |
| CONSERVE | CONSERVATION FUTURES | N/A | N/A | N/A | N/A | | |
| EMS1 | FIRE DIST #1 EMS | N/A | N/A | N/A | N/A | | |
| FD1 | FIRE DIST #1 GENERAL | N/A | N/A | N/A | N/A | | |
| PORTPT | PORT OF PT GENERAL | N/A | N/A | N/A | N/A | | |
| PORTPTIDD | PORT OF PT IDD 2019 | N/A | N/A | N/A | N/A | | |
| PUD1 | PUD #1 GENERAL | N/A | N/A | N/A | N/A | | |
| STATE | STATE SCHOOL PART 1 | N/A | N/A | N/A | N/A | | |
| STATE2 | STATE SCHOOL PART 2 | N/A | N/A | N/A | N/A | | |
| | Total Tax Rate: | N/A | | | | | |
| | | | | Taxes w/Current Exemptions: | N/A | | |
| | | | | Taxes w/o Exemptions: | N/A | | |
Improvement / Building
| Improvement #1: | Residential Bldg | State Code: | 11 | 1336.0 sqft | Value: | $335,763 |
| Bathrooms (#): | 2 (FULL) | Bedrooms (#): | 3 | | Exterior Wall: | SI/ST | Floor Construction: | FRAME | | Foundation: | CONPR | Heating/Cooling: | F/A | | Roof Cover: | METAL |   |   |
|
| | Type | Description | Class CD | Sub Class CD | Year Built | Area |
| | MA | Main Area | 4 | 2S | 2003 | 668.0 |
| | MA2 | Second Floor Main Area | 4 | 2S | 2003 | 668.0 |
| | HWPOR | House Wood Porch | 4 | 2S | 2003 | 32.0 |
| | HDECK | House Deck | 4 | 2S | 2003 | 256.0 |
| | BSMTU | House basement unfinished | 4 | 2S | 2003 | 668.0 |
Sketch
Property Image
Land
| 1 | 6210-1185L | Standard Lot (No View) | 0.0000 | 0.00 | 0.00 | 0.00 | 1.00 | $135,000 | $0 |
Roll Value History
| 2025 | N/A | N/A | N/A | N/A | N/A |
| 2024 | $327,844 | $126,000 | $0 | $453,844 | $453,844 |
| 2023 | $313,590 | $115,000 | $0 | $428,590 | $428,590 |
| 2022 | $313,590 | $100,000 | $0 | $413,590 | $413,590 |
| 2021 | $268,025 | $96,875 | $0 | $364,900 | $364,900 |
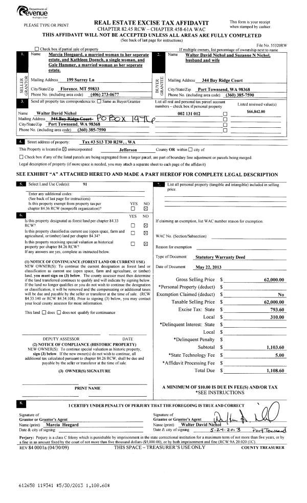
Deed and Sales History
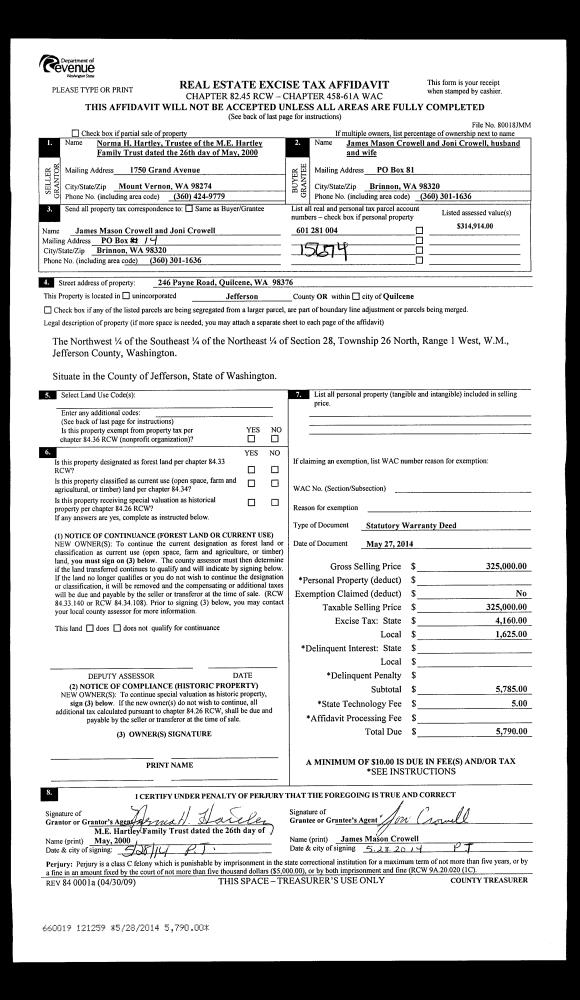
| 1 | 10/06/2015 | SWD | Statutory Warranty Deed | SCOTT T & DEBRA L WOLFE | RYAN M & KATE L CHADWICK | | | $302,500.00 | 124137 | |
| 2 | 06/27/2014 | TRED | Trustee Deed | ALIYA S SCANLON | SCOTT T & DEBRA L WOLFE | | | | 121445 | |
| 3 | 09/09/2009 | QCD | Quit Claim Deed | SCANLON, MICHAEL D | SCANLON, ALIYA S | 0 | 0 | $0.00 | 113392 | 0 |
| 4 | 12/18/2002 | SWD | Statutory Warranty Deed | GARRISON LIVING TRUST | SCANLON, MICHAEL & ALIYA | 0 | 0 | $25,000.00 | 96319 | 0 |
| 5 | 09/24/2002 | SWD | Statutory Warranty Deed | MANLEY, KEITH ALAN | GARRISON, VERNON I TRUSTEE OF | 0 | 0 | $3,500.00 | 95637 | 0 |
| 6 | 09/24/2002 | SWD | Statutory Warranty Deed | MANLEY, KEITH ALAN | GARRISON TRUST, VERNON I | 0 | 0 | $3,500.00 | 95638 | 0 |
| 7 | 09/24/2002 | SWD | Statutory Warranty Deed | MANLEY, KEITH ALAN | GARRISON TRUST, VERNON I | 0 | 0 | $3,500.00 | 95639 | 0 |
| 8 | 09/24/2002 | SWD | Statutory Warranty Deed | MANLEY, KEITH ALAN | GARRISON TRUST, VERNON I | 0 | 0 | $3,500.00 | 95640 | 0 |
| 9 | 10/30/1998 | QCD | Quit Claim Deed | MANLEY, NANCY B | MANLEY, KEITH A | 0 | 0 | $0.00 | 86641 | 0 |
| 10 | 11/25/1994 | QCD | Quit Claim Deed | MANLEY, DEAN A | MANLEY, NANCY B | 0 | 0 | $0.00 | 75660 | 0 |
Payout Agreement
| No payout information available.. |