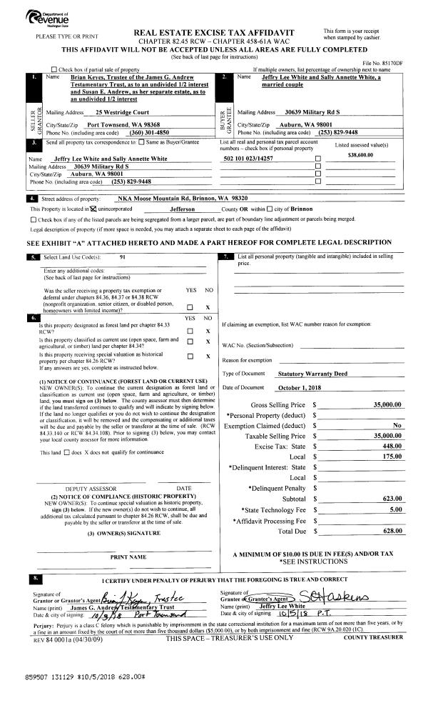
Property
Account |
| Property ID: | 276111 | Abbreviated Legal Description: | WEYMOUTH & DYER ADDITION BLK 2 LOT 14 - CITY LETTER LUP20-054 |
| Parcel # / Geo ID: | 931700214 | Agent Code: | |
| Type: | Real | | |
| Tax Area: | 0110 - C-50F1E1H2 | Land Use Code | 11 |
| Open Space: | N | DFL | N |
| Historic Property: | N | Remodel Property: | N |
| Multi-Family Redevelopment: | N | | |
| Township: | 30N | Section: | 3 |
| Range: | 1W |
Location |
| Address: | 2327 CLEVELAND ST PORT TOWNSEND, WA 98368 | Mapsco: | 149/034A |
| Neighborhood: | COLUMBIA//HUSSEY/WEYMOUNT-DYER/WOODLAND LP-ACREAGE; CEMETERY | Map ID: | |
| Neighborhood CD: | 6120 |
Owner |
| Name: | SUE RAMAGE | Owner ID: | 111985 |
| Mailing Address: | 2327 CLEVELAND ST PORT TOWNSEND, WA 98368-7145 | % Ownership: | 100.0000000000% |
| | | Exemptions: | |
Pay Tax Due
There is currently No Amount Due on this property.
Taxes and Assessment Details
Property Tax Information as of
10/24/2025
Click on "Statement Details" to expand or collapse a tax statement.
* Please enter a valid date ** Please enter a valid date *
Statement Details |
| | TOTAL: | $0.00 | $0.00 | $0.00 | $0.00 | $0.00 | $0.00 |
|
| | $0.00 | $0.00 | $0.00 | $0.00 | $0.00 | $0.00 |
Values
| (+) Improvement Homesite Value: | + | $0 | |
| (+) Improvement Non-Homesite Value: | + | $352,234 | |
| (+) Land Homesite Value: | + | $0 | |
| (+) Land Non-Homesite Value: | + | $125,000 | |
| (+) Curr Use (HS): | + | $0 | $0 |
| (+) Curr Use (NHS): | + | $0 | $0 |
| | | -------------------------- | |
| (=) Market Value: | = | $477,234 | |
| (–) Productivity Loss: | – | $0 | |
| | | -------------------------- | |
| (=) Subtotal: | = | $477,234 | |
| (+) Senior Appraised Value: | + | $0 | |
| (+) Non-Senior Appraised Value: | + | $477,234 | |
| | | -------------------------- | |
| (=) Total Appraised Value: | = | $477,234 | |
| (–) Senior Exemption Loss: | – | $0 | |
| (–) Exemption Loss: | – | $0 | |
| | | -------------------------- | |
| (=) Taxable Value: | = | $477,234 | |
Taxing Jurisdiction
| Owner: | SUE RAMAGE | | |
| % Ownership: | 100.0000000000% | | |
| Total Value: | N/A | | |
| Tax Area: | 0110 - C-50F1E1H2 |
| CE | COUNTY CURRENT EXPENSE | N/A | N/A | N/A | N/A | | |
| CNTYDD | DEVELOPMENTAL DISABILITIES | N/A | N/A | N/A | N/A | | |
| CNTYVET | VETERANS RELIEF | N/A | N/A | N/A | N/A | | |
| MENTAL | MENTAL HEALTH | N/A | N/A | N/A | N/A | | |
| PTGEN | CITY OF PT GENERAL | N/A | N/A | N/A | N/A | | |
| PTLLL | CITY OF PT - LIBRARY LID LIFT | N/A | N/A | N/A | N/A | | |
| PTMVBOND | CITY OF PT MV BOND | N/A | N/A | N/A | N/A | | |
| HOSP2CASH | HOSP DIST #2 GENERAL | N/A | N/A | N/A | N/A | | |
| SCH50BOND | SCHOOL DIST #50 BOND 2016 | N/A | N/A | N/A | N/A | | |
| SCH50CP | SCHOOL DIST #50 CAP PROJ | N/A | N/A | N/A | N/A | | |
| SCH50MO | SCHOOL DIST #50 EP & O | N/A | N/A | N/A | N/A | | |
| CONSERVE | CONSERVATION FUTURES | N/A | N/A | N/A | N/A | | |
| EMS1 | FIRE DIST #1 EMS | N/A | N/A | N/A | N/A | | |
| FD1 | FIRE DIST #1 GENERAL | N/A | N/A | N/A | N/A | | |
| PORTPT | PORT OF PT GENERAL | N/A | N/A | N/A | N/A | | |
| PORTPTIDD | PORT OF PT IDD 2019 | N/A | N/A | N/A | N/A | | |
| PUD1 | PUD #1 GENERAL | N/A | N/A | N/A | N/A | | |
| STATE | STATE SCHOOL PART 1 | N/A | N/A | N/A | N/A | | |
| STATE2 | STATE SCHOOL PART 2 | N/A | N/A | N/A | N/A | | |
| | Total Tax Rate: | N/A | | | | | |
| | | | | Taxes w/Current Exemptions: | N/A | | |
| | | | | Taxes w/o Exemptions: | N/A | | |
Improvement / Building
| Improvement #1: | Residential Bldg | State Code: | 11 | 888.0 sqft | Value: | $300,582 |
| Bathrooms (#): | 1 (FULL) | Bedrooms (#): | 2 | | Exterior Wall: | SI/ST | Floor Construction: | CONCR | | Foundation: | CONPR | Heating/Cooling: | ELBB | | Roof Cover: | COMP |   |   |
|
| | Type | Description | Class CD | Sub Class CD | Year Built | Area |
| | MA | Main Area | 5 | 1S | 2017 | 888.0 |
| | HRPO | House Roof Patio | 5 | * | 2017 | 120.0 |
| | PATIO | House Patio | 5 | * | 2017 | 263.0 |
| Improvement #2: | Residential Bldg | State Code: | 11 | 0.0 sqft | Value: | $51,652 |
| | Type | Description | Class CD | Sub Class CD | Year Built | Area |
| | GDET | Detached Garage | 4 | 1S | 2025 | 360.0 |
| | ADDN-D | Addition (Table Depreciated) | 4 | ADU | 2025 | 600.0 |
Sketch
Property Image
Land
| 1 | 6120-1177L | Standard Lot (Fair Terr View Area) | 0.0000 | 0.00 | 0.00 | 0.00 | 1.00 | $125,000 | $0 |
Roll Value History
| 2025 | N/A | N/A | N/A | N/A | N/A |
| 2024 | $247,346 | $105,000 | $0 | $352,346 | $352,346 |
| 2023 | $247,346 | $99,750 | $0 | $347,096 | $347,096 |
| 2022 | $226,734 | $90,000 | $0 | $316,734 | $316,734 |
| 2021 | $193,790 | $71,250 | $0 | $265,040 | $265,040 |
Deed and Sales History
| 1 | 12/27/2024 | SWD | Statutory Warranty Deed | PETER ANDREW WEST | SUE RAMAGE | | | $525,000.00 | 143719 | |
| 2 | 12/09/2016 | SWD | Statutory Warranty Deed | | PETER ANDREW WEST | | | $66,750.00 | 126815 | |
|   | |
| 3 | 12/13/1996 | QCD | Quit Claim Deed | WILSON, ROGER LENOX | WILSON, ROGER LENOX/TRUST | 0 | 0 | $0.00 | 80996 | 0 |
| 4 | 07/21/1993 | SWD | Statutory Warranty Deed | WALKER, RICHARD G/MARY J | WILSON, ROGER LENOX | 0 | 0 | $18,000.00 | 71716 | 0 |
|   | |
Payout Agreement
| No payout information available.. |