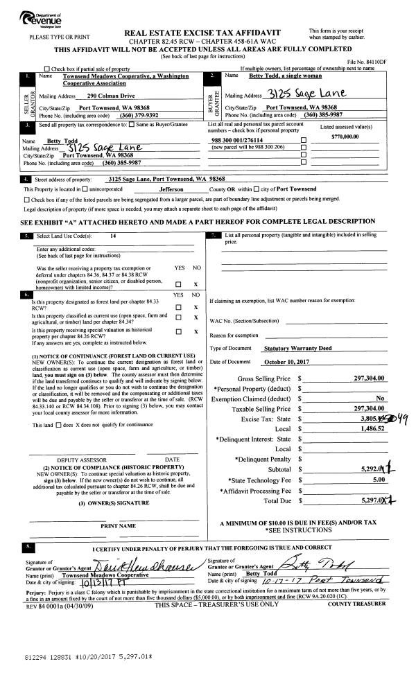
Property
Account |
| Property ID: | 27615 | Abbreviated Legal Description: | EISENBEIS ADDITION BLK 84 LOTS 7 & 8 |
| Parcel # / Geo ID: | 948308404 | Agent Code: | |
| Type: | Real | | |
| Tax Area: | 0110 - C-50F1E1H2 | Land Use Code | 11 |
| Open Space: | N | DFL | N |
| Historic Property: | N | Remodel Property: | N |
| Multi-Family Redevelopment: | N | | |
| Township: | 30N | Section: | 10 |
| Range: | 1W |
Location |
| Address: | 1805 WILSON ST PORT TOWNSEND, WA 98368 | Mapsco: | 028/009 |
| Neighborhood: | EISENBEIS, OC HASTINGS & SUPP, PINKS LESS VICTORIAN VILLAGE | Map ID: | |
| Neighborhood CD: | 6210 |
Owner |
| Name: | KATHLEEN A & STEPHEN H APPLEYARD | Owner ID: | 99018 |
| Mailing Address: | 1322 WASHINGTON ST #725 PORT TOWNSEND, WA 98368 | % Ownership: | 100.0000000000% |
| | | Exemptions: | |
Pay Tax Due
There is currently No Amount Due on this property.
Taxes and Assessment Details
Property Tax Information as of
10/24/2025
Click on "Statement Details" to expand or collapse a tax statement.
* Please enter a valid date ** Please enter a valid date *
Statement Details |
| | TOTAL: | $0.00 | $0.00 | $0.00 | $0.00 | $0.00 | $0.00 |
|
| | $0.00 | $0.00 | $0.00 | $0.00 | $0.00 | $0.00 |
Values
| (+) Improvement Homesite Value: | + | $0 | |
| (+) Improvement Non-Homesite Value: | + | $471,839 | |
| (+) Land Homesite Value: | + | $0 | |
| (+) Land Non-Homesite Value: | + | $192,750 | |
| (+) Curr Use (HS): | + | $0 | $0 |
| (+) Curr Use (NHS): | + | $0 | $0 |
| | | -------------------------- | |
| (=) Market Value: | = | $664,589 | |
| (–) Productivity Loss: | – | $0 | |
| | | -------------------------- | |
| (=) Subtotal: | = | $664,589 | |
| (+) Senior Appraised Value: | + | $0 | |
| (+) Non-Senior Appraised Value: | + | $664,589 | |
| | | -------------------------- | |
| (=) Total Appraised Value: | = | $664,589 | |
| (–) Senior Exemption Loss: | – | $0 | |
| (–) Exemption Loss: | – | $0 | |
| | | -------------------------- | |
| (=) Taxable Value: | = | $664,589 | |
Taxing Jurisdiction
| Owner: | KATHLEEN A & STEPHEN H APPLEYARD | | |
| % Ownership: | 100.0000000000% | | |
| Total Value: | N/A | | |
| Tax Area: | 0110 - C-50F1E1H2 |
| CE | COUNTY CURRENT EXPENSE | N/A | N/A | N/A | N/A | | |
| CNTYDD | DEVELOPMENTAL DISABILITIES | N/A | N/A | N/A | N/A | | |
| CNTYVET | VETERANS RELIEF | N/A | N/A | N/A | N/A | | |
| MENTAL | MENTAL HEALTH | N/A | N/A | N/A | N/A | | |
| PTGEN | CITY OF PT GENERAL | N/A | N/A | N/A | N/A | | |
| PTLLL | CITY OF PT - LIBRARY LID LIFT | N/A | N/A | N/A | N/A | | |
| PTMVBOND | CITY OF PT MV BOND | N/A | N/A | N/A | N/A | | |
| HOSP2CASH | HOSP DIST #2 GENERAL | N/A | N/A | N/A | N/A | | |
| SCH50BOND | SCHOOL DIST #50 BOND 2016 | N/A | N/A | N/A | N/A | | |
| SCH50CP | SCHOOL DIST #50 CAP PROJ | N/A | N/A | N/A | N/A | | |
| SCH50MO | SCHOOL DIST #50 EP & O | N/A | N/A | N/A | N/A | | |
| CONSERVE | CONSERVATION FUTURES | N/A | N/A | N/A | N/A | | |
| EMS1 | FIRE DIST #1 EMS | N/A | N/A | N/A | N/A | | |
| FD1 | FIRE DIST #1 GENERAL | N/A | N/A | N/A | N/A | | |
| PORTPT | PORT OF PT GENERAL | N/A | N/A | N/A | N/A | | |
| PORTPTIDD | PORT OF PT IDD 2019 | N/A | N/A | N/A | N/A | | |
| PUD1 | PUD #1 GENERAL | N/A | N/A | N/A | N/A | | |
| STATE | STATE SCHOOL PART 1 | N/A | N/A | N/A | N/A | | |
| STATE2 | STATE SCHOOL PART 2 | N/A | N/A | N/A | N/A | | |
| | Total Tax Rate: | N/A | | | | | |
| | | | | Taxes w/Current Exemptions: | N/A | | |
| | | | | Taxes w/o Exemptions: | N/A | | |
Improvement / Building
| Improvement #1: | Residential Bldg | State Code: | 11 | 1743.0 sqft | Value: | $471,839 |
| Bathrooms (#): | 2 (HALF) | Bedrooms (#): | 3 | | Bedrooms (#): | 3 | Exterior Wall: | SI/ST | | Fireplace: | SIN 1-GOOD | Floor Construction: | FRAME | | Foundation: | CONPR | Heating/Cooling: | ELBB | | Inside Verify: | YES-FIX | Roof Cover: | COMP |
|
| | Type | Description | Class CD | Sub Class CD | Year Built | Area |
| | MA | Main Area | 5- | 1S | 1964 | 1743.0 |
| | HWPOR | House Wood Porch | 4 | 1S | 1964 | 270.0 |
Sketch
Property Image
Land
| 1 | 6210-1185L | Standard Lot (No View) | 0.0000 | 0.00 | 0.00 | 0.00 | 1.00 | $140,250 | $0 |
| 2 | 6210-1185L | Standard Lot (No View) | 0.0000 | 0.00 | 0.00 | 0.00 | 1.00 | $52,500 | $0 |
Roll Value History
| 2025 | N/A | N/A | N/A | N/A | N/A |
| 2024 | $452,098 | $204,750 | $0 | $656,848 | $656,848 |
| 2023 | $432,442 | $190,000 | $0 | $622,442 | $622,442 |
| 2022 | $432,442 | $185,000 | $0 | $617,442 | $617,442 |
| 2021 | $369,609 | $139,500 | $0 | $509,109 | $509,109 |
Deed and Sales History
| 1 | 04/13/2018 | SWD | Statutory Warranty Deed | MARK HENTHORN | KATHLEEN A & STEPHEN H APPLEYARD | | | $449,000.00 | 129957 | |
| 2 | 06/02/2016 | SWD | Statutory Warranty Deed | PATRICIA STORNETTA | MARK HENTHORN | | | $198,000.00 | 125607 | |
| 3 | 09/05/2006 | QCD | Quit Claim Deed | STORNETTA, PATRICIA | STORNETTA, PATRICIA/FEE, | 0 | 0 | $0.00 | 107541 | 0 |
| 4 | 10/25/2004 | SWD | Statutory Warranty Deed | REZENDES, GEORGE/HAMILTON | STORNETTA, PATRICIA | 0 | 0 | $185,000.00 | 101813 | 0 |
| 5 | 07/03/2001 | SWD | Statutory Warranty Deed | HAUGEN, DAVID M/RAMONA | REZENDES, GEORGE, HAMILTON, LI | 0 | 0 | $0.00 | 92628 | 0 |
Payout Agreement
| No payout information available.. |