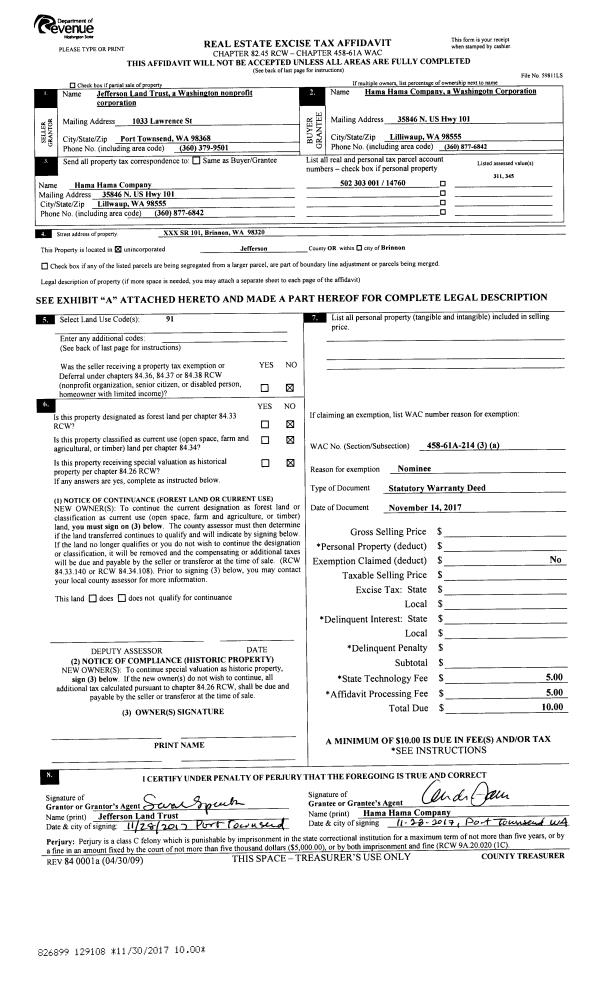
Property
Account |
| Property ID: | 276366 | Abbreviated Legal Description: | QUIMPER VILLAGE CONDO BLDG 7 UNIT 24 GAR BLDG 10/SP3 |
| Parcel # / Geo ID: | 988300724 | Agent Code: | |
| Type: | Real | | |
| Tax Area: | 0110 - C-50F1E1H2 | Land Use Code | 14 |
| Open Space: | N | DFL | N |
| Historic Property: | N | Remodel Property: | N |
| Multi-Family Redevelopment: | N | | |
| Township: | 30N | Section: | 2 |
| Range: | 1W |
Location |
| Address: | 3134 SAGE LN PORT TOWNSEND, WA 98368 | Mapsco: | 128/024 |
| Neighborhood: | CYCLE 6 CONDOMINIUMS - PORT TOWNSEND | Map ID: | |
| Neighborhood CD: | 6900 |
Owner |
| Name: | DAVID WINTERS & SANDRA WANSTALL | Owner ID: | 95460 |
| Mailing Address: | 2589 WILSON ST PORT TOWNSEND, WA 98368-5125 | % Ownership: | 100.0000000000% |
| | | Exemptions: | |
Pay Tax Due
There is currently No Amount Due on this property.
Taxes and Assessment Details
Property Tax Information as of
10/24/2025
Click on "Statement Details" to expand or collapse a tax statement.
* Please enter a valid date ** Please enter a valid date *
Statement Details |
| | TOTAL: | $0.00 | $0.00 | $0.00 | $0.00 | $0.00 | $0.00 |
|
| | $0.00 | $0.00 | $0.00 | $0.00 | $0.00 | $0.00 |
Values
| (+) Improvement Homesite Value: | + | $0 | |
| (+) Improvement Non-Homesite Value: | + | $505,408 | |
| (+) Land Homesite Value: | + | $231,000 | |
| (+) Land Non-Homesite Value: | + | $0 | |
| (+) Curr Use (HS): | + | $0 | $0 |
| (+) Curr Use (NHS): | + | $0 | $0 |
| | | -------------------------- | |
| (=) Market Value: | = | $736,408 | |
| (–) Productivity Loss: | – | $0 | |
| | | -------------------------- | |
| (=) Subtotal: | = | $736,408 | |
| (+) Senior Appraised Value: | + | $0 | |
| (+) Non-Senior Appraised Value: | + | $736,408 | |
| | | -------------------------- | |
| (=) Total Appraised Value: | = | $736,408 | |
| (–) Senior Exemption Loss: | – | $0 | |
| (–) Exemption Loss: | – | $0 | |
| | | -------------------------- | |
| (=) Taxable Value: | = | $736,408 | |
Taxing Jurisdiction
| Owner: | DAVID WINTERS & SANDRA WANSTALL | | |
| % Ownership: | 100.0000000000% | | |
| Total Value: | N/A | | |
| Tax Area: | 0110 - C-50F1E1H2 |
| CE | COUNTY CURRENT EXPENSE | N/A | N/A | N/A | N/A | | |
| CNTYDD | DEVELOPMENTAL DISABILITIES | N/A | N/A | N/A | N/A | | |
| CNTYVET | VETERANS RELIEF | N/A | N/A | N/A | N/A | | |
| MENTAL | MENTAL HEALTH | N/A | N/A | N/A | N/A | | |
| PTGEN | CITY OF PT GENERAL | N/A | N/A | N/A | N/A | | |
| PTLLL | CITY OF PT - LIBRARY LID LIFT | N/A | N/A | N/A | N/A | | |
| PTMVBOND | CITY OF PT MV BOND | N/A | N/A | N/A | N/A | | |
| HOSP2CASH | HOSP DIST #2 GENERAL | N/A | N/A | N/A | N/A | | |
| SCH50BOND | SCHOOL DIST #50 BOND 2016 | N/A | N/A | N/A | N/A | | |
| SCH50CP | SCHOOL DIST #50 CAP PROJ | N/A | N/A | N/A | N/A | | |
| SCH50MO | SCHOOL DIST #50 EP & O | N/A | N/A | N/A | N/A | | |
| CONSERVE | CONSERVATION FUTURES | N/A | N/A | N/A | N/A | | |
| EMS1 | FIRE DIST #1 EMS | N/A | N/A | N/A | N/A | | |
| FD1 | FIRE DIST #1 GENERAL | N/A | N/A | N/A | N/A | | |
| PORTPT | PORT OF PT GENERAL | N/A | N/A | N/A | N/A | | |
| PORTPTIDD | PORT OF PT IDD 2019 | N/A | N/A | N/A | N/A | | |
| PUD1 | PUD #1 GENERAL | N/A | N/A | N/A | N/A | | |
| STATE | STATE SCHOOL PART 1 | N/A | N/A | N/A | N/A | | |
| STATE2 | STATE SCHOOL PART 2 | N/A | N/A | N/A | N/A | | |
| | Total Tax Rate: | N/A | | | | | |
| | | | | Taxes w/Current Exemptions: | N/A | | |
| | | | | Taxes w/o Exemptions: | N/A | | |
Improvement / Building
| Improvement #1: | Residential Bldg | State Code: | 14 | 1335.0 sqft | Value: | $505,408 |
| Exterior Wall: | SI/ST | Foundation: | CONPR | | Heating/Cooling: | HPUMP | Roof Cover: | COMP |
|
| | Type | Description | Class CD | Sub Class CD | Year Built | Area |
| | MA | Main Area | 5 | RB265 | 2017 | 1335.0 |
| | GARAG | Garage (Table Not Dep) | 6 | * | 2017 | 242.0 |
Sketch
| No sketches available for this property. |
Property Image
Land
| 1 | 9883-4175S | Quimper Village Condos w/Utilities/Common | 0.0000 | 0.00 | 0.00 | 0.00 | 1.00 | $231,000 | $0 |
Roll Value History
| 2025 | N/A | N/A | N/A | N/A | N/A |
| 2024 | $472,875 | $210,000 | $0 | $682,875 | $682,875 |
| 2023 | $436,500 | $199,500 | $0 | $636,000 | $636,000 |
| 2022 | $396,955 | $189,000 | $0 | $585,955 | $585,955 |
| 2021 | $330,050 | $169,050 | $0 | $499,100 | $499,100 |
Deed and Sales History
| 1 | 09/28/2022 | SWD | Statutory Warranty Deed | PHILIP C GRINTON REVOCABLE TRUST | DAVID WINTERS & SANDRA WANSTALL | | | $707,514.00 | 139897 | |
| 2 | 08/07/2020 | SWD | Statutory Warranty Deed | HOWARD & JEANETTE RICHOUX | PHILIP C GRINTON REVOCABLE TRUST | | | $488,000.00 | 134944 | |
| 3 | 10/09/2017 | SWD | Statutory Warranty Deed | TOWNSEND MEADOWS COOPERATIVE | HOWARD & JEANETTE RICHOUX | | | $448,538.00 | 128826 | |
Payout Agreement
| No payout information available.. |